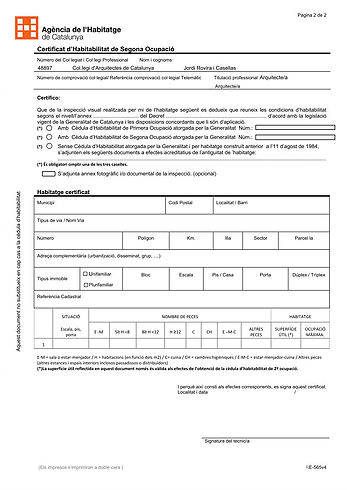
644.73.16.94  Info



Blog de CERTICEDULA


ÚLTIMAS ENTRADAS

Requeriments cèdula Habitabilitat








Eficiència Energètica

Subvencions Next Generation

Vanessa Abajas 2023-01-30


L’Estat ha rebut de la UE el fons Next Generetion, l’objectiu del qual és la millora de la eficiència energètica en els habitatges, lluitant d’aquesta manera contra el canvi climàtic. La intenció és promoure la rehabilitació energètica, tot i que també poden finançar complementàriament la rehabilitació tradicional, com ara l’accessibilitat o la conservació d’edificis.

 

Qui pot demanar els ajuts?

Per a les subvencions de rehabilitació, l’ajuda la demanarà el propietari de l’habitatge.

Per als ajuts a la rehabilitació d'edificis o per als ajuts per al llibre de l'edifici, es faran càrrec les comunitats de propietaris.


Quines son les actuacions subvencionades?

Programa 3: obres o actuacions als edificis d'ús predominant residencial on s'obtingui una millora acreditada de l'eficiència energètica, amb especial atenció a l'envolupant edificatori en edificis de tipologia residencial col·lectiva, incloent els seus habitatges, i als habitatges unifamiliars.

Per exemple, la incorporació d’aïllament tèrmic a la façana.

Programa 4: actuacions i obres de millora de l'eficiència energètica als habitatges, ja siguin unifamiliars o pertanyents a edificis plurifamiliars.

Per exemple, la col·locació de plaques fotovoltàiques.

Programa 5:  impuls a la implantació i la generalització del Llibre d'edifici existent per a la rehabilitació, mitjançant una subvenció que cobreixi part de les despeses d'honoraris professionals per la seva emissió, així com el desenvolupament de projectes tècnics de rehabilitació integral d'edificis.

En aquesta entrada al blog no tractarem les característiques del Programa 5.


Quan es poden demanar?

Els terminis de presentació de sol·licituds és:

Programa 3: Ajuts a les actuacions de rehabilitació a nivell d’edificis

Del 23 de maig de 2022 fins al 31 de desembre de 2023

Programa 4: Ajuts a les actuacions de millora de l’eficiència energètica en habitatges

Del 7 de juny de 2022 fins al 31 de desembre de 2023

 

Quins son els requisits de les actuacions?

Programa 3

- Els edificis han de disposar, amb caràcter obligatori i prèviament a la sol·licitud de la subvenció, de l'informe de la inspecció tècnica de l'edifici (IITE).

- Seran subvencionables totes les obres i les actuacions de rehabilitació que tinguin per objecte la renovació del parc d'habitatge i d'edificis per millorar l'eficiència energètica, la descarbonització, la promoció de l'energia procedent de fonts  renovables.

- En quedaran excloses aquelles intervencions de rehabilitació que tinguin per objecte els canvis d'us de tot l'edifici i aquelles intervencions que tinguin per objecte l'enderroc de tot l'edifici existent mantenint-ne només les façanes.

- També quedaran exclosos els habitatges unifamiliars dedicats a l’ús turístic. La sol·licitud de qualsevol edifici unifamiliar comporta també la renuncia expressa d'efectuar activitats econòmiques per un període de deu anys des de la data de concessió de la subvenció, i en cas d'incompliment, serà procedent la revocació de la subvenció, amb el reintegrament de la subvenció abonada, més els interessos legals meritats.

- Serà requisit que les obres aconsegueixin una reducció d'almenys un 30% en l'indicador de consum d'energia primària no renovable referida a la certificació energètica i a més una reducció d'un 25% (en zona climàtica C) o d'un 35% (en zona climàtica D i E), de la demanda energètica anual global de calefacció i refrigeració.

- Seran subvencionables els costos de gestió inherents al desenvolupament de les actuacions i les despeses associades (despeses generals i benefici industrial), els honoraris dels professionals intervinents en la gestió i desenvolupament de les actuacions, el cost de la redacció de projectes, informe tècnics i certificats necessaris, les despeses derivades de la tramitació administrativa, i altres despeses generals similars, sempre que tots ells estiguin degudament justificats i amb el límit que correspongui per la quantia dels ajuts.

- El termini per a executar les obres per a la millora de l'eficiència energètica i sostenibilitat en els edificis que s'acullin a les ajudes d'aquest programa no podrà excedir de divuit mesos, comptats des de la data de concessió de l'ajuda. Aquest termini es podrà ampliar excepcionalment fins a vint-i-quatre mesos quan es tracti d'edificis o actuacions que afectin 40 o més habitatges.

- Disposar del projecte de les actuacions a realitzar o, pels casos que les actuacions no exigeixin projecte, una memòria tècnica.

- En ell cas d’edificis d’habitatges, les actuacions comptin amb l'acord de la comunitat de propietaris.

- Si la millora es situa entre un 30 i un 45%, el màxim de subvenció del cost d'actuació serà del 40%, amb un aquantia màxima de 6.300€ per habitatge o 56€/m2 d'un local. 

- Si la millora es situa entre un 45 i un 60%, el màxim de subvenció del cost d'actuació serà del 65%, amb un aquantia màxima de 11.600€ per habitatge o 104€/m2 d'un local.

- Si la millora es major del 60%, el màxim de subvenció del cost d'actuació serà del 80%, amb un aquantia màxima de 18.800€ per habitatge o 168€/m2 d'un local.

Programa 4

- Els habitatges pels que es sol·liciti el finançament han de constituir el domicili habitual i permanent del seus propietaris, usufructuaris o arrendataris en el moment de sol·licitar l'ajut.

- Son subvencionables aquelles actuacions realitzades en aquests habitatges, sempre i quan compleixin alguna de les següents condicions:

a) Reducció de la demanda energètica anual global de calefacció i refrigeració d'almenys un 7%.

b) Reducció del consum d'energia primària no renovable d'almenys un 30%.

c) Modificació o substitució dels elements constructius de l'envolupant tèrmica que compleixin amb els valors límits de transmitància tèrmica i de permeabilitat a l'aire de les taules 3.1.1.a i 3.1.3.a del CTE DB HE-1.

- Seran subvencionables els costos de gestió inherents al desenvolupament de les actuacions i les despeses associades (despeses generals i benefici industrial), els honoraris dels professionals intervinents en la gestió i desenvolupament de les actuacions, el cost de la redacció de projectes, informe tècnics i certificats necessaris, les despeses derivades de la tramitació administrativa, i altres despeses generals similars, sempre que tots ells estiguin degudament justificats i amb el límit que correspongui per la quantia dels ajuts.

- El cost mínim de l'actuació ha de ser igual o superior a 1.000 euros per habitatge.

- El termini per a executar les obres per a la millora de l'eficiència energètica i sostenibilitat en els habitatges que s'acullin a les ajudes d'aquest programa no podrà excedir de dotze mesos, comptats des de la data de concessió de l'ajuda.

- L'import de la subvenció serà del 40% del cost de l'actuació, amb un límit de 3.000 euros.

 

Com tramitar la subvenció?

La sol·licitud de subvenció, les corresponents declaracions responsables i els informes d'avaluació i idoneïtat administrativa i tècnica s'han de presentar i formalitzar telemàticament per mitjà dels formularis en línia

https://habitatge.gencat.cat/ngprograma3

https://habitatge.gencat.cat/ngprograma4

 

Com acreditar la millora en l’eficiència energètica?

Per acreditar aquest estalvi caldrà fer-ho a través d'un informe de justificació del compliment del requisit de demanda anual global de calefacció i refrigeració a partir del certificat d'eficiència energètica preexistent (abans de les intervencions que justifiquen l'estalvi de demanda) realitzat amb el mateix programa reconegut i la mateixa versió, i subscrit per tècnic competent.

 


Contacto con Certicedula
Solicitar Cédula de habitabilidad
Solicitar Certificado energético
Solicitar Oferta cédula de habitabilidad + certificado energético


Contacto con Certicedula
Solicitar Cédula de habitabilidad
Solicitar Certificado energético
Solicitar Oferta cédula de habitabilidad + certificado energético

    Trabaja con nosotros:

    Envia mail a: info@certicedula.com

  • Agència de l'Habitatge de Catalunya

  • Institut Català de l'Energia

  • Col.legi d'Arquitectes de Catalunya

    CERTICEDULA

  • Avda. Catalunya, 10
  • 43700 El Vendrell. Tarragona

  • C/ Lluch, 2-4-6
  • 08016 Barcelona. Barcelona.

  • info@certicedula.com
  • 644 73 16 94

    Nombre Comercial: CERTICEDULA. info@certicedula.com. 644 73 16 94

Requeriments cèdula Habitabilitat








Certificado Energético

Deducción en el IRPF por la mejora energética

Vanessa 2022-09-27


El Gobierno aprobó el pasado año una serie de medidas para impulsar la rehabilitación energética de los edificios. La intención es cumplir con los retos nacionales y las exigencias de la Unión Europea referentes a la Eficiencia Energética.

Estas medidas, que se recogen en el Real Decreto-ley 19/2021, se basan en deducciones en el Impuesto de la Renta para aquellos propietarios que decidan mejorar la Eficiencia Energética de sus viviendas.

¿En qué han de consistir las medidas de mejora energética?

Las mejoras energéticas de las viviendas pueden consistir en la colocación de placas solares fotovoltaicas o en cualquier otro sistema que consiga mejorar la eficiencia energética de la vivienda o reduzca su consumo energético.

¿Cómo se demuestra la mejora energética de una vivienda?

El documento que acredita la mejora de la eficiencia energética de una vivienda es el Certificado Energético. Un técnico competente redactará un Certificado antes de las mejoras y otro Certificado posterior a ellas. Comparando el resultado de ambos Certificados se podrá demostrar y cuantificar la mejora practicada.

El Certificado de Eficiencia Energética realizado antes de las mejoras energéticas solo será válido si no han transcurrido más de dos años entre la expedición del Certificado y el inicio de la realización las mejoras. Esto comporta que una vivienda podrá tener un Certificado Energético en vigor pero que, a efectos de solicitar la deducción en la Renta, solo servirá si se ha expedido en los dos años previos al inicio de las mejoras.

¿Qué tipo de inmuebles podrán beneficiarse de las deducciones?

El propietario de una vivienda podrá aplicar la deducción en la Renta en las siguientes situaciones:

  • Cuando se trate de su vivienda habitual.
  • Cuando se trate de cualquier otra vivienda de su titularidad que tuviera arrendada para uso de vivienda en ese momento.
  • Si el propietario tiene intenciones de poner una vivienda en alquiler y ésta se alquila antes del 31 de diciembre de 2023.

No darán derecho a deducción las obras realizadas en partes de vivienda afectas a actividad económica, plazas de garaje, trasteros, jardines, parques, piscinas, instalaciones deportivas o similares.

¿Cuánto deben realizarse las mejoras para poder ser deducidas?

Para acceder a la deducción, cualquier tipo de mejora energética en el inmueble debe realizarse entre el 6 octubre 2021 hasta 31 diciembre 2022.

En el caso de que las obras de mejora se realicen en un edificio de viviendas, el plazo se amplía hasta el 31 de diciembre de 2023.

El Certificado Energético posterior a las mejoras deberá ser expedido antes del 1 de enero de 2023. En el caso de edificios, el plazo máximo del Certificado Energético será el 1 de enero de 2024.

¿Cuándo se realiza la deducción en la Renta?

Se practicará en el período impositivo en el que se expida el Certificado de Eficiencia Energética emitido después de la realización de las obras.

Cuando el certificado se expida el año siguiente a la realización de las obras de mejora, la deducción se practicará en este último. Por ejemplo, si las obras de mejora se realizaron en 2021 y el certificado energético se realizó en 2022, la deducción se aplicará en la Renta de 2022.

¿Cuál será la cantidad deducida?

La cantidad deducida no será el total del gasto invertido en la mejora, sino un porcentaje que dependerá de varios factores.

Tipos de deducciones

  • Deducción del 20% en el IRPF por la inversión en mejora energética

Tipo de mejora: Reducción de la demanda de calefacción y refrigeración.

Cantidad máxima a deducir: 5.000€ anuales.

Requisito: Se aplicará la deducción si se ha reducido en al menos un 7 por ciento la suma de los indicadores de demanda de calefacción y refrigeración del certificado de eficiencia energética de la vivienda.

  • Deducción del 40% en el IRPF por la inversión en mejora energética

Tipo de mejora: Obras realizadas para la mejora en el consumo de energía primaria no renovable.

Cantidad máxima a deducir: 7500€ anuales.

Requisito: Se aplicará la deducción cuando se reduzca en al menos un 30 por ciento el indicador de consumo de energía primaria no renovable, o bien, se consiga una mejora de la calificación energética de la vivienda para obtener una clase energética «A» o «B»

  • Deducción del 60% en el IRPF por la inversión en mejora energética

Tipo de mejora: Obras de rehabilitación energética realizadas para la mejora en el consumo de energía primaria no renovable de un edificio en su mayoría de viviendas.

Cantidad máxima a deducir: 5000€ anuales. Las cantidades satisfechas no deducidas por exceder de la base máxima anual de deducción podrán deducirse, con el mismo límite, en los cuatro ejercicios siguientes, sin que en ningún caso la base acumulada de la deducción pueda exceder de 15.000 euros.

Requisito: Se aplicará la deducción cuando se reduzca en al menos un 30 por ciento el indicador de consumo de energía primaria no renovable, o bien, se consiga una mejora de la calificación energética de la vivienda para obtener una clase energética «A» o «B»

¿Se podrán aplicar varios tipos de deducciones?

No, el propietario de una vivienda solamente uno de los tres tipos de deducción. Por ejemplo, un propietario ha realizado mejoras energéticas en su vivienda reduciendo por encima de un 7 por ciento los indicadores de calefacción y refrigeración. Además, también ha reducido más de un 30 por ciento el consumo de energía primaria no renovable. En principio, el propietario tiene derecho a las deducciones del 20 por ciento y del 40 por ciento, pero según el decreto, solamente podrá solicitar un de los dos tipos de deducción.

De igual forma, cuando la mejora energética se realiza en un edificio, el consumo de energía primaria no renovable se reduce tanto para el conjunto del edificio como para cada vivienda de forma individual. Cada propietario deberá decidir qué tipo de deducción querrá solicitar, la del 40 por ciento o la del 60 por ciento. Obviamente, cualquier propietario escogerá aquella que le aporte más beneficios.

¿Qué gastos son deducibles?

Son deducibles las obras realizadas y todos aquellos gastos necesarios para su ejecución, incluyendo los honorarios profesionales, costes de redacción de proyectos técnicos, dirección de obras, coste de ejecución de obras o instalaciones, inversión en equipos y materiales y otros gastos necesarios para su desarrollo, así como la emisión de los correspondientes certificados de eficiencia energética.

No se considerarán en dichas cantidades los costes relativos a la instalación o sustitución de equipos que utilicen combustibles de origen fósil.

 


Contacto con Certicedula
Solicitar Cédula de habitabilidad
Solicitar Certificado energético
Solicitar Oferta cédula de habitabilidad + certificado energético


Contacto con Certicedula
Solicitar Cédula de habitabilidad
Solicitar Certificado energético
Solicitar Oferta cédula de habitabilidad + certificado energético

    Trabaja con nosotros:

    Envia mail a: info@certicedula.com

  • Agència de l'Habitatge de Catalunya

  • Institut Català de l'Energia

  • Col.legi d'Arquitectes de Catalunya

    CERTICEDULA

  • Avda. Catalunya, 10
  • 43700 El Vendrell. Tarragona

  • C/ Lluch, 2-4-6
  • 08016 Barcelona. Barcelona.

  • info@certicedula.com
  • 644 73 16 94

    Nombre Comercial: CERTICEDULA. info@certicedula.com. 644 73 16 94

Requeriments cèdula Habitabilitat








Cédula, Certificado, Tarragona

Cèdula d’habitabilitat i certificat energètic a la Costa del Garraf i Tarragona: com obtenir-los ràpidament

Vanessa Abajas 2026-05-09


Si tens un habitatge a la costa catalana, especialment a les poblacions situades entre Vilanova i la Geltrú i Cambrils, és molt probable que en algun moment necessitis tramitar la cèdula d’habitabilitat o el certificat d’eficiència energètica.

Aquests documents són obligatoris en molts tràmits relacionats amb els habitatges, especialment quan es vol vendre o llogar una propietat. A més, també poden ser necessaris per donar d’alta subministraments o per regularitzar la situació administrativa d’un immoble.

A Certicedula oferim un servei àgil i professional per tramitar aquests certificats a diverses poblacions de la costa i de l’interior, especialment a les zones compreses entre Vilanova i la Geltrú, Calafell, El Vendrell, Torredembarra, Tarragona, Salou i Cambrils.


Per què és necessària la cèdula d’habitabilitat?

La cèdula d’habitabilitat és un document oficial que acredita que un habitatge compleix les condicions mínimes perquè pugui ser habitat segons la normativa vigent a Catalunya.

Aquest certificat es basa en la inspecció d’un tècnic qualificat que comprova diversos aspectes de l’habitatge, com ara:

  • La superfície útil mínima
  • Les condicions de ventilació i il·luminació
  • La presència d’instal·lacions bàsiques com cuina i bany
  • Les condicions generals d’habitabilitat

Un cop feta la revisió, es redacta l’informe tècnic i es tramita la cèdula davant l’administració.

Disposar d’una cèdula vigent és imprescindible en situacions com:

  • La venda d’un habitatge
  • El lloguer d’un pis o casa
  • L’alta de determinats subministraments

Cal tenir en compte que aquest document té una validesa limitada, per la qual cosa és habitual haver de renovar-lo quan caduca.


Certificat energètic: obligatori per vendre o llogar

El certificat energètic és un informe que analitza l’eficiència energètica d’un habitatge.

Aquest document avalua el consum d’energia i les emissions associades a l’immoble, i assigna una qualificació energètica que va de la lletra A a la G.

Durant la visita tècnica es revisen diversos factors que influeixen en el consum energètic, com per exemple:

  • El sistema de calefacció o climatització
  • L’aïllament tèrmic de l’habitatge
  • Les característiques de les finestres
  • L’orientació de l’edifici

Un cop elaborat el certificat, es registra oficialment i es genera l’etiqueta energètica, que ha d’aparèixer obligatòriament en qualsevol anunci de venda o lloguer.


Servei de cèdules i certificats energètics entre Vilanova i Cambrils

La nostra activitat se centra especialment en les poblacions de la costa i de l’interior situades entre el Garraf, el Baix Penedès i el Tarragonès.

Realitzem visites tècniques amb freqüència en municipis com:

  • Vilanova i la Geltrú
  • Sitges
  • Cubelles
  • Calafell
  • El Vendrell
  • Roda de Berà
  • Torredembarra
  • Altafulla
  • Tarragona
  • Salou
  • Cambrils

També treballem en altres poblacions de l’interior properes a aquestes zones.

Aquesta presència habitual al territori ens permet organitzar visites amb rapidesa i optimitzar els desplaçaments, oferint així un servei més eficient.


Preu de la cèdula d’habitabilitat i del certificat energètic

Quan es necessita tramitar aquests documents, molts propietaris busquen un servei fiable amb un preu clar.

A Certicedula oferim tarifes transparents amb IVA i taxes incloses, sense costos ocults.

Els nostres preus habituals són:

  • Cèdula d’habitabilitat: 130 €
  • Certificat energètic: 100 €
  • Pack cèdula + certificat energètic: 170 €

Aquest pack és especialment interessant per als propietaris que han de vendre o llogar el seu habitatge, ja que permet obtenir tots dos documents amb una sola visita del tècnic i amb un cost més reduït.


Visita del tècnic ràpida

Un dels factors més importants quan es tramiten aquests certificats és el temps de resposta.

En moltes operacions immobiliàries, disposar dels documents amb rapidesa pot ser clau per tancar una venda o formalitzar un contracte de lloguer.

Per aquest motiu, a Certicedula intentem programar la visita tècnica en un termini aproximat d’un o dos dies.

Durant la visita es prenen les dades necessàries per elaborar els informes i iniciar la tramitació administrativa.

En la majoria dels casos, la documentació es prepara en pocs dies després de la visita.


Qui acostuma a sol·licitar aquests certificats?

Els serveis de cèdula d’habitabilitat i certificat energètic són necessaris en moltes situacions relacionades amb els habitatges.

Els clients que més sovint ens contacten són:

Propietaris que volen vendre el seu habitatge
Per completar la documentació d’una operació de compravenda.

Propietaris que volen posar un immoble de lloguer
Per complir amb la normativa vigent.

Agències immobiliàries
Que necessiten tramitar aquests documents per als seus clients.

Administradors de finques
Que gestionen habitatges o edificis de diversos propietaris.


Professionals qualificats i tramitació completa

Per garantir la validesa dels informes, a Certicedula treballem amb tècnics qualificats i col·legiats.

A més de realitzar la inspecció de l’habitatge, també ens encarreguem de tota la tramitació administrativa, registrant correctament els certificats i assegurant que el procés es realitza segons la normativa vigent.

El nostre objectiu és que els propietaris puguin obtenir aquests documents de manera ràpida i sense complicacions.


Com obtenir la cèdula d’habitabilitat o el certificat energètic

Si tens un habitatge en alguna població entre Vilanova i la Geltrú i Cambrils i necessites tramitar la cèdula d’habitabilitat o el certificat energètic, el procés és molt senzill.

Només cal contactar amb nosaltres per programar la visita del tècnic.

En pocs dies podràs disposar de tota la documentació necessària per vendre, llogar o regularitzar el teu habitatge, amb la garantia d’un servei professional i eficient.


Contacto con Certicedula
Solicitar Cédula de habitabilidad
Solicitar Certificado energético
Solicitar Oferta cédula de habitabilidad + certificado energético

    Trabaja con nosotros:

    Envia mail a: info@certicedula.com

  • Agència de l'Habitatge de Catalunya

  • Institut Català de l'Energia

  • Col.legi d'Arquitectes de Catalunya

    CERTICEDULA

  • Avda. Catalunya, 10
  • 43700 El Vendrell. Tarragona

  • C/ Lluch, 2-4-6
  • 08016 Barcelona. Barcelona.

  • info@certicedula.com
  • 644 73 16 94

    Nombre Comercial: CERTICEDULA. info@certicedula.com. 644 73 16 94

Requeriments cèdula Habitabilitat








Barcelona

Cédula de habitabilidad y certificado energético en Barcelona al mejor precio

Vanessa Abajas 2026-05-09


Si estás pensando en vender o alquilar una vivienda en Barcelona o en las poblaciones cercanas, seguramente ya habrás oído hablar de dos documentos obligatorios: la cédula de habitabilidad y el certificado energético.

Estos informes son necesarios para formalizar muchas operaciones inmobiliarias y, además, garantizan que la vivienda cumple unas condiciones mínimas de habitabilidad y eficiencia energética.

En Certicedula ayudamos a propietarios, inmobiliarias y administradores de fincas a tramitar estos documentos de forma rápida, sencilla y a un precio muy competitivo. Trabajamos principalmente en Barcelona y en las poblaciones situadas hacia el sur del área metropolitana, ofreciendo un servicio profesional y ágil.

En este artículo te explicamos qué son estos certificados, cuándo los necesitas y cómo puedes obtenerlos de forma rápida.


¿Qué es la cédula de habitabilidad?

La cédula de habitabilidad es un documento oficial que certifica que una vivienda cumple las condiciones mínimas para ser habitada según la normativa de Cataluña.

Este documento es emitido por la administración después de que un técnico cualificado inspeccione la vivienda y verifique aspectos como:

  • Superficie mínima de la vivienda
  • Ventilación e iluminación
  • Existencia de cocina y baño
  • Condiciones básicas de salubridad

La cédula es imprescindible en varias situaciones, especialmente cuando se quiere vender o alquilar una vivienda. También puede ser necesaria para dar de alta suministros como agua, luz o gas.

En Cataluña existen diferentes tipos de cédulas, pero en la mayoría de casos los propietarios necesitan renovar la cédula de habitabilidad existente, ya que tiene una validez limitada.


¿Qué es el certificado energético?

El certificado de eficiencia energética es otro documento obligatorio para vender o alquilar una vivienda.

Este informe evalúa el consumo energético del inmueble y su nivel de emisiones, asignando una etiqueta energética que va desde la A (más eficiente) hasta la G (menos eficiente).

Durante la visita, el técnico analiza diferentes elementos de la vivienda:

  • Sistema de calefacción y climatización
  • Aislamiento de paredes y ventanas
  • Orientación del inmueble
  • Instalaciones energéticas

Con estos datos se elabora el certificado y se registra oficialmente, generando la etiqueta energética que debe aparecer en anuncios de venta o alquiler.


¿En qué zonas trabajamos?

En Certicedula trabajamos principalmente en Barcelona y en diversas poblaciones cercanas, especialmente en las zonas situadas hacia el sur de la ciudad.

Realizamos visitas en:

  • Barcelona ciudad
  • Hospitalet de Llobregat
  • Municipios del área metropolitana
  • Pueblos de la costa entre Barcelona y Vilanova i la Geltrú
  • Poblaciones del interior situadas al sur de Barcelona

Esta especialización geográfica nos permite ofrecer visitas rápidas y una gestión muy ágil de los trámites, ya que conocemos bien la zona y trabajamos habitualmente en estas localidades.


Precios claros y competitivos

Uno de los aspectos que más valoran nuestros clientes es que ofrecemos precios cerrados y transparentes, con IVA y tasas incluidos.

Nuestros precios habituales son:

  • Cédula de habitabilidad: 130 €
  • Certificado energético: 100 €
  • Pack cédula + certificado energético: 170 €

Este pack es una opción muy interesante para propietarios que necesitan ambos documentos para vender o alquilar su vivienda, ya que permite ahorrar dinero y realizar una sola visita técnica.


Visita rápida y gestión en pocos días

Sabemos que en muchas operaciones inmobiliarias el tiempo es un factor clave. Por eso trabajamos para que todo el proceso sea rápido y sencillo.

Normalmente el procedimiento es el siguiente:

  1. El cliente contacta con nosotros.
  2. Programamos una visita del técnico en uno o dos días.
  3. El técnico realiza la inspección de la vivienda.
  4. Elaboramos los informes y gestionamos la tramitación.

En la mayoría de casos, la documentación queda preparada en un plazo aproximado de un par de días tras la visita.

Esto permite que nuestros clientes puedan avanzar rápidamente en la venta o alquiler de su vivienda.


¿Quién suele necesitar estos servicios?

A lo largo de los años hemos trabajado con diferentes tipos de clientes, entre los que destacan:

Propietarios que quieren vender su vivienda

Antes de cerrar una operación de venta, es obligatorio disponer del certificado energético y, en muchos casos, de la cédula de habitabilidad actualizada.

Propietarios que quieren alquilar

Para alquilar legalmente una vivienda también es necesario contar con estos documentos.

Inmobiliarias

Muchas agencias inmobiliarias confían en nosotros para gestionar estos trámites de forma rápida cuando preparan un inmueble para su comercialización.

Administradores de fincas

También trabajamos con administradores que necesitan tramitar certificados para comunidades o propietarios.


Un servicio profesional y sin complicaciones

En Certicedula trabajamos con técnicos cualificados y colegiados, lo que garantiza que los informes se realizan conforme a la normativa vigente.

Además, nos encargamos de toda la gestión administrativa, para que el cliente no tenga que preocuparse por los trámites con la administración.

Nuestro objetivo es que obtener estos certificados sea un proceso sencillo, rápido y sin complicaciones.

Entre las ventajas de nuestro servicio destacan:

  • Técnicos profesionales y con experiencia
  • Visitas rápidas
  • Tramitación ágil
  • Gestión completa de los certificados
  • Atención cercana y directa

Cómo solicitar tu cédula de habitabilidad o certificado energético

Si necesitas tramitar la cédula de habitabilidad o el certificado energético en Barcelona o en las poblaciones cercanas, el proceso es muy sencillo.

Solo tienes que contactar con nosotros y programaremos una visita del técnico en el menor tiempo posible.

En pocos días podrás disponer de la documentación necesaria para vender, alquilar o regularizar tu vivienda, con la tranquilidad de haber realizado el trámite de forma correcta.


Contacto con Certicedula
Solicitar Cédula de habitabilidad
Solicitar Certificado energético
Solicitar Oferta cédula de habitabilidad + certificado energético

    Trabaja con nosotros:

    Envia mail a: info@certicedula.com

  • Agència de l'Habitatge de Catalunya

  • Institut Català de l'Energia

  • Col.legi d'Arquitectes de Catalunya

    CERTICEDULA

  • Avda. Catalunya, 10
  • 43700 El Vendrell. Tarragona

  • C/ Lluch, 2-4-6
  • 08016 Barcelona. Barcelona.

  • info@certicedula.com
  • 644 73 16 94

    Nombre Comercial: CERTICEDULA. info@certicedula.com. 644 73 16 94

Requeriments cèdula Habitabilitat








aniversario

Certicedula cumple 10 años: una década haciendo las cosas claras

Vanessa Abajas 2026-02-23


El pasado 14 de febrero, en una fecha que habla de compromiso, en Certicedula celebramos algo muy especial: 10 años acompañando a propietarios en la tramitación de Cédulas de Habitabilidad y Certificados Energéticos en Cataluña.

Una década puede parecer mucho tiempo… pero para nosotros ha pasado volando. Y lo más importante: seguimos con la misma idea con la que empezamos.


Cómo nació Certicedula

Hace diez años detectamos algo muy claro:
No existía ninguna empresa que ofreciera Cédulas de Habitabilidad y Certificados Energéticos en un territorio amplio de Cataluña de forma clara, especializada y transparente.

Y, sobre todo, nadie explicaba bien:

  • Qué incluía el servicio

  • Cuál era el precio desglosado

  • Cómo era el proceso

  • Qué necesitaba el propietario

Decidimos hacer algo diferente.

Queríamos ofrecer:

  • Un servicio rápido

  • Un precio ajustado

  • Información clara y transparente

  • Y una especialización real en estos dos informes

Porque cuando te especializas, trabajas de forma más organizada, optimizas procesos y puedes ofrecer mejores precios sin perder calidad.

Así nació Certicedula.


10 años en cifras

En estos diez años hemos conseguido:

  • ✅ Más de 10.000 informes tramitados

  • ⭐ Una valoración media de 4,9 en reseñas de Google

  • Presencia en Cataluña y colaboradores en otras provincias

  • Un equipo consolidado formado por Jordi Rovira y Vanessa Abajas, junto con colaboradores externos

Cada informe no es solo un trámite: es una vivienda, un propietario y una gestión que debe hacerse bien y sin complicaciones.


Adaptarnos para seguir creciendo

Si hay algo que ha marcado esta década ha sido la adaptación a las nuevas exigencias de l’Agència de l’Habitatge.

Los cambios normativos nunca son sencillos. Requieren estudio, reorganización y actualización constante. Pero también son una oportunidad para mejorar procesos y reforzar la profesionalidad.

Nos hemos adaptado a cada cambio, manteniendo siempre nuestro compromiso:
claridad, buen servicio y precios ajustados.


Lo que nos diferencia

Diez años después, seguimos creyendo que nuestra mayor diferencia es la misma que el primer día:

  • Transparencia total en precios

  • Explicación clara de cada paso

  • Profesionalidad y conocimientos técnicos

  • Servicio cercano

  • Especialización real

No vendemos servicios genéricos. Nos dedicamos a lo que sabemos hacer y lo hacemos con rigor.


Gracias

Nada de esto habría sido posible sin:

  • Nuestros clientes, que han confiado en nosotros durante estos 10 años.

  • Nuestro equipo y colaboradores, que hacen posible que cada trámite salga adelante.

  • Todas las personas que nos han dejado una reseña y han recomendado nuestro trabajo.

Vuestra confianza es nuestro mayor reconocimiento.


Mirando al futuro

El sector de la certificación energética seguirá evolucionando. Nuevas normativas vendrán y las exigencias serán cada vez mayores.

Nuestro objetivo es claro:
seguir adaptándonos, seguir especializándonos y seguir ofreciendo un servicio claro, profesional y accesible.

Porque si algo hemos aprendido en estos diez años es que la confianza se construye con hechos… informe a informe.

Gracias por formar parte de esta historia.
Seguimos. 


Contacto con Certicedula
Solicitar Cédula de habitabilidad
Solicitar Certificado energético
Solicitar Oferta cédula de habitabilidad + certificado energético

    Trabaja con nosotros:

    Envia mail a: info@certicedula.com

  • Agència de l'Habitatge de Catalunya

  • Institut Català de l'Energia

  • Col.legi d'Arquitectes de Catalunya

    CERTICEDULA

  • Avda. Catalunya, 10
  • 43700 El Vendrell. Tarragona

  • C/ Lluch, 2-4-6
  • 08016 Barcelona. Barcelona.

  • info@certicedula.com
  • 644 73 16 94

    Nombre Comercial: CERTICEDULA. info@certicedula.com. 644 73 16 94

Requeriments cèdula Habitabilitat








cedula

Cuando una cédula de habitabilidad se complica: nuestra especialidad

Vanessa Abajas 2025-09-23


Durante muchos años, obtener una cédula de habitabilidad era un trámite relativamente sencillo. Bastaba con una inspección rápida y la presentación de unos pocos documentos. Sin embargo, en el último año la Agència de l’Habitatge de Catalunya ha endurecido los procedimientos y hoy en día el proceso se ha convertido en algo mucho más burocrático y exigente.

El resultado es que muchas solicitudes reciben requerimientos técnicos que no siempre son fáciles de resolver. Arquitectos o aparejadores que solo tramitan cédulas de forma puntual suelen encontrarse con dificultades para responder a estas nuevas exigencias. En algunos casos, incluso el expediente puede quedar bloqueado.


Nuestra experiencia, tu tranquilidad

En Certicedula llevamos miles de expedientes tramitados y conocemos de primera mano cómo trabaja la Administración. Hemos visto de todo: viviendas con medidas que no cuadran, reformas inacabadas, documentación incompleta o requisitos inesperados. Y lo más importante: sabemos cómo dar respuesta a esos requerimientos y desbloquear situaciones complicadas.

Nos hemos especializado en estas “cédulas difíciles”, aquellas que requieren una atención mucho mayor y que ya no se resuelven con un trámite estándar.


Cómo lo hacemos

Para garantizar transparencia y seguridad, hemos definido un procedimiento claro:

  1. Valoración inicial → realizamos una visita y un estudio de viabilidad para determinar si la cédula es posible y qué pasos serían necesarios.

  2. Tramitación completa → si la cédula es viable, nos encargamos de la presentación ante Habitatge y respondemos a todos los requerimientos hasta la obtención del documento final.


Sobre el precio

  • Las cédulas estándar mantienen el coste habitual.

  • En cambio, aquellas que requieren una dedicación extra y una gestión más compleja se presupuestarán de forma diferenciada, en función de la dificultad del caso.

Aviso importante: el precio estándar se aplica únicamente a viviendas que cumplen las condiciones habituales. Si durante la visita se detecta que se trata de un caso complejo, informamos de inmediato al cliente y realizamos una valoración específica antes de continuar. Así, nadie se lleva sorpresas y cada cliente puede decidir con toda la información en la mano.


En resumen

  • Las cédulas de habitabilidad ya no siempre son un trámite simple.

  • Los expedientes complicados necesitan experiencia y dedicación extra.

  • En Certicedula somos especialistas en resolver esos casos y acompañamos al cliente desde el primer diagnóstico hasta la obtención de la cédula final.

Si estás en una situación en la que tu cédula se ha bloqueado o has recibido un requerimiento difícil de resolver, contacta con nosotros: estudiaremos tu caso y te propondremos la mejor solución.


Contacto con Certicedula
Solicitar Cédula de habitabilidad
Solicitar Certificado energético
Solicitar Oferta cédula de habitabilidad + certificado energético

    Trabaja con nosotros:

    Envia mail a: info@certicedula.com

  • Agència de l'Habitatge de Catalunya

  • Institut Català de l'Energia

  • Col.legi d'Arquitectes de Catalunya

    CERTICEDULA

  • Avda. Catalunya, 10
  • 43700 El Vendrell. Tarragona

  • C/ Lluch, 2-4-6
  • 08016 Barcelona. Barcelona.

  • info@certicedula.com
  • 644 73 16 94

    Nombre Comercial: CERTICEDULA. info@certicedula.com. 644 73 16 94

Requeriments cèdula Habitabilitat








certificado energético

En 2030 no se podrán vender ni alquilar viviendas con calificación energética F o G

2025-08-28


 

El mercado inmobiliario en España se enfrenta a un cambio trascendental. A partir del año 2030, las viviendas con calificación energética F o G no podrán venderse ni alquilarse en la Unión Europea. Esta medida, recogida en la Directiva Europea de Eficiencia Energética de los Edificios (EPBD), pretende reducir el consumo energético en el parque residencial y avanzar hacia los objetivos climáticos de neutralidad en carbono.

Pero, ¿qué implica exactamente esta normativa? ¿Qué propietarios se verán afectados? ¿Y qué pasos deben darse para adaptarse? En este artículo te lo explicamos en detalle.


1. ¿Qué significa la normativa de 2030?

La Directiva Europea establece un calendario progresivo de mejoras:

  • En 2030, todas las viviendas deberán alcanzar como mínimo una calificación energética E.

  • En 2033, el mínimo subirá a la letra D.

Esto significa que, si tu inmueble tiene actualmente una calificación F o G, no podrás venderlo ni alquilarlo legalmente a partir de 2030, salvo que realices una rehabilitación que mejore su eficiencia.

La medida se aplicará en todos los países de la Unión Europea y afectará especialmente a España, donde gran parte del parque inmobiliario fue construido antes de que existieran normativas de eficiencia energética.


2. ¿Qué viviendas se verán afectadas?

En España, según datos del Instituto para la Diversificación y Ahorro de la Energía (IDAE), más del 80% de los edificios residenciales tienen una calificación energética baja (E, F o G).

En Cataluña, la situación es similar: gran cantidad de edificios construidos antes de 1980 carecen de aislamiento térmico adecuado, lo que se traduce en un consumo elevado de calefacción y refrigeración.

Los inmuebles más afectados serán:

  • Viviendas antiguas (anteriores a 1980).

  • Edificios sin reformas de aislamiento en fachadas, cubiertas o suelos.

  • Pisos con ventanas de un solo vidrio o carpinterías metálicas sin rotura de puente térmico.

  • Viviendas con sistemas de climatización poco eficientes, como calderas de gasóleo o eléctricas antiguas.

En otras palabras, millones de propietarios deberán actuar para evitar que sus viviendas pierdan valor o queden fuera del mercado en 2030.


3. ¿Qué mejoras serán necesarias para cumplir la normativa?

El camino para pasar de una calificación energética F o G a una E o superior pasa por medidas de rehabilitación energética. Algunas de las más habituales son:

  • Aislamiento térmico: mejorar fachadas, cubiertas y suelos para reducir pérdidas de calor.

  • Sustitución de ventanas: instalación de carpinterías con doble o triple acristalamiento y rotura de puente térmico.

  • Renovación de sistemas de climatización: cambiar calderas de gasóleo por bombas de calor, aerotermia o calderas de condensación más eficientes.

  • Uso de energías renovables: instalación de paneles solares térmicos o fotovoltaicos para autoconsumo.

  • Mejoras en iluminación y electrodomésticos: optar por sistemas de bajo consumo y electrodomésticos clase A.

El coste de estas reformas puede variar, pero es importante destacar que existen subvenciones y ayudas que cubren una parte importante de la inversión.


4. Ayudas y subvenciones disponibles

Uno de los grandes aliados de los propietarios serán los fondos europeos Next Generation, destinados a la rehabilitación energética de edificios.

Entre las principales ayudas disponibles en España y Cataluña destacan:

  • Programa de rehabilitación energética de edificios (PREE): subvenciones para actuaciones de aislamiento, ventanas y sistemas de climatización.

  • Fondos Next Generation: aportaciones que pueden cubrir hasta el 80% del coste en algunos casos, especialmente cuando la mejora es integral en comunidades de vecinos.

  • Deducciones fiscales: reducción en el IRPF por obras que mejoren la calificación energética de la vivienda.

Es recomendable informarse bien y contar con asesoramiento técnico para poder acceder a estas ayudas, ya que los plazos y requisitos varían según la convocatoria.

 


5. ¿Cómo saber la calificación energética de tu vivienda?

La única manera oficial de conocer la calificación energética de un inmueble es a través del Certificado Energético.

Este documento, obligatorio desde 2013 en cualquier compraventa o alquiler, lo emite un técnico acreditado tras analizar el consumo de energía y las emisiones de CO₂ de la vivienda.

El certificado asigna una letra entre la A (máxima eficiencia) y la G (mínima eficiencia), y además incluye un informe con recomendaciones de mejora.

En Certicedula hemos tramitado más de 10.000 certificados en Cataluña. Nuestra experiencia nos permite ofrecer un servicio ágil, con precios claros y sin formularios innecesarios.


6. Beneficios de anticiparse a la normativa

Aunque 2030 pueda parecer lejano, lo más recomendable es no esperar al último momento. Adelantarse a la normativa tiene numerosas ventajas:

  • Revalorizar la vivienda: un inmueble con buena calificación energética se vende más rápido y a mejor precio.

  • Reducir el consumo y la factura energética: una mejora en aislamiento o climatización puede suponer un ahorro de hasta un 60% en energía.

  • Mayor confort: viviendas más frescas en verano y cálidas en invierno.

  • Acceso a ayudas: cuanto antes se actúe, más posibilidades hay de beneficiarse de subvenciones.

  • Evitar sanciones y bloqueos legales: en 2030, si no se cumplen los requisitos, no se podrá formalizar legalmente ni una venta ni un alquiler.


7. Conclusión

La prohibición de vender o alquilar viviendas con calificación energética F o G a partir de 2030 supondrá un antes y un después en el mercado inmobiliario español. Para millones de propietarios será necesario invertir en rehabilitación energética, pero esta inversión no solo evitará problemas legales, sino que también traerá beneficios económicos, medioambientales y de confort.

El primer paso imprescindible es obtener el Certificado Energético para conocer la situación de tu vivienda y planificar las mejoras necesarias.

En Certicedula llevamos más de ocho años ayudando a propietarios en Cataluña con certificados energéticos y cédulas de habitabilidad. Nuestro compromiso es ofrecer un servicio claro, rápido y eficiente, acompañándote en el proceso de adaptación a esta nueva normativa.

Si quieres saber en qué nivel se encuentra tu vivienda y qué opciones tienes para mejorar su eficiencia, contacta con nosotros hoy mismo.


Contacto con Certicedula
Solicitar Cédula de habitabilidad
Solicitar Certificado energético
Solicitar Oferta cédula de habitabilidad + certificado energético

    Trabaja con nosotros:

    Envia mail a: info@certicedula.com

  • Agència de l'Habitatge de Catalunya

  • Institut Català de l'Energia

  • Col.legi d'Arquitectes de Catalunya

    CERTICEDULA

  • Avda. Catalunya, 10
  • 43700 El Vendrell. Tarragona

  • C/ Lluch, 2-4-6
  • 08016 Barcelona. Barcelona.

  • info@certicedula.com
  • 644 73 16 94

    Nombre Comercial: CERTICEDULA. info@certicedula.com. 644 73 16 94

Requeriments cèdula Habitabilitat








Certificado energético

Cómo Mejorar el Certificado de tu Vivienda

Vanessa Abajas 2024-12-18


En esta entrada del blog, exploraremos cómo las características de una vivienda influyen en su certificado energético. Para ello, estudiaremos dos ejemplos: un piso y una casa. Hoy nos centraremos en el piso, y en la siguiente entrada analizaremos dos tipos de casas: adosados y viviendas aisladas.

Utilizaremos como referencia los dos indicadores clave de la etiqueta energética:

  • Consumo de energía (kWh/m² año).
  • Emisiones de CO₂ (kg/m² año).

Cada resultado se clasifica con una letra, desde la A (más eficiente) hasta la G (menos eficiente).

Caso inicial: Piso en Barcelona

Características iniciales del piso:

  • Ubicación: Barcelona.
  • Año de construcción: 1975.
  • Superficie: 70 m².
  • Orientación: 7 m de fachada al sur y 7 m al norte.
  • Contexto: pisos arriba, abajo y a los laterales.
  • Aislamiento: sin aislamiento térmico, ventanas de madera con vidrio sencillo.
  • Instalaciones: ACS (agua caliente sanitaria) con caldera de gas natural, sin calefacción ni aire acondicionado.

Resultado inicial: Consumo: 166 kWh/m², Emisiones: 35 kg/m².

Variaciones en las instalaciones

Cambios en el sistema de ACS

  • Gas natural: Consumo 166, Emisiones 35.
  • Gas butano: Consumo 166, Emisiones 35.
  • Termo eléctrico: Consumo 170, Emisiones 33.

Incorporación de calefacción y refrigeración

  1. Sistemas integrados de ACS y calefacción:

    • ACS y calefacción de gas natural: Consumo 208, Emisiones 44.
    • ACS y calefacción de gas butano: Consumo 209, Emisiones 54.
    • ACS eléctrico y aire acondicionado por splits: Consumo 178, Emisiones 30.
  2. Sistema combinado:

    • ACS de gas natural + aire acondicionado por splits: Consumo 173, Emisiones 32.

Conclusión: La fuente de energía para la calefacción tiene un impacto mayor que el sistema de ACS. La electricidad muestra mejor rendimiento en términos de consumo y emisiones.

Mejoras adicionales

  • ACS gas natural + aire acondicionado por conductos (modernos): Consumo 128, Emisiones 24.
  • Con placas termosolares: Consumo 94, Emisiones 17.

Estas mejoras reducen notablemente el consumo y las emisiones.

Cambios estructurales

Aislamiento térmico

  • Sin aislamiento: Consumo 166, Emisiones 35.
  • Con aislamiento: Consumo 157, Emisiones 33.

Ventanas

  • Vidrio sencillo: Consumo 166, Emisiones 35.
  • Vidrio doble bajo emisivo: Consumo 158, Emisiones 33.

Conclusión: Aunque ayudan, el aislamiento y las ventanas no ofrecen mejoras significativas por sí solas.

Factores incontrolables

Ubicación dentro del edificio

  • Piso intermedio: Consumo 166, Emisiones 35.
  • Ático: Consumo 218, Emisiones 46.
  • Primer piso con local inferior: Consumo 221, Emisiones 47.

Geometría del piso

  • Piso pequeño (35 m²): Consumo 138, Emisiones 29.
  • Piso grande (140 m²): Consumo 95, Emisiones 20.

Conclusión: Los pisos intermedios y de mayor tamaño ofrecen mejores resultados energéticos.

Conclusión final

Los pisos más eficientes son aquellos de gran tamaño, situados en plantas intermedias, con aislamiento térmico, ventanas de calidad, y sistemas de calefacción y refrigeración eficientes, como el aire acondicionado por conductos modernos.


Contacto con Certicedula
Solicitar Cédula de habitabilidad
Solicitar Certificado energético
Solicitar Oferta cédula de habitabilidad + certificado energético

    Trabaja con nosotros:

    Envia mail a: info@certicedula.com

  • Agència de l'Habitatge de Catalunya

  • Institut Català de l'Energia

  • Col.legi d'Arquitectes de Catalunya

    CERTICEDULA

  • Avda. Catalunya, 10
  • 43700 El Vendrell. Tarragona

  • C/ Lluch, 2-4-6
  • 08016 Barcelona. Barcelona.

  • info@certicedula.com
  • 644 73 16 94

    Nombre Comercial: CERTICEDULA. info@certicedula.com. 644 73 16 94

Requeriments cèdula Habitabilitat








cédula habitabilidad

Actualización de precios a partir de enero de 2025

Vanessa Abajas 2024-12-03


En Certicedula, siempre hemos priorizado la calidad, claridad y eficacia en nuestros servicios de gestión de cédulas de habitabilidad y certificados energéticos. Es nuestra manera de asegurar que cada cliente reciba un trato profesional y transparente.

Recientemente, el proceso para obtener una cédula ha cambiado. El organismo responsable ha incrementado los requisitos documentales para garantizar un mayor control y calidad en las solicitudes. Esto implica que ahora debemos aportar informes más completos, con planos, fotografías y datos técnicos muy detallados en ciertos casos.

Estos cambios son una medida para asegurar que todas las solicitudes se realizan de forma rigurosa, algo que compartimos y apoyamos plenamente. No obstante, también suponen un aumento en el trabajo necesario para gestionar cada expediente, lo que nos lleva a ajustar ligeramente nuestros honorarios. Este ajuste se realizará a partir del 1 de enero de 2025.

Queremos agradecer tu comprensión y confianza. Este ajuste nos permite seguir ofreciendo un servicio eficiente y profesional, sin comprometer la calidad que nos caracteriza.

Si tienes cualquier pregunta, no dudes en contactarnos. Estaremos encantados de ayudarte.


Contacto con Certicedula
Solicitar Cédula de habitabilidad
Solicitar Certificado energético
Solicitar Oferta cédula de habitabilidad + certificado energético

    Trabaja con nosotros:

    Envia mail a: info@certicedula.com

  • Agència de l'Habitatge de Catalunya

  • Institut Català de l'Energia

  • Col.legi d'Arquitectes de Catalunya

    CERTICEDULA

  • Avda. Catalunya, 10
  • 43700 El Vendrell. Tarragona

  • C/ Lluch, 2-4-6
  • 08016 Barcelona. Barcelona.

  • info@certicedula.com
  • 644 73 16 94

    Nombre Comercial: CERTICEDULA. info@certicedula.com. 644 73 16 94

Requeriments cèdula Habitabilitat








Certificado energético

Tendencias en Eficiencia Energética para 2024

Vanessa Abajas 2024-10-28


Tendencias en Eficiencia Energética para 2024: Claves para Mejorar el Certificado Energético de tu Hogar

La eficiencia energética es una prioridad en Cataluña, no solo para ahorrar en gastos energéticos sino también para reducir el impacto ambiental. En este artículo, te explicamos las principales tendencias en eficiencia energética para 2024 y cómo puedes implementarlas en tu hogar para mejorar tu calificación energética y hacer de tu vivienda un espacio más sostenible.

1. Aislamiento Térmico de Alta Eficiencia
El aislamiento es uno de los elementos clave en el consumo energético de un edificio. En 2024, los materiales aislantes de última generación están diseñados para proporcionar una mayor resistencia térmica, manteniendo la temperatura interior con menos necesidad de calefacción o aire acondicionado. Algunos de los materiales innovadores incluyen:

- Aislamiento de fibra natural: Materiales como el cáñamo y la lana mineral ofrecen una alternativa sostenible y biodegradable a los aislantes tradicionales.
- Aerogeles: Con un excelente poder aislante, estos materiales, aunque más costosos, son ideales para áreas donde el espacio es limitado.

Instalar o mejorar el aislamiento en las paredes, techos y ventanas puede reducir el consumo de energía hasta un 25%.

2. Tecnología de Iluminación Inteligente
La iluminación inteligente sigue avanzando y se convierte en un aliado clave para reducir el consumo. Las bombillas LED inteligentes no solo tienen un menor consumo, sino que también permiten controlar la intensidad y el color de la luz desde una aplicación móvil o mediante comandos de voz. Este año, se han desarrollado sistemas que ajustan automáticamente la iluminación en función de la luz natural, proporcionando la cantidad exacta de luz según la hora del día y el clima.

Además de una instalación más sencilla, los nuevos sistemas de domótica permiten integrar la iluminación con otros dispositivos, lo que facilita un control eficiente de la energía en toda la casa.

3. Electrodomésticos de Clase Energética Superior
Cada vez más electrodomésticos cuentan con tecnología de eficiencia energética avanzada. En 2024, la innovación está enfocada en los electrodomésticos conectados a la red, que pueden ajustar su consumo energético en función de la demanda de energía, un concepto conocido como “consumo flexible”.

Algunos ejemplos incluyen:

- Lavadoras y lavavajillas que detectan el nivel de carga y ajustan la cantidad de agua y energía necesaria.
- Neveras inteligentes que optimizan la temperatura y pueden ajustar su consumo durante las horas pico para reducir el gasto energético.

Reemplazar los electrodomésticos antiguos con opciones de clase A o superior puede reducir el consumo energético hasta en un 30%.

4. Instalación de Energía Solar con Baterías de Almacenamiento
La energía solar sigue ganando protagonismo, especialmente con las mejoras en baterías de almacenamiento. La energía solar combinada con baterías permite acumular la energía generada durante el día y usarla cuando la demanda es alta o durante la noche, disminuyendo la dependencia de la red y mejorando la eficiencia energética de la vivienda.

Las baterías de litio-ion se están volviendo más asequibles y duraderas, lo que las convierte en una opción viable para viviendas que desean maximizar su autosuficiencia energética. Además, en Cataluña existen subvenciones para la instalación de paneles solares y baterías, lo cual puede reducir la inversión inicial y acelerar el retorno.

5. Calefacción y Aire Acondicionado Eficientes con Bombas de Calor
Las bombas de calor se han vuelto más populares debido a su alta eficiencia en la calefacción y el aire acondicionado. Estas funcionan extrayendo calor del exterior (incluso en climas fríos) y transfiriéndolo al interior de la vivienda, y viceversa. En comparación con los sistemas de calefacción tradicionales, las bombas de calor pueden reducir el consumo energético hasta un 50%.

Este año, las bombas de calor de baja emisión de carbono han mejorado su rendimiento y tienen una vida útil más prolongada, lo cual reduce aún más el impacto ambiental y se ajusta a los criterios para obtener una mejor calificación energética.

6. Ventilación con Recuperación de Calor
Los sistemas de ventilación con recuperación de calor son una tendencia que está ganando terreno en 2024. Estos sistemas permiten que el aire de ventilación conserve parte del calor del interior antes de ser expulsado, haciendo que la casa mantenga mejor la temperatura deseada sin necesidad de un gasto adicional de calefacción o refrigeración.

Este tipo de sistema es especialmente beneficioso en viviendas en zonas frías y en edificios bien aislados, ya que evita la pérdida de energía y mantiene la calidad del aire interior.

7. Medición y Monitoreo Energético en Tiempo Real
Con la domótica cada vez más avanzada, el monitoreo energético en tiempo real es accesible para más personas. Estas herramientas permiten a los propietarios ver cuánta energía están utilizando, en qué momento y en qué dispositivos, lo que facilita la identificación de áreas de mejora.

Aplicaciones móviles y dispositivos inteligentes que muestran el consumo en tiempo real ayudan a los usuarios a optimizar sus hábitos de consumo. Esta práctica no solo reduce el consumo de energía, sino que permite a los propietarios ver de inmediato los ahorros generados al implementar las mejoras en eficiencia energética.

Conclusión: Un Hogar Más Eficiente para un Futuro Sostenible
Implementar estas tendencias en eficiencia energética en tu hogar no solo te ayuda a ahorrar en facturas, sino que también mejora la calificación energética de tu propiedad y contribuye a un entorno más sostenible. En Certicedula, sabemos que la eficiencia energética es una prioridad para muchos propietarios. Te invitamos a consultar nuestros servicios para ayudarte a obtener la mejor calificación energética posible y hacer de tu hogar un lugar más sostenible y confortable.


Contacto con Certicedula
Solicitar Cédula de habitabilidad
Solicitar Certificado energético
Solicitar Oferta cédula de habitabilidad + certificado energético

    Trabaja con nosotros:

    Envia mail a: info@certicedula.com

  • Agència de l'Habitatge de Catalunya

  • Institut Català de l'Energia

  • Col.legi d'Arquitectes de Catalunya

    CERTICEDULA

  • Avda. Catalunya, 10
  • 43700 El Vendrell. Tarragona

  • C/ Lluch, 2-4-6
  • 08016 Barcelona. Barcelona.

  • info@certicedula.com
  • 644 73 16 94

    Nombre Comercial: CERTICEDULA. info@certicedula.com. 644 73 16 94

Requeriments cèdula Habitabilitat








Certicedula

Certicedula alcanza los 10.000 expedientes tramitados: Un hito de éxito y confianza

Vanessa Abajas 2024-09-10


Este verano en Certicedula celebramos un logro muy especial: ¡hemos alcanzado los 10.000 expedientes tramitados desde que comenzamos nuestra andadura el 14 de febrero de 2016! Es un hito que no podríamos haber alcanzado sin el esfuerzo, dedicación y profesionalismo de todo nuestro equipo y colaboradores, y, por supuesto, sin la confianza de nuestros clientes.

A lo largo de estos años, hemos trabajado incansablemente para ofrecer un servicio de calidad en cédulas de habitabilidad y certificados energéticos por casi toda Cataluña. Nos enorgullece decir que nuestra seriedad, puntualidad y el compromiso de entregar cada expediente de forma correcta y en el tiempo acordado, son valores que nuestros clientes reconocen y valoran.

Además, uno de los factores clave de nuestro éxito es la transparencia de nuestra web. A diferencia de otras plataformas que generan confusión con sus precios, en Certicedula todo es claro desde el primer momento: el presupuesto es automático y sin sorpresas. Nuestros clientes no pierden tiempo rellenando formularios innecesarios o haciendo llamadas para saber cuánto les costará el servicio. La eficiencia es nuestra identidad.

Queremos aprovechar esta oportunidad para agradecer sinceramente a todos los colaboradores que han sido parte de este camino, y a nuestros clientes, que continúan confiando en nosotros año tras año.

¡Gracias por formar parte de este viaje! Seguimos comprometidos en ofrecer el mejor servicio posible para todos vosotros.


Contacto con Certicedula
Solicitar Cédula de habitabilidad
Solicitar Certificado energético
Solicitar Oferta cédula de habitabilidad + certificado energético

    Trabaja con nosotros:

    Envia mail a: info@certicedula.com

  • Agència de l'Habitatge de Catalunya

  • Institut Català de l'Energia

  • Col.legi d'Arquitectes de Catalunya

    CERTICEDULA

  • Avda. Catalunya, 10
  • 43700 El Vendrell. Tarragona

  • C/ Lluch, 2-4-6
  • 08016 Barcelona. Barcelona.

  • info@certicedula.com
  • 644 73 16 94

    Nombre Comercial: CERTICEDULA. info@certicedula.com. 644 73 16 94

Requeriments cèdula Habitabilitat








cédula habitabilidad

Cèdula d’Habitabilitat en habitatges rehabilitats

Jordi 2024-07-27


Quan un habitatge ha estat sotmès a una rehabilitació, s’ha d’aplicar una normativa específica segons el tipus d’intervenció. El procediment per demanar la Cèdula d’Habitabilitat en habitatges rehabilitats és diferent dels casos on no hi ha hagut rehabilitació.

 

Què es considera Rehabilitació?

Les condicions mínimes d’habitabilitat dels habitatges i la cèdula d’habilitat queden regulats al Decret 141/2012. L’annex 4 d’aquest decret és el que disposa les condicions d’habitabilitat dels habitatges resultants de rehabilitació o gran rehabilitació.

La definició de Rehabilitació i Gran Rehabilitació la trobem a l’article 3.g i 3.h de la Llei del Dret a l’Habitatge:

3.g) Rehabilitació: el conjunt d'obres de caràcter general que, sense modificar la configuració arquitectònica global d'un edifici d'habitatges o un habitatge, en milloren la qualitat pel que fa a les condicions de seguretat, funcionalitat, accessibilitat i eficiència energètica.

3.h) Gran rehabilitació: el conjunt d'obres que consisteixen en l'enderrocament d'un edifici salvant-ne únicament les façanes o constitueixen una actuació global que afecta l'estructura o l'ús general de l'edifici o l'habitatge rehabilitat.

 

Quins són els tipus de Rehabilitacions i Grans Rehabilitacions?

A l’apartat 1, de l’Annex 4, del Decret 141/2012, es defineixen els diferents tipus de rehabilitacions i grans rehabilitacions, que van de l’A a l‘I.

Grup A: En aquest cas, s’enderroca l’edifici i es mantenen les façanes.

Grup B: Es canvia l’ús de tot l’edifici, creant habitatges nous.  Per exemple, un edifici d’oficines que es converteix en edifici d’habitatges.

Grup C: Es canvia l’ús d’una superfície igual o inferior al 50% de l’edifici, creant habitatges nous. 

Grup D: Es canvia l’ús d’una superfície superior al 50% de l’edifici, creant habitatges nous. 

Grup E: Edifici on s’augmenta el nombre d’habitatges per divisió d’habitatges preexistents. S’ha de donar en la meitat dels habitatges de l’edifici o en menys de la meitat d’ells. Per exemple, quan un pis de grans dimensions es divideix en dos pisos.

Grup F: Edifici on s’augmenta el nombre d’habitatges per divisió d’habitatges preexistents. S’ha de donar en més de la meitat dels habitatges de l’edifici.

Grup G: En aquest cas, s’augmenta el nombre de plantes de l’edifici, donant lloc a habitatges nous.

Grup H: S’augmenta la superfície d’un habitatge existent, sense afectar a l’estructura. Per exemple, es tanca un balcó amb alumini, augmentant la superfície de l’habitatge.

Grup I: S’augmenta la superfície d’un habitatge existent, amb afectació de l’estructura. Pot tractar-se d’un augment de plantes o d’un augment de superfície en planta.

Grup J: Redistribució total de l’interior de l’habitatge sense modificació de la superfície.

 

Quina normativa han de complir?

Compliran el Decret 141/2012, Annex 1.

En alguns dels apartats podem trobar excepcions, que varien segons el grup al qual pertany la rehabilitació.

 

Què implica complir l’Annex 1?

Quan s’ha de complir l’Annex 1 del Decret 141/2012, significa que no estem demanant una Cèdula de Segona ocupació, sinó de Primera Ocupació de Rehabilitació. El procediment, la documentació a presentar i les taxes a pagar, són diferents. En el cas de la Cèdula de Primera Ocupació, s’ha de presentar documentació relativa a l’obra, les taxes són majors i la forma de presentació es fa a través de petició genèrica i no directament al servei de cèdules (molt més àgil). El tràmit, per tant, és molt més complex.

Documentació a presentar en cas de Cèdula de Primera Ocupació de Rehabilitació:

  1. Sol·licitud de Cèdula d’Habitabilitat de Primera Ocupació i de Primera Ocupació de Rehabilitació.

Es tracta d’un document oficial que ha de ser emplenat per un tècnic. Aquest tècnic no té per què coincidir amb el tècnic responsable de l’obra, tot i que acostuma a ser el més habitual.

En aquest document es demana:

  • Dades del sol·licitant: el tècnic que sol·licita la cèdula.
  • Dades del promotor: el propietari de l’habitatge.
  • Dades de la llicència d’obres (número de llicència, data de la sol·licitud, data de la concessió, número de comunicació prèvia a l’ocupació de l’habitatge i data de registre): la dona l’ajuntament.
  • Dades dels tècnics (Número de col·legiació del director de l’obra i número de visat del seu col·legi, número de col·legiació del director de l’execució de l’obra i número de visat del seu col·legi): la faciliten els tècnics responsables de l’obra. 
  • Dades de l’immoble: situació de l’obra.

    2. Comunicació prèvia a l’ocupació de l’habitatge.

Es tracta d’un document que envia l’ajuntament.

    3. Certificat final d’obres i habitabilitat.

Aquest document el realitzen els tècnics de l’obra.

   4. Original de la Relació de les Modificacions del Projecte (C.T.E. Annex II 3.3a).

Aquest document el realitzen els tècnics de l’obra.

   5. Original de la Relació dels Controls d’Obra i Resultats (C.T.E. Annex II 3.3b)

Aquest document el realitzen els tècnics de l’obra.

 

I si les obres s’han realitzat sense llicència ni projecte tècnic?

En principi, les obres realitzades amb una antiguitat superior a 6 anys, sempre que aquesta antiguitat sigui demostrable, es considerarà que qualsevol afectació legal haurà quedat prescrita, i no hauran de complir l’Annex 1, podent-se tramitar com una Cèdula de Segona Ocupació.

Per demostrar l’antiguitat, moltes vegades és suficient consultar l’històric de Google Earth, però en altres situacions s’ha de fer un certificat d’un tècnic acreditant l’antiguitat.

Quan no és demostrable l’antiguitat de la rehabilitació o aquesta s’ha realitzat en els últims 6 anys, el procés es complica. En alguns casos parlem d’obres “importants” realitzades sense llicència, com pujar una planta d’un habitatge. En ocasions més habituals, ens referim a obres on no s’acostuma a demanar llicència, com tancar un balcó amb alumini o enderrocar un envà i convertir una habitació en dues.

Segons el tipus d’intervenció, la solució pot ser diferent. En el cas d’obres que afecten l’estructura de l’edifici o que augmenten la superfície de l’habitatge a causa de la construcció (i no al clàssic tancament d’alumini del safareig), és recomanable la legalització de les obres.

En altres casos de menor importància, com el comentat tancament d’un balcó o la conversió d’un garatge en habitació, si el propietari no vol complicar-se en excés, és millor no comptabilitzar aquesta superfície “nova” de cara a la cèdula.

 

A Certicedula es tramiten Cèdules de Primera Ocupació de Rehabilitació?

No, nosaltres únicament realitzem Cèdules de Segona Ocupació (a més del certificat Energètic).

Quan ens trobem situacions en les quals s’ha de demostrar l’antiguitat a través de documents tècnics, oferim el nostre servei com a arquitectes per fer aquest informe, però el sol·licitant no té cap obligació de realitzar-ho amb nosaltres. És lliure de contractar aquest servei amb qualsevol altre tècnic.


Contacto con Certicedula
Solicitar Cédula de habitabilidad
Solicitar Certificado energético
Solicitar Oferta cédula de habitabilidad + certificado energético

    Trabaja con nosotros:

    Envia mail a: info@certicedula.com

  • Agència de l'Habitatge de Catalunya

  • Institut Català de l'Energia

  • Col.legi d'Arquitectes de Catalunya

    CERTICEDULA

  • Avda. Catalunya, 10
  • 43700 El Vendrell. Tarragona

  • C/ Lluch, 2-4-6
  • 08016 Barcelona. Barcelona.

  • info@certicedula.com
  • 644 73 16 94

    Nombre Comercial: CERTICEDULA. info@certicedula.com. 644 73 16 94

Requeriments cèdula Habitabilitat








cédula habitabilidad

Documentació per demostrar l’antiguitat d‘un habitatge

Vanessa Abajas 2024-03-12


El tècnic inspecciona un habitatge per comprovar que aquest compleix les Normatives d’Habitabilitat que es corresponen a la seva antiguitat. Posteriorment, envia una sol·licitud de Cèdula d’Habitabilitat al Departament d’Habitatge de la Generalitat. Aquesta sol·licitud va acompanyada per un document anomenat “Declaració Responsable d’Antiguitat”. Es tracta d’un document en el que, tal com indica el seu nom, una persona declara l’antiguitat de l’habitatge. Aquesta persona pot ser el propietari, el tècnic que ha fet la sol·licitud de cèdula o altres professionals, com gestors o administradors.

Quan els tècnics del Departament d’Habitatge reben la documentació (sol·licitud complimentada i Declaració responsable), comproven que les dades siguin correctes i, tot seguit, atorguen la cèdula. En algunes ocasions, sorgeixen dubtes sobre les dades que han rebut i envien una Notificació al tècnic demanant documentació extra.

Les Notificacions més habituals que reben els tècnics són:

  • Sol·licitud d’un plànol de l’habitatge acotat i superficiat.
  • Correccions o ampliacions de dades de l’habitatge.
  • Demostració de l’antiguitat d’aquest habitatge.

En aquest últim cas, la Notificació incorpora el següent text:

“D'acord amb l'apartat 3 de l'article 35 de la Llei 26/2010, de 3 d'agost, de règim jurídic i de procediment de les administracions públiques de Catalunya pel qual es faculta  l'administració pública competent a verificar la conformitat de les dades que conté la declaració responsable, cal aportar la documentació expedida davant de fedatari públic sobre la que es fonamenta la declaració responsable presentada en aquest servei en relació a l'antiguitat de l'habitatge.”

 

Expressat amb un llenguatge més entenedor, a la Notificació es demana documentació legal que demostri des de quan aquest immoble és un habitatge. És important no confondre l’any de construcció amb l’any de “creació” de l’habitatge. Per exemple, un local pot tenir una antiguitat de 30 anys, però fa 10 anys es va fer un canvi d’ús a habitatge. La documentació a  aportar seria la de “Canvi d’ús”.

Demostrar l’antiguitat d’un habitatge no sempre és fàcil. L’any que apareix a la Referència Cadastral no és vàlid de cara a Habitatge. Tampoc serveixen les Escriptures o la Nota Simple, si en elles no apareix la data sol·licitada.

Per demostrar la veracitat de la data, hi ha una sèrie de documents admesos pels tècnics de la Generalitat. La següent llista és la que podeu trobar a la web d’Habitatge de la Generalitat:

  • Primera inscripció registral de declaració d'obra nova. S’ha de demanar la Nota Registral Extensa al Registre de la Propietat. En aquest document es reflecteixen totes les inscripcions que s’han fet a la finca en qüestió.
  • Escriptura pública on consti l'ús d'habitatge. Acceptació d'herències.
  • Certificat municipal acreditatiu de l'antiguitat com a ús d'habitatge. S’ha de demanar a l’Ajuntament.
  • Llicència d'obres o Plànols de llicència d'obres. Si el propietari no disposa d’ells, es pot demanar a l’Ajuntament.
  • Plànols visats del projecte d'execució. Si el propietari no disposa d’ells, es pot demanar a l’Ajuntament.
  • Certificat final d'obra visat. Si el propietari no disposa d’ells, és un document molt difícil d’aconseguir.
  • Certificat del cadastre que justifiqui l'any des del qual consta amb l'ús d'habitatge. Es pot trobar a la web de Cadastre.
  • Fotografia aèria de l'institut Cartogràfic de l'any de construcció i fotografia aèria actual (per comprovar que és la mateixa construcció). Vàlid només per unifamiliars. Es pot trobar a la web de l’Institut Cartogràfic.
  • Full de cadastre OVC només per unifamiliars. Es pot trobar a la web de Cadastre.
  • Altres documents expedits davant de fedatari públic.


Contacto con Certicedula
Solicitar Cédula de habitabilidad
Solicitar Certificado energético
Solicitar Oferta cédula de habitabilidad + certificado energético

    Trabaja con nosotros:

    Envia mail a: info@certicedula.com

  • Agència de l'Habitatge de Catalunya

  • Institut Català de l'Energia

  • Col.legi d'Arquitectes de Catalunya

    CERTICEDULA

  • Avda. Catalunya, 10
  • 43700 El Vendrell. Tarragona

  • C/ Lluch, 2-4-6
  • 08016 Barcelona. Barcelona.

  • info@certicedula.com
  • 644 73 16 94

    Nombre Comercial: CERTICEDULA. info@certicedula.com. 644 73 16 94

Requeriments cèdula Habitabilitat








Ecologismo Sostenibilidad

Urbanismo sostenible

Vanessa Abajas 2023-10-11


Actualmente, más del 50% de la población humana vive en zonas urbanas, y la tendencia es que este porcentaje vaya en aumento.

Las áreas urbanas son una de las principales responsables de los problemas medioambientales que amenazan la tierra. Las ciudades contribuyen de forma considerable a la contaminación global y utilizan recursos en exceso. Por lo tanto, es necesario abordar estos problemas desde el mismo diseño de las ciudades.

Un poco de historia

Los primeros indicios documentados de la preocupación por la relación entre el ámbito natural y el artificial aparecen en las primeras ciudades romanas, como la de Timgad en el 100 d.C.

Los planteamientos del urbanista Vitruvio se mantuvieron sin grandes cambios durante dos milenios.

En el siglo XIX, la vida en las ciudades era de extrema insalubridad. La tendencia en aquel entonces era la de incorporar verde a las ciudades. Como ejemplo, el Plan de Reforma y Ensanche de Barcelona (Eixample), del ingeniero Ildefons Cerdà.

Durante la época del Movimiento Moderno, los urbanistas continuaron considerando que la naturaleza tenía la función de proporcionar el bienestar a los habitantes de la ciudad y la incorporaron a los diseños. Un ejemplo es la ciudad de Chandigarh, en la India, diseñada por el arquitecto Le Corbusier.

También se interesaron por el tema del asoleo y la ventilación natural, pero en ningún momento les preocupaba el agotamiento de los recursos.

Durante la década de los 50 y principios de los 60 se investigaron fuentes alternativas a las energías fósiles, como la energía solar, térmica, eólica, de las mareas u otros tipos de energías renovables. La fe en la tecnología no había hecho cambiar el enfoque de que la naturaleza podía ser explotada y utilizada en beneficio humano.

Fue a final de los 60 y principios de los 70, coincidiendo con el movimiento hippy, que comenzó un retorno a lo natural, inspirándose en las culturas orientales que encontraban esencial la armonía con la naturaleza para el bienestar humano.

La crisis del petróleo de los 70 hizo aumentar la preocupación sobre las fuentes energéticas entre los políticos y la sociedad en general. Se empezó a usar masivamente la palabra “ecología” en los medios de comunicación, lo que sirvió para concienciar a la población sobre la fragilidad del planeta Tierra. Paolo Soleri acuñó el término “arcología” (arquitectura+ecología) e inició la construcción de una comunidad solar libre de coches en Arizona (Estados Unidos), inspirándose en la arquitectura local tradicional de ciudades en el desierto.

El auge económico de los años 80 enfrentó el consumismo disparatado, a expensas de la naturaleza, con los ambientalistas, que ya eran bien conocidos (Jaques Cousteau, Greenpeace, la World Wild Life Fund WWL, etc.).

La primera cumbre mundial del medioambiente fue en el año 1992, en Rio de Janeiro, donde se reunieron 172 países. Fue entonces cuando el término “sostenibilidad” se extendió por todo el mundo. El punto de vista por fin cambió: la salud de la naturaleza pasaba a ser considerada como esencial para la humanidad.

A partir de este punto, empezó a considerarse el impacto de las ciudades sobre el entorno natural.

La actualidad

La tecnología ha permitido hacer un uso más racional de las fuentes de energía renovables y no renovables y ha servido para estudiar sistemas más eficientes de reciclaje, el recurso a fuentes alternativas de energía o, incluso, la creación de microclimas.

La definición original de la sostenibilidad de 1987 dice que “el desarrollo sostenible satisface las necesidades de la generación actual, sin comprometer la capacidad de las generaciones futuras para satisfacer las suyas propias”. Para abordar este tema, se define el capital a transferir de generación en generación. Este capital cuenta con tres componentes: el artificial (edificios e infraestructuras), el humano (ciencia y conocimientos), y el natural (aire puro, agua pura, diversidad biológica).

El ecourbanismo define el desarrollo de comunidades humanas sostenibles. Esta nueva disciplina articula las múltiples variables del diseño urbano, propiciando una visión integrada en la que acomoda las actividades humanas en un entorno cada vez más deteriorado.

En la década de los 90 se presentan multitud de proyectos innovadores alrededor del mundo. Los grandes temas que preocupaban a los urbanistas desde entonces son: movilidad, recursos, participación, comunidad, ecoresorts, revitalización y telepueblos.

  • Movilidad

El vehículo privado provoca contaminación y congestión. Las nuevas propuestas dan preferencia al transporte colectivo, la bicicleta y el peatón. Las estrategias se basan en tejidos urbanos compactos con agrupación de usos (trabajo, vivienda, aprendizaje, consumo y ocio situados a poca distancia). El transporte colectivo solamente se justifica con una densidad de población suficientemente alta.

  • Recursos

Los proyectos priorizan la elección de materiales ecológicos y reutilizables o reciclables, hasta llegar a un análisis del ciclo de vida del edificio.

Hasta ahora, los esfuerzos por reducir el consumo energético o para dirigirlo hacia fuentes de energía renovables se habían centrado básicamente en la escala del edificio (ventilación, orientación, aislamiento, paneles solares, etc.) dejando la escala urbana bastante relegada y perdiendo la posibilidad de ahorros energéticos a gran escala.

Los nuevos proyectos intentan optimizar el ciclo del agua y tocan temas como la segregación en aguas negras y grises, recogida y utilización de aguas pluviales, retención de aguas de escorrentía de las tormentas o la reposición del nivel freático.

  • Participación

Los futuros habitantes podrán participar en el diseño de los edificios que habitarán. Pueden llegar a diseñar y construir sus propios hábitats.

  • Comunidad

Los proyectos ponen especial énfasis en la creación de tejidos urbanos que apoyen, fomenten y nutran los lazos sociales, y favorezcan y estimulen la interacción entre las personas. En ellos se presta especial atención a los espacios públicos.

  • Ecoresorts

Urbanizaciones turísticas que tienen en cuenta temas ecológicos.

  • Revitalización

Restauración de zonas urbanas degradadas.

  • Telepueblos

Las nuevas tecnologías de la telecomunicación han permitido nuevos modos de trabajo, educación y ocio no vinculados al desplazamiento físico. Se han desarrollado comunidades enteras en torno a telecentros de nueva creación ubicados fuera de las grandes áreas metropolitanas.


Contacto con Certicedula
Solicitar Cédula de habitabilidad
Solicitar Certificado energético
Solicitar Oferta cédula de habitabilidad + certificado energético

    Trabaja con nosotros:

    Envia mail a: info@certicedula.com

  • Agència de l'Habitatge de Catalunya

  • Institut Català de l'Energia

  • Col.legi d'Arquitectes de Catalunya

    CERTICEDULA

  • Avda. Catalunya, 10
  • 43700 El Vendrell. Tarragona

  • C/ Lluch, 2-4-6
  • 08016 Barcelona. Barcelona.

  • info@certicedula.com
  • 644 73 16 94

    Nombre Comercial: CERTICEDULA. info@certicedula.com. 644 73 16 94

Requeriments cèdula Habitabilitat








cédula habitabilidad

Nou format de Cèdula d'Habitabilitat

Vanessa Abajas 2023-09-28


El document de Cèdula d’Habitabilitat passa a incorporar nous camps relacionats amb la superfície útil dels habitatges o allotjaments amb espais comuns complementaris.

La Resolució TER/3217/2023, de 15 de setembre, per la qual s'aprova el model de cèdula d'habitabilitat, s’ha publicat al DOGC el dia 21 de setembre. La Resolució produeix efectes des del mateix dia de la seva publicació.

 

Els motius de l’ampliació del contingut de la Cèdula serà donar resposta a les noves modalitats d’allotjaments amb espais comuns complementaris, introduïdes pel Decret llei 50/2020 de mesures urgents per estimular la promoció d’habitatge amb protecció oficial i de noves modalitats d’allotjament en règim de lloguer.
 

El  Decret llei 50/2020  estableix la configuració jurídica dels allotjaments amb espais comuns complementaris per donar resposta a la demanda d'habitatge amb elements d'ús compartit i permetre desenvolupar noves fórmules d'habitatge de lloguer.

 

Coliving i Cohousing

Els espais comuns complementaris als quals es refereix el  Decret llei 50/2020   pertanyen a les dues tendències que s’estan imposant són el Coliving i el Cohousing.

Aquestes dues fórmules d’habitatge es basen en la interacció entre l’espai privat i el compartit. Existeixen petites diferències entre les dues:

  • Espai i disseny

Al Coliving hi ha més espais compartits que en un Cohousing per tal d’afavorir la relació entre els habitants. Es tracta d’intercanviar coneixements, aprendre i enriquir-se amb idees i experiències d’altres companys. Al Coliving, els habitants amplien la xarxa de contactes i creen noves oportunitats de negoci.

  • Comoditats

El Coliving compta amb més varietat i qualitat de serveis que el Cohousing, com zones de Coworking, etc.

  • Durada de l’estada

El Coliving està pensat per residents ocasionals i, el Cohousing, per viure de forma permanent.

  • Ubicació

El Coliving és un concepte urbà, mentre que el Cohousing busca més el contacte amb la natura.

  • Habitants

Les comunitats del Coliving son molt específiques, mentre que el Cohousing admet major diversitat d’individus. Al Coliving viuen persones afins i troben serveis a la seva mida. Es crea un ambient propici per a l’emprenedoria, mitjançant l’intercanvi d’idees, coneixements i experiències. Entre els seus habitants trobem professionals liberals i nòmades digitals.

  • Edat

El Coliving acostuma a ser l’estil de joves en la trentena. El Cohousing  és per persones grans o famílies.

  • Gestió

En el model de Cohousing, la comunitat està planejada i gestionada pels mateixos residents.


Contacto con Certicedula
Solicitar Cédula de habitabilidad
Solicitar Certificado energético
Solicitar Oferta cédula de habitabilidad + certificado energético

    Trabaja con nosotros:

    Envia mail a: info@certicedula.com

  • Agència de l'Habitatge de Catalunya

  • Institut Català de l'Energia

  • Col.legi d'Arquitectes de Catalunya

    CERTICEDULA

  • Avda. Catalunya, 10
  • 43700 El Vendrell. Tarragona

  • C/ Lluch, 2-4-6
  • 08016 Barcelona. Barcelona.

  • info@certicedula.com
  • 644 73 16 94

    Nombre Comercial: CERTICEDULA. info@certicedula.com. 644 73 16 94

Requeriments cèdula Habitabilitat








cédula de habitabilidad

L’habitatge del futur i les normatives d’habitabilitat

Vanessa Abajas 2021-01-13


Les tendències d’interiorisme fa temps que ens parlen d’espais oberts i versàtils. La flexibilitat en l’ús ens porta a espais indefinits i intercanviables. El confinament provocat pel Covid ha accelerat aquest procés i ens ha fet reflexionar sobre la forma d’habitar casa nostra. El menjador es pot transformar en un espai de treball, les habitacions en sales d’estar, el despatx en habitació de convidats. Aquests espais que ja no poden ser estàtics tampoc poden estar configurats amb els criteris tradicionals. Els habitatges han de respondre a les necessitats actuals modificant la seva configuració, permetent les transformacions durant el dia o al llarg del temps.

Moda vs. Lleis

La societat avança més ràpid que la burocràcia i les lleis. Parlo de tots els aspectes de la vida, i no només del tema que em pertoca. Ficats en una immersió gairebé absoluta en l’era digital, encara estem amb el papeleo i amb les llargues esperes quan es tracta de l’administració. Sembla que la màxima actual de la immediatesa als buròcrates no els afecta. Las cosas de Palacio van despacio.

Les normatives d’habitabilitat no contemplen encara les demandes de la societat. Continuen encorsetades en la manera de fer del segle passat. Els arquitectes hem de fer un gran esforç per adaptar les demandes dels clients a les normatives de l’habitatge. El client sovint ha de fer un sacrifici i acceptar algunes modificacions per tal que el projecte de casa seva pugui tenir llicència.  

L’Habitatge flexible

L’últim decret d’habitabilitat, del 2012, defineix l’Habitatge flexible:

com l’habitatge concebut de manera que faciliti la seva adaptabilitat a les necessitats canviants dels ocupants i que resti obert a la intervenció dels usuaris en la seva compartimentació. (Decret 141/12, Annex 1 Condicions mínimes d’habitabilitat dels habitatges de nova construcció, Apartat 1, definicions)

Sobre la compartimentació dels espais, ens diu:

3.3.2 La compartimentació de l’habitatge podrà ser concebuda amb criteris de flexibilitat, sempre que es mantinguin inalterables, de conformitat amb el projecte tècnic original: la dotació obligatòria de caràcter fix consistent en l’equip de cuina i les cambres higièniques, els elements que tinguin una funció estructural o siguin elements comuns a l’edifici i els que conformin el tancament amb l’exterior. (Apartat 3 Requisits d’habitabilitat exigibles als habitatges, 3.3 Compartimentació)

Aparentment sembla que l’última llei d’habitabilitat té en compte l’adaptabilitat de l’habitatge. En principi, l’arquitecte podria projectar habitatges on els usuaris puguin adaptar la distribució a les seves necessitats. A l’hora de la veritat, la rígida definició de les estances d’un habitatge no dona marge d’actuació a l’arquitecte i la suposada flexibilitat és molt difícil d’aconseguir.

Aquesta rigidesa es veu reflectida en el document últim de la Cèdula d’Habitabilitat, on, a més de certificar el bon estat de l’habitatge, ens informa de les estances del pis o la casa, definits segons uns paràmetres propis de les distribucions clàssiques, on el concepte de flexibilitat no té cabuda.

Les estances a la Cèdula d’Habitabilitat

El document de la Cèdula d’Habitabilitat especifica el tipus i el nombre de peces d’un habitatge. Les peces poden ser Estar-Menjador (EM), Cuina (C), Habitació (H), Cambra Higiènica (CH), Estar-Menjador-Cuina (EMC) i Altres Peces (AP). Les habitacions es divideixen en funció dels metres quadrats, resultant Habitacions entre 5 i menys de 8 m2, Habitacions entre 8 i menys de 12 m2 i Habitacions de més de 12m2. El nombre d’habitacions de cada tipus dona el llindar màxim d’ocupació, que és el nombre màxim de persones que poden residir en aquest habitatge.

Els diferents decrets d’habitabilitat defineixen les característiques que ha de tenir cada peça. Les estances han de complir uns requisits per poder ser comptabilitzades com a com a un tipus de peça o un altre. Es tracta de criteris físics i no d’us. Per exemple, un espai inferior a 5m2 no es pot comptabilitzar com a Habitació encara que els propietaris li donin aquesta utilitat.

Els decrets d’habitabilitat estan comentats en diferents entrades d’aquest blog.

En un habitatge tradicional acostumem a trobar l’Estar-Menjador, la Cuina, una o dues Cambres Higièniques, Habitacions i Altres Peces, que poden ser el rebedor, passadissos o el safareig.

La Cèdula d’Habitabilitat i els espais flexibles

Imaginem una sala que de nit es transforma en dos dormitoris. O una planta diàfana gran on, a mida que es va necessitant en el temps, es van delimitant estances per crear habitacions. El document de la cèdula no contempla aquestes situacions. En el primer cas, la sala es comptabilitzaria con Estar-Menjador i les dues habitacions no sortirien. En el segon cas, el propietari hauria de fer una cèdula nova cada cop que fes una modificació.

Com perjudica aquest fet als usuaris?

La cèdula compleix la funció de certificar que l’habitatge compleix les normatives d’habitabilitat. Per una banda, l’habitatge ha d’estar en bon estat de conservació. Per l’altre banda, informa del número de persones que poden residir en aquest habitatge.

En moltes situacions el propietari necessita un llindar d’ocupació que sigui alt, com és el cas dels lloguers turístics. Aquesta rigidesa de les normatives pot fer que el nombre resultant d’usuaris sigui inferior al que realment l’habitatge pugui assumir, fet que obliga al propietari a llogar el seu habitatge a grups més reduïts i obtenir un guany inferior.

Si tornem al cas de la planta diàfana que es compartimenta en el temps, el fet d’actualitzar la cèdula amb cada modificació de la distribució suposaria una despesa en tècnics per part del propietari.

Altres idees de futur

Al segle passat s’imaginaven les cases del futur com espais híper-tecnològics. Sembla que es van acostar una mica, ja que la domòtica està força implantada a les nostres llars. També feien prediccions de grans espais oberts i lluminosos (les visions més optimistes). Altres visions més apocalíptiques apostaven per espais diminuts i decadents. Tots han encertat. La societat demana espais amplis, encara que aquests hagin de ser multiús o que s’hagin de sacrificar altres espais secundaris de l’habitatge, i l’economia marca  uns habitatges que cada cop són més reduïts.

Per una banda tenim habitatges ocupats per una o dues persones els quals, en alguns moments puntuals, han de donar cabuda a un nombre superior de persones. Es el cas dels pares divorciats, quan reben als seus fills. També pot ser el cas de les persones que viuen soles i, durant un temps, poden compartir el pis amb una parella, amics o un altre company per necessitats econòmiques.

L’habitatge del futur ha de donar resposta a aquestes necessitats. Un pare divorciat no té perquè tenir un pis tradicional de tres habitacions, on dues d’aquestes estiguin desocupades gairebé tots els dies del mes.

Amb el temps, els habitatges flexibles s’aniran imposant i ho faran més per necessitat econòmica que no pas per modes. Com he comentat abans, la crisi econòmica crònica que patim en aquest país junt amb la tendència del teletreball, ens porta a habitar pisos cada cop més petits on s’han de portar a terme activitats laborals i personals que han d’aprendre a conviure sense fer-se nosa. I l’única forma possible és un disseny interior de l’habitatge que faciliti aquest fet. Diguem-li flexibilitat, adaptabilitat o transformabilitat, i confiem en els tècnics, perquè això Ikea no ho arreglarà. 


Contacto con Certicedula
Solicitar Cédula de habitabilidad
Solicitar Certificado energético
Solicitar Oferta cédula de habitabilidad + certificado energético

    Trabaja con nosotros:

    Envia mail a: info@certicedula.com

  • Agència de l'Habitatge de Catalunya

  • Institut Català de l'Energia

  • Col.legi d'Arquitectes de Catalunya

    CERTICEDULA

  • Avda. Catalunya, 10
  • 43700 El Vendrell. Tarragona

  • C/ Lluch, 2-4-6
  • 08016 Barcelona. Barcelona.

  • info@certicedula.com
  • 644 73 16 94

    Nombre Comercial: CERTICEDULA. info@certicedula.com. 644 73 16 94

Requeriments cèdula Habitabilitat








certificado energético

El tipo de vivienda energéticamente más eficiente

Vanessa Abajas 2020-11-05


La eficiencia energética de una vivienda depende de varios factores. La combinación de todos ellos nos da un resultado que se expresa en letras y en números. Según la Escala de Calificación Energética, las letras van de la A a la G, siendo la A la vivienda más eficiente y la G la peor. Un código de color acompaña las calificaciones emulando un semáforo. La A aparece sobre un fondo verde intenso. La escala va variando la tonalidad hacia amarillo y, después, hacia rojo, a medida que se acerca a la G.

Junto a la Escala de Calificación energética, la Etiqueta energética informa del Consumo de Energía de la vivienda, expresado en kWh/m2, y de las Emisiones, en kg CO2/m2 año.

Factores que favorecen la eficiencia

Para calcular la eficiencia energética de una vivienda se deben tener en cuenta muchos factores. Algunas características tienen más peso que otras, como por ejemplo el sistema de generación de agua caliente sanitaria (ACS) y calefacción, que por si solas pueden elevar de forma considerable la calificación. De la misma manera, una mala orientación o una configuración poco apropiada de la vivienda suelen ser las responsables de una baja calificación.

También existen factores que pueden modificar ligeramente la calificación, como la ubicación de la vivienda, la existencia de aislamiento térmico o el tipo de ventanas.

En esta entrada del blog nos centraremos en cómo la configuración de la vivienda puede ayudar a mejorar la calificación energética y qué tipo de viviendas son las más eficientes.

Las viviendas más eficientes

Por configuración de una vivienda entendemos varías definiciones:

  1. Tamaño de la vivienda
  2. Situación dentro del edificio.
  3. Tipología: piso en un bloque de edificios, casa adosada o casa aislada.

Tamaño

La proporción entre la superficie de las fachadas y la superficie de la vivienda es muy importante a la hora de calcular la eficiencia. Cuanto mayor sea la superficie de fachada respecto a la superficie de vivienda, mayor será intercambio de con el exterior y la eficiencia será peor. Por lo tanto, interesa que una vivienda sea de gran tamaño.

Veamos un ejemplo. La casa A es un cuadrado de 5x5m, siendo su superficie 25m2 y su perímetro de 20m. La casa B es un cuadrado de 8x8m, con 64m2 de superficie y 32m de perímetro de fachada. Suponemos que la altura de la fachada es la misma en ambos casos. La proporción de A es de 20/25=0,8, y la de B es 32/64=0,5. Ambas son cuadrados, pero proporcionalmente, la casa A tiene mayor superficie de contacto con el exterior y funciona peor energéticamente.

La conclusión es que las casas de gran tamaño mantienen mejor la inercia térmica.

En el caso de los pisos, aquellos de gran tamaño son, como norma general, más eficientes. Existen excepciones en las que hay una desproporción en cuanto a la superficie de fachadas, como aquellos pisos distribuidos de forma que muy pocas estancias tienen acceso a fachada o patios, normalmente pisos de edificios antiguos. También puede darse el caso contrario, en el que un piso tenga tanta superficie de fachada que puede equipararse a una casa aislada pero que, al no serlo, se ve perjudicado en cuanto a la calificación.

Situación

En este apartado nos referimos únicamente a los pisos. Estudiamos la situación del piso dentro del conjunto. Dentro de unos valores medios, cuanto mayor es la superficie de la vivienda que está en contacto con el exterior, peor es su calificación.

Normalmente los pisos suelen tener una o dos fachadas al exterior y otra a un patio interior. Aquellos que, además, tienen fachada superior (áticos) o inferior (son una excepción), cuentan con peor calificación energética. Se trata de un hecho conocido por todos: los áticos son pisos más fríos en invierno y más calurosos en verano.

Tipología

Según los apartados anteriores de Tamaño y Situación, la proporción entre la superficie de la vivienda y la superficie de fachada es un factor determinante a la hora de calcular la eficiencia energética.

Las diferentes tipologías edificatorias siguen unos esquemas comunes que responden de la misma forma en cuanto a eficiencia energética.

Las casas aisladas cuentas con cuatro fachadas y la cubierta. En la parte inferior pueden tener garaje, forjado sanitario o solera. En algún punto también pueden tener suelo con contacto con el exterior.

Estas casas pueden ser de una planta o de varias. En cuanto a la proporción de fachada entre suelo, las casas de una planta dan mejor resultado, ya que, a igual superficie de vivienda, la superficie de fachada es menor.

Las casas adosadas cuentan con dos fachadas contrapuestas, lo que asegura la ventilación cruzada. Normalmente son de dos o tres plantas. Igual que las casas aisladas, tienen un techo en contacto con el exterior y un suelo con garaje o sanitario.

En los pisos podemos encontrar situaciones muy variadas. La ventaja de vivir en un edificio de viviendas es la unión de los pisos que actúa mejorando la inercia térmica del conjunto. Se trata del famoso ejemplo del piso en el que no encienden la calefacción en invierno porque todos sus vecinos colindantes la tienen encendida y su piso está bastante caliente.

And the winner is…

Según todos los datos aportados, en cuanto a pisos, aquellos que funcionan mejor energéticamente son los de gran tamaño, que no sean áticos ni estén debajo de las terrazas de los áticos y que cuentes con la proporción habitual de superficie de fachadas.

Para las casas, aquellas más eficientes son las casas adosadas, ya que dos de sus fachadas están protegidas por las casas vecinas.

Entre estas dos soluciones, pisos grandes y casas adosadas, son los adosados los que obtienen las mejores clasificaciones energéticas, al margen de otras características que puedan tener las viviendas.

El típico adosado de unos 5 metros de fachada por 12 de largo, de dos plantas de vivienda, un bajo-cubierta y un garaje en el sótano, es el tipo de vivienda más eficiente, obteniendo casi siempre una calificación D.

 


Contacto con Certicedula
Solicitar Cédula de habitabilidad
Solicitar Certificado energético
Solicitar Oferta cédula de habitabilidad + certificado energético

    Trabaja con nosotros:

    Envia mail a: info@certicedula.com

  • Agència de l'Habitatge de Catalunya

  • Institut Català de l'Energia

  • Col.legi d'Arquitectes de Catalunya

    CERTICEDULA

  • Avda. Catalunya, 10
  • 43700 El Vendrell. Tarragona

  • C/ Lluch, 2-4-6
  • 08016 Barcelona. Barcelona.

  • info@certicedula.com
  • 644 73 16 94

    Nombre Comercial: CERTICEDULA. info@certicedula.com. 644 73 16 94

Requeriments cèdula Habitabilitat








certificado energético

Espacios interiores saludables III

Vanessa Abajas 2020-07-22


En esta tercera y última entrada sobre los espacios interiores saludables, estudiaremos los tipos de contaminantes que pueden aparecer en un espacio habitable.

Los contaminantes pasan de forma inadvertida y afectan a la calidad del ambiente interior y a la salud de las personas.

Encontramos contaminantes químicos, físicos y biológicos.

Contaminantes químicos

Existen tres grandes grupos:

  • COVs o Compuestos Orgánicos Volátiles

Son hidrocarburos en estado gaseoso a temperatura ambiente. Cuando reaccionan con óxido de nitrógeno forman el ozono y contaminan el aire.

Entre los COVs más habituales encontramos el formaldehido, el benceno y la acetona. Son liberados por pinturas, lacas, espumas, plásticos, aromatizantes del aire, aislamientos, melaminas, conglomerados, siliconas, masillas, productos de lavado en seco.

Las vías de acceso al organismo de los COVs son las vías respiratorias, la piel, los ojos y por ingestión.

Pueden producir irritación en los ojos y en las vías respiratorias, astenia, cefaleas y alergias, entre otros síntomas.

La intoxicación por formaldehido se produce por inhalación o penetración cutánea. Produce reacciones de hipersensibilidad que pueden afectar incluso al sistema nervioso.

  • COPs o Compuestos Orgánicos Persistentes

Son compuestos químicos que provocan una gran amenaza para la salud humana y el medio ambiente debido a su persistencia (muy resistentes a la degradación química), la bioacumulación en los tejidos de los seres vivos, su toxicidad y su capacidad de ser transportados a larga distancia lejos de donde se han generado.

Se presentan en moquetas, aislamientos, plásticos, espumas, tejidos, equipos eléctricos.

Pueden ser biocidas (pesticidas, bactericidas, insecticidas y fungicidas, organoclorados, la permitrina, el PCF, el DDT) y plastificantes (presentes en vinilos, PVC).

Entran en el cuerpo por la vía respiratoria, ya que están presentes en el aire y el en polvo doméstico. Son potencialmente cancerígenos y disruptores endocrinos, alterando el sistema hormonal y afectando la reproducción.

  • Fibras y partículas

Se trata de contaminantes dispersos en el aire en forma de polvo o aerosoles. Dependiendo del tamaño, pueden ser más o menos perjudiciales para el organismo. Las partículas PM 10 (hasta 10µm) penetran en el sistema respiratorio hasta los bronquios y causan patologías. Las 2,5 PM penetran hasta los alveolos del pulmón. Las partículas ultrafinas pasan a través de los pulmones y afectan a los órganos y sistemas a los que puedan llegar a través de la sangre.

Uno de los materiales más peligroso es el amianto. A pesar de estar prohibido hoy en día, se puede encontrar en obras de reforma y rehabilitación formando parte de cubiertas, conductos o aislamientos.

 

Contaminantes Físicos

Son generados por diferentes formas de energía (radiaciones, vibraciones, ruido, temperatura) que, de forma prácticamente inadvertida, pueden afectar a la calidad del ambiente interior y a la salud de las personas.

La radiación puede ser ionizante o no ionizante. La radiación ionizante es aquella que tiene suficiente energía para modificar los átomos de la materia sobre la que incide. Se trata de la radioactividad, el gas radón, los rayos X, el escáner, etc. La radiación no ionizante es la formada por los campos electromagnéticos y las radiaciones ópticas.

  • Radioactividad

El núcleo de algunos elementos químicos emite partículas y /o radiaciones para volverse estable. En la construcción, la radioactividad puede estar presente a través del gas radón o de materiales que contengan sustancias radioactivas.

El gas radón solo se detecta con aparatos específicos. Proviene de la desintegración del radio presente en el terreno y entra en los edificios a través del subsuelo y de espacios en contacto con el terreno (muros, soleras y cimientos). El gas radón es la segunda causa de cáncer de pulmón después del tabaco.

La radioactividad forma parte de rocas graníticas y pizarras. También puede estar presente en materiales que contengas fosfatos y silicatos de calcio (hormigón y placas de yeso).

  • Electricidad estática

Está provocada por la acumulación de cargas eléctricas continuas en un objeto que no es capaz de disiparla. Cuando un objeto con un exceso de carga entra en contacto con otro que sea conductor o que esté cargado con la polaridad contraria, puede dar lugar a descargas eléctricas.

Las cargas eléctricas continuas se sitúan en a superficie de los materiales plásticos y de fibras sintéticas, como PVC, moquetas, cortinas, tapicerías, lacas, etc.

Cuando las personas se interponen en estos campos eléctricos pueden verse afectadas. La electricidad estática es una de las patologías más habituales en el Síndrome del Edificio Enfermo.

  • Campo magnético alterno de baja frecuencia

Se origina por el movimiento de cargas eléctricas, producidas a causa de la corriente eléctrica alterna de la instalación de electricidad.

Lo generan los equipos eléctricos y electrónicos del interior de los edificios, y también las redes de distribución de suministro eléctrico cercanas a los edificios.

Las personas expuestas de forma continua a dosis bajas pueden ver su salud alterada.

  • Ionización del ambiente

Se produce cuando la cantidad de iones del aire interior es notablemente inferior a la del aire exterior, y la polaridad de los iones del aire interior es mayoritariamente positiva.

Se encuentra en interiores altamente tecnificados, mal ventilados y con gran presencia de materiales sintéticos. Este tipo de ambientes repercute en el sistema respiratorio, la piel y el sistema nervioso. Se trata de una de las patologías más habituales en el Síndrome del Edificio Enfermo.

  • Campo eléctrico alterno de baja frecuencia

El paso de corriente alterna por el interior de los conductores genera un campo eléctrico a su alrededor. Este campo origina una fuerza que actúa sobre otros objetos también cargados eléctricamente. Este campo desaparece a pocos centímetros de la fuente de emisión.

Se encuentra en conductores de distribución eléctrica, aparatos, enchufes, cajas de distribución, etc.

Los campos eléctricos artificiales interfieren en los campos eléctricos propios de los seres vivos. Puede tener efectos en el sistema cardiovascular, endocrino o nervioso.

  • Campo electromagnético de alta frecuencia

Es un campo físico de ondas que combina fuerzas eléctricas y magnéticas.

En la parte más baja del espectro electromagnéticos se encuentran las emisiones de radio y televisión. En la parte más alta están las redes de telefonía móvil, el WIFI, bluetooth, microondas y comunicadores sin hilos.

Los efectos sobre las personas dependen de la intensidad del campo, la distancia a la fuente de emisión y la intensidad de la misma.

 

Hongos, bacterias y virus

Se trata de microorganismos que se encuentran en espacios con alto contenido de humedad. Si en los espacios interiores se producen grandes concentraciones, el cuerpo humano no las tolera.

Los encontramos en superficies donde hay un grado de humedad elevado, como las condensaciones, puentes térmicos, capilaridades, escapes de agua, etc.

Los hongos y las bacterias, aparte de humedad, necesitan materia orgánica. Pueden estar presentes en baños, cocinas, desagües, filtros de agua, etc.

Aquellos que se reproducen mediante esporas están presentes en el aire y acceden al cuerpo por la vía respiratoria. Los que se reproducen por brotes quedan fijos en la materia orgánica que los alimenta. La vía de entrada al organismo es mediante la ingesta, y afectan el sistema digestivo.


Contacto con Certicedula
Solicitar Cédula de habitabilidad
Solicitar Certificado energético
Solicitar Oferta cédula de habitabilidad + certificado energético

    Trabaja con nosotros:

    Envia mail a: info@certicedula.com

  • Agència de l'Habitatge de Catalunya

  • Institut Català de l'Energia

  • Col.legi d'Arquitectes de Catalunya

    CERTICEDULA

  • Avda. Catalunya, 10
  • 43700 El Vendrell. Tarragona

  • C/ Lluch, 2-4-6
  • 08016 Barcelona. Barcelona.

  • info@certicedula.com
  • 644 73 16 94

    Nombre Comercial: CERTICEDULA. info@certicedula.com. 644 73 16 94

Requeriments cèdula Habitabilitat








certificado energético

Espacios interiores saludables II

Vanessa Abajas 2020-06-29


Seguimos el estudio de los factores ambientales que condicionan la calidad de los espacios interiores y la incidencia que dichos factores tienen en la salud de las personas.

En la primera entrada se trató el confort del usuario. En la actual entrada se repasarán los diferentes elementos constructivos y cómo éstos pueden influir en la calidad del ambiente y en la salud de los usuarios.

Síndrome del Edificio enfermo

La principal patología de los edificios es el Síndrome del edificio enfermo (SEE). La Organización Mundial de la Salud lo ha definido como un conjunto de enfermedades originadas o estimuladas por la contaminación del aire en estos espacios cerrados. Los principales agentes causantes son la mala ventilación, la descompensación de temperaturas, las partículas en suspensión, la mala iluminación, los gases y vapores de origen químico y los bioaerosoles.

Un Edificio Enfermo puede producir a sus usuarios migrañas, náuseas, mareos, resfriados, alergias, irritaciones en vías respiratorias, piel y ojos, etc.

Los factores que contribuyen al síndrome se relacionan con el diseño constructivo y con los materiales utilizados, por lo que un diseño arquitectónico correcto es fundamental.

Materiales y sistemas constructivos para espacios interiores saludables

Los materiales utilizados en paredes, suelos y techos, deberán ser transpirables. Lo más importante es evitar la aparición de condensaciones, ya que degradan los elementos constructivos y favorecen la aparición de hongos y bacterias.

Es importante que el edificio cuente con un forjado sanitario ventilado, que minimiza la incidencia de gas radón que se filtra desde el terreno. Se trata de un gas radioactivo que se filtra en los interiores a través de fisuras y grietas.

En general, un exceso de hermeticidad reduce la transpirabilidad del edificio, lo que puede provocar un incremento del grado de humedad. Para que esto no suceda, se deberá aumentar la ventilación de los espacios, utilizar aislamientos térmicos permeables y sistemas constructivos de fachadas ventiladas.

En las intervenciones en edificios existentes, cuando se coloca aislamiento térmico por el exterior (SATE), el revestimiento exterior de fachada deberá ser permeable.

Materiales de revestimiento

Los materiales de revestimiento constituyen una protección frente a los agentes contaminantes. En cuanto a su composición, deben emitir la mínima cantidad de COVs y COPs, y no deben contener productos plásticos, con tal de que no se carguen eléctricamente. Frente a la humedad y su capacidad para transpirar, deben tener suficiente capacidad higroscópica. Y, por último, también deben permitir la acumulación de calor.

Los materiales que mejor funcionan como revestimiento interior la cal natural, el yeso y la arcilla. Si estos materiales se han producido con pocos aditivos químicos, se limita la emisión de COPs.

  • Madera            

Es importante que haya poca cantidad de cola en la madera de pavimentos y mobiliario. En base a este criterio, las mejores opciones por orden son: tableros de listones, tableros contachapados, tableros OSB, tableros aglomerados, DM y tableros fenólicos.

Para las uniones entre piezas, son preferibles las de tipo geométrico (por ejemplo, encaje dentado) o la cola blanca. Hay que minimizar las colas con presencia de formaldehido u otros agentes químicos.

Los productos protectores de la madera (barnices y pinturas) no deben evitar la transpiración y deben emitir el mínimo de agentes químicos (COPs).

Al tratarse de un material orgánico, sus resinas pueden emitir COVs.

Para garantizar una gestión responsable de la madera, existen dos sellos que certifican su origen. El FSC (Consejo de administración forestal) garantiza al consumidor la conservación de los bosques y diferencia sus productos en el mercado frente a los que proceden de talas no sostenibles. El PEFC (Programa de reconocimiento de la Certificación Forestal) asegura que los bosques del mundo sean gestionados de manera responsable.

 

  • Cerámica, piedra y prefabricados de hormigón (terrazo)

Se debe tener en cuenta que la materia prima con la que se fabrican las piezas sea 100% natural y con un mínimo de aditivos químicos.

Los materiales cerámicos y pétreos no suelen ser atacados por agentes biológicos.

En cuanto al material de la base y las juntas, conviene evitar morteros que contengan altos contenidos de resinas, colas y plastificantes. Es mejor utilizar morteros naturales (cal).

 

  • Sintéticos: vinilos, pvc y plásticos

Estos materiales no son recomendables, ya que incrementan las cargas electroestáticas, la contaminación por COPs en el interior, y no son transpirables, lo que provoca que la humedad no pueda evaporarse.

 

  • Pinturas, barnices y lacas

Se trata de los acabados superficiales que tienen más impacto en la calidad del aire interior.

Se recomiendan las pinturas con las siguientes características:

  • Que minimicen las emisiones de COVs y el contenido de formaldehido
  • Sin acabado plastificado, para reducir la electricidad estática y la ionización del ambiente
  • Pinturas mate antes que brillante, ya que contienen menos COVs
  • Pinturas de poro abierto que permitan la transpiración, reduciendo la aparición de humedades
  • Pinturas de origen natural

 

Instalaciones

El diseño y los materiales de las instalaciones también pueden influir directa o indirectamente en los contaminantes presentes en el ambiente interior.

 

  • Telecomunicaciones

Se tendrán que minimizar los campos electromagnéticos de alta frecuencia. En cuanto a la instalación interior, se han de priorizar las conexiones por cable y minimizar el uso de fuentes internas que generen campos, como microondas, teléfonos móviles, WiFi o Bluetooth.

Para las ondas electromagnéticas de alta frecuencia de origen externo al edificio, como antenas, se deben situar las estancias de uso prolongado lejos de la fuente emisora. Si es necesario, se pueden colocar pantallas para este tipo de radicaciones, tales como persianas y carpintería de aluminio, vidrios bajo emisivos y materiales con mayor densidad.

 

  • Eléctricas

Se tendrán que minimizar los campos electromagnéticos de baja frecuencia.

Se tendrá que realizar una correcta ejecución de la puesta a tierra.

Para el diseño del cableado, se deberá distribuir en árbol, evitando que se aproximen corrientes eléctricas en sentidos opuestos, generando de esta manera campos electromagnéticos.

Es importante alejarse de las estaciones transformadoras y a las líneas de alta tensión.

 

  • Iluminación

En relación a la incidencia en la salud y el bienestar de los usuarios, la luminaria deberá tener una serie de características:

  • La Temperatura de color (Tc) deberá responder a las características del espacio que está iluminando, por ejemplo, Tc neutra para zonas de día como oficinas, Tc cálida para zonas de descanso.
  • El Índice de reproducción cromático de las fuentes de luz ha de ser superior al 90% para evitar el cansancio de la vista.
  • Evitar las lámparas que generen parpadeo, como los fluorescentes, algunos tipos de LED y algunas de bajo consumo, que provocan cansancio en la vista.

 

  • Térmicas (calefacción, refrigeración y ventilación)

Se deben minimizar los contaminantes interiores. Para ello, se tendrán en cuenta los siguientes factores:

  • Se deberá ventilar el edificio, renovando el aire a la vez que se regula la humedad y la ionización del ambiente.
  • Se deberá controlar la humedad interior, evitando espacios excesivamente húmedos que favorezcan la aparición de condensaciones, y también aquellos extremadamente secos, que propicien la ionización del interior.
  • Los sistemas de calefacción por radicación no generan corrientes de aire, por lo que minimizan COVs y COPs.
  • En la entrada de aire exterior se colocarán filtros para evitar la entrada de partículas contaminantes


Contacto con Certicedula
Solicitar Cédula de habitabilidad
Solicitar Certificado energético
Solicitar Oferta cédula de habitabilidad + certificado energético

    Trabaja con nosotros:

    Envia mail a: info@certicedula.com

  • Agència de l'Habitatge de Catalunya

  • Institut Català de l'Energia

  • Col.legi d'Arquitectes de Catalunya

    CERTICEDULA

  • Avda. Catalunya, 10
  • 43700 El Vendrell. Tarragona

  • C/ Lluch, 2-4-6
  • 08016 Barcelona. Barcelona.

  • info@certicedula.com
  • 644 73 16 94

    Nombre Comercial: CERTICEDULA. info@certicedula.com. 644 73 16 94

Requeriments cèdula Habitabilitat








certificado energético

Espacios interiores saludables

Vanessa Abajas 2020-06-09


La sociedad actual empieza a ser consciente de la relación entre la salud y la calidad de los espacios que habita, como los hogares o los lugares de trabajo. La arquitectura juega un papel muy importante en el bienestar de las personas, ya sea para ofrecerles espacios interiores más agradables, como para minimizar los contaminantes de la construcción. El diseño arquitectónico, los sistemas constructivos y la selección de materiales pueden ayudar a obtener interiores más saludables.

A través de una serie de entradas, se realizará una aproximación a los factores ambientales que condicionan la calidad de los espacios interiores y su incidencia en la salud de las personas.

En esta primera entrada se tratará el confort del usuario. En las siguientes entradas, se repasarán los diferentes elementos constructivos y los contaminantes presentes en los materiales de construcción.

El Confort

La comodidad interior depende de una serie de factores, algunos de ellos son cuantificables, pero otros son objetivos y dependen de la percepción del usuario.

Aquí se estudiarán los parámetros que son cuantificables, como el Confort Higrotérmico, la Calidad del aire interior, el Confort visual, el Confort acústico y el Electroclima.

Confort higrotérmico

El confort higrotérmico se define como la sensación de comodidad térmica. Depende de la sensación térmica y del grado de humedad del ambiente interior.

Sensación térmica

La sensación térmica en sí no puede medirse, ya que se trata de una sensación objetiva, pero algunos factores que inciden en ella pueden ser cuantificables, tales como la Temperatura del aire, la Temperatura superficial de las divisiones constructivas y la velocidad del aire.

Gracias a las decisiones arquitectónicas, algunos de los parámetros anteriores pueden ser adaptados según las necesidades. Por ejemplo, a nivel de Temperatura superficial de superficies, algunos materiales, como la madera, cuentan con una alta capacidad de acumulación de calor y ayudan a minimizar los cambios térmicos.

La orientación de la vivienda y las aperturas también en la Temperatura interior y la velocidad del aire puede generar una sensación agradable o desagradable.

Humedad

La humedad interior depende de varios factores, como la ocupación (respiración de las personas), la ventilación de los espacios, el sistema de climatización y los materiales de construcción.

Características de los materiales que inciden en el comportamiento higrotérmico

  • Higroscopicidad

Se trata de la capacidad de un material de absorber la humedad del ambiente cuando hay un exceso y cederla cuando éste se reseca. De esta manera, los materiales higroscópicos pueden ayudar a regular la humedad del ambiente.

  • Permeabilidad al vapor de agua

Propiedad física de los materiales para dejar pasar el vapor de agua. Por ejemplo, la lana mineral es más permeable que el poliestireno expandido.

  • Conductividad térmica

Propiedad física de los materiales que mide su capacidad de conducir calor. De esta manera, los materiales con un coeficiente de conductividad bajo son los que mejor aíslan térmicamente. En este caso, la lana mineral es un buen aislante.

  • Capacidad de acumulación de calor

Las soluciones constructivas con materiales que permiten una mayor acumulación de calor minimizan los cambios térmicos del interior del edificio. La temperatura interior del aire será más estable, ya que parte del calor se almacena en el material en vez de en el aire, y no se pierde calor con la ventilación.

  • Inercia térmica

Los materiales que tienen mucha inercia térmica almacenan energía, la mantienen y se desprenden de ella lentamente, de esta forma se amortiguan las oscilaciones térmicas. Materiales con buena inercia térmica son la tierra, los bloques cerámicos o el corcho.

 

Confort acústico

Los edificios deben aislarse de las fuentes de ruido exterior ubicándose en lugares apropiados, con una correcta geometría y distribución de los espacios, con espacios acústicos intermedios y escogiendo sistemas constructivos que favorezcan el confort.

Los acabados interiores pueden ayudar a mitigar la reverberación o las concentraciones de ruido.

 

Calidad del aire interior

La calidad del aire interior depende de una buena ventilación de los espacios, ya que es la forma de eliminar los agentes contaminantes de los materiales de construcción y de las personas. La ventilación deberá aportar aire exterior en la cantidad suficiente, sin generar corrientes de aire ni un gasto excesivo en climatización.

Para tener aire interior de calidad debemos minimizar las fuentes emisoras de contaminantes, aportar un caudal y una cantidad adecuada de aire exterior, y extraer el aire exterior viciado del interior.

 

Electroclima

Muchas personas son sensibles al equilibrio de las cargas eléctricas del aire. Cuando en un ambiente predominan los iones positivos, se puede producir una sensación de malestar y provocar trastornos orgánicos en los usuarios (dolor de cabeza, fatiga, etc.). Algunos de los factores más relevantes en el desequilibrio iónico son los acabados interiores, las instalaciones eléctricas, las de voz y datos, la baja humedad del ambiente, los sistemas de climatización o una deficiente ventilación.

En apartados posteriores se detallarán aspectos que inciden directamente en las condiciones de electricidad ambiental.

 

Confort visual

La luz que proviene de la radiación solar es la que regula el reloj biológico humano. El tipo de luz y las horas del ciclo noche-día inciden directamente en el comportamiento de las personas y su salud.

El diseño arquitectónico intenta aprovechar al máximo la luz natural. Para ello se basa en la geometría de los espacios, la ubicación de las aperturas o los sistemas para regula la entrada de luz solar, ya sean fijos o móviles.

Cronobiología

La cronobiología es una disciplina de la fisiología que estudia los ritmos biológicos, su origen, sus características y sus implicaciones. Según los estudios, la luz solar marca el buen funcionamiento del sistema hormonal y endocrino., lo que demuestra la importancia de la iluminación en la salud.


Contacto con Certicedula
Solicitar Cédula de habitabilidad
Solicitar Certificado energético
Solicitar Oferta cédula de habitabilidad + certificado energético

    Trabaja con nosotros:

    Envia mail a: info@certicedula.com

  • Agència de l'Habitatge de Catalunya

  • Institut Català de l'Energia

  • Col.legi d'Arquitectes de Catalunya

    CERTICEDULA

  • Avda. Catalunya, 10
  • 43700 El Vendrell. Tarragona

  • C/ Lluch, 2-4-6
  • 08016 Barcelona. Barcelona.

  • info@certicedula.com
  • 644 73 16 94

    Nombre Comercial: CERTICEDULA. info@certicedula.com. 644 73 16 94

Requeriments cèdula Habitabilitat








certificado energético

Passivhaus

Vanessa Abajas 2020-04-28


Una edificación Passivhaus es aquella que ofrece al usuario unas condiciones interiores óptimas de temperatura y calidad del aire, y que, gracias a un diseño que aprovecha los recursos naturales, consume entre un 70 y un 90% menos de energía en calefacción y refrigeración respecto a una edificación tradicional.

Para conseguir esta reducción de la demanda energética, el estándar Passivhaus se basa en 5 principios:

  1. Aislamiento térmico bien dimensionado
  2. Carpintería exterior de alta prestación
  3. Ausencia de puentes térmicos
  4. Hermeticidad del aire
  5. Ventilación mecánica para recuperación del calor

 

Máximo nivel de confort con mínimo gasto de energía

El estándar constructivo Passivhaus, o Casa Pasiva en español, fue creado en 1988 por los profesores Bo Adamson, de la Lund University de Suecia, y Wolfgang Feist, del Instituto de Edificación y Medio Ambiente de Alemania. Hoy, esta palabra sirve además para dar nombre al sistema de estandarización –emitido por el Passivhaus Institut alemán- bajo el que todas las construcciones pasivas del mundo tienen que cumplir una serie de requisitos para ser clasificadas como tal.

 

Requisitos

La casa Passivhaus en el clima mediterráneo tiene que cumplir las siguientes condiciones:

  • Demanda máxima de energía útil para calefacción, 15 kWh/m2año.
  • Demanda máxima de energía útil para refrigeración, 15 kWh/m2año.
  • La envolvente del edificio no debe tener una estanqueidad mayor que 0,6 volúmenes/h (medida con una presión de 50 Pascales).
  • Consumo máximo de energía primaria para calefacción, refrigeración, agua caliente sanitaria (ACS) y electricidad, 60 kWh/m2año.

Para cumplir dichos requerimientos no son necesarios materiales concretos ni estilos edificatorios específicos. Un diseño inteligente, un cuidado correcto de la piel exterior (aislamiento, carpintera, puentes térmicos) y un buen sistema de ventilación, son suficientes para obtener la certificación.

 

Ahorro constructivo y de uso

Los edificios construidos bajo el estándar Passivhaus se basan en la optimización de los recursos existentes a través de técnicas pasivas, tales como el estudio de la forma y la orientación del edificio, la protección solar o un buen diseño interior de espacios que facilite la ventilación cruzada. Estas características de diseño reducen considerablemente el consumo energético del edificio sin necesidad de aumentar el coste de construcción. La poca energía suplementaria que requieren se puede cubrir con facilidad a partir de energías renovables, convirtiéndose en una construcción con un coste energético muy bajo para el propietario y el planeta.

 

Beneficios para la salud

Los edificios Passivhaus cuentan con renovación inteligente de aire, correcta incidencia de la luz solar y construcción con materiales naturales y menos contaminantes que los habituales. Numerosos estudios avalan que este tipo de construcción ayuda a prevenir y reducir enfermedades e infecciones de las vías respiratorias.

 

Ejemplo de vivienda

La siguiente vivienda ha sido diseñada teniendo en cuenta los parámetros Passivhaus.

Se trata de una vivienda unifamiliar entre medianeras situada en El Vendrell (Tarragona) construida en el año 2019. Los arquitectos responsables de la obra son Jordi Rovira Casellas y Vanessa Abajas Hernández, de Abajas-Rovira Arquitectos.

La vivienda se distribuye en cuatro plantas. El garaje se sitúa en la planta sótano. En la planta baja se encuentra la entrada a la vivienda y un salón-comedor-cocina diáfano con acceso al jardín. Las habitaciones y baños se encuentran en planta primera. En planta segunda se sitúa una sala polivalente y dos terrazas. La superficie total destinada a vivienda es de 170m2.

Técnicas pasivas

Al tratarse de una vivienda entre medianeras, únicamente cuenta con dos fachadas.

En la fachada noroeste se sitúa la entrada a la vivienda, la cocina, un baño y un dormitorio.

En la fachada sudeste se sitúan las estancias principales: el salón, la habitación principal y una secundaria. La sala polivalente tiene acceso a las dos fachadas.

Con esta distribución, las estancias principales, en las que se permanece más tiempo, son las más soleadas. Las ventanas y balconeras de estas estancias son de mayor tamaño para captar más luz y calor en invierno y están protegidas con aleros para protegerse de la fuerte radiación en verano. Las aberturas de la fachada noroeste son de menor tamaño para evitar la pérdida de calor en los días fríos.

En planta segunda se optó por cubierta inclinada ventilada sobre forjado horizontal, para proteger la vivienda de una radiación solar más directa y permitir la ventilación de la cubierta.

Aislamiento térmico

Se optó por un aislamiento térmico de poliestireno extruido (XPS). de 8cm de grosor en fachada y 10cm de lana de vidrio (LV) en cubierta, aproximadamente el doble de las construcciones habituales.

En el tabique pluvial se ha colocado aislamiento de 8cm de grosor de poliestireno extruido (XPS).

Carpintería exterior

Las carpinterías utilizadas tienen muy baja transmitancia térmica y las ventanas son de doble vidrio rellenas de un gas inerte.

La cámara de aire es de 22mm, muy superior a la habitual.

El vidrio es bajo emisivo para reflejar el calor al interior de la vivienda en invierno y mantenerlo en el exterior durante el verano.

La carpintería cuenta con rotura de puente térmico.

Ausencia de puentes térmicos

La construcción se ha realizado sin interrumpir el aislamiento térmico en ningún punto. Se ha tenido especial cuidado en todos los encuentros de diferentes materiales, como pilares, cajas de persiana o cubiertas.

Sistema de ACS, calefacción y refrigeración

Se ha optado por un sistema de aerotermia para el agua caliente sanitaria y la climatización. La aerotermia es un sistema de tecnología limpia que extrae la energía del aire. El sistema cuenta con ventilación mecánica con recuperación de calor.

El resultado

La vivienda disfruta todo el año de una temperatura interior estable de 20ºC. Únicamente, en algunos días puntuales en invierno o verano, ha sido necesario un aporte de aire frío o caliente. La calificación energética es una letra A.

El consumo eléctrico medio es de 7kwh por día. Teniendo en cuenta que se trata de una vivienda de 170m2 con tres fachadas (en la actualidad), en la que viven 4 personas y cuya única fuente de energía exterior es la electricidad, el consumo está muy por debajo del habitual. Este consumo se traduce en una factura mensual (con iva y otros impuestos incluidos) de entre 60 y 70€. Este consumo incluye la electricidad para que funcionen los electrodomésticos (inducción y horno incluidos), el alumbrado y el sistema de aerotérmica para agua caliente sanitaria, calefacción y refrigeración.

Y no hay que olvidar que los usuarios disfrutan de unas condiciones atmosféricas ideales en el interior de su vivienda.

Si desea construir una vivienda con estas características y necesita más información, puede contactar con el despacho Abajas-Rovira Arquitectos en el teléfono 675398804 (Jordi Rovira)


Contacto con Certicedula
Solicitar Cédula de habitabilidad
Solicitar Certificado energético
Solicitar Oferta cédula de habitabilidad + certificado energético

    Trabaja con nosotros:

    Envia mail a: info@certicedula.com

  • Agència de l'Habitatge de Catalunya

  • Institut Català de l'Energia

  • Col.legi d'Arquitectes de Catalunya

    CERTICEDULA

  • Avda. Catalunya, 10
  • 43700 El Vendrell. Tarragona

  • C/ Lluch, 2-4-6
  • 08016 Barcelona. Barcelona.

  • info@certicedula.com
  • 644 73 16 94

    Nombre Comercial: CERTICEDULA. info@certicedula.com. 644 73 16 94

Requeriments cèdula Habitabilitat








aislamiento térmico, aislantes construcción

El Aislamiento Térmico en la Construcción

Jordi Rovira 2020-04-19


Cuando hablamos de aislamiento térmico para la arquitectura o para la construcción de edificios nos referimos a todos aquellos materiales y diseños utilizados en la construcción para reducir la transmisión de calor desde el exterior al interior o al revés, producida por la diferencia de temperatura entre el interior y el exterior.

La transmisión de calor en una edificación se produce por la combinación de la conducción, convección y radiación. Las pérdidas o mejoras por transmisión se realiza por techos, ventanas, suelos, paredes y puertas.

Los flujos de calor entre el exterior y el interior producen desaprovechamiento de energía y una reducción del confort térmico de las personas que se ubican en la edificación.

La función del aislamiento térmico es la reducción de esa transmisión de calor con la utilización de materiales como: celulosa, lana de vidrio, lana de roca, poliestireno, perlita, fibras de madera, etc… Los materiales aislantes tienen la capacidad de almacenar aire dentro u otros gases entre sus moléculas, reduciendo así la transmisión del calor, dado que el estado gaseoso es menos conductor que el estado sólido.

El Código Técnico de la Construcción contiene el documento básico DB-HE1​ en el que se recogen las condiciones y los métodos para limitar la demanda energética del edificio y el consumo energético.

Existen muchos material utilizados en la construcción como aislantes. Los más importantes son aquellos que tienen una baja conductividad térmica. Los materiales aislantes para la construcción los podríamos clasificar en:

Aislantes Minerales:  

Se trata de un entrelazado de filamentos de  materiales pétreos que dejan huecos en su interior donde se acumula el aire. Los principales materiales de este tipo son la lana de vidrio y la lana de roca, compuestas a partir de arena silícica y de roca basáltica respectivamente. 

En este enlace se puede consultar la asociación de fabricantes de estos aislantes https://afelma.org/

Se caracterizan por un buen comportamiento térmico y a la vez acústico, por lo que resultan muy versátiles cuando se quiere mejorar el aislamiento general de una vivienda sin entrar en obras específicasy complejas. Son muy manejables, se colocan fácilmente y su coste es moderado. Puedes encontrarlas con alguna de las caras revestida de diferentes materiales para aumentar su resistencia a la humedad, como el papel kraft, o para conseguir una mayor resistencia, como el aluminio, la malla o la lámina de fibra de vidrio. También existen paneles con una cara de laminado de yeso, que facilitan mucho el trabajo al aplicar el acabado final del aislamiento. 

Celulares:  

Son materiales que se conforman en celdas cerradas o abiertas, por lo general formando tableros rígidos o flexibles, aunque también se pueden conformar in situ por proyección o riego. Sus características son; baja densidad, baja capacidad de calentamiento y resistencia a la compresión aceptable. Los más usados son el poliuretano y el poliestireno expandido

Granulares: 

Son pequeñas partículas de materiales inorgánicos aglomeradas en formas prefabricadas o utilizadas sueltas, como la perlita y la vermiculita

Orgánicos: 

Se trata de materiales orgánicos aglomerados, entre los que destaca diversos tipos de planchas de corcho aglomerado. 

CARATERÍSTICAS DE LOS MATERIALES AISLANTES EN LA CONSTRUCCIÓN: 

  • Resistencia térmica: Se expresa en m2.K/W. Es la capacidad de un material de oponerse al flujo del calor y se calcula como la razón entre el espesor del material y la conductividad térmica del mismo. 

  • Propiedades mecánicas: Estabilidad dimensional, resistencia a la compresión, resistencia a la flexión, resistencia a la tracción, rigidez dinámica y resistividad al flujo de aire. 

  • Absorción de agua: Puede expresarse en % de volumen de agua por volumen de material. Puede determinarse a largo plazo, a corto plazo o la transmisión de vapor de agua. 

  • Intervalo de temperaturas: Ver si hay degradación de algún tipo a partir de determinadas temperaturas. 

  • Comportamiento químico: Con el paso del tiempo pueden liberarse algunos compuestos químicos que pueden ser nocivos en algún aspecto. 

  • Estabilidad: Frente al fuego, a los agentes químicos y a los microorganismos. 

  • Reacción al fuego: Es el comportamiento de un material o producto al fuego en función de su contribución al desarrollo del mismo. Se clasifica mediante las Euroclases, que evalúan la combustibilidad del producto, la opacidad de los humos que produce y la caída de gotas o partículas inflamadas. 

  • Datos económicos y medioambientales: Tiempo de vida del material, facilidad de instalación, coste unitario, declaraciones ambientales del producto. 

CARATERÍSTICAS DE LOS PRINCIPALES MATERIALES AISLANTES EN LA CONSTRUCCIÓN: 

Poliestireno expandido (EPS) 

Se trata de un material muy denso, con baja conductividad térmica y que no requiere demasiado grosor para ofrecer una buena resistencia térmica. Por eso es uno de los más empleados para aislar las viviendas: tiene una alta capacidad aislante con una menor cantidad de material empleado. Se encuentra en forma de panel (placa) de diferentes grosores y de gránulos para rellenar huecos. 

Se suela usar en tabiques interiores y en cubiertas, tanto planas como inclinadas, siempre que estén impermeabilizadas. Se coloca pegado a la tabiquería, entre rastreles o en el hueco entre dos tabiques. No es adecuado para suelos. 

Poliestireno extruido (XPS) 

Tiene características similares al poliestireno expandido, con la diferencia de que se puede mojar sin problemas, ya que es muy poco absorbente. Esta capacidad de resistir la humedad, junto a que aguanta pesos sin deformarse y su baja conductividad térmica, lo convierten en el material más usado como aislante de viviendas. El XPS tiene una densidad muy alta, lo que hace que sus placas sean delgadas y ocupen poco espacio. Puedes adquirirlo en forma de panel con los cantos lisos, machihembrados o escalonados para facilitar su colocación. 

Se usa en fachadas, por el interior o por el exterior bajo revoco; en cubiertas, planas (transitables o no) e inclinadas, tanto sobre el forjado como en cubiertas ajardinadas; y en muros de sótanos enterrados. Se coloca de manera similar al expandido. 

Poliuretano (PUR) 

Este material presenta un mejor rendimiento térmico que los anteriores y, aunque también se encuentra en forma de panel, está más generalizado su uso como espuma para proyectar. Se encuentra en espuma de poliuretano expansiva, que actúa como relleno a la vez que mejora el aislamiento, como en forma de planchas rígidas o semirrígidas. 

Se pouede usar en forma de plancha es adecuado para aislar falsos techos y trasdosados de paredes interiores. Como espuma expansiva, en cámara de aire y cualquier grieta, junta o cerco que necesites rellenar. 

Lana de roca o lana mineral (SW) 

Se suele presentar en forma de manta, panel no rígido o rollo compuestos por fibras de roca de origen volcánico, que se obtienen calentando la roca a muy alta temperatura y mezclándola con aglomerantes. También se encuentra en formato de fibras a granel que se aplican en forma de mortero mezcladas con cemento blanco. 

Se us en cubiertas, forjados, fachadas, suelos, falsos techos, buhardillas o tabiques interiores. 

Lana de vidrio (GW) 
Con un formato similar a la lana de roca, este material procede de la fusión de arenas (sílice, carbonato cálcico, magnesio). Como la anterior, es ignífuga, pero es mejor aislante acústico que la lana de roca y resiste mejor la humedad. Si no sabes diferenciar bien estos dos productos, la lana de vidrio suele tener un color amarillento y la de roca, gris. 

Se usa en cubiertas, buhardillas, forjados, fachadas, suelos, falsos techos, tabiques interiores y, en general, en aquellos lugares que no estén sometidos a humedad. 


Contacto con Certicedula
Solicitar Cédula de habitabilidad
Solicitar Certificado energético
Solicitar Oferta cédula de habitabilidad + certificado energético

    Trabaja con nosotros:

    Envia mail a: info@certicedula.com

  • Agència de l'Habitatge de Catalunya

  • Institut Català de l'Energia

  • Col.legi d'Arquitectes de Catalunya

    CERTICEDULA

  • Avda. Catalunya, 10
  • 43700 El Vendrell. Tarragona

  • C/ Lluch, 2-4-6
  • 08016 Barcelona. Barcelona.

  • info@certicedula.com
  • 644 73 16 94

    Nombre Comercial: CERTICEDULA. info@certicedula.com. 644 73 16 94

Requeriments cèdula Habitabilitat








cédula habitabilidad

Normativa aplicable a la Cédula de Habitabilidad (VII)

Vanessa Abajas 2020-04-12


Continuem amb la sèrie d’entrades al blog sobre les normatives aplicables a la cèdula d’habitabilitat segons la data de construcció. A les entrades anteriors vam fer un resum dels sis primers decrets:

  • El Decret 141/12 Annex 2 s’aplica als habitatges construïts abans de l’11 d’agost de 1984.
  • El Decret 346/1983 s’aplica als habitatges construïts entre l’11 d’agost de 1984 i el 17 d’abril de 1996.
  • El Decret 274/1995 del 11 de juliol, que és aplicable als habitatges construïts entre el 18 d’abril de 1996 i el 23 de setembre de 1996.
  • El Decret 314/1996 del 17 de setembre, que és aplicable als habitatges construïts entre el 24 de setembre de 1996  i el 16 de febrer de 1999.
  • El Decret 28/1999  del 9 de febrer, que és aplicable als habitatges construïts entre el 17 de febrer de 1999 i el 29 de desembre del 2003.
  • El Decret 259/2003, del 21 d’octubre, que és aplicable als habitatges construïts entre el 30 de desembre del 2003 i el 8 d’octubre del 2009.

 

 

DECRET 55/2009, DE 7 D’ABRIL

En aquesta entrada veurem el DECRET 55/2009, del 7 d’abril, sobre requisits mínims d’habitabilitat en els edificis d’habitatges. Aquest decret és aplicable als habitatges construïts entre el 9 d’octubre del i el 2 de novembre del 2012.

 

ANNEX 2

Condicions d’habitabilitat en els habitatges usats o preexistents

—1 Composició

Tots els habitatges usats o preexistents han d’estar compostos, com a mínim, per una sala, una cambra higiènica i un equip de cuina, i han de permetre la instal·lació directa d’un equip de rentat de roba.

 

—2 Accés

2.1 L’accés a l’habitatge s’ha de fer a través d’un espai públic, d’un espai comú o d’un espai annex al mateix habitatge al qual es tingui accés de la mateixa manera.

2.2 L’accés a l’habitatge és la porta que comunica l’habitatge amb l’exterior. Aquest accés no pot servir d’accés obligat a qualsevol local que no sigui d’ús exclusiu del mateix habitatge o comunitari.

2.3 Els espais d’accés de l’edifici que el conté han de tenir un sistema elèctric d’il·luminació de manera que quan s’hi transiti puguin quedar il·luminats.

 

—3 Construcció La construcció que conforma o afecta l’habitatge ha de:

      a) Ser sòlida.

      b) Evitar que traspuï humitat.

      c) Ser estanca a les aigües pluvials.

      d) Evitar la inundació de l’habitatge.

      e) Tenir el sòl trepitjable, tant de l’habitatge com del seu accés. El sòl ha d’estar completament pavimentat, no ser polsegós i no implicar perill per a les persones. On hi hagi un desnivell superior a 0,60 m s’haurà de disposar d’elements protectors o baranes resistents als cops.

 

—4 Superfície útil

4.1 La superfície útil mínima dels habitatges usats o preexistents a l’entrada en vigor d’aquest Decret és de 20 m², excepte en el supòsit que preveu la disposició addicional tercera.

4.2 Excepcionalment, s’admeten habitatges amb una superfície útil mínima d’entre 15 m² i 20 m² que hagin estat construïts amb llicència d’obres sol·licitada abans de l’1 de febrer de 1984 i que disposin de cèdula d’habitabilitat vigent obtinguda abans de l’entrada en vigor d’aquest Decret. Aquesta cèdula caducarà en el moment en què es produeixi, per qualsevol títol, la transmissió de la propietat o de la possessió d’aquests habitatges, i no podran tornar a obtenir cèdula d’habitabilitat.

 

—5 Peces

5.1 La sala és un espai d’ús comú que haurà de disposar d’una superfície útil no inferior a 10 m², sense cap estrangulament en planta inferior a 1,40 m, admetre la inscripció d’un quadrat que mesuri 2,40 x 2,40 m i no contenir cap aparell higiènic.

Si conté l’equip de cuina, la superfície útil mínima serà de 14 m².

La sala haurà de disposar d’una apertura en façana a l’espai públic, pati d’illa o pati de parcel·la, directa o a través d’una galeria, de manera que entre 0,80 m i 2,00 m d’alçària tingui, com a mínim, una superfície de 0,80 m², i no podrà fer-se, en cap cas, a través de la sala la ventilació obligatòria de cap altra peça. Si l’apertura és al pati de parcel·la, aquest no tindrà una superfície en planta inferior a 4 m².

5.2 Les habitacions hauran de tenir una superfície útil no inferior a 5 m² i admetre la inscripció d’un quadrat que mesuri en planta 1,80 x 1,80 m. S’hauran de poder independitzar i no podran contenir cap vàter, safareig o abocador, ni l’equip obligatori de cuina o de rentat de roba. Les habitacions hauran de disposar d’una apertura en façana a l’espai públic, pati d’illa o pati de parcel·la, directa o a través d’una galeria, de manera que entre 0,80 m i 2,00 m d’alçària tinguin, com a mínim, una superfície de 0,40 m².

5.3 La galeria és la peça que té un finestral que dona directament a l’aire lliure amb una superfície en alçada no inferior a la superfície en planta de la mateixa galeria.

5.4 Una apertura és una porta o finestra practicable. La superfície d’una apertura és la del seu pas obert o de la seva superfície translúcida.

 

—6 Equip

L’equip mínim del qual ha d’estar dotat un habitatge perquè sigui habitable ha de complir els requisits següents:

6.1 Tenir una instal·lació d’aigua freda i calenta que:

      a) Estigui en bon estat.

      b) Com a mínim, serveixi a la pica de la cuina, a un lavabo i a una dutxa o banyera. 

      c) Si el subministrament és per captació pròpia o per aforament, que disposi d’un dipòsit de reserva de 200 litres.

      d) Permeti un consum seguit de 50 litres d’aigua a una temperatura de 40 graus i amb un cabal de 10 litres per minut.

6.2 Disposar d’un sistema d’evacuació d’aigües residuals de manera que:

      a) Estigui en bon estat.

      b) Connecti amb tot l’equip que el requereixi.

      c) Tots els desguassos tinguin un dispositiu sifònic.

      d) Si en el seu entorn hi ha una xarxa pública de clavegueres, que connecti amb aquesta, i si no n’hi ha, que les aigües brutes no s’aboquin a l’exterior si no es depuren prèviament.

6.3 Si l’habitatge està situat en un nucli urbà, o té la possibilitat d’estar connectat a una xarxa exterior de subministrament d’energia elèctrica amb condicions econòmiques similars a les d’un habitatge situat al nucli urbà, ha de disposar d’una instal·lació interior de manera que:

      a) Tingui un punt de llum amb interruptor independent a cada peça.

      b) Tingui un endoll per a cada aparell d’equip obligatori.

      c) Tingui dos endolls a la sala i a la cuina, i un a les habitacions. En cas que la sala contingui l’equip de cuina, ha de disposar com a mínim de quatre endolls.

      d) No impliqui un risc per a les persones ni pertorbacions en el funcionament normal d’altres instal·lacions.

6.4 Disposar d’un equip higiènic, entès com els aparells higiènics que, amb la dotació d’aigua corrent corresponent i el desguàs, estan destinats a la higiene i l’evacuació del cos humà, de manera que:

      a) Estigui format com a mínim per un lavabo, un vàter i una dutxa en bon estat.

      b) El vàter ha d’estar inclòs en una cambra higiènica independitzable.

      c) La dutxa ha de tenir impermeabilitzat el seu sòl i els seus paraments fins a una alçada de 2,10 m.

      d) La cambra higiènica tingui una ventilació a l’aire lliure directa o a través d’un conducte en el qual s’activi mecànicament la ventilació. Si el conducte és vertical, la ventilació pot ser activada estàticament.

6.5 Tenir instal·lat un equip de cuina de manera que:

      a) Estigui format com a mínim per una pica i un aparell de cocció elèctric o de gas.

      b) Estigui en una mateixa peça.

      c) La peça on estigui inclòs no contingui cap aparell de l’equip higiènic.

      d) La peça on estigui inclòs tingui una ventilació a l’aire lliure directa o a través d’un conducte en el qual s’activi mecànicament la ventilació. Si el conducte és vertical, la ventilació pot ser activada estàticament.

6.6 Tenir instal·lat o admetre directament la instal·lació d’un equip de rentat de roba de manera que en l’espai previst hi hagi, com a mínim, una presa d’aigua freda, un desguàs i una presa de corrent.


Contacto con Certicedula
Solicitar Cédula de habitabilidad
Solicitar Certificado energético
Solicitar Oferta cédula de habitabilidad + certificado energético

    Trabaja con nosotros:

    Envia mail a: info@certicedula.com

  • Agència de l'Habitatge de Catalunya

  • Institut Català de l'Energia

  • Col.legi d'Arquitectes de Catalunya

    CERTICEDULA

  • Avda. Catalunya, 10
  • 43700 El Vendrell. Tarragona

  • C/ Lluch, 2-4-6
  • 08016 Barcelona. Barcelona.

  • info@certicedula.com
  • 644 73 16 94

    Nombre Comercial: CERTICEDULA. info@certicedula.com. 644 73 16 94

Requeriments cèdula Habitabilitat








cédula de habitabilidad

Normativa aplicable a la Cédula de Habitabilidad (VI)

Vanessa Abajas 2020-03-02


Normativa aplicable a la Cédula de Habitabilidad (VI)

Continuem amb la sèrie d’entrades al blog sobre les normatives aplicables a la cèdula d’habitabilitat segons la data de construcció. A les entrades anteriors vam fer un resum dels cinc primers decrets:

  • El Decret 141/12 Annex 2 s’aplica als habitatges construïts abans de l’11 d’agost de 1984.
  • El Decret 346/1983 s’aplica als habitatges construïts entre l’11 d’agost de 1984 i el 17 d’abril de 1996.
  • El Decret 274/1995 del 11 de juliol, que és aplicable als habitatges construïts entre el 18 d’abril de 1996 i el 23 de setembre de 1996.
  • El Decret 314/1996 del 17 de setembre, que és aplicable als habitatges construïts entre el 24 de setembre de 1996  i el 16 de febrer de 1999.
  • El Decret 28/1999  del 9 de febrer, que és aplicable als habitatges construïts entre el 17 de febrer de 1999 i el 29 de desembre del 2003.

DECRET 259/2003, DE 21 D'OCTUBRE

En aquesta entrada veurem el DECRET 259/2003, del 21 d’octubre, sobre requisits mínims d’habitabilitat en els edificis d’habitatges. Aquest decret és aplicable als habitatges construïts entre el 30 de desembre del 2003 i el 8 d’octubre del 2009.

1 Definicions

A efectes del present Decret:

1.1. Un habitatge està compost com a mínim per una sala, una cambra higiénica, un equip de cuina i ha de permetre la instal·lació d’un equip de rentat de roba.

1.2. Peces principals són les sales i habitacions.

1.3. Una peça pot definir-se com a sala quan compleix:

a) Tenir una superfície útil no inferior a 10 m², sense cap estrangulament inferior a 1,40m.

b) Admetre la inscripció d’un quadrat que mesuri en planta 2,40 x 2,40 metres.

c) Disposar d’una obertura a un espai exterior obert o pati d’illa, o pati de parcel·la, directa o a través d’una galeria, de manera que entre 0,80 i 2,00 metres d’alçària tingui, com a mínim, una superfície de 0,80 m². No es pot fer a través de la sala l’obertura a l’exterior o la ventilació obligatòria de cap altra peça.

d) No contenir cap aparell higiènic.

e) Si té una superfície inferior a 16 m², o 14 m 2 en cas d’un habitatge usat, no contenir l’equip obligatori de cuina.

1.4. Una peça pot definir-se com a habitació quan compleix els requisits següents:

a) Tenir 5 o més m² de superfície útil.

b) Admetre la inscripció d’un quadrat que mesuri en planta 1,80 x 1,80 metres.

c) Disposar d’una obertura a espai exterior, pati de parcel·la, pati d’illa, directa o a través d’una galeria, de manera que entre 0,80 i 2,00 metres d’alçària tingui, com a mínim, una superfície de 0,60 m² o 0,20 m², en el cas d’un habitatge usat.

d) No contenir cap aparell higiènic que sigui un wàter, safareig o abocador.

e) No contenir l’equip obligatori de cuina.

f)  Es pot independitzar.

1.5. Una peça pot definir-se com a cambra higiènica quan compleix els requisits següents:

a) Poder-se independitzar.

b) Tenir ventilació a l’aire lliure directa o a través d’un conducte en el qual s’activi mecànicament la ventilació. Si el conducte és vertical, la ventilació pot ser activada estàticament.

c) Que contingui wàter, dutxa o banyera.

1.6. Galeria és la peça que té un finestral que dóna directament a l’aire lliure amb una superfície en alçada no inferior a la superfície en planta de la peça.

1.7. Una obertura és una porta o finestra practicable.

1.8. La superfície d’una obertura és la del seu pas obert o de la seva superfície translúcida.

1.9. Accés de l’habitatge és la porta que comunica l’habitatge amb el seu exterior. Aquest accés no pot servir d’accés obligat a qualsevol local que no sigui d’ús exclusiu del mateix habitatge, o comunitari.

1.10. Superfície útil interior d’un habitatge o d’una peça és la superfície dels seus espais interiors que tenen una alçada no inferior a 1,50 metres. La superfície útil no inclou l’ocupada pels tancaments interns i perimetrals, fixos o mòbils, ni les superfícies de terrasses i altres elements exteriors. Tampoc no inclou l’ocupada pels elements estructurals verticals ni per les canalitzacions o conductes amb una secció superior a 0,01 m². Quan l’habitatge es desenvolupi en més d’una planta, es comptabilitzarà com a superfície útil l’ocupada per l’escala interior.

1.11. La superfície útil de l’habitatge s’expressarà necessàriament separant la part corresponent a la superfície interior de la part que correspon a la superfície d’espais exteriors d’ús privatiu. En tot cas, les superfícies mínimes que es regulen en la present disposició s’han d’entendre referents a la superfície útil interior.

1.12. Aparells higiènics són els que, amb la corresponent dotació d’aigua corrent i desguàs, estan destinats a la higiene i l’evacuació del cos humà.

3. Nivell d’habitabilitat objectiva per habitatge usat

3.1. Accés: els espais d’accés de l’edifici que el conté han de tenir un sistema elèctric d’il·luminació de manera que quan es transiti per ells quedin il·luminats.

3.2 Construcció : La construcció que els conforma o l’afecta ha de:

3.2.1. Ser sòlida.

3.2.2. Evitar que traspuï humitat.

3.2.3. Ser estanca a les aigües pluvials.

3.2.4. Evitar la inundació de l’habitatge.

3.2.5. El sòl trepitjable tant de l’habitatge com del seu accés ha d’estar completament pavimentat, no ser polsegós i no implicar perill a les persones.

3.3. Dimensions.

3.3.1. La seva superfície útil ha de ser com a mínim de 20 m².

3.3.2. L’altura lliure sobre la superfície útil ha de tenir com a mínim un valor mitjà de 2,20 metres. En cas de cambres higièniques, cuines, distribuïdors i rebedors, será de 2,10m.

3.4. Equip.

3.4.1. Tenir una instal·lació d’aigua freda i calenta que:

3.4.1.1. Estigui en bon estat.

3.4.1.2. Connecti com a mínim amb pica de la cuina, lavabo i dutxa o banyera.

3.4.1.3. Si el subministrament és per captació pròpia o per aforament, disposi d’un dipòsit de reserva de 200 litres.

3.4.1.4 Permeti un consum seguitde 50 l d’aigua a una temperatura de 40 graus i un cabal seguit de 10 litres per minut.

3.4.2. Disposar d’un sistema d’evacuació d’aigües residuals de manera que:

3.4.2.1. Estigui en bon estat.

3.4.2.2. Connecti amb tot l’equip que el requereixi.

3.4.2.3. Tots els desguassos tinguin un dispositiu sifònic.

3.4.2.4. Si en el seu entorn hi ha una xarxa pública de clavegueres, connecti amb aquesta, i si no n’hi ha, les aigües brutes no s’aboquin a l’exterior si no es depuren prèviament.

3.4.3. Si l’habitatge està situat en un nucli urbà, o té la possibilitat d’estar connectat a una xarxa exterior de subministrament d’energia elèctrica amb condicions econòmiques similars a les d’un habitatge situat al nucli urbà, ha de disposar d’una instal·lació elèctrica interior de manera que:

a) Tingui un punt de llum amb interruptor independent a cada peça.

b) Tingui un endoll per a cada aparell d’equip obligatori.

c) Tingui dos endolls a la sala i un a les habitacions i a la peça que contingui l’equip de cuina.

d) Ni impliqui un risc a les persones ni pertorbacions en el normal funcionament d’altres instal·lacions.

3.4.4. Disposar d’un equip higiènic de manera que:

3.4.4.1. Estigui format com a mínim per un lavabo, un wàter i una dutxa en bon estat.

3.4.4.2. El wàter ha d’estar inclòs en una cambra higiènica.

3.4.4.3. La dutxa ha de tenir impermeabilitzat el seu sòl i els seus paraments fins a una alçada d’1,50 metres.

3.4.5. Tenir instal·lat o admetre directament la instal·lació d’un equip de cuina de manera que:

3.4.5.1. Estigui format com a mínim per un pica i un aparell de cocció elèctric o a gas.

3.4.5.2. Estigui en una mateixa peça.

3.4.5.3. La peça on estigui inclòs no disposi de cap aparell higiènic excepte el safareig.

3.4.5.4. La peça on estigui inclòs tingui una ventilació a l’aire lliure directa o a través d’un conducte en el qual s’activi mecànicament la ventilació. Si el conducte és vertical, la ventilació pot ser activada estàticament.


Contacto con Certicedula
Solicitar Cédula de habitabilidad
Solicitar Certificado energético
Solicitar Oferta cédula de habitabilidad + certificado energético

    Trabaja con nosotros:

    Envia mail a: info@certicedula.com

  • Agència de l'Habitatge de Catalunya

  • Institut Català de l'Energia

  • Col.legi d'Arquitectes de Catalunya

    CERTICEDULA

  • Avda. Catalunya, 10
  • 43700 El Vendrell. Tarragona

  • C/ Lluch, 2-4-6
  • 08016 Barcelona. Barcelona.

  • info@certicedula.com
  • 644 73 16 94

    Nombre Comercial: CERTICEDULA. info@certicedula.com. 644 73 16 94

Requeriments cèdula Habitabilitat








cédula habitabilidad

Normativa aplicable a la Cédula de Habitabilidad (V)

Vanessa Abajas 2020-01-16


Continuem amb la sèrie d’entrades al blog sobre les normatives aplicables a la cèdula d’habitabilitat segons la data de construcció. A les entrades anteriors vam fer un resum dels tres primers decrets.

  • El Decret 141/12 Annex 2 s’aplica als habitatges construïts abans de l’11 d’agost de 1984.
  • El Decret 346/1983 s’aplica als habitatges construïts entre l’11 d’agost de 1984 i el 17 d’abril de 1996.
  • El Decret 274/1995 del 11 de juliol, que és aplicable als habitatges construïts entre el 18 d’abril de 1996 i el 23 de setembre de 1996.
  • El Decret 314/1996 del 17 de setembre, que és aplicable als habitatges construïts entre el 24 de setembre de 1996  i el 16 de febrer de 1999.

En aquesta entrada veurem el DECRET 28/1999, de 9 de febrer, sobre requisits mínims d’habitabilitat en els edificis d’habitatges. Aquest decret és aplicable als habitatges construïts entre el 17 de febrer de 1999 i el 29 de desembre del 2003.

DECRET 28/1999, apartat 1 i 2

1 Definicions

A efectes del present Decret:

1.1. Un habitatge és complet quan està compost com a mínim per una sala, una o més habitacions i una cambra higiènica.

1.2. Un habitatge és reduït quan està compost com a mínim per una sala i una cambra higiènica, i no conté cap habitació.

1.3. Peces principals són les sales i habitacions.

1.4. Una peça pot definir-se com a sala quan compleix:

a) Tenir una superfície útil no inferior a 12 m², sense cap estrangulament inferior a 1,40 m, en cas d’un habitatge de nova construcció. En el cas d’un habitatge usat, tenir una superfície útil no inferior a 10 m 2.

b) Admetre la inscripció d’un quadrat que mesuri en planta 2,40 x 2,40 metres.

c) Disposar d’una obertura a un espai exterior obert o pati d’illa, o pati de parcel·la, directa o a través d’una galeria, de manera que entre 0,80 i 1,80 metres d’alçària tingui, com a mínim, una superfície de 0,80 m². No es pot fer a través de la sala l’obertura a l’exterior o la ventilació obligatòria de cap altra peça.

d) No contenir cap aparell higiènic.

e) Si té una superfície inferior a 16 m², o 14 m 2 en cas d’un habitatge usat, no contenir l’equip obligatori de cuina.

1.5. Una peça pot definir-se com a habitació quan compleix els requisits següents:

a) Tenir 6 o més m² de superfície útil. En el cas d’un habitatge usat, tenir 5 o més m 2 de superfície útil.

b) Admetre la inscripció d’un quadrat que mesuri en planta 1,90 x 1,90 metres. En el cas d’un habitatge usat admetre la inscripció d’un quadrat que mesuri en planta 1,80 x 1,80 metres.

c) Disposar d’una obertura a espai exterior, pati de parcel·la, pati d’illa, directa o a través d’una galeria, de manera que entre 0,80 i 1,80 metres d’alçària tingui, com a mínim, una superfície de 0,40 m² o 0,20 m 2, en el cas d’un habitatge usat.

d) No contenir cap aparell higiènic que sigui un wàter, safareig o abocador.

e) No contenir l’equip obligatori de cuina.

f) Es pot independitzar.

1.6. Una peça pot definir-se com a cambra higiènica quan compleix els requisits següents:

a) Poder-se independitzar.

b) Tenir ventilació a l’aire lliure directa o a través d’un conducte en el qual s’activi mecànicament la ventilació. Si el conducte és vertical, la ventilació pot ser activada estàticament.

c) Que contingui wàter, dutxa o banyera.

1.7. Galeria és la peça que té un finestral que dóna directament a l’aire lliure amb una superfície en alçada no inferior a la superfície en planta de la peça.

1.8. Una obertura és una porta o finestra practicable.

1.9. La superfície d’una obertura és la del seu pas obert o de la seva superfície translúcida.

1.10. Accés de l’habitatge és la porta que comunica l’habitatge amb el seu exterior. Aquest accés no pot servir d’accés obligat a qualsevol local que no sigui d’ús exclusiu del mateix habitatge, o comunitari.

1.11. Superfície útil interior d’un habitatge o d’una peça és la superfície dels seus espais interiors que tenen una alçada no inferior a 1,50 metres. La superfície útil no inclou l’ocupada pels tancaments interns i perimetrals, fixos o mòbils, ni les superfícies de terrasses i altres elements exteriors. Tampoc no inclou l’ocupada pels elements estructurals verticals ni per les canalitzacions o conductes amb una secció superior a 0,01 m². Quan l’habitatge es desenvolupi en més d’una planta, es comptabilitzarà com a superfície útil l’ocupada per l’escala interior.

1.12. La superfície útil de l’habitatge s’expressarà necessàriament separant la part corresponent a la superfície interior de la part que correspon a la superfície d’espais exteriors d’ús privatiu. En tot cas, les superfícies mínimes que es regulen en la present disposició s’han d’entendre referents a la superfície útil interior.

1.13. Aparells higiènics són els que, amb la corresponent dotació d’aigua corrent i desguàs, estan destinats a la higiene i l’evacuació del cos humà.

 

4. Nivell d’habitabilitat objectiva per habitatge usat

4.1. Tipus: s’ha de poder classificar com a habitatge complet o reduï t.

4.2. Accés: els espais d’accés de l’edifici que el conté han de tenir un sistema elèctric d’il·luminació de manera que quan es transiti per ells quedin il·luminats.

4.3 Construcció : La construcció que els conforma o l’afecta ha de:

4.3.1. Ser sòlida.

4.3.2. Evitar que traspuï humitat.

4.3.3. Ser estanca a les aigües pluvials.

4.3.4. Evitar la inundació de l’habitatge.

4.3.5. El sòl trepitjable tant de l’habitatge com del seu accés ha d’estar completament pavimentat, no ser polsegós i no implicar perill a les persones.

4.4. Dimensions.

4.4.1. Si és un habitatge reduï t, la seva superfície útil ha de ser com a mínim de 15 m², i si és complet de 24 m².

4.4.2. L’altura lliure sobre la superfície útil ha de tenir com a mínim un valor mitjà de 2,25 metres.

4.5. Equip.

4.5.1. Tenir una instal·lació d’aigua corrent que:

4.5.1.1. Estigui en bon estat.

4.5.1.2. Connecti amb tot l’equip que la requereixi.

4.5.1.3. Si el subministrament és per captació pròpia o per aforament, disposi d’un dipòsit de reserva de 200 litres.

4.5.2. Disposar d’un sistema d’evacuació d’aigües residuals de manera que:

4.5.2.1. Estigui en bon estat.

4.5.2.2. Connecti amb tot l’equip que el requereixi.

4.5.2.3. Tots els desguassos tinguin un dispositiu sifònic.

4.5.2.4. Si en el seu entorn hi ha una xarxa pública de clavegueres, connecti amb aquesta, i si no n’hi ha, les aigües brutes no s’aboquin a l’exterior si no es depuren prèviament.

4.5.3. Si l’habitatge està situat en un nucli urbà, o té la possibilitat d’estar connectat a una xarxa exterior de subministrament d’energia elèctrica amb condicions econòmiques similars a les d’un habitatge situat al nucli urbà, ha de disposar d’una instal·lació elèctrica interior de manera que:

a) Tingui un punt de llum amb interruptor independent a cada peça.

b) Tingui un endoll per a cada aparell d’equip obligatori.

c) Tingui dos endolls a la sala i un a les habitacions i a la peça que contingui l’equip de cuina.

d) Ni impliqui un risc a les persones ni pertorbacions en el normal funcionament d’altres instal·lacions.

4.5.4. Disposar d’un equip higiènic de manera que:

4.5.4.1. Estigui format com a mínim per un lavabo, un wàter i una dutxa en bon estat.

4.5.4.2. El wàter ha d’estar inclòs en una cambra higiènica.

4.5.4.3. Almenys una dutxa tingui o admeti directament una instal·lació d’aigua calenta amb la possibilitat d’un consum seguit de 50 litres d’aigua a una temperatura de 40 graus i amb un cabal de 10 litres per minut.

4.5.4.4. La dutxa ha de tenir impermeabilitzat el seu sòl i els seus paraments fins a una alçada d’1,50 metres.

4.5.5. Tenir instal·lat o admetre directament la instal·lació d’un equip de cuina de manera que:

4.5.5.1. Estigui format com a mínim per un pica i un aparell de cocció elèctric o a gas.

4.5.5.2. Estigui en una mateixa peça.

4.5.5.3. La peça on estigui inclòs no disposi de cap aparell higiènic excepte el safareig.

4.5.5.4. La peça on estigui inclòs tingui una ventilació a l’aire lliure directa o a través d’un conducte en el qual s’activi mecànicament la ventilació. Si el conducte és vertical, la ventilació pot ser activada estàticament.


Contacto con Certicedula
Solicitar Cédula de habitabilidad
Solicitar Certificado energético
Solicitar Oferta cédula de habitabilidad + certificado energético

    Trabaja con nosotros:

    Envia mail a: info@certicedula.com

  • Agència de l'Habitatge de Catalunya

  • Institut Català de l'Energia

  • Col.legi d'Arquitectes de Catalunya

    CERTICEDULA

  • Avda. Catalunya, 10
  • 43700 El Vendrell. Tarragona

  • C/ Lluch, 2-4-6
  • 08016 Barcelona. Barcelona.

  • info@certicedula.com
  • 644 73 16 94

    Nombre Comercial: CERTICEDULA. info@certicedula.com. 644 73 16 94

Requeriments cèdula Habitabilitat








cédula de habitabilidad

Normativa aplicable a la Cèdula d'Habitabilitat (IV)

Vanessa Abajas 2019-12-11


Normativa aplicable a la Cèdula d’Habitabilitat (IV)

Continuem amb la sèrie d’entrades al blog sobre les normatives aplicables a la cèdula d’habitabilitat segons la data de construcció. A les entrades anteriors vam fer un resum dels tres primers decrets.

  • El Decret 141/12 Annex 2 s’aplica als habitatges construïts abans de l’11 d’agost de 1984.
  • El Decret 346/1983 s’aplica als habitatges construïts entre l’11 d’agost de 1984 i el 17 d’abril de 1996.
  • El Decret 274/1995 del 11 de juliol, que és aplicable als habitatges construïts entre el 18 d’abril de 1996 i el 23 de setembre de 1996.

La nova normativa d’habitabilitat la recull el DECRET 314/1996, de 17 de setembre, de modificació del Decret 274/1995, d’11 de juliol, sobre nivell d’habitabilitat objectiva exigit als habitatges.

El nou decret d’habitabilitat, redactat molt poc desprès de l’anterior, incorpora molt poques diferències a l’annex 3, que és el que afecta a l’habitatge usat. Les modificacions son les següents:

Es modifiquen els números 4.c) i 11 de l’annex 3, nivell d’habitabilitat objectiva per a habitatges usats, del Decret 274/1995, d’11 de juliol, que tindran la següent redacció:

"4.c) Disposar d’una obertura a un espai exterior obert, a pati d’illa o a pati de parcel·la, directe o a través d’un galeria, de manera que entre 0,80 i 1,80 metres d’alçada tingui, com a mínim, una superfície de 0,80 m²."

"11. Superfície útil d’un habitatge és la superfície dels seus espais que tenen una alçada no inferior a 1,50 m. La superfície útil no inclou l’ocupada pels seus tancaments interns i perimetrals, fixos o mòbils, pels elements estructurals, verticals i per les canalitzacions o conductes amb una secció superior a 0,010 m²."

Per tant, els habitatges construïts entre el 24 de setembre de 1996 i el 16 de setembre de 1999, hauran de complir el DECRET 314/1996, que quedarà de la forma següent:

DECRET 314/1996, de 17 de setembre, annex 3

Als efectes del present Decret seran d’aplicació als habitatges usats les prescripcions següents:

1. Un habitatge és complet quan està compost com a mínim per una sala, una o més habitacions i una cambra higiènica.

2. Un habitatge és reduït quan està compost com a mínim per una sala i una cambra higiènica, i no conté cap habitació.

3. Peces principals són les sales i habitacions.

4. Una peça pot definir-se com a sala quan compleix:

a) Tenir una superfície útil no inferior a 10 m².

b) Admetre la inscripció d’un quadrat que mesuri en planta 2,40 x 2,40 metres.

c) Disposar d’una obertura a un espai exterior obert a pati d’illa, directa o a través d’una galeria, de manera que entre 0,80 i 1,80 metres d’alçaria tingui, com a mínim, una superfície de 0,80 m².

d) No contenir cap aparell higiènic.

e) Si té una superfície inferior a 14 m². no contenir l’equip obligatori de cuina, i

f) No fer-se a través d’aquella l’obertura a l’exterior o la ventilació obligatòria de cap altra peça.

5. Una peça pot definir-se com a habitació quan compleix els següents requisits:

a) Tenir 5 o més m² de superfície útil b) Admetre la inscripció d’un quadrat que mesuri en planta 1,80 x 1,80 metres.

c) Disposar d’una obertura a l’espai exterior, directa o a través d’una galeria, de manera que entre 0,80 i 1,80 metres d’altura tingui, com a mínim, una superfície de 0,20 metres quadrats. d) No contenir cap aparell higiènic que sigui un wàter, un safareig o un abocador.

e) No contenir l’equip obligatori de cuina, i

 f) Poder-se independitzar.

6. Una peça pot definir-se com a cambra higiènica quan compleix els següents requisits:

a) Poder-se independitzar.

b) Tenir ventilació a l’aire lliure directa o a través d’un conducte en el qual s’activi mecànicament la ventilació. Si el conducte és vertical pot ser activada estàticament.

c) Que contingui wàter, dutxa o banyera.

7. Galeria és la peça que té un finestral donant directament a l’aire lliure amb una superfície en alçada no inferior a la superfície en planta de la peça.

8. Una obertura a l’exterior és una porta o una finestra practicable.

9. La superfície d’una obertura és la del seu pas obert o de la seva superfície translúcida.

10. Accés de l’habitatge és tota porta que comunica l’habitatge amb el seu exterior.

11. Superfície útil d’un habitatge és la superfície dels seus espais que tenen una alçada no inferior a 1,50 m. La superfície útil no inclou l’ocupada pels seus tancaments interns i perimetrals, fixos o mòbils, pels elements estructurals, verticals i per les canalitzacions o conductes amb una secció superior a 0,010 m².

12. Aparells higiènics són els que, amb la corresponent dotació d’aigua corrent i desguàs, estan destinats a la higiene i l’evacuació del cos humà.

Tipus

  1. S’ha de poder classificar com a habitatge complet o reduït.

Accés

  1. Els espais d’accés de l’edifici que el conté han de tenir un sistema elèctric d’il·luminació de manera que, quan es transiti per ells quedin il·luminats.

Construcció

La construcció que els conforma o l’afecta ha de:

3. Ser sòlida.

4. Evitar que traspuï humitat.

5. Ser estanca a les aigües pluvials.

6. Evitar la inundació de l’habitatge.

7. El sòl trepitjable, tant de l’habitatge com del seu accés ha d’estar completament pavimentat, no ser polsegós i no implicar perill a les persones.

Dimensions

8. Si és un habitatge reduït, la seva superfície útil ha de ser com a mínim de 15 m², i si és complet de 24 m².

9. L’altura lliure sobre la superfície útil ha de tenir com a mínim un valor mitjà de 2,25 metres.

Equip

Tenir una instal·lació d’aigua corrent que:

10. Estigui en bon estat.

11. Connecti amb tot l’equip que la requereixi.

12. Si el subministrament és per captació pròpia o per aforament, disposi d’un dipòsit de reserva de 200 litres.

Disposar d’un sistema d’evacuació d’aigües residuals de manera que:

13. Estigui en bon estat

14. Connecti amb tot l’equip que el requereixi.

15. Tots els desguassos tinguin un dispositiu sifònic.

16. Si en el seu entorn hi ha una xarxa pública de clavegueres, connecti amb aquesta, i si no n’hi ha, les aigües brutes no s’aboquin a l’exterior si no es depuren prèviament.

Si l’habitatge està situat en un nucli urbà, o té la possibilitat d’estar connectat a una xarxa exterior de subministrament d’energia elèctrica amb condicions econòmiques similars a les d’un habitatge situat al nucli urbà, ha de disposar d’una instal·lació elèctrica interior de manera que:

17. Tingui un punt de llum amb interruptor independent a cada peça.

18. Tingui un endoll per a cada aparell d’equip obligatori.

19. Tingui dos endolls a la sala i un a les habitacions i a la peça que contingui l’equip de cuina.

20. Ni impliqui un risc a les persones ni pertorbacions en el normal funcionament d’altres instal·lacions.

Disposar d’un equip higiènic de manera que:

21. Estigui format com a mínim per un lavabo, un wàter i una dutxa en bon estat.

22. El wàter o ha d’estar inclòs en una cambra higiènica.

23. Almenys una dutxa tingui o admeti directament una instal·lació d’aigua calenta amb la possibilitat d’un consum seguit de 50 litres d’aigua a una temperatura de 40 graus i amb un cabal de 10 litres per minut, i

24. La dutxa ha de tenir impermeabilitzat el seu sòl i els seus paraments fins a una alçada d’1,50 metres.

Tenir instal·lat o admetre directament la instal·lació d’un equip de cuina de manera que:

25. Estigui format com a mínim per un pica i un aparell de cocció elèctric o a gas.

26. Estigui en una mateixa peça.

27. La peça on estigui inclòs no disposi de cap aparell higiènic excepte el safareig.

28. La peça on estigui inclòs tingui una ventilació a l’aire lliure directa o a través d’un conducte en el qual s’activi mecànicament la ventilació. Si el conducte és vertical, la ventilació pot ser activada estàticament.


Contacto con Certicedula
Solicitar Cédula de habitabilidad
Solicitar Certificado energético
Solicitar Oferta cédula de habitabilidad + certificado energético

    Trabaja con nosotros:

    Envia mail a: info@certicedula.com

  • Agència de l'Habitatge de Catalunya

  • Institut Català de l'Energia

  • Col.legi d'Arquitectes de Catalunya

    CERTICEDULA

  • Avda. Catalunya, 10
  • 43700 El Vendrell. Tarragona

  • C/ Lluch, 2-4-6
  • 08016 Barcelona. Barcelona.

  • info@certicedula.com
  • 644 73 16 94

    Nombre Comercial: CERTICEDULA. info@certicedula.com. 644 73 16 94

Requeriments cèdula Habitabilitat








cédula de habitabilidad

Normativa aplicable a la Cédula de Habitabilidad (III)

Vanessa Abajas 2019-11-20


Continuem amb la sèrie d’entrades al blog sobre les normatives aplicables a la cèdula d’habitabilitat segons la data de construcció. A les entrades anteriors vam fer un resum dels dos primers decrets. El Decret 141/12 Annex 2 s’aplica als habitatges construïts abans de l’11 d’agost de 1984. El Decret 346/1983 s’aplica als habitatges construïts entre l’11 d’agost de 1984 i el 17 d’abril de 1996.

En la present entrada del blog, exposarem el Decret 274/1995 del 11 de juliol, que és aplicable als habitatges construïts entre el 18 d’abril de 1996 i el 23 de setembre de 1996.

Decret 274/1995 del 11 de juliol, Annex 3

Als efectes del present Decret seran d’aplicació als habitatges usats les prescripcions següents:

1. Un habitatge és complet quan està compost com a mínim per una sala, una o més habitacions i una cambra higiènica.

2. Un habitatge és reduït quan està compost com a mínim per una sala i una cambra higiènica, i no conté cap habitació.

3. Peces principals són les sales i habitacions.

4. Una peça pot definir-se com a sala quan compleix:

a) Tenir una superfície útil no inferior a 10 m².

b) Admetre la inscripció d’un quadrat que mesuri en planta 2,40 x 2,40 metres.

c) Disposar d’una obertura a un espai exterior obert a pati d’illa, directa o a través d’una galeria, de manera que entre 0,80 i 1,80 metres d’alçaria tingui, com a mínim, una superfície de 0,80 m².

d) No contenir cap aparell higiènic.

e) Si té una superfície inferior a 14 m². no contenir l’equip obligatori de cuina, i

f) No fer-se a través d’aquella l’obertura a l’exterior o la ventilació obligatòria de cap altra peça.

5. Una peça pot definir-se com a habitació quan compleix els següents requisits:

a) Tenir 5 o més m² de superfície útil b) Admetre la inscripció d’un quadrat que mesuri en planta 1,80 x 1,80 metres.

c) Disposar d’una obertura a l’espai exterior, directa o a través d’una galeria, de manera que entre 0,80 i 1,80 metres d’altura tingui, com a mínim, una superfície de 0,20 metres quadrats. d) No contenir cap aparell higiènic que sigui un wàter, un safareig o un abocador.

e) No contenir l’equip obligatori de cuina, i

 f) Poder-se independitzar.

6. Una peça pot definir-se com a cambra higiènica quan compleix els següents requisits:

a) Poder-se independitzar.

b) Tenir ventilació a l’aire lliure directa o a través d’un conducte en el qual s’activi mecànicament la ventilació. Si el conducte és vertical pot ser activada estàticament.

c) Que contingui wàter, dutxa o banyera.

7. Galeria és la peça que té un finestral donant directament a l’aire lliure amb una superfície en alçada no inferior a la superfície en planta de la peça.

8. Una obertura a l’exterior és una porta o una finestra practicable.

9. La superfície d’una obertura és la del seu pas obert o de la seva superfície translúcida.

10. Accés de l’habitatge és tota porta que comunica l’habitatge amb el seu exterior.

11. Superfície útil d’un habitatge és la superfície dels seus espais que tenen una alçada no inferior a 1,90 metres. La superfície útil no inclou l’ocupada pels seus tancaments interns i perimetrals, fixos o mòbils, pels elements estructurals verticals i per les canalitzacions o conductes amb una secció superior a 0,010 m².

12. Aparells higiènics són els que, amb la corresponent dotació d’aigua corrent i desguàs, estan destinats a la higiene i l’evacuació del cos humà.

Tipus

  1. S’ha de poder classificar com a habitatge complet o reduït.

Accés

  1. Els espais d’accés de l’edifici que el conté han de tenir un sistema elèctric d’il·luminació de manera que, quan es transiti per ells quedin il·luminats.

Construcció

La construcció que els conforma o l’afecta ha de:

3. Ser sòlida.

4. Evitar que traspuï humitat.

5. Ser estanca a les aigües pluvials.

6. Evitar la inundació de l’habitatge.

7. El sòl trepitjable, tant de l’habitatge com del seu accés ha d’estar completament pavimentat, no ser polsegós i no implicar perill a les persones.

Dimensions

8. Si és un habitatge reduït, la seva superfície útil ha de ser com a mínim de 15 m², i si és complet de 24 m².

9. L’altura lliure sobre la superfície útil ha de tenir com a mínim un valor mitjà de 2,25 metres.

Equip

Tenir una instal·lació d’aigua corrent que:

10. Estigui en bon estat.

11. Connecti amb tot l’equip que la requereixi.

12. Si el subministrament és per captació pròpia o per aforament, disposi d’un dipòsit de reserva de 200 litres.

Disposar d’un sistema d’evacuació d’aigües residuals de manera que:

13. Estigui en bon estat

14. Connecti amb tot l’equip que el requereixi.

15. Tots els desguassos tinguin un dispositiu sifònic.

16. Si en el seu entorn hi ha una xarxa pública de clavegueres, connecti amb aquesta, i si no n’hi ha, les aigües brutes no s’aboquin a l’exterior si no es depuren prèviament.

Si l’habitatge està situat en un nucli urbà, o té la possibilitat d’estar connectat a una xarxa exterior de subministrament d’energia elèctrica amb condicions econòmiques similars a les d’un habitatge situat al nucli urbà, ha de disposar d’una instal·lació elèctrica interior de manera que:

17. Tingui un punt de llum amb interruptor independent a cada peça.

18. Tingui un endoll per a cada aparell d’equip obligatori.

19. Tingui dos endolls a la sala i un a les habitacions i a la peça que contingui l’equip de cuina.

20. Ni impliqui un risc a les persones ni pertorbacions en el normal funcionament d’altres instal·lacions.

Disposar d’un equip higiènic de manera que:

21. Estigui format com a mínim per un lavabo, un wàter i una dutxa en bon estat.

22. El wàter o ha d’estar inclòs en una cambra higiènica.

23. Almenys una dutxa tingui o admeti directament una instal·lació d’aigua calenta amb la possibilitat d’un consum seguit de 50 litres d’aigua a una temperatura de 40 graus i amb un cabal de 10 litres per minut, i

24. La dutxa ha de tenir impermeabilitzat el seu sòl i els seus paraments fins a una alçada d’1,50 metres.

Tenir instal·lat o admetre directament la instal·lació d’un equip de cuina de manera que:

25. Estigui format com a mínim per un pica i un aparell de cocció elèctric o a gas.

26. Estigui en una mateixa peça.

27. La peça on estigui inclòs no disposi de cap aparell higiènic excepte el safareig, i

28. La peça on estigui inclòs tingui una ventilació a l’aire lliure directa o a través d’un conducte en el qual s’activi mecànicament la ventilació. Si el conducte és vertical, la ventilació pot ser activada estàticament.


Contacto con Certicedula
Solicitar Cédula de habitabilidad
Solicitar Certificado energético
Solicitar Oferta cédula de habitabilidad + certificado energético

    Trabaja con nosotros:

    Envia mail a: info@certicedula.com

  • Agència de l'Habitatge de Catalunya

  • Institut Català de l'Energia

  • Col.legi d'Arquitectes de Catalunya

    CERTICEDULA

  • Avda. Catalunya, 10
  • 43700 El Vendrell. Tarragona

  • C/ Lluch, 2-4-6
  • 08016 Barcelona. Barcelona.

  • info@certicedula.com
  • 644 73 16 94

    Nombre Comercial: CERTICEDULA. info@certicedula.com. 644 73 16 94

Requeriments cèdula Habitabilitat








cédula de habitabilidad

Normativa aplicable a la Cédula de Habitabilidad (II)

Vanessa Abajas 2019-10-23


Como continuación de la anterior entrada al blog Normativa aplicable a la Cédula de Habitabilidad, continuaré con un repaso de las diferentes normativas que deben cumplir las viviendas para que puedan obtener la Cédula de Habitabilidad. En la entrada anterior hice un resumen del Decreto 141/12 Annex 2, que es el que deben cumplir las viviendas anteriores al 11 de agosto de 1984. Ahora repasaremos los decretos posteriores.

Decret 346/1983 del 8 de juliol

Para viviendas comprendidas entre el 11 de agosto de 1984 y el 11 de julio de 1995.

El presente decreto define dos tipos de niveles de habitabilidad, A y B, según el grado de exigencia aplicable a las viviendas. Para obtener la cédula de habitabilidad, las viviendas deberán cumplir en nivel B, que incluye el nivel A.

Nivel B de habitabilidad objetiva

Acceso a la vivienda

  • Se puede acceder a una vivienda desde la calle o desde un espacio comunitario, nunca desde otra vivienda o un local que no sea de uso exclusivo de la vivienda. De la misma forma, una vivienda no puede dar acceso a otra ni a un local que no sea de uso exclusivo de dicha vivienda.
  • Si en el recorrido de acceso a la vivienda existe un desnivel superior a 13,75cm, deberá haber otro recorrido alternativo mediante ascensor o similar.
  • Si existen escaleras, cada tramo salvará como máximo una altura de 3,10m. La altura de los escalones será como máximo de 19 cm, y la huella será como mínimo de 25 cm.
  • Si existe un desnivel mayor a 60cm, se deberá proteger mediante una barandilla.
  • La anchura de la puerta de entrada será superior a 90cm.
  • El espacio de acceso a la vivienda debe estar iluminado.
  • En los edificios de viviendas, la planta baja y la última tendrán una superficie de ventilación no inferior a 1m2.

Construcción

  • La construcción de la vivienda debe ser sólida y evitar la humedad, la entrada de agua de lluvia y las inundaciones. El suelo debe estar pavimentado.
  • La vivienda será capaz de soportar una sobrecarga de 150kg/m2.

Instalación de agua

  • Contará con una instalación de agua corriente en buen estado y que conecte con todo el equipo que lo requiera.
  • Si el suministro de agua es por captación propia, debe disponer de un depósito de reserva de 150  litros por habitación.

Equipo de evacuación de aguas residuales

  • El equipo de evacuación de aguas residuales estará en buen estado y conectará con todo el equipo que lo requiera. Los desagües tendrán un dispositivo sifónico.
  • Evacuará en la red pública de alcantarillas o, en su defecto, las aguas sucias se depurarán antes de evacuarlas al exterior.

Instalación eléctrica

Estará en buen estado.

Elementos mínimos:

  • Cada estancia tendrá un punto de luz con interruptor.
  • Habrá un enchufe para cada aparato del equipo obligatorio.
  • La sala y la cocina tendrán dos enchufes. Las habitaciones, uno, como mínimo.

Composición mínima de la vivienda

  • Una vivienda es completa cuando está compuesta, como mínimo, por una sala, una habitación y un baño.
  • Una vivienda es reducida si se compone, como mínimo, por una sala y un baño.

Dimensiones

  • Si la vivienda es reducida, la superficie útil será como mínimo de 20m2, y si es completo, de 32m2.
  • Se cuentan a efectos de superficie útil aquellos espacios con una altura superior al 1,90m.
  • La altura interior tendrá como mínimo un valor medio de 2,50m en las estancias principales (sala y habitaciones).
  • El perímetro de fachada tendrá una superficie mínima que se calculará en función de la superficie de la vivienda.

Piezas principales (sala y habitaciones)

  • El acceso a las piezas principales tendrá una anchura mínima de 60cm.
  • Desde la sala no habrá ningún acceso directo a ninguna estancia que contenga wáter o ducha.

Características de la sala

  • Tendrá una superficie mínima de 10m2. Si la sala integra la cocina, la superficie mínima será de 14m2. Se podrá “dibujar” en el suelo un cuadrado de 2,40x2,40m.
  • La sala tendrá una ventana al exterior o a una galería. La ventana tendrá que tener una superficie mínima de 0,80m2 y estará situada entre 0,80m y 1,80m de altura.
  • No podrá contener ningún aparato higiénico.
  • A través de la sala no podrá ventilar ninguna estancia de la vivienda.

Características de las habitaciones

  • Tendrán una superficie mínima de 5m2 y se podrá “dibujar” en el suelo un cuadrado de 1,80x1,80m.
  • Tendrán puerta. A través de ellas no se podrá acceder a otras estancias de la vivienda. No podrán contener piezas del baño, cocina o lavadero.
  • Las habitaciones tendrán una ventana al exterior o a una galería. A través de las habitaciones no podrá ventilar ninguna estancia de la vivienda. La ventana tendrá que tener una superficie mínima de 0,20m2 y estar situada entre 0,80m y 1,80m de altura.

Características de la galería

La galería tendrá un ventanal que dará al espacio exterior. La pared donde se sitúa el ventanal tendrá más metros cuadrados que los que ocupa el suelo de la galería.

Equipo higiénico

  • Formado, como mínimo, por un wáter, un lavabo y una ducha o bañera, en buen estado.
  • El wáter estará en una estancia independizable (con puerta).
  • Al menos la ducha tendrá o admitirá instalación de agua caliente. Las paredes de la ducha estarán impermeabilizadas hasta 1,50m como mínimo.
  • Ventilarán al exterior por una ventana o por un conducto. Si el conducto no es vertical en todo su recorrido, deberá tener un motor que lo active.
  • El equipo mínimo obligatorio será accesible a todas las habitaciones.

Equipo de cocina

  • Formado, como mínimo, por una pica y un elemento de cocción y estarán en la misma estancia.
  • Ventilarán al exterior por una ventana o por un conducto. Si el conducto no es vertical en todo su recorrido, deberá tener un motor que lo active.
  • La cocina no podrá contener ninguna pieza higiénica.
  • La estancia donde esté tendrá como mínimo 5m2.
  • Sobre el aparato de cocción habrá o se podrá instalar una campana extractora.Si el conducto no es vertical en todo su recorrido, deberá tener un motor que lo active.

Equipo de lavado de ropa

Si dispone o tiene prevista la instalación de un equipo de lavado de ropa, la estancia deberá tener ventilación al aire libre de forma directa, o a través de un conducto que se active mecánicamente. Si el conducto es vertical, se podrá activar de forma estática.


Contacto con Certicedula
Solicitar Cédula de habitabilidad
Solicitar Certificado energético
Solicitar Oferta cédula de habitabilidad + certificado energético

    Trabaja con nosotros:

    Envia mail a: info@certicedula.com

  • Agència de l'Habitatge de Catalunya

  • Institut Català de l'Energia

  • Col.legi d'Arquitectes de Catalunya

    CERTICEDULA

  • Avda. Catalunya, 10
  • 43700 El Vendrell. Tarragona

  • C/ Lluch, 2-4-6
  • 08016 Barcelona. Barcelona.

  • info@certicedula.com
  • 644 73 16 94

    Nombre Comercial: CERTICEDULA. info@certicedula.com. 644 73 16 94

Requeriments cèdula Habitabilitat








certificat energètic

El Registro del Certificado Energético en Catalunya

Vanessa Abajas 2019-07-15


El Certificado de Eficiencia Energética se debe registrar en la Generalitat (Institut Català d’Energia). Para ello existe un formulario que, una vez cumplimentado, se envía al departamento por vía telemática. Una vez pagadas las tasas administrativas, de forma automática se genera el documento de la Etiqueta y el técnico la recibe por mail.

 

¿Cuál es el procedimiento completo?

Un técnico (arquitecto o arquitecto técnico) inspecciona la vivienda y realiza una toma de datos (dimensiones, instalaciones  y características constructivas). El propietario debe facilitar la documentación necesaria para realizar los informes (nombre y dni del propietario y referencia cadastral, entre otros).

Cuando el técnico ha recopilado toda la información, realiza el informe del Certificado Energético. Posteriormente, rellena un formulario oficial (Certificat d'eficiència energètica d'edificis / part de l'edifici) con las características de la vivienda, los datos del solicitante, el propietario y el técnico redactor, y adjunta el Certificado Energético y otra documentación asociada. Este formulario se registra en la Generalitat a través de la web de trámites de gencat. En unos días, se recibe la Etiqueta energética por mail.

 

¿Qué sucede si no registro el Certificado Energético?

Cuando se realiza el registro del Certificado Energético se genera un número Identificador, imprescindible para cualquier trámite relacionado con el inmueble. También se recibe la Etiqueta Energética, documento que debe presentarse en los trámites oficiales, tales como compraventa, alquiler, solicitud de ayudas o nueva construcción.

 

¿Quién debe registrar el Certificado Energético?

Lo registra el técnico responsable de la Certificación Energética. La solicitud de registro debe ir firmada digitalmente por dicho técnico.

 

¿Qué documentos se necesitan para registrar el Certificado Energético?

En el formulario de registro, se deben adjuntar los siguientes documentos:

1.     Certificado energético, redactado por el técnico, y firmado digitalmente.

2.     Archivos informáticos asociados al proceso de certificación.

3.     Modelo de representación en el que se autoriza al técnico a actuar frente a l’Institut Català d’Energia en el procedimiento de certificación energética.

4.     Documento de las medidas de mejora energética, realizado por el técnico.

5.     Archivos informáticos asociados al proceso de certificación, en formato .xml.

 

¿Qué información aparece en el formulario de registro?

El formulario de registro consta de seis páginas. La información a cumplimentar en cada una de ellas es la siguiente:

Página 1: Datos generales de la vivienda.

-       Motivos para realizar la certificación: Nueva construcción, compraventa, alquiler, solicitud de ayudas, edificio existente de la administración pública, certificación voluntaria, renovación y como complemento a un informe de evaluación del edificio (IEE) o a la inspección técnica del edificio (ITE).

-       Si se trata de una renovación o modificación de otro registro. En caso afirmativo, hay que indicar el número de registro o trámite del certificado a modificar, renovar o anular.

-       Propiedad del edificio: pública o privada.

-       Si se trata de una rehabilitación energética o de un edificio ya rehabilitado. En caso afirmativo, se ha de indicar los motivos de la rehabilitación: aislamiento en fachadas y/o cubierta, mejora de las instalaciones (calefacción, climatización, ACS, iluminación), renovación de ventanas y/o protecciones solares, y otros motivos.

-       Fase del certificado de eficiencia energética: rehabilitación o edificio acabado.

-       Uso del edificio: vivienda individual en bloque de viviendas, vivienda unifamiliar, edificio completo, terciario. En caso de terciario, hay que indicar el tipo de terciario (oficinas, oficinas en edificio industrial, comercio, hotel, restauración, sanidad, educación, cultural, deportivo, local, otros).

-       Calificación energética de emisiones de CO2. Indicar el resultado con la calificación obtenida (de la A a la G).

-       Indicar si el técnico certificador ha realizado una visita al edificio o a la vivienda.

-       Referencia catastral.

-       Superficie útil de la vivienda.

-       Normativa vigente durante la construcción de la vivienda.

-       Procedimiento de calificación energética utilizado (programa informático).

-       Si el edificio o la vivienda dispone de un certificado voluntario (LEED, BREEAM, VERDE, PASSIVHAUS, DGNB, MINERGIE…).

Página 2:

-       Dirección del inmueble certificado.

-       Datos del promotor o propietario (nombre, dni, teléfono y mail). Puede ser persona física o jurídica.

-       Dirección del propietario o promotor.

Página 3:

-       Datos del técnico responsable del Certificado Energético (Nombre, dni, teléfono, e-mail, dirección, titulación, número de colegiado, colegio profesional al que pertenece).

-       Otros sistemas específicos del edificio (geotermia, aerotermia, conexión a una red de distrito de generación de calor y/o frío, edificio con punto de recarga de vehículo eléctrico, o si se ha aplicado una solución singular al certificado).

-       Si el promotor está al corriente de las exigencias de mantenimiento establecidas en la IT3 de mantenimiento y uso de RD 1027/2007 por el cual se aprueba el RITE o modificaciones posteriores.

Página 4:

-       Datos del representante del propietario / promotor que gestiona el inmueble, en caso de que lo haya.

Página 5:

-       Indicación de un correo electrónico donde recibir las notificaciones electrónicas de los actos administrativos relacionados con la solicitud.

-       Documentación anexa.

-       Declaración responsable como técnico competente.

Página 6:

-       Firma del documento.

 

¿Cuántos tipos de formularios hay?

En el caso del Certificado Energético, a diferencia de la Cédula de Habitabilidad, solo existe un tipo de formulario. Dicho formulario sirve tanto para edificio completo, como para una sola vivienda o un local.

 

¿Cómo se realiza el registro telemático del formulario?

Se realiza a través de la web de gencat.

En el Paso 1, se descarga el formulario de solicitud. Puede realizarse con los datos personales incorporados, si se realiza con identificación digital, o sin los datos personales incorporados.

El Paso 2 consiste en rellenar el formulario, validarlo y firmarlo.

En el Paso 3, se selecciona el formulario y se envía. Aparece una pantalla con un enlace para poder realizar el pago de las tasas administrativas. Si no se realiza el pago de las tasas, no tramitarán la Etiqueta. Se dispone de dos meses aproximadamente para realizar dicho pago.

 

¿Recibo algún documento conforme se ha enviado de forma correcta?

Una vez enviado el formulario, se muestra una página donde puedes descargar un Acuse de recibo. Este documento es muy importante, ya que contiene la identificación del trámite, necesaria para realizar consultas sobre el estado del mismo.


Contacto con Certicedula
Solicitar Cédula de habitabilidad
Solicitar Certificado energético
Solicitar Oferta cédula de habitabilidad + certificado energético

    Trabaja con nosotros:

    Envia mail a: info@certicedula.com

  • Agència de l'Habitatge de Catalunya

  • Institut Català de l'Energia

  • Col.legi d'Arquitectes de Catalunya

    CERTICEDULA

  • Avda. Catalunya, 10
  • 43700 El Vendrell. Tarragona

  • C/ Lluch, 2-4-6
  • 08016 Barcelona. Barcelona.

  • info@certicedula.com
  • 644 73 16 94

    Nombre Comercial: CERTICEDULA. info@certicedula.com. 644 73 16 94

Requeriments cèdula Habitabilitat








cédula de habitabilidad

El Registro de la Cédula de Habitabilidad

Vanessa Abajas 2019-05-09


La documentación de solicitud de la Cédula de Habitabilidad se debe registrar en el Departament de Habitatge de la Generalitat. Para ello existen una serie de formularios que, una vez cumplimentados, se envían al departamento por vía telemática. Los técnicos de Habitatge revisan la documentación y proceden a otorgar la Cédula de Habitabilidad.

¿Cuál es el procedimiento completo?

Un técnico (arquitecto o arquitecto técnico) inspecciona la vivienda para comprobar que cumple con la normativa de Habitabilidad. Una vez ha reunido todos los datos, rellena un formulario oficial con las características de la vivienda y lo registra en el Departament d'Habitatge. El registro puede realizarse de forma presencial o telemática. En unos días, se recibe el documento de la Cédula de Habitabilidad.

¿Quién debe registrar la solicitud de Cédula en Habitatge?

Si el registro se realiza de forma presencial, puede realizarlo cualquier persona. Si el registro se realiza por vía telemática, debe realizarlo el técnico que firma el formulario.

¿Qué documentos se necesitan para registrar la solicitud de Cédula?

Tanto para el registro presencial como telemático, se necesita el formulario de solicitud firmado por el técnico responsable y el Documento Responsable de antigüedad de la vivienda. Si el registro se realiza de forma presencial y el técnico no ha realizado el documento de visado en el Colegio de Arquitectos, se deberá presentar un documento conforme el arquitecto está colegiado.

Si el registro se realiza de forma presencial, ¿dónde se puede hacer?

Se debe registrar en una delegación de Habitatge, que ha de ser la que le coresponde a la vivienda. En Barcelona, será en la sede de distrito correspondiente. Fuera de Barcelona ciudad será, normalmente, en el Consell Comarcal de cada comarca.

¿Quién rellena el formulario de solicitud?

Debe hacerlo siempre el técnico. Cuando se registra de forma presencial, el técnico deberá firmarlo a mano. Si la presentación es telemática, lo firmará con firma digital.

¿Cuántos tipos de formularios hay?

Existen dos tipos de clasificaciones. Según el año de construcción de la vivienda o de si ésta ha tenido cédula anterior o no, es la primera clasificación. Hay tres tipos de formularios: para viviendas anteriores a 1984 que nunca han tenido cédula, para viviendas posteriores a 1984 que nunca han tenido cédula, y para viviendas que han tenido cédula de habitabilidad, independientemente del año de construcción.

Existe otra clasificación, según si el técnico ha visado el documento en su colegio profesional o si no lo ha hecho. Cada uno de los tres formularios anteriores se combinan con la clasificación según si el documento está visado, dando origen a 6 formularios diferentes.

¿Cómo se realiza el registro telemático del formulario?

Se realiza a través de la web: http://web.gencat.cat/ca/tramits/tramits-temes/Cedula-dhabitabilitat-de-segona-ocupacio-00002

En la primera pantalla, debes escoger entre "Viviendas construidas antes del 11 de agosto de 1984", "Viviendas construidas entre el 11 de agosto de 1984 y el 3 de noviembre de 2012" o "Viviendas que ya han tenido cédula de habitabilidad previa". A partir del 3 de noviembre de 2012 fue obligatorio que todas las viviendas tuvieran cédula de habitabilidad.

Una vez seleccionada una de las tres opciones, pasamos a una pantalla en la que aparecen diversos pasos a seguir.

El Paso 1 es para solicitudes con el trámite colegial (se refiere al visado por el Colegio de Arquitectos). El Paso 2 es para solicitudes sin el trámite colegial, por lo que solo se podrá escoger entre el Paso 1 o el Paso 2.

Una vez seleccionado Paso 1 o Paso 2, nos dan la opción de presentación presencial o telemática. Al escoger la opción presencial, únicamente informan de la documentación que se ha de presentar. Según el Paso 2 (sin trámite colegial), no puede realizarse presencialmente. A efectos prácticos, sí que puede hacerse, siempre que se demuestre que el técnico está colegiado.

En Paso 1 y Paso 2, opción "Por internet", puedes descargarte el formulario de registro y, una vez todos los campos se han cumplimentado, se envía a través de la misma página web.

¿Recibo algún documento conforme se ha enviado de forma correcta?

Una vez enviado el formulario, se muestra una página donde puedes descargar un acuse de recibo. Este documento es muy importante. Por una parte contiene la identificación del trámite, necesaria para realizar consultas sobre el estado del mismo. Por otra parte, este documento puede ser utilizado para demostrar que la cédula se está tramitando. Por ejemplo, en una compra-venta, se realizar la transacción presentando el acuse de recibo en lugar de la cédula definitiva si ésta todavía no ha sido concedida.

¿Cómo se realiza el pago de las tasas?

Si la presentación se ha realizado de forma presencial, cuando se presenta la solicitud se le entrega la carta de pago a la persona que ha realizado dicha solicitud. Con esta carta, debe ir a una oficina de CaixaBank o realizar el pago por ServiCaixa.

Si la presentación ha sido por vía telemática, el pago se realizará por tarjeta a través del mismo portal de trámites.

Si no se realiza el pago de las tasas, en Habitatge no tramitarán la cédula de habitabilidad.

¿Qué información aparece en los formularios de registro?

La información que aparece en los 6 tipos de formularios es prácticamente la misma. Los diversos campos que hay que rellenar comprenden los datos básicos del solicitante y del propietario de la vivienda (nombre, apellidos, dni, teléfono, mail, dirección para posibles notificaciones). Normalmente, el solicitante es el técnico. Los datos correspondientes al apartado del Certificado de Habitabilidad de Segunda Ocupación son los datos del técnico (nombre, dni, número de colegiado, titulación) y el texto en el que certifica que la vivienda cumple con la normativa correspondiente. En el siguiente apartado se describe la vivienda en cuestión (dirección, referencia cadastral, número de cédula anterior si es que la ha tenido, número de piezas y superficie). El Documento Responsable de Antigüedad se anexa al final del documento, solo en el supuesto de que nunca haya tenido cédula anterior.

En el formulario se debe especificar la dirección de e-mail en la que se quiere recibir la cédula de habitabilidad.

 

 

 

 


Contacto con Certicedula
Solicitar Cédula de habitabilidad
Solicitar Certificado energético
Solicitar Oferta cédula de habitabilidad + certificado energético

    Trabaja con nosotros:

    Envia mail a: info@certicedula.com

  • Agència de l'Habitatge de Catalunya

  • Institut Català de l'Energia

  • Col.legi d'Arquitectes de Catalunya

    CERTICEDULA

  • Avda. Catalunya, 10
  • 43700 El Vendrell. Tarragona

  • C/ Lluch, 2-4-6
  • 08016 Barcelona. Barcelona.

  • info@certicedula.com
  • 644 73 16 94

    Nombre Comercial: CERTICEDULA. info@certicedula.com. 644 73 16 94

Requeriments cèdula Habitabilitat








Cédula Habitabilidad

Cédula de Habitabilidad Precio

Vanessa Abajas 2016-01-04


La Cédula de Habitabilidad es un documento oficial otorgado por l’Agència de l’Habitatge de Catalunya. La persona encargada de la elaboración del documento es un profesional (arquitecto o arquitecto técnico) no vinculado con el departamento de Habitatge, que  establece sus honorarios de forma libre. Por tanto, el precio de la cédula de habitabilidad dependerá del técnico encargado de realizarla.

 

 

Qué incluye el precio de una Cédula de Habitabilidad

 

Trabajo del técnico:          

El técnico visita el inmueble,  toma las medidas de superficie y comprueba que cumpla la normativa de habitabilidad.  Una vez ha recopilado la información sobre la vivienda, redacta el informe de la cédula.

En la mayoría de los casos, el técnico se encarga de la tramitación de registro de la cédula en el Departament d’ Habitatge de la Generalitat  y realiza el seguimiento de la concesión de la cédula hasta la entrega al cliente del documento.

 

Tasas colegiales

El técnico ha de visar la solicitud de cédula de habitabilidad en su colegio profesional. El precio del visado varía de un colegio profesional a otro.

En el caso de Certicedula, nuestro colegio profesional es el COAC Col·legi Oficial d’Arquitectes de Catalunya y el precio establecido para el visado es de 10.16€.

 

Tasas de la Generalitat

Una vez realizada la solicitud de la cédula se deben liquidar las tasas administrativas a la Generalitat en concepto de registro. La cantidad, igual para todos, es de 13.23€.

 

IVA

Solo se aplica sobre los honorarios del técnico, nunca sobre las tasas de visado o registro.

 

 

 

Cuánto cuesta una cédula de habitabilidad:

 

El precio de la cédula de habitabilidad oscila entre los 60€ y los 180€. Depende de los honorarios del técnico.

 

 

 

Cómo calcular el precio:

 

Gran cantidad de ofertas, especialmente las que aparecen en internet, centran su publicidad en un precio que está muy por debajo del precio de la competencia. Normalmente se trata de un precio base al que hay que sumarle las tasas de visado y registro y el IVA. En otras ocasiones, el trámite de registro de la cédula en Habitatge se cobra a parte.

Es importante conocer el precio final a pagar “todo incluido” para poder comparar diferentes precios y no llevarse sorpresas una vez se ha hecho el encargo.

En Certicedula informamos del precio final de nuestros informes, desglosando las cantidades para que el cliente no tenga dudas.

 

Otros factores a tener en cuenta:

 

Desplazamiento

Muchos técnicos cobran desplazamiento por realizar la visita en poblaciones alejadas de la suya. El cliente debe estar informado de este sobre coste y no llevarse sorpresas de última hora.

Es recomendable la elección de un técnico con sede cercana a la vivienda que solicita la cédula, ya que no cobrará un extra por desplazamiento y dispondrá de más flexibilidad horaria para realizar la visita.

 

En Certicedula realizamos cédulas de habitabilidad y certificados energéticos sin ningún coste por desplazamientos  en numerosas localidades, ya que contamos cor varios técnicos que trabajan en las provincias de Barcelona y Tarragona.

Las comarcas en las que trabajamos son las siguientes:

Provincia de Barcelona, comarcas Barcelonés, Vallés Occidental, Garraf y Alt Penedés.

Provincia de Tarragona: Baix Penedés, Tarragonés, Baix Camp y Alt Camp.

Para otras localidades fuera de nuestra zona de trabajo cobramos un coste por desplazamiento del que informamos siempre a nuestros clientes.

 

La superficie de la vivienda

Muchos técnicos adjudican un precio variable en función de los metros cuadrados de la vivienda o del tipo de vivienda (piso o casa aislada).

En estos casos, suele ser un precio ventajoso para viviendas de superficie muy reducida, pero muy elevado para las de mayor  tamaño.

En Certicedula tenemos un valor fijo para para todas las viviendas, independientemente de su superficie.

 

Oferta Cédula de Habitabilidad+Certificación Energética

En muchas ocasiones, al solicitar la cédula el cliente también necesita un certificado energético. Es habitual que muchos técnicos hagan un precio especial más rebajado si realizan ambos informes, ya que ahorran una parte de su trabajo.

El cliente, a parte de la ventaja económica, también ahorra tiempo ya que en una sola visita se tomarán los datos para realizar ambas gestiones.

En Certicedula ofrecemos el pack oferta cédula de habitabilidad + certificado energético.

 

Hay que tener en cuenta que no todos los técnicos están cualificados para hacer ambos informes. Únicamente  arquitectos y arquitectos técnicos pueden realizar la cédula de habitabilidad, mientras que el certificado energético pueden realizarlo estos mismos técnicos y, además, ingenieros.

 

 

Cómo elegir un técnico para realizar la cédula de habitabilidad

 

La oferta de profesionales para la redacción de la cédula es muy amplia. El precio suele ser el factor más importante para la elección de un técnico. Una vez calculado y asegurado el precio final de varias opciones, no siempre se escoge la opción más barata. El cliente tiene en cuenta  la imagen de profesionalidad y experiencia que el técnico proyecta, y la confianza que le inspira.

 

En algunas ocasiones un conocido recomienda un técnico, ya que ha tenido una buena experiencia con él (un buen trabajo profesional, seriedad, puntualidad).

También puede tratarse de una compra-venta o un alquiler que se realiza a través de una inmobiliaria. En estos casos, las inmobiliarias suelen tener su técnico de “confianza” que le realiza la gestión de cédula y certificado energético. No es obligatorio encargar la cédula al técnico de la inmobiliaria, aunque si el precio que ofrece es competitivo, puede ser recomendable que nos realice el documento, ya que la relación de complicidad inmobiliaria-técnico puede ayudar a agilizar los trámites.

 

Cuando la publicidad llega por internet, el cliente valora una web de calidad que incluya, por ejemplo:

Datos de contacto con el técnico (teléfono, correo electrónico, dirección).

El nombre del técnico que redactará la cédula y su titulación.

Los precios expresados de forma clara y sin lugar a confusiones.

Información actualizada (tasas e IVA vigentes).

Un apartado de preguntas frecuentes para solventar las dudas que puedan aparecer sobre la cédula de habitabilidad.

Aparecer en las redes sociales y contar con un blog con noticias relacionadas con el tema.

 

A modo de resumen, antes de realizar un encargo, es recomendable conocer el precio que el técnico cobrará, incluyendo todos los trámites, tasas, IVA y desplazamiento (en el caso que lo haya). Es recomendable que el técnico envíe un presupuesto al cliente antes de realizar el encargo y entregue una factura en el momento de cobro.

Si se necesita cédula de habitabilidad  y certificado energético, es recomendable que los realice el mismo técnico.


Contacto con Certicedula
Solicitar Cédula de habitabilidad
Solicitar Certificado energético
Solicitar Oferta cédula de habitabilidad + certificado energético

    Trabaja con nosotros:

    Envia mail a: info@certicedula.com

  • Agència de l'Habitatge de Catalunya

  • Institut Català de l'Energia

  • Col.legi d'Arquitectes de Catalunya

    CERTICEDULA

  • Avda. Catalunya, 10
  • 43700 El Vendrell. Tarragona

  • C/ Lluch, 2-4-6
  • 08016 Barcelona. Barcelona.

  • info@certicedula.com
  • 644 73 16 94

    Nombre Comercial: CERTICEDULA. info@certicedula.com. 644 73 16 94

Requeriments cèdula Habitabilitat








Cédula Habitabilidad

Solicitar la cédula cuando la actual está vigente

Vanessa Abajas 2019-03-16


Solicitar una nueva Cédula de Habitabilidad cuando ya hay una cédula vigente

Existen varias situaciones en las que se solicita una nueva Cédula de Habitabilidad de una vivienda que ya tiene la cédula en vigor.

En la mayoría de las ocasiones se trata de desconocimiento por parte de la propiedad de la vivienda y, en otras, existe un motivo por el que hay renovar la cédula antes de la fecha en la que caduca. Tanto en un caso como en el otro, el procedimiento a seguir es el mismo. En esta entrada del blog repasaremos situaciones que pueden generar confusión en los propietarios de las viviendas sobre la necesidad de solicitar una nueva cédula de habitabilidad antes de tiempo y de los pasos a seguir una vez se ha realizado la solicitud.

 

 

Cuándo NO hay que pedir una cédula nueva

  1. Cuando un inmueble cambia de dueño.

La Cédula está relacionada con la vivienda y no con el propietario. Si la vivienda cambia de propietario, no es necesario modificar la cédula.

       2. Cuando se sospecha que la vivienda tiene cédula, pero el propietario no la encuentra.

Si la vivienda tiene cédula vigente y el propietario no la encuentra, el procedimiento a seguir es pedir un duplicado. El propietario del inmueble, o una persona autorizada por él, deberán ir personalmente a una oficina de Habitatge. Estas oficinas se encuentran en las capitales comarcales dentro de los Consells Comarcals y, en el caso de Barcelona, en las sedes de distrito. El duplicado lo entregan al instante y de forma gratuita.

Si el propietario no está seguro si la vivienda tiene cédula, puede llamar al teléfono 012, donde le informarán. Tanto si la vivienda nunca ha tenido cédula como si está caducada, hay que solicitar una nueva Cédula de Habitabilidad. Si la cédula está vigente, podrá solicitar un duplicado en una oficina de Habitatge.

 

Cuándo SI hay que pedir una cédula nueva

a.Cuando varía el número de habitaciones.

La Cédula de Habitabilidad es el documento que certifica que la vivienda está habitable y que, además, ofrece información de la vivienda que puede ser necesaria en algunas ocasiones. En las cédulas de los últimos años aparece el número de habitaciones, un dato necesario para calcular el número máximo de ocupantes que puede tener una vivienda. Este dato es muy importante en los reagrupamientos familiares, ya que si la vivienda no garantiza la “comodidad” de sus habitantes en cuanto a tamaño, no se permitirá la reagrupación en este piso de referencia.

En el caso de los alquileres turísticos, el número de personas que pueden ocupar la vivienda es muy importante, ya que el tema está muy regulado. Cuando se publicite la vivienda, el número de ocupantes no podrá ser superior al que aparece en la cédula.

Si el propietario de la vivienda considera útil que esta nueva situación de la vivienda quede reflejada en la cédula, deberá solicitar una nueva cédula de habitabilidad.

b.  En el caso de una compra-venta, cuando la cédula está a punto de caducar

La cédula de habitabilidad es un documento necesario para transmitir un inmueble. Cuando se ha solicitado una cédula pero todavía no está concedida, también puede realizarse la compra-venta, ya que los notarios aceptan realizar la transmisión con el documento de registro, siempre que ambas partes estén de acuerdo. Con los bancos no es tan sencillo, algunos se niegan a conceder una hipoteca si no existe la cédula definitiva.

Si un propietario pone a la venta un inmueble con la cédula a punto de caducar, lo que en principio debe hacer es esperar a que caduque para solicitar una nueva. Si surge un comprador en este “limbo” en el que la vivienda tiene una cédula caducada y la nueva no está otorgada, puede darse una situación de nervios y estrés tanto por la parte compradora como por la vendedora si el banco pone  inconvenientes en realizar la firma. Lo mejor en estas situaciones es solicitar una nueva cédula antes de que caduque la anterior para no tener prisas en conseguir la cédula el día dela firma de la compra-venta.

 

Qué sucede si se solicita la cédula de una vivienda que ya tiene cédula en vigor

Una vivienda no puede tener más de una cédula de habitabilidad en vigor. La solicitud de una nueva cédula no anula directamente la anterior, más bien al contrario, provoca el bloqueo de ambas cédulas de forma que no se puede pedir un duplicado de la que está vigente y tampoco continuar los trámites de la que se ha solicitado.

Cuando los técnicos de Habitatge reciben una solicitud de cédula de una vivienda consultan en una base de datos si la vivienda en cuestión tiene o ha tenido cédula anterior. Si comprueban que tiene una cédula en vigor, envían un requerimiento al técnico y le ofrecen dos alternativas:

  1. Renunciar a la cédula que está vigente para continuar con los trámites de la nueva.
  2. Renunciar a la nueva para poder solicitar un duplicado de la anterior.

Una opción u otra dependerán de las necesidades del propietario. Cuando hay urgencia por tener el documento, el paso más ágil es renunciar a la que se está tramitando para poder pedir un duplicado de la actual, ya que nos ahorramos el tiempo que tarden los técnicos de Habitage en tramitar el informe. Si no hay urgencia es mejor renunciar a la antigua y continuar con los trámites de la actual ya que, seguramente, al registrar la cédula ya se han abonado las tasas administrativas y, también, la vigencia de la cédula se alargará más tiempo.

En ambos trámites se requiere una serie de documentación:

  1. Escrito del propietario en el que explica que conoce la existencia de una cédula vigente, que ha solicitado una nueva y los motivos por los que solicita una nueva.
  2. Documentación que acredite al propietario de la vivienda: escrituras y copia del dni.
  3. Si la opción es continuar los trámites de la nueva cédula, en el escrito del propietario también ha de hacer constar que permite al técnico continuar con los trámites.

Ejemplo de documento

 

Estos documentos se entregarán a Habitatge mediante instancia. Una vez resuelto, el propietario podrá solicitar un duplicado o recibir la cédula nueva, según sea el caso.

Si la solicitud de la nueva cédula se ha hecho ignorando que existía una cédula anterior, el requerimiento llega pasados unos días después del registro de la cédula. Si la solicitud de cédula se ha realizado de forma consciente, cuando el técnico realiza el registro de solicitud de la nueva cédula en Habitatge, puede acompañarlo  de la documentación  de renuncia a la cédula anterior para así ganar tiempo.

En Certicedula, previamente al registro de una cédula, siempre comprobamos en la base de datos de Habitatge si una vivienda dispone de cédula vigente. Cuando esto sucede, informamos al cliente de que no es necesario tramitar una nueva cédula y de que se puede buscar un duplicado de la misma.


Contacto con Certicedula
Solicitar Cédula de habitabilidad
Solicitar Certificado energético
Solicitar Oferta cédula de habitabilidad + certificado energético

    Trabaja con nosotros:

    Envia mail a: info@certicedula.com

  • Agència de l'Habitatge de Catalunya

  • Institut Català de l'Energia

  • Col.legi d'Arquitectes de Catalunya

    CERTICEDULA

  • Avda. Catalunya, 10
  • 43700 El Vendrell. Tarragona

  • C/ Lluch, 2-4-6
  • 08016 Barcelona. Barcelona.

  • info@certicedula.com
  • 644 73 16 94

    Nombre Comercial: CERTICEDULA. info@certicedula.com. 644 73 16 94

Requeriments cèdula Habitabilitat








Cédula Habitabilidad

160€. Precio final. La Cédula de Habitabilidad y el Certificado Energético en el Vendrell

Vanessa 2018-09-10


paseo marítimo Sant Salvador

Cédula de Habitabilidad y Certificado Energético en El Vendrell por 130€ (Tasas e iva incluídos). Para viviendas de superficie inferior a 200m2.

Cédula de Habitabilidad en El Vendrell : 120€. Precio final.

Certificado Energético en El Vendrell : 90€. Precio final.

Para un presupuesto detallado, introduciendo provincia, población y documento que necesita, acceder aquí: certicedula.com

 

 

 

Para más información sobre Cédula de Habitabilidad y Certificado Energético en poblaciones de la Costa Daurada, pueden consultar los siguientes enlaces:

Cédula de Habitabilidad y Certificado Energético en Calafell
Cédula de Habitabilidad y Certificado Energético en Cunit
Cédula de Habitabilidad y Certificado Energético en Tarragona

Cédula de Habitabilidad y Certificado Energético en El Vendrell

Cédula de Habitabilidad y Certificado Energético en Torredembarra

 

Cuando se realiza una compra-venta o un alquiler es necesario que la vivienda disponga de la Cédula de Habitabilidad y el Certificado Energético. En esta entrada del blog, analizaremos la situación inmobiliaria en el núcleo urbano de El Vendrell y otros temas relacionados con los informes técnicos de Cédula y Certificación energética.

La villa de El Vendrell es la capital del Baix Penedés, en la provincia de Tarragona. Su población es de 35.000 habitantes, aproximadamente. El Vendrell consta de un núcleo urbano y de varios barrios y urbanizaciones, ocupando un amplio territorio.

Los barrios marítimos más importantes son Coma-Ruga y Sant Salvador. La mayoría de las viviendas de estos barrios se utilizan como segundas residencias. En el caso de los locales, algunos de ellos solo están operativos los meses de verano.

Las urbanizaciones están formadas por viviendas unifamiliares. Muchas de ellas se utilizan como segunda residencia, siendo el porcentaje inferior a los núcleos marítimos.

También es conocido el núcleo adherido de Sant Vicenç de Calders, que da nombre a la parada de la estación de tren de la línea de la costa.

El casco urbano de El Vendrell, formado en su mayoría por edificios plurifamiliares, consta de primeras residencias utilizadas, en un elevado número de casos, como “viviendas dormitorio” por sus propietarios, que trabajan en Barcelona y solo regresan a El Vendrell por las noches.

La vivienda en El Vendrell

La comarca del Baix Penedés ha basado gran parte de su economía en la construcción y el turismo. Desde el inicio de la crisis financiera el sector de la construcción en El Vendrell ha experimentado un gran declive, dando lugar a la tasa más elevada de paro de toda Cataluña. El negocio inmobiliario se ha visto gravemente afectado, dejando a la mayoría de promotores con importantes problemas financieros, y haciendo desaparecer un sinfín de inmobiliarias.

En la actualidad, el negocio inmobiliario se ha reconducido al sector de los alquileres (tanto turísticos como de primera residencia) aunque en los últimos meses se ha comprobado un ligero aumento de las transacciones de compra-venta.

Cédula de Habitabilidad y Certificado Energético en El Vendrell

En los barrios marítimos de Coma-Ruga, Sant Salvador y el Francás, es donde se registra mayor número de alquileres. En estos barrios predomina la tipología edificatoria de edificio de viviendas con zona comunitaria (piscina, jardín, zona de juegos, pista de tenis). Estas características, unidas a la cercanía a la playa y a la proximidad a ciudades como Barcelona (tanto en coche como por tren), convierten a estos barrios en ideales para disfrutar del periodo estival. El alquiler de las viviendas en los barrios marítimos suele ser de tipo vacacional (por semanas) o anual. En ambos casos, se debe solicitar la Cédula de Habitabilidad y el Certificado Energético para poder formalizar el alquiler y registrarlo de forma oficial.

El papel de las inmobiliarias

El propietario de las viviendas utilizadas como segunda residencia, tanto como alquiler vacacional como anual, acostumbra a vivir alejado de la vivienda objeto de alquiler, por lo que le resulta muy difícil gestionar el proceso de alquiler: como enseñar la vivienda a los futuros inquilinos, concretar una cita para firmar el contrato, registrarlo, ocuparse de recoger llaves y entregarlas al siguiente inquilino, etc.

Las inmobiliarias ofrecen al propietario los servicios antes especificados permitiendo al propietario disfrutar de los ingresos del alquiler sin necesidad de desplazarse continuamente hasta la vivienda. Las inmobiliarias acostumbran también a gestionar la Cédula de Habitabilidad y el Certificado Energético con su arquitecto de referencia.

En Certicedula colaboramos con un gran número de inmobiliarias de los barrios marítimos. Cuando un propietario decide alquilar su vivienda vacacional, contrata una inmobiliaria para realizar todas las gestiones. Las inmobiliarias, antes de publicitar la vivienda, deben tener la Etiqueta energética de dicha vivienda y, también, asegurarse de que la Cédula de Habitabilidad estará vigente para el día de la firma del contrato. El agente inmobiliario se pone en contacto con nosotros para concertar una visita a la vivienda y realizar la inspección y toma de datos necesaria para realizar los informes de Cédula de Habitabilidad y Certificado Energético. De esta manera el propietario no ha de desplazarse hasta el apartamento.

Cédula de Habitabilidad y Certificado Energético en la Costa Daurada

En otros municipios de la Costa Daurada, como Calafell o Torredembarra, se repite la misma casuística que en El Vendrell. En los núcleos urbanos predomina la primera residencia y en los barrios marítimos, el alquiler turístico de segunda residencia.

En la capital, Tarragona, el alquiler y la compra se realizan generalmente para primera residencia, como suele ocurrir en las ciudades de cierto tamaño aunque, como en este caso, estén tan cercanas a la playa.

Municipios de menor población, como Cunit o Cubelles, cuentan con una oferta inmobiliaria destinada a la segunda residencia.

En algunas ocasiones, la segunda residencia compite con la oferta hotelera, como en los municipios de Cambrils o Salou.

Las poblaciones de interior basan su oferta inmobiliaria en pisos y casas de primera residencia.

En Certicedula realizamos la Cédula de Habitabilidad y el Certificado Energético en todos los municipios de la Costa Daurada. La forma de trabajo con las inmobiliarias es la misma que con las agencias de El Vendrell. También trabajamos directamente con el cliente particular, que decide poner su vivienda en venta o alquiler. En ese caso, el propietario se pone en contacto con nosotros y concertamos una visita de la vivienda. Conocedores del alto número de viviendas destinadas a segunda residencia y que sus propietarios tienen fijada su primera residencia en una ciudad diferente, y únicamente se desplazan a la segunda residencia los fines de semana, en Certicedula nos adaptamos a la disponibilidad del cliente. En los casos que sean necesarios, podemos realizar las visitas a última hora de la tarde del viernes o a primera hora de la mañana del sábado.


Contacto con Certicedula
Solicitar Cédula de habitabilidad
Solicitar Certificado energético
Solicitar Oferta cédula de habitabilidad + certificado energético

    Trabaja con nosotros:

    Envia mail a: info@certicedula.com

  • Agència de l'Habitatge de Catalunya

  • Institut Català de l'Energia

  • Col.legi d'Arquitectes de Catalunya

    CERTICEDULA

  • Avda. Catalunya, 10
  • 43700 El Vendrell. Tarragona

  • C/ Lluch, 2-4-6
  • 08016 Barcelona. Barcelona.

  • info@certicedula.com
  • 644 73 16 94

    Nombre Comercial: CERTICEDULA. info@certicedula.com. 644 73 16 94

Requeriments cèdula Habitabilitat








Cedula Habitabilidad

La Cédula de Habitabilidad y la Etiqueta Energética en una venta o un alquiler

Vanessa Abajas 2018-05-08


no-recibo-cedula

La Cédula de Habitabilidad y la Etiqueta Energética en una venta o un alquiler

La Cédula de Habitabilidad y la Etiqueta Energética son documentos que se deben presentar de forma obligatoria en los trámites relacionados con la compra-venta de una vivienda y con la redacción de un contrato de alquiler. También se necesita la cédula de habitabilidad para dar de alta suministros o para una reagrupación familiar. Los números de la Cédula de Habitabilidad y de la Etiqueta Energética deben aparecer en los contratos de alquiler y en las escrituras de compra-venta.

¿Desde cuándo se necesita la cédula y la Etiqueta Energética para comprar o alquilar una vivienda?

La Cédula de Habitabilidad es obligatoria para todas las viviendas desde octubre del 2012. Todas las viviendas objeto de transacción, ya sea por compra-venta como por alquiler, deben disponer de Cédula de Habitabilidad.

El Certificado Energético es más reciente. Se implantó julio del año 2013. De igual modo que la cédula, todas las viviendas a partir de la fecha deben disponer de Etiqueta Energética para realizar transacciones.

¿También se debe presentar el Certificado Energético?

No, el Certificado Energético es el informe que redacta el técnico y que sirve de base para la calificación que aparece en la Etiqueta Energética, pero no es un documento oficial, por lo que no es necesario presentarlo.

¿Quién debe encargarse de la solicitud de los documentos?

El propietario de la vivienda es el encargado de contratar el servicio del técnico redactor de los informes, de realizar el pago del servicio, de guardar los documentos y de presentarlos el día de la compra-venta o el contrato de alquiler.

En el caso de la venta de una vivienda, ambos informes pasarán a manos del nuevo propietario. Actualmente, la cédula de habitabilidad y el certificado energético los envía la Generalitat como archivos informáticos en formato pdf, por lo que el nuevo propietario puede recibirlos por e-mail.

En el caso de un alquiler, no hay ninguna necesidad de que el inquilino disponga de los informes, a no ser que necesite la cédula para dar de alta suministros.

¿Los locales también necesitan Cédula de Habitabilidad y el Certificado Energético?

Los locales no pueden tener cédula de habitabilidad, ya que este documento es solo para viviendas. Para vender o alquilar, sí que será necesario disponer de certificado energético.

¿Qué sucede si la vivienda no puede tener cédula?

Cuando una vivienda no es habitable, el técnico no puede solicitar la cédula. En el caso de un alquiler, el propietario deberá hacer las reparaciones pertinentes para que su vivienda cumpla las condiciones de habitabilidad.

En el caso de una venta, el propietario puede actuar como en el caso de un alquiler, reformando la vivienda, o bien, el técnico puede redactar un documento de “No Habitabilidad”. En este documento el técnico justificará los motivos por los cuales la vivienda no es habitable. Si la parte compradora está de acuerdo, la compra-venta se podrá realizar. Una vez la venta se haya realizado, el nuevo propietario deberá realizar las reformas necesarias para que la vivienda pueda tener cédula.

¿Cuándo se debe presentar la Cédula de Habitabilidad y la Etiqueta Energética?

Ambos documentos se deben presentar en el notario el día de la firma de las escrituras.

¿Qué ocurre si no se ha recibido la cédula ni la etiqueta energética el día de la firma del contrato?

Una vez registrado el Certificado Energético, éste suele recibirse en un plazo de 2-5 días, por lo que no suele haber problemas en cuanto a su presentación. En algunos casos, el propietario de la vivienda puede conocer la necesidad de presentar los documentos un día antes de la firma. En ese caso, puede realizarse una visita del técnico y un registro de los documentos en un solo día, obteniendo el número de Etiqueta, lo que permitiría realizar la compra-venta sin necesidad de esperar a la Etiqueta definitiva.

La Cédula puede retrasarse más, ya que el plazo aproximado es de diez días a un mes, siempre y cuando desde el departamento de Habitatge no soliciten documentación extra, lo que puede retrasar varias semanas que se otorgue la cédula.

Para el caso de una compra-venta, existe la posibilidad de realizar la transacción con el documento de registro de la cédula, siempre y cuando la parte compradora está de acuerdo.

En algunas ocasiones, cuando la parte compradora ha solicitado una hipoteca, el banco que realiza la hipoteca pone objeciones a realizar la transacción con la solicitud, por lo que no queda más opción a retrasar la firma hasta que se haya recibido la Cédula definitiva.

Cuando se realiza la firma de un contrato de alquiler, los números de la cédula y de la Etiqueta deben aparecen en los documentos de registro, por lo que no es necesario esperar a tener los documentos definitivos.

¿De cuánto tiempo se dispone para presentar la Cédula y la Etiqueta Energética definitiva?

Si se ha realizado la firma con los documentos de registro, se dispone de dos meses para presentar la Cédula y la Etiqueta definitiva en el Registro de la propiedad.

¿La solicitud de cédula debe estar visada por un colegio profesional?

No es necesario. L’Agència de l’Habitatge ofrece la posibilidad al técnico de registrar el documento sin visarlo en su colegio profesional. Para ello, el técnico debe demostrar que está colegiado en el Colegio Oficial de Arquitectos o en el Colegio Oficial de Arquitectos Técnicos.

¿La solicitud de cédula debe estar firmada por el técnico?

Depende del notario en el que se realiza la transacción. Algunos notarios aceptan el registro de la solicitud de cédula sin la firma del técnico. Otros quieren que el documento esté firmado por el técnico y que el día de la compra-venta se presente el documento con la firma original, sin poder enviar el documento escaneado. En casos más extremos, pueden solicitar que el técnico firme el documento delante del propio notario o, en caso de que no sea posible, que el técnico legitime la firma en otra notaría.

¿Cómo puedo saber si mi vivienda tiene cédula y certificado energético?

Llamando al 012 pueden ofrecer información sobre su vivienda, tanto si tiene cédula vigente, si está caducad o si nunca ha tenido.

¿Qué sucede si no encuentro los documentos antes de la firma?

Se puede solicitar un duplicado de ambos documentos, ya que están en la base de datos de la Generalitat. Para solicitar un duplicado de la cédula, se debe ir personalmente a cualquier delegación de Habitatge con las escrituras y, en caso de que no vaya el propietario de la vivienda, con una autorización de consentimiento para la solicitud del duplicado.

Para la Etiqueta, hay que ponerse en contacto con el Icaen para que envíen de nuevo el archivo de la Etiqueta.

Tanto en el caso de la Cédula como en el de la Etiqueta, el mismo técnico que ha realizado el servicio acostumbra a guardar ambos archivos, por lo que puede reenviarlos al propietario.


Contacto con Certicedula
Solicitar cédula de habitabilidad
Solicitar certificado energético
Solicitar oferta cédula de habitabilidad + certificado energético


Contacto con Certicedula
Solicitar Cédula de habitabilidad
Solicitar Certificado energético
Solicitar Oferta cédula de habitabilidad + certificado energético

    Trabaja con nosotros:

    Envia mail a: info@certicedula.com

  • Agència de l'Habitatge de Catalunya

  • Institut Català de l'Energia

  • Col.legi d'Arquitectes de Catalunya

    CERTICEDULA

  • Avda. Catalunya, 10
  • 43700 El Vendrell. Tarragona

  • C/ Lluch, 2-4-6
  • 08016 Barcelona. Barcelona.

  • info@certicedula.com
  • 644 73 16 94

    Nombre Comercial: CERTICEDULA. info@certicedula.com. 644 73 16 94

Requeriments cèdula Habitabilitat








Cédula Habitabilidad

Asesoramiento de un equipo de arquitectos

Jordi Rovira 2018-03-20


estadistica-cedula

 

Los informes para la Cédula de Habitabilidad y el Certificado Energético deben ser realizados por un profesional cualificado y debidamente colegiado. Estos profesionales pueden ser arquitectos, arquitectos técnicos o ingenieros, según su especialización. En la mayoría de los casos, los informes se resuelven favorablemente y sin contratiempos. En otros, pueden surgir dudas relacionadas con la construcción del edificio o con la normativa urbanística, aspectos que deben ser resueltos por un arquitecto.

Certicedula trabaja conjuntamente con el estudio de arquitectura Abajas-Rovira-Arquitectos, formado por dos arquitectos con más de veinticinco años de experiencia en el ámbito de la construcción y el urbanismo, y con una amplia red de colaboradores en todos los sectores del mercado inmobiliario.

Cuando el propietario de una vivienda contrata la redacción de la Cédula de Habitabilidad y el Certificado Energético con Certicedula, el asesoramiento del equipo de arquitectos está incluido en el precio. Las situaciones en las que un propietario puede necesitar este asesoramiento son variadas. Algunas están directamente relacionadas con los documentos mencionados y otras pueden surgir posteriormente.


Cédula para un local

Una consulta muy habitual es la posibilidad de obtener una cédula de habitabilidad para un local. Tal como explicamos en una entrada anterior, solo las viviendas pueden disponer de cédula de habitabilidad. Cuando un local cumple todas las condiciones para convertirse en vivienda (distribución, instalaciones, equipamiento), un arquitecto debe redactar un proyecto de cambio de uso para legalizarlo como vivienda. Previamente, el ayuntamiento y la comunidad de vecinos deben haber dado su aprobación.

Si el local necesita obras para cumplir la normativa, será necesario redactar un proyecto de reforma interior y cambio de uso. Es muy recomendable consultar a un arquitecto antes de realizar cualquier reforma. En numerosas ocasiones, las obras no se han ejecutado siguiendo la normativa y, para obtener la cédula de habitabilidad, se deben rehacer parcialmente para adaptarse a la legislación vigente.

El estudio Abajas-Rovira-Arquitectos puede proporcionarle toda la información necesaria y redactar el proyecto si el cliente así lo desea.


Obras para obtener la cédula

En algunos casos, una vivienda no cumple la normativa de habitabilidad y no puede obtener la cédula. Nuestros arquitectos pueden ofrecerle la mejor solución técnica, estética y económica para adaptar su vivienda a la normativa actual.

También puede darse el caso inverso: que el equipo de arquitectos haya sido contratado para realizar una reforma interior y aproveche su conocimiento de la normativa para garantizar que la vivienda no tenga problemas a la hora de obtener la cédula.

Un ejemplo reciente ilustra la importancia de consultar a un técnico antes de iniciar una reforma. El propietario de un piso en Torredembarra nos solicitó la Cédula de Habitabilidad y el Certificado Energético para destinar la vivienda a alquiler turístico. Quería obtener el máximo número de plazas. El piso, de gran tamaño, contaba con tres habitaciones dobles y una triple, lo que permitía una ocupación de nueve personas. Disponía de un gran salón-comedor con cocina americana y dos baños.

Cuando recibimos el encargo, la reforma ya estaba terminada. El propietario había optado por una estética muy actual, influenciada por tendencias de interiorismo atrevidas. Por ejemplo, el baño del dormitorio principal estaba integrado en la habitación, sin puerta que lo separara, y con muy pocas opciones de ubicar una puerta sin perder la esencia del diseño. Según la normativa de habitabilidad, un baño debe poder aislarse del resto de estancias. Por este motivo, el conjunto formado por el dormitorio principal y su baño tuvo que considerarse como un único baño, al no poderse dividir de manera funcional.

Finalmente, a efectos de la cédula de habitabilidad, la vivienda quedó distribuida en: salón-comedor-cocina, dos baños y tres habitaciones dobles, con una capacidad de seis personas, perdiendo tres plazas respecto a la configuración deseada. Una consulta previa a un arquitecto habría permitido mantener una mayor ocupación.


División Horizontal

Una vivienda puede subdividirse en varias, siempre que cada unidad resultante cumpla una serie de normativas. En un edificio con varias viviendas existe una División Horizontal. Cualquier edificio residencial habitual cuenta con esta configuración. También puede aplicarse a conjuntos de viviendas adosadas que formen parte de un mismo registro. Aunque la división entre ellas sea “vertical”, también se considera División Horizontal.

Si se solicita la cédula para una vivienda que forma parte de un edificio sin división horizontal realizada, ésta no puede ser concedida. Un ejemplo habitual es una gran casa dividida en varias unidades independientes sin legalizar. En estos casos, igual que con un local que se quiere convertir en vivienda, es necesario un proyecto redactado y firmado por un arquitecto.


Instalaciones energéticas

El equipo de arquitectos estudiará las mejores soluciones energéticas para su vivienda una vez realizado el Certificado Energético. El estudio Abajas-Rovira-Arquitectos, además de su experiencia en eficiencia energética, cuenta con colaboradores especializados en instalaciones que pueden asesorarle en aspectos más concretos.


Dar de alta instalaciones

Contamos con un colaborador que puede encargarse de tramitar el alta de los suministros de su vivienda en cualquier localidad de Cataluña.


Venta y alquiler

El asesoramiento para la compra, venta o alquiler de una vivienda es uno de los servicios más demandados. Podemos ayudarle en todas las gestiones necesarias: desde la documentación previa a la firma, los documentos requeridos ante notaría, los procedimientos para registrar un contrato de alquiler y depositar la fianza, la tasación o incluso gestiones bancarias o legales.

Asimismo, contamos con colaboradores del sector inmobiliario que pueden facilitar la venta o alquiler de su vivienda ofreciéndole sus servicios profesionales.


Contacto con Certicedula
Solicitar Cédula de habitabilidad
Solicitar Certificado energético
Solicitar Oferta cédula de habitabilidad + certificado energético

    Trabaja con nosotros:

    Envia mail a: info@certicedula.com

  • Agència de l'Habitatge de Catalunya

  • Institut Català de l'Energia

  • Col.legi d'Arquitectes de Catalunya

    CERTICEDULA

  • Avda. Catalunya, 10
  • 43700 El Vendrell. Tarragona

  • C/ Lluch, 2-4-6
  • 08016 Barcelona. Barcelona.

  • info@certicedula.com
  • 644 73 16 94

    Nombre Comercial: CERTICEDULA. info@certicedula.com. 644 73 16 94

Requeriments cèdula Habitabilitat








Cédula Habitabilitat

La cédula habitabilitat a Catalunya

Vanessa 2017-01-11


estadistica-cedula

Cèdula d’Habitabilitat a Catalunya

L’equip de Certicedula ha realitzat més de mil dues-centes cèdules d’habitabilitat durant l’any 2017. En aquesta entrada al blog volem fer una estadística dels informes realitzats segons les poblacions i les característiques dels habitatges..

Cèdula d’Habitabilitat a Barcelona

Barcelona és la província més poblada de Catalunya i és d’on es reben la majoria dels encàrrecs, concretament de l’àrea metropolitana. La comarca del Barcelonès és on més cèdules es realitzen, seguida del Vallès Occidental, el Baix Llobregat, el Garraf, el Maresme, el Vallès Oriental, l’Alt Penedès, l’Anoia, el Bages i Osona. Dels 1200 informes analitzats, 106 pertanyen a la ciutat de Barcelona, que és u de cada deu.

Altres poblacions de la província de Barcelona amb gran demanda de realització de cèdula d’habitabilitat i certificat energètic són les següents:

  • Cèdula d’Habitabilitat a Badalona
  • Cèdula d’Habitabilitat a Hospitalet de Llobregat
  • Cèdula d’Habitabilitat a Santa Coloma de Gramenet
  • Cèdula d’Habitabilitat a Sant Adrià del Besòs
  • Cèdula d’Habitabilitat a Sant Cugat del Vallès
  • Cèdula d’Habitabilitat a Cerdanyola del Vallès
  • Cèdula d’Habitabilitat a Sabadell
  • Cèdula d’Habitabilitat a Terrassa
  • Cèdula d’Habitabilitat a Granollers
  • Cèdula d’Habitabilitat a Montgat
  • Cèdula d’Habitabilitat al Masnou
  • Cèdula d’Habitabilitat a Mataró
  • Cèdula d’Habitabilitat a Ripollet
  • Cèdula d’Habitabilitat a Rubí
  • Cèdula d’Habitabilitat a Martorell
  • Cèdula d’Habitabilitat a Barberà del Vallès
  • Cèdula d’Habitabilitat a Igualada
  • Cèdula d’Habitabilitat a Manresa
  • Cèdula d’Habitabilitat a Castelldefels
  • Cèdula d’Habitabilitat a Sitges
  • Cèdula d’Habitabilitat a Vilanova i la Geltrú
  • Cèdula d’Habitabilitat a Vilafranca del Penedès
  • Cèdula d’Habitabilitat a Sant Boi de Llobregat
  • Cèdula d’Habitabilitat a Sant Joan Despí
  • Cèdula d’Habitabilitat a Sant Quirze del Vallès
  • Cèdula d’Habitabilitat a Cubelles
  • Cèdula d’Habitabilitat a Cornellà de Llobregat
  • Cèdula d’Habitabilitat a Esplugues de Llobregat
  • Cèdula d’Habitabilitat a Molins de Rei

Cèdula d’Habitabilitat a Tarragona

La realització de cèdula d’habitabilitat a la província de Tarragona es concentra en dos tipus de poblacions. Per una banda estan les ciutats més poblades i, per altra, els nuclis turístics. La gran oferta d’apartaments de lloguer turístic a la Costa Daurada es reflexa amb un gran nombre d’encàrrecs de cèdules d’habitabilitat. També s’han realitzat gran nombre d’informes en altres nuclis de població d’interior.

Les poblacions on més cèdules d’habitabilitat i certificats energètics s´han realitzat són:

  • Cèdula d’Habitabilitat a Tarragona
  • Cèdula d’Habitabilitat a Reus
  • Cèdula d’Habitabilitat a El Vendrell
  • Cèdula d’Habitabilitat a Calafell
  • Cèdula d’Habitabilitat a Cambrils
  • Cèdula d’Habitabilitat a Salou
  • Cèdula d’Habitabilitat a Torredembarra
  • Cèdula d’Habitabilitat a Roda de Berà
  • Cèdula d’Habitabilitat a Vila-Seca
  • Cèdula d’Habitabilitat a l’Arboç

Cèdula d’Habitabilitat a Girona

El mes d’octubre vam començar a realitzar informes de cèdula d’habitabilitat i certificat energètic a la província de Girona. Amb un 5% del total dels informes realitzats a Certicedula, podem dir que la demanda és molt elevada. Igual que a Tarragona, la demanda es concentra en dos grups. Per una banda tenim la ciutat de Girona on, pel fet de ser una ciutat universitària on es realitzen molts contractes de lloguer, té molta demanda d’informes de cèdula i certificat. Les zones turístiques de la Costa Brava també tenen molta demanda.

Les poblacions on més cèdules d’habitabilitat i certificats energètics s´han realitzat a la província de Girona són:

  • Cèdula d’Habitabilitat a Girona
  • Cèdula d’Habitabilitat a Figueres
  • Cèdula d’Habitabilitat a Roses
  • Cèdula d’Habitabilitat a Palamós
  • Cèdula d’Habitabilitat a Platja d’Aro
  • Cèdula d’Habitabilitat a Lloret de Mar

Cèdula d’Habitabilitat a Lleida

Igual que a la província de Girona, vam començar a realitzar informes durant el mes d’octubre. Al ser la província menys poblada de Catalunya i no abastar la totalitat del territori, la demanda d’informes ha estat molt baixa. La totalitat dels informes es concentra en els nuclis més poblats.

Les poblacions on més cèdules d’habitabilitat i certificats energètics s´han realitzat a la província de Lleida són:

  • Cèdula d’Habitabilitat a Lleida
  • Cèdula d’Habitabilitat a Tàrrega
  • Cèdula d’Habitabilitat a Balaguer
  • Cèdula d’Habitabilitat a Mollerussa

Altres conclusions

Compra o lloguer

No podem donar dades exactes de quin percentatge d’informes s’han sol•licitat per a realitzar la compra d’un habitatge i quin percentatge d’informes es corresponen a lloguer, perquè no hem preguntat en tots els casos quin era el motiu de l’informe. De forma aproximada, podem afirmar que tots dos orígens estan molt igualats. Aquest fet ens serveix com a indicador d’un progressiu augment de les transaccions de compra-venda a Catalunya, confirmant un lent però ascendent revifament econòmic en el mercat immobiliari.

Primera o segona residència

Tampoc tenim dades exactes sobre si l’habitatge en qüestió es tracta d’una primera o segona residència. Per la nostra experiència, l’observació el dia de la visita i la ubicació de l’immoble, podem aproximar les segones residències a un 10% del total de les cèdules que realitzem a Certicedula. La gran majoria d’aquests habitatges són apartaments situats en poblacions a peu de platja, situats a la Costa Daurada i la Costa Brava. També hem realitzat cèdules d’habitabilitat i certificats energètics a la ciutat de Barcelona amb la finalitat d’apartament turístic.

Temps necessari per rebre la cèdula

El temps que triga l’administració en revisar i atorgar la cèdula d’habitabilitat varia d’unes poblacions a unes altres. El nombre d’habitants és un factor important a l’hora d’accelerar el procés, de forma que a les províncies de Girona i Lleida és on menys dies es necessiten d’espera per rebre la cèdula. La província de Barcelona està dividida en varies delegacions d’Habitatge. Dins de la ciutat de Barcelona, també es reparteixen la feina per districtes. Normalment triguen de 20 a 30 dies, depenent del volum de feina i del personal disponible en aquell moment.

A la província de Tarragona el temps és molt dispar. A Tarragona ciutat, el tècnic de l’Habitatge revisa personalment tots els habitatges pels quals es sol•licita la cèdula. Tot i això, el temps d’espera és molt més curt, comparat amb Barcelona (on no es revisen), sent aproximadament de 15 dies.

La província de Tarragona està dividida en vàries delegacions d’Habitatge. Les delegacions encarregades de revisar les cèdules de les poblacions costeres més massificades (Baix Camp, Baix Penedès, Tarragonès excepte Tarragona ciutat) tenen un temps d’espera similar a la província de Barcelona. En el cas del Baix Camp, un tècnic d’Habitatge torna a l’immoble a fer una inspecció.

A les comarques menys poblades de Tarragona, el temps d’espera és inferior. Lleida i Girona són les províncies on els tràmits de cèdula es realitzen en el menor temps, sent, a vegades, inferior als deu dies.


Contacto con Certicedula
Solicitar Cédula de habitabilidad
Solicitar Certificado energético
Solicitar Oferta cédula de habitabilidad + certificado energético

    Trabaja con nosotros:

    Envia mail a: info@certicedula.com

  • Agència de l'Habitatge de Catalunya

  • Institut Català de l'Energia

  • Col.legi d'Arquitectes de Catalunya

    CERTICEDULA

  • Avda. Catalunya, 10
  • 43700 El Vendrell. Tarragona

  • C/ Lluch, 2-4-6
  • 08016 Barcelona. Barcelona.

  • info@certicedula.com
  • 644 73 16 94

    Nombre Comercial: CERTICEDULA. info@certicedula.com. 644 73 16 94

Requeriments cèdula Habitabilitat








Cédula Habitabilidad

La cédula de habitabilidad electrónica

Vanessa 2017-11-06


cedula-electronica

Cédula de Habitabilidad electrónica

L’Agència de l’Habitatge ha puesto en marcha un nuevo sistema de gestión de datos relacionados con el trámite de la Cédula de Habitabilidad. Las novedades más destacadas son un nuevo canal de comunicación entre l’Agència y los técnicos, la posibilidad de registro sin visado y la nueva Cédula de Habitabilidad electrónica. Las cédulas que hayan sido registradas en fecha posterior al 1 de octubre de este año se tramitarán con el nuevo sistema de gestión.

La Cédula de Habitabilidad electrónica

Hasta ahora, una vez l’Agència de l’Habitatge de Catalunya otorgaba una cédula de habitabilidad, el solicitante la recibía por carta, o bien, la recogía de forma presencial en una delegación de Habitatge. A partir de ahora, la cédula se enviará por correo electrónico a la persona solicitante.

Una de las principales ventajas es la inmediatez. Una vez otorgada la cédula, se crea el fichero en formato pdf y se envía a la persona solicitante, con lo que los plazos de entrega se acortan considerablemente. Hasta ahora, una vez concedida la cédula, ésta debía ser impresa y enviada por correo postal. En numerosas ocasiones la carta se perdía, lo que ocasionaba gestiones extra de solicitud de duplicado de forma presencial en una delegación de Habitatge.

Otra gran ventaja es que el propietario de la vivienda dispone del archivo de la cédula y puede imprimirla cada vez que le sea necesario. En caso de pérdida del archivo, podrá volvérselo a descargar desde la web de Habitatge sin necesidad de pedir un duplicado de forma presencial, como se ha hecho hasta la fecha.

El documento de la Cédula de Habitabilidad electrónica es muy similar a la anterior. Únicamente varía la incorporación de un código de barras para que los organismos públicos competentes puedan asegurar la veracidad de los datos. Gracias a este sistema no se podrá falsificar ninguna cédula.

Este nuevo formato de cédula se equipara a la Etiqueta Energética, que también es un documento que se entrega al propietario en formato pdf. El archivo solo tiene que imprimirse y ya es válido.

Nuevo formulario sin visado colegial

L’Agencia de l’Habitatge pone a disposición de los técnicos la opción de registrar de forma telemática la solicitud de cédula sin visado del colegio correspondiente. Hasta la fecha, esta opción solo podía hacerse de forma presencial en una delegación de Habitatge.

Un certificado de habitabilidad visado tiene la misma validez que uno sin visar. La ventaja de un certificado que ha sido registrado en un colegio profesional es que el técnico queda autentificado, es decir, una entidad colegial asegura que la persona que ha firmado el certificado es un arquitecto o un arquitecto técnico. Hay que tener en cuenta que el visado no asegura que el certificado sea correcto.

Cuando se registra en Habitatge un certificado sin visado colegial, los técnicos de Habitatge tienen el trabajo extra de corroborar que el técnico firmante tiene la capacidad profesional de realizar dicho certificado. Se puede decir que, en este caso, es el técnico el que sale beneficiado de esta actualización ya que se ahorra el paso del visado en el proceso de gestión de la cédula.

Nuevos canales de comunicación

La comunicación entre los técnicos y l’Agència de l’Habitatge ha mejorado ligeramente, sin llegar a alcanzar la fluidez que debería tener.

Se ha abandonado la comunicación por vía postal y, ahora, todas las notificaciones llegan por correo electrónico. La gran ventaja es, igual que el caso de la cédula electrónica, la inmediatez de recibo de los comunicados.

Solape de los dos sistemas

En estos momentos, los técnicos tienen la opción de registrar la cédula por el nuevo sistema telemático o, si lo prefieren, continuar con el sistema presencial. Si optan por el registro telemático de la cédula, la persona solicitante la recibirá por correo electrónico.

En caso de registro presencial, el solicitante podrá recoger la cédula personalmente en la Oficina de Habitatge, o bien, recibirla por carta en la dirección postal que haya facilitado.

Las dos opciones, telemática o presencial, dan la opción de registro con o sin visado del colegio profesional. Pero en la opción de registro presencial, el técnico ha de presentar un certificado colegial en el que se da fe de que dicho técnico tienen la capacidad profesional de realizar el informe de la cédula.

L’Agència de l’Habitatge realiza un descuento de la tasa de registro de la cédula si ésta se hace de forma telemática, por lo que la mayoría de técnicos optan por esta opción.

Difícil comienzo

La nueva interface de cédulas de Habitatge ha empezado con muchos errores que se han ido resolviendo a lo largo del mes de octubre.

El principal problema ha sido la desinformación que han sufrido los técnicos. Estos cambios no se han anunciado y tampoco ha habido ningún mecanismo posterior que ayudara en la realización de las gestiones.

Los errores informáticos, desde el registro de documentos hasta el pago de las tasas, han sido muy frecuentes. Los certificados de habitabilidad visados por el colegio profesional no se han adjuntado en la solicitud de registro, por lo que los técnicos de Habitatge han tenido que solicitarlos al técnico mediante requerimientos, alargando el proceso de forma considerable.

Los colegios profesionales también han tenido que adaptarse al nuevo sistema. El Colegio de Arquitectos tuvo que variar el nombre de los archivos que generaba para que pudieran encajar en el formulario de Habitatge. Todos estos cambios se hicieron sobre la marcha, por lo que durante la primera semana de octubre el registro de cédulas estuvo prácticamente parado. La comunicación entre Habitatge y los técnicos vía telemática no ha empezado a funcionar hasta finales de octubre.

Debido a todos los problemas surgidos, en Habitatge ha habido un retraso importante en la concesión de las Cédulas de Habitabilidad. Durante esta primera semana de noviembre, todavía están llegando notificaciones de cédulas registradas a principios de octubre en las que se solicita que se envíe la documentación que no se pudo adjuntar correctamente en los nuevos formularios.

La fluidez en la comunicación de Habitatge con los técnicos es, todavía, la asignatura pendiente. En muchas delegaciones de Habitatge optan por escribir un correo electrónico a los técnicos, e incluso llaman por teléfono, para así poder agilizar las gestiones. Lamentablemente, en otras delegaciones continúan con el tedioso sistema burocrático de las notificaciones y las instancias. No hay que olvidar que es el solicitante de la cédula el perjudicado en las situaciones de demora. Pese a este dificultoso comienzo, todos los cambios realizados han servido para facilitar y agilizar los trámites.


Contacto con Certicedula
Solicitar Cédula de habitabilidad
Solicitar Certificado energético
Solicitar Oferta cédula de habitabilidad + certificado energético

    Trabaja con nosotros:

    Envia mail a: info@certicedula.com

  • Agència de l'Habitatge de Catalunya

  • Institut Català de l'Energia

  • Col.legi d'Arquitectes de Catalunya

    CERTICEDULA

  • Avda. Catalunya, 10
  • 43700 El Vendrell. Tarragona

  • C/ Lluch, 2-4-6
  • 08016 Barcelona. Barcelona.

  • info@certicedula.com
  • 644 73 16 94

    Nombre Comercial: CERTICEDULA. info@certicedula.com. 644 73 16 94

Requeriments cèdula Habitabilitat








Cédula Habitabilitat

Requeriments cèdula Habitabilitat

Vanessa Abajas 2017-10-01


requeriment cedula habitabilitat En algunes ocasions l’Agència de l’habitatge de Catalunya pot trobar alguna dada incorrecta o insuficient a la sol•licitud de cèdula d’habitabilitat que registra el tècnic. Aquesta documentació extra o corregida que demanen des d’Habitatge es diu Requeriment de Cèdula. El sol•licitant de la cèdula rep el Requeriment per correu certificat. En aquest document s’explica el motiu de requeriment i també la forma de corregir o ampliar la informació per tal de que la cèdula es pugui otorgar.

El Requeriment dins del procés de sol.licitud de la cèdula d’habitabilitat

El tècnic visita l’habitatge pel qual es demana la cèdula i pren una sèrie de dades que serviran per omplir la sol•licitud de cèdula. El tècnic redacta un document, el Certificat d’Habitabilitat, el visa al Col•legi professional corresponent, i el registra a l’Agència de l’Habitatge. Quan un habitatge no ha tingut mai cèdula d’habitabilitat, el tècnic ha de presentar un document on declara l’antiguitat de l’habitatge.

Els tècnics de l’Agència de l’Habitatge revisen el Certificat d’Habitabilitat i s’asseguren que tot estigui correcte i en consonància amb les dades que ells tenen als seus arxius. Si tot és correcte, donen la cèdula per otorgada i realitzen el document definitiu de la Cèdula d’Habitabilitat. El sol•licitant rep la cèdula per correu postal o va a buscar-la personalment, segons hagi especificat a la sol.licitud de cèdula.

Quan els tècnics d’Habitatge revisen la documentació, pot ser que trobin algun impediment per otorgar-la. Llavors envien el Requeriment per carta certificada al sol.licitant de la cèdula, que acostuma a ser el propietari de l’habitatge. Un cop es realitza allò que es demana al Requeriment, Habitatge otorga la cèdula i el sol.licitant la rep.

Motius de Requeriment de Cèdula d’Habitabilitat

Hi ha quatre grans grups de requeriments: falta de documentació, error en la documentació aportada, disconformitat entre la documentació aportada i la de les bases de dades d’Habitatge, i inspeccions de l’habitatge (poden demanar la realització d’una inspecció o presentar un informe desprès d’haver fet una inspecció).

Falta de documentació

Cas 1

Normalment es tracta del document de Declaració Responsable d’Antiguitat, que no ha estat adjuntat o no està signat pel tècnic. Per tal d’aportar la documentació que falta, el tècnic pot fer una instància i adjuntar l’arxiu, o pot presentar la documentació de forma presencial a una delegació d’Habitatge.

Cas 2

Una sol.licitud de cèdula aporta molt poca informació de l’habitatge. Els tècnics que han d’otorgar la cèdula no veuen fotos de l’habitatge, ni plànol de distribució, ni escriptures ni cap altre tipus de documentació, ja que no es demana. En una situació normal, amb la documentació que reben del tècnic tenen suficient per otorgar la cèdula. Però es pot donar un cas complicat on els tècnics d’Habitatge necessitin documentació extra per entendre la situació de l’habitatge. En aquestes situacions s’acostuma a demanar l’Escriptura o una Nota Registral Extensa.

Error en la documentació aportada

Pot passar que el tècnic tingui un petit error a l’hora de redactar els documents, des d’una equivocació fins a una omissió. En aquest cas el tècnic ha de refer el document erroni i enviar-lo a Habitatge per instància o bé portar-lo personalment. Si es tracta d’un error al Certificat d’Habitabilitat, el tècnic l’ha de tornar a visar al seu Col•legi tècnic corresponent.

Disconformitat entre la documentació aportada i la de les bases de dades d’Habitatge

La disconformitat es pot donar a l’adreça de l’habitatge, la superfície, l’antiguitat o, fins i tot, que no es tracti d’un habitatge.

Quan l’adreça de la sol•licitud de cèdula no coincideix amb la que apareix a les bases de dades o directament no apareix, normalment demanen un Certificat del número de policia de l’habitatge. Aquest document el facilita d’ajuntament de la localitat on s’ubica l’habitatge pel qual es demana la cèdula. Normalment és gratuït i s’obté en pocs dies. Malauradament, en algunes ocasions, el sol•licitant ha de pagar pel document i/o esperar molts dies fins que el seu ajuntament li facilita. Aquest Certificat del número de policia és un document on el representant de l’ajuntament certifica que l’habitatge està situat a una adreça i té una referència cadastral. Es un cas habitual en els habitatges situats a zones rural, on no hi ha nom de carrer.

Si la es tracta d’una diferència de superfície, els tècnics d’Habitatge poden demanar les escriptures o un plànol de l’habitatge signat pel tècnic. Es pot donar en el cas d’ampliacions de l’habitatge que no han estat declarades.

Si la discrepància es troba en l’antiguitat de l’habitatge, es demana un document que justifiqui aquesta antiguitat, com pot ser l’Escriptura d’obra nova o una Nota Registral Extensa.

En el cas que es sospiti que podria no tratar-se d’un habitatge (i estar registrat com a oficina o local), es demana on document oficial on es certifiqui l’ús d’habitatge, com poden ser l’Escriptura o una Nota Registral.

Inspeccions

Algunes delegacions d’Habitatge fan inspeccions aleatòries als habitatges. Per concertar una visita, truquen al telèfon que apareix a la sol•licitud de cèdula. Quan no poden contactar per via telefònica, envien un requeriment. Un cop realitzada la visita, aquesta pot ser satisfactòria i la cèdula serà otorgada en breu. Però si el tècnic de l’ajuntament ha trobat algun element incorrecte, escriurà una sèrie d’esmenes que arribaran al sol•licitant mitjançant un requeriment.

Es pot tractar d’una discrepància de superfícies entre la sol•licitud de cèdula i la realitat, o d’una interpretació diferent de les normatives del tècnic d’Habitatge i el tècnic redactor de la sol•licitud de cèdula. En aquest cas, el tècnic redactor haurà de corregir el certificat d’habitabilitat i tornar-lo a presentar.

Però es pot donar el cas que l’habitatge no compleixi els mínims d’habitabilitat exigits segons el decret de l’any que es va construir. Per exemple, algunes estances no arriben a la superfície o alçada mínimes, es presenten humitats o desperfectes com rajoles trencades. En aquest cas, el tècnic redactor de la sol•licitud va ser massa permissiu, o en casos ambigus, tots dos tècnics tenen diferents marges de tolerància.

Si es tracta de desperfectes, un cop subsanats, s’envien les fotos de la reforma a l’Agencia de l’Habitatge i aquesta otorga la cèdula.

En un cas extrem on sigui impossible adequar l’habitatge a les exigències del Decret d’Habitabilitat, l’habitatge no serà habitable legalment i no podrà obtenir la Cèdula d’Habitabilitat.

L’habitatge encara té una Cèdula Vigent

Si un tècnic realitza la sol•licitud de cèdula d’un habitatge que té la cèdula encara vigent, el sol•licitant rebrà un requeriment on l’informen d’aquest fet i li donen l’opció de continuar amb la tramitació o desistir-ne.


A Certicedula som arquitectes col.legiats experts en tramitació de cèdules d'habitabilitat i certificats energètics.Pot posar-se en contacte amb nosaltres i resoldre qualsevol dubte sobre el tema i sol.licitar-nos l'informe que necessiti.


Contacto con Certicedula
Solicitar Cédula de habitabilidad
Solicitar Certificado energético
Solicitar Oferta cédula de habitabilidad + certificado energético

    Trabaja con nosotros:

    Envia mail a: info@certicedula.com

  • Agència de l'Habitatge de Catalunya

  • Institut Català de l'Energia

  • Col.legi d'Arquitectes de Catalunya

    CERTICEDULA

  • Avda. Catalunya, 10
  • 43700 El Vendrell. Tarragona

  • C/ Lluch, 2-4-6
  • 08016 Barcelona. Barcelona.

  • info@certicedula.com
  • 644 73 16 94

    Nombre Comercial: CERTICEDULA. info@certicedula.com. 644 73 16 94

Requeriments cèdula Habitabilitat








Cédula Habitabilidad

Caducidad de la cédula de habitabilitat

Vanessa Abajas 2017-06-01


cedula La Cédula de Habitabilidad es el documento que acredita que una vivienda cumple las normativas de habitabilidad, es decir, que puede ser apto para residencia humana. La persona propietaria de la vivienda necesita la cédula para vender, alquilar o dar de alta los suministros de su vivienda. Si la vivienda nunca ha tenido cédula, el propietario debe encargarse de la gestión para solicitar una. Si la vivienda tiene cédula pero está caducada, el propietario también debe encargarse de solicitar la renovación de la misma.

¿Desde cuándo es obligatoria la Cédula de Habitabilidad?

La obligatoriedad de la cédula entró en vigor con el decreto 141/12 del 30 de octubre de 2012. Antes de esa fecha, la cédula de habitabilidad era opcional y una vivienda podía venderse, alquilarse o dar de alta suministros sin que fuera requerida.

 

¿Qué tipos de cédula de habitabilidad hay?

Puede tratarse de una cédula de primera ocupación, que es la que se concede a una vivienda que se acaba de construir y todavía no ha sido habitada. En este caso, es el promotor quien debe encargarse de los trámites de su solicitud a la Generalitat, aunque, a efectos prácticos, es el arquitecto que ha realizado el proyecto quien se encarga de la gestión de solicitud de la cédula a Habitatge.

La cédula de Segunda Ocupación es la que se concede a las viviendas que ya han sido habitadas. Puede tratarse de una renovación de una cédula de primera ocupación que ya ha caducado o de una vivienda que no ha tenido cédula anterior porque en el momento de su construcción dicho documento no era obligatorio.

 

¿Qué diferencia hay entre los dos tipos de cédulas?

La única diferencia es el título de los documentos. El formato es el mismo, así como la información que contienen. La normativa a cumplir en los dos casos es la relativa al año de construcción de la vivienda.

 

¿Cuál es la vigencia de una Cédula de Primera Ocupación?

La vigencia de una Cédula de Primera Ocupación que se concede con fecha posterior a 30 de octubre de 2012 es de 25 años.

Una Cédula de Primera Ocupación concedida con fecha anterior a la entrada en vigor del Decreto 141/12 tendrá la caducidad que estipule el decreto que estaba en vigor cuando ésta fue concedida. Como se puede observar, la caducidad de la cédula es variable y depende de la fecha en la que fue expedida.

Si la vivienda se construyó entre 1984 y 2003, la caducidad es de 10 años. Si se construyó entre 2003 y 2012, la caducidad es de 15 años.

 

¿Cuál es la vigencia de una Cédula de Segunda Ocupación?

Igual que en el caso de una Cédula de Primera Ocupación, la caducidad de una Cédula de Segunda Ocupación es variable, dependiendo de la fecha de construcción.

 

Viviendas anteriores al 11 de agosto de 1984: En verano de 1984 se produjo el traspaso de poder en temas de Habitatge del Gobierno Central a la Generalitat. Las cédulas expedidas con fecha anterior a 11 de agosto no tienen validez y deben ser solicitadas de nuevo.

 

Viviendas construidas en fecha posterior al 11 de agosto de 1984 y anterior a 2004: La caducidad de estas cédulas es de 10 años.

Viviendas construidas en fecha posterior a 2004 y anterior a 2012: La caducidad de estas cédulas es de 15 años.

Viviendas construidas en fecha posterior al 30 de octubre de 2012: La caducidad de estas cédulas es de 15 años.

 

¿Cómo puedo saber si la Cédula de Habitabilidad de mi vivienda ha caducado?

La fecha de caducidad aparece en el documento, en la parte inferior izquierda. Si no encuentra la Cédula y sospecha que puede estar todavía vigente, puede llamar a 012 y allí le informarán.

En el mismo documento de la cédula aparece la fecha máxima de validez. Si no dispone del documento, puede llamar al 012. Allí le informarán si su vivienda tiene cédula de habitabilidad y si todavía está vigente.

 

Si la Cédula de Habitabilidad de mi vivienda ha caducado, los trámites a seguir son diferentes a los trámites de solicitud de cédula de una vivienda que nunca ha tenido cédula.

 

Los trámites son exactamente los mismos. La única diferencia es que el cliente debe informar al técnico que realiza el informe de que la vivienda dispone de una cédula de habitabilidad que está caducada. El técnico incluirá el número de cédula cadauca en el informe para facilitar el trabajo a los técnicos de Habitage.

 

 

¿Qué debo hacer si la Cédula de Habitabilidad de mi vivienda ha caducado?

Si la cédula ha caducado, se debe solicitar la renovación de la misma. Será un técnico (arquitecto o arquitecto técnico) quien se encargue de la tramitación. El técnico visitará la vivienda, tomando medidas de la misma y realizando una inspección visual para comprobar que se encuentra en un estado adecuado para ser habitada.

El técnico redactará un Certificado de Habitabilidad o un Certificado de Idoneidad, que dependerá de la fecha de construcción del inmueble o de si dispone de cédula anterior. Este Certificado lo presentará en Habitatge, donde expenderán una Cédula de Segunda Ocupación para la vivienda.

 


Contacto con Certicedula
Solicitar Cédula de habitabilidad
Solicitar Certificado energético
Solicitar Oferta cédula de habitabilidad + certificado energético

    Trabaja con nosotros:

    Envia mail a: info@certicedula.com

  • Agència de l'Habitatge de Catalunya

  • Institut Català de l'Energia

  • Col.legi d'Arquitectes de Catalunya

    CERTICEDULA

  • Avda. Catalunya, 10
  • 43700 El Vendrell. Tarragona

  • C/ Lluch, 2-4-6
  • 08016 Barcelona. Barcelona.

  • info@certicedula.com
  • 644 73 16 94

    Nombre Comercial: CERTICEDULA. info@certicedula.com. 644 73 16 94

Requeriments cèdula Habitabilitat








Certificado Energético

Medidas sencillas de ahorro energético

Jordi Rovira 2017-02-01


Ahorro energético En otras entradas de este blog hemos analizado los factores que influyen en la calificación energética de un edificio o de una vivienda. En esta entrada vamos a dar consejos sencillos, muchos de ellos de sabiduría popular, para ahorrar en nuestra factura de la luz y del gas. Deberíamos empezar con el consejo más importante: la elección de nuestro inmueble. No es lo mismo una vivienda aislada, una adosada, pareada o un piso en un edificio. Este factor es el más determinante ya que la superficie expuesta es muy diferente. No es lo mismo refrigerar o calefactar una vivienda unifamiliar aislada que un piso en un edificio plurifamiliar.

Consejos sencillos:

  • El termostato:

El primer consejo es mirar donde tenemos nuestro termostato, es decir, donde se realiza la medición de la temperatura de nuestro inmueble. Parece un consejo muy simple pero en nuestra experiencia como certificadores energéticos nos hemos encontrado con casos en los que el termostato se encontraba en la galería. Si la temperatura de referencia es la galería, un espacio semi-exterior, de uso ocasional y no habitable, la temperatura del comedor será mucho más elevada al encontrarse en un espacio interior. De 22º en la galería podremos tener 25º en el comedor. El despilfarro energético y económico es brutal. El termostato debe estar en el comedor o en un pasillo, es decir, un lugar donde se realice la actividad y donde debemos acondicionar el ambiente. Un consejo fundamental es tener en cuenta que cada grado de temperatura que subamos nuestro termostato es un 10% más de coste en nuestra factura de luz o gas.

  • Persianas y ventanas:

Otro consejo muy sencillo es bajar las persianas o utilizar cortinas gruesas en las ventanas. Nuestros abuelos no disponían de los avances tecnológicos ni se podían permitir utilizar las fuentes de energía barata que tenemos hoy en día: lo suplían con sentido común e ingenio. Bajando las persianas al atardecer conseguimos que el calor de la casa no se disipe al desaparecer el sol y bajar las temperaturas. Las cortinas de la abuela, gruesas y pesadas eran feas pero proporcionaban un aislamiento extra en las ventanas por donde entraba el frío. En verano se cambiaban las cortinas de invierno por otras de verano, más ligeras y livianas, acorde con el buen tiempo. Nuestros abuelos también utilizaban alfombras gruesas en los suelos, otro aislante entre las diferentes plantas de andar por casa, y eso que no conocían el CTE (código técnico de la edificación) que obliga a aislar las diferentes plantas de un edificio. Otro consejo es aislar las ventanas y las puertas de la vivienda. Utilizando burletes que se pueden adquirir por un par de euros en cualquier ferretería podemos ahorrar en nuestra factura energética. Estos burletes en las ventanas sellaran éstas contra el paso del frío. Las puertas de entrada de viviendas unifamiliares o plurifamiliares son puntos críticos que no les prestamos atención: un simple burlete debajo de la puerta de entrada es sencillo y económico.

Deberíamos revisar la silicona que sella ventanas y puertas. Cuando se encuentra reseca y agrietada ya no realiza su función: aislar y sellar. Su módico precio y su fácil colocación es una buena inversión para nuestra casa.

  • Radiadores:

Otro consejo muy sencillo para las viviendas que utilizan un sistema de radiadores de agua o aceite es utilizar chapas metálicas detrás de éstos para evitar que el calor irradiado por el radiador se pierda. En nuestra experiencia vemos muchos casos de viviendas con radiadores en las que se ha colocado una caja de madera o plástico para forrar el radiador y darle un aspecto más acorde con la casa. El radiador es el pulmón de nuestro sistema de calefacción y debemos dejarlo respirar. Debemos purgarlos regularmente para que cumpla con su función. Si el radiador se encuentra en una pared que da al exterior o a nuestro vecino es porque es una zona fría donde habrá un cambio de temperatura. Lo recomendable es que el calor irradiado vaya hacia el interior de la vivienda no hacia el exterior o al vecino. Para evitar eso debemos utilizar chapas metálicas que venden en ferreterías o grandes almacenes que colocaremos detrás del radiador haciendo de pantallas reflectante del calor emitido hacia el interior de nuestra vivienda. También se pueden montar sistemas más caseros como forrar un cartón con papel de aluminio de cocina. El coste de esta última medida es absolutamente despreciable en comparación con unos resultados obtenidos magníficos.

  • Ventilación de la vivienda:

Otro consejo sencillo pero que se olvida habitualmente es la hora de ventilar la vivienda. La vivienda debe ventilarse 5 -10 minutos diariamente para renovar el oxígeno y expulsar el CO2 que han emitido las personas durante el día anterior. Al renovar el aire del interior adquirimos aire del exterior que se encuentra a una temperatura diferente. En invierno el aire exterior es más frío y podemos echar a perder en unos pocos minutos todos los sistemas de calefacción y todas las técnicas de ahorro que se han mencionado anteriormente. Por este motivo hay que ventilar la vivienda a una hora en la que la diferencia de temperatura entre el interior y el exterior es menor, es decir, a mediodía. Normalmente lo que sucede es que nuestra rutina laboral nos obliga a realizar la renovación por la mañana aunque no sea lo más recomendable.

  • Conclusión:

El consejo más importante es el sentido común: no se puede estar en la vivienda en pleno invierno como si estuviéramos en verano. Nuestro cuerpo y nuestro espacio vital tienen que estar en consonancia con el entorno y medio en el que nos encontramos. En invierno debemos abrigarnos un poco más cuando estamos en casa y utilizar batas o pequeñas mantas no quiere decir vivir en peores condiciones. Ya llegará un tiempo más agradable donde podremos ir en bañador y con playeras por casa.


En Certicedula somos arquitectos colegiados expertos en tramitación de cédulas de habitabilidad y certificados energéticos. Puede ponerse en contacto con nosotros y le aclararemos todas las dudas relacionadas sobre el tema y también puede solicitarnos el informe que necesite.


Contacto con Certicedula
Solicitar Cédula de habitabilidad
Solicitar Certificado energético
Solicitar Oferta cédula de habitabilidad + certificado energético

    Trabaja con nosotros:

    Envia mail a: info@certicedula.com

  • Agència de l'Habitatge de Catalunya

  • Institut Català de l'Energia

  • Col.legi d'Arquitectes de Catalunya

    CERTICEDULA

  • Avda. Catalunya, 10
  • 43700 El Vendrell. Tarragona

  • C/ Lluch, 2-4-6
  • 08016 Barcelona. Barcelona.

  • info@certicedula.com
  • 644 73 16 94

    Nombre Comercial: CERTICEDULA. info@certicedula.com. 644 73 16 94

Requeriments cèdula Habitabilitat








Certificado Energético

Como ahorrar en las facturas de luz y gas con energías limpias

Jordi Rovira 2017-01-01


Un porcentaje elevado del gasto de luz y gas en una vivienda es el que se destina a la aclimatación de la misma, tanto en verano con el aire acondicionado, como en invierno con la calefacción. Ante las cada vez más elevadas facturas energéticas, debido al aumento de las tarifas de las compañías suministradoras, sin olvidar la contaminación que estas energías generan, se crea la necesidad de buscar sistemas sostenibles para reducir el consumo. Las energías limpias, aquellas basadas en fuentes renovables de energía (solar, eólica), reducen la emisión de gases contaminantes al aire respecto a los sistemas de acondicionamiento basados en energías no renovables (carbón, petróleo, gas natural).

En un primer momento, la incorporación de sistemas basados en energías renovables supone un gasto elevado pero a la larga se acaba recuperando la inversión inicial. La reducción del gasto familiar en suministros se reduce considerablemente y se promueve una conciencia de vida sostenible acorde con el cuidado del medioambiente.

Viviendas de nueva construcción

Durante la fase de proyecto de una vivienda pueden tomarse una serie de decisiones basadas en criterios bioclimáticos pasivos, que son aquellos que aprovechan las condiciones de la naturaleza para disminuir las necesidades energéticas y, por tanto, el gasto.

Como bioclimatismo pasivo entendemos la correcta orientación de la fachada, sistemas de protección solar, aislamiento, ventilación cruzada o cubiertas vegetales, entre otros.

Aunque en principio el arquitecto encargado del proyecto de la vivienda o del bloque de viviendas incorporará los sistemas más habituales de bioclimatismo pasivo, tales como orientar correctamente las viviendas o permitir la ventilación cruzada, no está de más informarle de nuestras pretensiones por conseguir una vivienda sostenible. La fase de proyecto de la vivienda es el mejor momento para estudiar los sistemas de bioclimatismo que se incluirán en ésta. Una vez ésta esté construida, incorporar dichos sistemas sería de gran dificultad, como, por ejemplo, modificar el tipo o el grosor del aislamiento en fachadas o en la cubierta.

Futura vivienda

Frente a la compra o alquiler de una vivienda, debemos tener en cuenta varios factores. Una decisión acertada nos salvará de elevadas facturas en los consumos de luz y gas.

La orientación de la vivienda es fundamental. Una vivienda soleada retrasará el encendido de la calefacción en invierno y el número de horas que ésta estará encendida. Si esta misma vivienda, que recibe luz en invierno, cuando llega el verano dispone de sistemas de protección solar, como voladizos o toldos, podrá evitar o minimizar el uso de aire acondicionado.

En los lugares fríos, cuando la vivienda no dispone de sistemas bioclimáticos pasivos y la calefacción va a ser usada durante gran parte del año, se debe tener muy en cuenta la fuente de energía que se usará para el calentar la vivienda. La calefacción eléctrica en estos casos supone unas facturas de la luz muy elevadas, por lo que es mejor el gas natural.

Viviendas existentes

En el caso de las viviendas existentes, cuando queramos mejorar las condiciones de la vivienda para que sea más sostenible, contaminando menos y reduciendo el consumo, utilizaremos sistemas de bioclimatismo activo, que son aquellos que pueden integrarse en un inmueble ya construido con el objeto de aumentar su eficacia energética.

Los sistemas más habituales basados en principios de bioclimatismo activo son los siguientes:

También llamada energía termosolar, funciona aprovechando el calor del sol para calentar el agua. Se utiliza para agua caliente sanitaria (ACS) y para calefacción por suelo radiante.

Unos colectores (placas solares), situados en un lugar del exterior de la vivienda donde reciban el máximo de radiación solar posible, absorben la luz solar y calientan un fluido especial conductor del calor. Una bomba transporta el fluido hasta el intercambiador de calor del acumulador solar. Allí, la energía térmica se transmite a un depósito de almacenamiento. Si la temperatura del agua es insuficiente, se activa un sistema de calentamiento convencional hasta conseguir la temperatura deseada del agua.

Un sistema de energía solar térmica proporciona de media el 60% de la energía necesaria para satisfacer las necesidades de agua caliente.

Acoplando un refrigerador por absorción a esta instalación, podemos refrigerar la vivienda en verano gracias a la tecnología del frío solar.

Las bombas de calor geotérmicas aprovechan las temperaturas del subsuelo para calentar una vivienda o enfriarla, según la época del año.

Este sistema permite obtener en la misma instalación calefacción, refrigeración y agua caliente.

Unos pocos metros bajo tierra se acumula el calor del sol a una temperatura constante todo el año. Es una energía limpia que aprovecha el calor del subsuelo para climatizar de forma ecológica.

El sistema más utilizado es la captación geotérmica vertical, que consiste en extraer o ceder calor de la tierra mediante sondas de captación de circuito cerrado, realizadas a una profundidad de entre 80 y 150 cm.

Se trata de una fuente de energía renovable, ecológica y autóctona. Se utiliza la materia orgánica como fuente de energía. Puede ser desde deshechos de agricultura (cáscaras de frutos secos, restos de poda de vid…) a restos de madera, como pellets o serrín.

Se utiliza para obtener calefacción (por suelo radiante) y para agua caliente sanitaria.

Produce menos emisiones por su forma de combustión. Ayuda a mantener limpios los bosques por lo que ayuda en la prevención de incendios.

Se debe instalar una caldera para pellets (fabricados a base de residuos forestales). El material se quema poco a poco en las calderas, por lo que genera cenizas que pueden ser utilizadas posteriormente como abono.

Están formados por células fotovoltaicas que producen electricidad a partir de la luz que incide sobre ellos mediante el efecto fotoeléctrico. Transformamos energía solar en eléctrica.

Se utiliza para cualquier sistema de climatización que funcione mediante electricidad.

  • Energía solar térmica
  • Geotermia
  • Biomasa
  • Paneles solares fotovoltaicos

 

La Calificación Energética

Una vivienda construida bajo criterios bioclimáticos obtendrá la calificación máxima (letra A) en el Certificado Energético. Esta calificación se obtiene cuando las necesidades externas energéticas de la vivienda son prácticamente inexistentes, ya que la misma vivienda es capaz de autorregular sus condiciones térmicas, y las emisiones producidas son también inapreciables.


En Certicedula somos arquitectos colegiados expertos en tramitación de cédulas de habitabilidad y certificados energéticos. Puede ponerse en contacto con nosotros y le aclararemos todas las dudas relacionadas sobre el tema y también puede solicitarnos el informe que necesite.


Contacto con Certicedula
Solicitar Cédula de habitabilidad
Solicitar Certificado energético
Solicitar Oferta cédula de habitabilidad + certificado energético

    Trabaja con nosotros:

    Envia mail a: info@certicedula.com

  • Agència de l'Habitatge de Catalunya

  • Institut Català de l'Energia

  • Col.legi d'Arquitectes de Catalunya

    CERTICEDULA

  • Avda. Catalunya, 10
  • 43700 El Vendrell. Tarragona

  • C/ Lluch, 2-4-6
  • 08016 Barcelona. Barcelona.

  • info@certicedula.com
  • 644 73 16 94

    Nombre Comercial: CERTICEDULA. info@certicedula.com. 644 73 16 94

Requeriments cèdula Habitabilitat








Certificado Energético

La calificación de la etiqueta energética II

Vanessa Abajas 2016-12-01


Esta entrada al blog es la continuación de la anterior entrada, dedicada a la Calificación Energética. En la anterior entrada se hacía un repaso del vocabulario referente a temas energéticos, se explicaba el funcionamiento de los programas que calculan la eficiencia energética de los inmuebles y se hacía un breve resumen de las características más relevantes de los inmuebles que influyen en el resultado del cálculo de emisiones y consumo. En esta entrada haré una clasificación de los inmuebles según la calificación energética que suelen obtener. Se trata de una clasificación muy general, basada en mi propia experiencia y en la consulta de informes oficiales, en los que tengo en cuenta los resultados más habituales que se dan en cierto tipo de viviendas con características similares de construcción o de situación.

Aunque la calificación energética puede darse también a locales o a edificios del sector terciario, reservaré otra entrada al blog para estudiar la clasificación energética de estos inmuebles y, en esta entrada al blog, me centraré únicamente en las viviendas.

Fecha de construcción del inmueble y normativas

Si bien la fecha de construcción del inmueble no es un factor determinante (como puede ser la orientación solar), el programa de cálculo supone que un inmueble construido en una fecha cumple las normativas de construcción que estaban aquel año en vigor. Pero ésto no siempre sucede y, en algunos casos, un inmueble puede construirse mejorando las condiciones de confort exigidas o, también, puede darse en caso contrario. En la clasificación que realizaré no tendré en cuenta estos inmuebles que no se corresponden con la normativa vigente.

Para la clasificación, se mantendrá el criterio de los programas de cálculo, que divide los inmuebles en cuatro grandes grupos según su fecha de construcción:

  • Anterior a 1981
  • Construidos entre 1981 y 2007
  • Estos inmuebles cumplen la normativa NBE-CT-79. Gracias a esta normativa se introdujeron mejoras considerables en los sistemas constructivos, como, por ejemplo, la obligatoriedad de colocar aislamiento térmico en las fachadas.
    • Construidos entre 2007 y 2014
    • Cumplen con la normativa CTE 2006. Las mejoras que introduce el Código Técnico de la Edificación incluyen todos los campos, ofreciendo resultados excelentes en el terreno energético. Entre estas mejoras encontramos la eliminación de puentes térmicos en los edificios o la obligación de incorporar sistemas de energías renovables para ACS.
      • Posterior a 2014
      • Incluyen las últimas mejoras en el Código Técnico.

      Cada normativa que se aprueba mejora las condiciones de la anterior, por lo que un edificio construido según una normativa más reciente será más eficiente energéticamente que los construidos con normativas anteriores, produciendo menos emisiones, generando menos consumo y proporcionando más confort a los usuarios.

      Clasificación según la Calificación Energética


      calificacion etiqueta energetica
       

      Condiciones energéticas *: Se refiere a condiciones constructivas, de orientación solar, de protección frente al exterior (superficie de la vivienda en contacto con el exterior), que sean favorables o desfavorables para el rendimiento energétic de la vivienda.

      Calificación G

      Se trata de la peor calificación que puede obtener un inmueble. Se produce el caso extremo de consumo y emisiones. No es muy habitual, ya que deben darse una serie de condiciones muy desfavorables para que la demanda energética y las emisiones de dióxido de carbono sean tan elevadas.

      Para que un inmueble obtenga esta calificación, deben cumplirse la mayoría de estas condiciones:

      • Suele tratarse de inmuebles muy antiguos, construidos con anterioridad a 1981. Las paredes pueden tener un grosor de 15 cm, sin aislamiento térmico.
      • La carpintería exterior es de madera y el vidrio es sencillo.
      • Son inmuebles muy desprotegidos frente a las inclemencias del tiempo. Por ejemplo, en el caso de viviendas unifamiliares aisladas, cuando éstas tienen cuatro fachadas exteriores, una cubierta plana o inclinada y un porche inferior, por lo que están desprotegidas por seis caras.
      • Están mal orientados. Un inmueble que solo dispone de oberturas de fachada a Norte, no recibirá la suficiente radiación solar, por lo que tendrá una demanda altísima.
      • El sistema de agua caliente sanitaria (ACS) es un termo eléctrico.

      Calificación F

      La calificación F es más habitual que la G. Se trata también de viviendas antiguas, pero con características no tan desfavorables. Se suele dar en los siguientes casos:

      • Inmuebles construidos con anterioridad a 1981, bien orientados y no tan desprotegidos. Por ejemplo, pisos en edificios de viviendas.
      • Inmuebles construidos entre 1981 y 1990 y desprotegidos o mal orientados. Suelen ser viviendas unifamiliares.

      Calificación E

      Se trata de la calificación más habitual en viviendas anteriores a 2006.

      • Inmuebles anteriores a 1981 en edificios de viviendas, bien orientados y protegidos de la luz de sur, con dos fachadas opuestas que permiten ventilación cruzada, protegidos del exterior rodeados de otras viviendas (no son áticos ni bajos ni están sobre un local o un garaje), carpintería exterior metálica con vidrío doble.
      • Inmuebles construidos entre 1981 y 2007, pueden ser viviendas unifamiliares más protegidas y mejor orientadas, con aislamiento térmico y carpintería exterior metálica y vidrío doble. En el caso de viviendas en edificios, cuentan con características similares a las construidas con anterioridad a 1981, cuyo factor principal es estar protegidas por más fachadas que en situaciones anteriores.

      Calificación D

      Las viviendas anteriores a 2007 con muy buenas condiciones de orientación, protección solar, proporción muy favorable entre fachada y medianera, sin contacto con garajes, locales, terrazas superiores, porches inferiores o bajo-cubiertas inclinadas, y con sistemas más eficientes de producción de ACS o calefacción (por ejemplo, gas natural), reciben esta calificación.

      La calificación D es la más habitual en viviendas construidas siguiendo las normativas del CTE 2006. En ellas, no todos los sistemas estarán tan optimizados como aquellas con calificación D anteriores a 2006. Puede tratarse de viviendas unifamiliares con varias fachadas exteriores y garaje en el sótano.

      Calificación C

      Las viviendas en edificios y las unifamiliares construidas siguiendo condiciones muy favorables, construidas todas ellas con fecha posterior a 2006, obtienen esta calificación.

      Calificación A y B

      Para obtener estas calificaciones, la vivienda debe estar optimizada en sentido energético. Debe estar construida según los criterios normativos del CTE 2006 o CTE 2013. El sistema de producción de ACS y calefacción o refrigeración debe basarse en energías renovables, como placas solares fotovoltaicas sistemas de biomasa. En estos casos, la energía limpia producida se acerca al 100% de la demanda energética de la vivienda, por lo que las emisiones serán casi nulas.

      Estas dos calificaciones son las más inusuales, ya que no es habitual disponer de sistemas de energías renovables en las viviendas.

      Quizás debería servir para hacernos reflexionar sobre el bien que podríamos hacerle al planeta y a nuestro propio bolsillo si invertimos en la mejora energética de nuestra vivienda, colocando sistemas de energías renovables.


      En Certicedula somos arquitectos colegiados expertos en tramitación de cédulas de habitabilidad y certificados energéticos. Puede ponerse en contacto con nosotros y le aclararemos todas las dudas relacionadas sobre el tema y también puede solicitarnos el informe que necesite.


Contacto con Certicedula
Solicitar Cédula de habitabilidad
Solicitar Certificado energético
Solicitar Oferta cédula de habitabilidad + certificado energético

    Trabaja con nosotros:

    Envia mail a: info@certicedula.com

  • Agència de l'Habitatge de Catalunya

  • Institut Català de l'Energia

  • Col.legi d'Arquitectes de Catalunya

    CERTICEDULA

  • Avda. Catalunya, 10
  • 43700 El Vendrell. Tarragona

  • C/ Lluch, 2-4-6
  • 08016 Barcelona. Barcelona.

  • info@certicedula.com
  • 644 73 16 94

    Nombre Comercial: CERTICEDULA. info@certicedula.com. 644 73 16 94

Requeriments cèdula Habitabilitat








Certificado Energético

La calificación de la etiqueta energética I

Vanessa Abajas 2016-10-01


Calificación Energética: qué es, cómo se calcula y qué características de los edificios influyen en su resultado

calificacion etiqueta energetica En Certicedula realizamos Certificados Energéticos desde el origen de su implantación (julio 2013). Tras varios años de experiencia, hemos comprobado que el tema de la Calificación Energética genera muchas dudas entre nuestros clientes. Hemos decidido aprovechar esta entrada del blog y la siguiente para intentar aclarar el máximo posible de dudas sobre este aspecto.

En esta primera entrada haremos un repaso al vocabulario más común referente a la Calificación Energética, explicaremos cómo funcionan los programas que califican los inmuebles y cuáles son las características de las viviendas o locales que más influyen en su calificación definitiva. En la próxima entrada al blog estudiaremos qué tipo de viviendas o locales se corresponden con las diferentes calificaciones.

Qué son: Certificado energético, Etiqueta Energética y Calificación Energética

El Certificado Energético es un documento obligatorio en una transacción de una vivienda o local que proporciona al futuro usuario de un inmueble información sobre el comportamiento energético del inmueble que quiere alquilar o comprar. Este documento conduce a la expedición de la Etiqueta de Eficiencia Energética obtenida por el inmueble.

La Etiqueta de Eficiencia Energética es el distintivo oficial que informa de la calificación energética obtenida por un edificio o parte de éste. La calificación se obtiene del cálculo de la energía necesaria para satisfacer la demanda energética de un edificio en condiciones normales de uso. Clasifica los inmuebles según una escala de siete letras donde la G corresponde al inmueble menos eficiente y la A, al más eficiente. Un edificio o una parte de un edificio calificado con una letra G será aquel que tendrá un mayor gasto energético para que los usuarios alcancen sensación de confort.

La calificación energética del edificio en emisiones se mide en KgCO2/m2 año. El consumo de energía primaria no renovable, la demanda de calefacción y la demanda de refrigeración se miden en KWh/m2 año.

Cómo funcionan los programas de calificación energética

Los técnicos tienen a su disposición varios programas de cálculo especializados en eficiencia energética. El programa Calener es el más completo de todos ellos y el que realiza un estudio más exhaustivo y acertado de los inmuebles. Se puede utilizar para calcular la calificación de todo tipo de edificios o partes de edificios, indistintamente de su complejidad o de si se trata de edificios nuevos o existentes.

El programa Ce3X es el más utilizado. Se trata de una opción simplificada de los programas de cálculo energético, y se utiliza para inmuebles existentes realizados con los sistemas constructivos más habituales.

En todos los programas, el técnico debe describir el inmueble, introduciendo una serie de datos en varios apartados, que incluyen características normativas, constructivas, de asoleo, climáticas y sobre las instalaciones térmicas. Utilizando todos los datos aportados, el programa realiza una serie de cálculos para obtener de forma aproximada la cantidad de emisiones de CO2 y el consumo energético en KW del edificio. Según el resultado obtenido, se califica al inmueble con una letra que va de la A a la G.

Podríamos decir que la letra de la Calificación Energética es la nota que obtiene el edificio según su funcionamiento energético y que mientras más cercano esté a la calificación A, más eficiente será el edificio y menor consumo energético tendrá el usuario.

La calificación energética viene desglosada en varios aspectos. Cada uno de ellos informa de su consumo o de sus emisiones, según sea el caso, y se califica con una letra.

Las calificaciones son las siguientes:

  • Calificación energética del edificio
  • Consumo de energía anual
  • Demanda de calefacción
  • Demanda de refrigeración
  • Emisiones de calefacción
  • Emisiones de refrigeración
  • Emisiones de ACS (agua caliente sanitaria)

Las siete calificaciones obtenidas no tienen por qué ser la misma letra, ya que, por ejemplo, una vivienda puede disponer de mucha radiación solar, teniendo poca demanda de calefacción pero mucha de refrigeración, siendo muy diferente el resultado obtenido en los apartados de calefacción y refrigeración.

De estas siete calificaciones, únicamente las dos primeras aparecen en la Etiqueta Energética. Las otras calificaciones pueden consultarse en el Informe de Eficiencia Energética que proporciona el técnico al cliente.

Factores más relevantes en la calificación

Orientación

Para la mayoría de las personas, cuando compra o alquila una vivienda, la orientación de la misma es fundamental. Una vivienda orientada a sur, sureste o suroeste, dispondrá de gran cantidad de luz solar, por lo que la demanda en calefacción será muy inferior a otra que no reciba radiación solar de forma directa.

El programa tiene muy en cuenta la orientación y penaliza aquellas viviendas o locales que no reciben luz directa en ninguna de sus fachadas, no solamente en el apartado de demanda de calefacción, sino en todos los aspectos exceptuando el de demanda de refrigeración. De la misma forma, una vivienda con exceso de luz solar, si no está protegida mediante toldos, voladizos o persianas, también será penalizada en varios aspectos.

Envolvente térmica

Mientras más superficie tenga un inmueble, más expuesto estará al exterior y más dificultad tendrá para mantener la temperatura interior dentro de la zona de confort. Los inmuebles más desprotegidos, como las viviendas aisladas, suelen tener una mayor demanda energética y, por tanto, un mayor número de emisiones. De la misma forma, un inmueble situado dentro de un edificio y rodeado de otras viviendas, tendrá menor demanda y menor consumo.

El aislamiento térmico del inmueble también es un factor relevante para el cálculo de la Eficiencia energética.

Cubierta

Cuando un inmueble no tiene otro elemento superior, sino que se encuentra en contacto con el aire exterior, dispone de una gran superficie de pérdida de calor en invierno y de absorción de calor en verano. Es el caso de viviendas aisladas o de áticos o últimos pisos de un edificio. Este hecho penaliza la calificación global energética.

Muro

Los muros pueden ser de fachada, de medianera o muros en contacto con el terreno. La proporción de cada tipo de muro respecto a la superficie de la vivienda es muy importante para el cálculo. Un inmueble con exceso de fachada tendrá deficiencias en varios aspectos de eficiencia energética, igual que otro que disponga de poca fachada para ventilar.

Suelo

Los inmuebles pueden limitar por su parte inferior con otros inmuebles, con garajes, locales, o pueden estar en contacto con el aire exterior. Este último caso es el más desfavorable, ya que podríamos decir que la vivienda cuenta con una fachada “extra” de superficie considerable.

Hueco/lucernario

La proporción de los huecos respecto a la superficie de fachada es el primer factor a tener en cuenta. Una gran superficie de ventilación o de captación de radiación solar puede funcionar bien en unos climas y no tanto en otros.

Equipo y contribuciones energéticas

Los sistemas de agua caliente sanitaria, calefacción y refrigeración, producen diferentes emisiones y consumos, según sea s combustible. El programa penaliza los termos eléctricos y el butano. Cuando una vivienda cuenta con un sistema de energía renovable (placas solares o fotovoltaicas), la demanda energética y las emisiones se reducen de forma muy considerable.


En Certicedula somos arquitectos colegiados expertos en tramitación de cédulas de habitabilidad y certificados energéticos. Puede ponerse en contacto con nosotros y le aclararemos todas las dudas relacionadas sobre el tema y también puede solicitarnos el informe que necesite.


Contacto con Certicedula
Solicitar Cédula de habitabilidad
Solicitar Certificado energético
Solicitar Oferta cédula de habitabilidad + certificado energético

    Trabaja con nosotros:

    Envia mail a: info@certicedula.com

  • Agència de l'Habitatge de Catalunya

  • Institut Català de l'Energia

  • Col.legi d'Arquitectes de Catalunya

    CERTICEDULA

  • Avda. Catalunya, 10
  • 43700 El Vendrell. Tarragona

  • C/ Lluch, 2-4-6
  • 08016 Barcelona. Barcelona.

  • info@certicedula.com
  • 644 73 16 94

    Nombre Comercial: CERTICEDULA. info@certicedula.com. 644 73 16 94

Requeriments cèdula Habitabilitat








Certificado Energético

La superfície d'habitatge a efecte de la cèdula Habitabilitat i el certificat energètic

Vanessa Abajas 2016-01-10


Existeixen diferents sistemes d’expressar la superfície d’un habitatge. Podem parlar de superfície construïda, superfície útil, superfície útil amb espais exteriors, superfície construïda amb part proporcional de zones comuns, i altres variants que porten moltes vegades a error a persones no familiaritzades amb aquests termes. Al final d’aquesta entrada al blog, tots aquests termes apareixen definits i completats amb un exemple gràfic i numèric. Les diferents normatives especifiquen quin tipus de superfície és l’adoptada als documents oficials de la cèdula i el certificat energètic. En el cas de la cèdula, la superfície de la habitatge és un factor molt important, ja que determina el màxim número d’habitants per habitatge. La superfície, descrita en metres quadrats, és una dada que apareix al document oficial. L’Etiqueta Energètica, que és el document que genera el Ministeri d’Indústria un cop el tècnic li ha facilitat l’informe del Certificat Energètic, no fa referència a la superfície de l’habitatge o local. Però la superfície de l’immoble és una dada molt important a l’hora de realitzar els càlculs que donaran la qualificació final de l’immoble.

Quines lleis regulen els informes

La llei que regula les condicions mínimes d’habitabilitat a Catalunya dels habitatges i la cèdula d’habitabilitat és el Decret 141/2012, de 30 d’octubre. Al Decret especifica que la superfície a adoptar al document de la Cèdula d’Habitabilitat és la superfície útil interior. El Certificat Energètic ve regulat per el Reial Decret 235/2013, el qual fixa el procediment bàsic per a la certificació energètica dels edifici s –nou s i existents– establint l’exigència de disposar d’un certificat d’eficiència energètica en la venda o lloguer de tot edifici o una part (habitatge o local). Al Decret sempre es fa referencia a la superfície útil habitable (que és el mateix que superfície útil interior) i, a l’hora de treballar amb els programes informàtics de càlcul energètic, és aquesta la superfície que et demanen.

La superfície a les escriptures

Actualment la superfície que apareix a les escriptures dels immobles coincideixen amb la realitat. Però no sempre ha estat així. En una època anterior a l’any 2000, era habitual que la superfície de l’escriptura fos inferior a la real amb la motivació de pagar menys impostos. També era habitual informar només de la superfície construïda de l’immoble o, pitjor encara, no especificaven si es tractava de superfície construïda, útil, o si es tenien en compte les superfícies exteriors. D’aquesta manera es poden trobar escriptures amb superfícies sense definir el seu tipus o utilitzant conceptes com a superfície d’ocupació, superfície perimetral, superfície coberta o superfície interior.

Avui en dia està bastant regulat, tot i així, el tècnic està obligat a prendre mides de les superfícies i redactar els informes amb les mides preses “in situ”.

Classificació dels diferents tipus de superfícies

Superfície útil

És la suma de la superfície útil interior i la superfície útil exterior.

Superfície útil interior:

Segons el Decret 141/12, la definició de superfície útil interior és la següent: “Superfície útil interior: és la superfície compresa dins el perímetre definit per la cara interna dels tancaments de cada espai habitable. Del còmput de superfície útil, en quedarà exclosa la superfície ocupada pels tancaments interiors de l’habitatge, siguin fixes o mòbils, pels elements estructurals i per les canalitzacions o conductes amb secció horitzontal superior a 0,01 m², així com les superfícies de les zones amb una alçada lliure inferior a 1,90 m sota sostre horitzontal o a 1,50 m en els espais sota coberta amb pendent igual o superior als 45º. Quan l’habitatge es desenvolupi en més d’una planta, encara que hi hagi mitjans de circulació mecànica, aquests s’hauran de comunicar sempre per una escala interior i la superfície ocupada per l’escala interior es comptabilitzarà com a superfície útil.”

Superfíe útil exterior:

La superfície útil exterior és aquella situada sota un espai construït exterior anexe a l’immoble. També la podríem entendre com l’ombra que fa un sostre exterior sobre en nostre espai exterior. Parlem d’un porxo o de l’espai situat sota una terrassa.

La superfície construïda

La superfície construïda interior:

Podríem dir que la superfície construïda és el resultat d’afegir a la superfície útil l’espai ocupat pels tancaments dels habitatges interiors i exteriors, la fusteria, els elements estructurals i les canalitzacions.

La superfície construïda exterior:

Tal com succeeix amb la superfície útil, la superfície construïda pot ser interior o exterior. En el cas de comptabilitzar la superfície exterior, podem estimar el 100% de la projecció vertical o el 50% (més habitual en projectes arquitectònics).

Superfície construïda amb part proporcional de zones comuns:

En aquest cas tindrem en compte la superfície construïda de l’habitatge (interior i exterior) i la part proporcional de l’espai comú de l’edifici en que aquest immoble es troba situat. Aquesta forma d’informar de la superfície d’un immoble és molt habitual en taxacions o en pàgines web de compra-venta o lloguer d’habitatges. D’aquesta manera es té en compte que l’habitatge, sobretot en casos d’edificis plurifamiliars, li correspon un ús i manteniment dels accessos, escales i espais comunitaris.

En el cas d’habitatges unifamiliars aïllats, i una gran part dels adossats, no existeixen les superfícies comuns i ens trobem només amb la superfície útil i la construïda.

Exemple de càlcul de les diferents superfícies d'un immoble

ejemplo superficies

Prendre’m com a referència un habitacle quadrat de 5x5m, amb parets de 30cm de gruix, i un porxo que vola 2m i ocupa tota l’amplada de l’habitacle.

Superfície construïda

Superfície Construïda Interior: 25 m2 (5x5 m2)

Superfície Construïda Exterior (50% porxos): 5 m2 (2x 5m2=10 m2. El 50% de 10 m2 és 5 m2).

Total Superfície Construïda: 25 m2 + 5 m2 =30 m2

Superfície Útil

Superfície Útil Interior 4,40 m2 x 4,40 m2 = 19.36 m2

Superfície Útil Exterior 2 m2 x 5 m2 = 10 m2

Total Superfície Útil : 19.36 m2 + 10 m2 = 29.36 m2

En el cas d’una cèdula i un certificat energètic prendríem la superfície útil interior de 19.36 m2.

Superfície construïda amb zones comunes:

Suposem que aquest habitacle forma part d’un edifici de 10 habitatges i la superfície d’escales, passadissos i vestíbul és de 50 m2.

A la superfície construïda total hauríem de sumar la part de zones comunes, que seria 5m2 (50 m2/10).

El total seria de 35 m2.


Contacto con Certicedula
Solicitar Cédula de habitabilidad
Solicitar Certificado energético
Solicitar Oferta cédula de habitabilidad + certificado energético

    Trabaja con nosotros:

    Envia mail a: info@certicedula.com

  • Agència de l'Habitatge de Catalunya

  • Institut Català de l'Energia

  • Col.legi d'Arquitectes de Catalunya

    CERTICEDULA

  • Avda. Catalunya, 10
  • 43700 El Vendrell. Tarragona

  • C/ Lluch, 2-4-6
  • 08016 Barcelona. Barcelona.

  • info@certicedula.com
  • 644 73 16 94

    Nombre Comercial: CERTICEDULA. info@certicedula.com. 644 73 16 94

Requeriments cèdula Habitabilitat








Noticias

ITP un impuesto por el alquiler

Vanessa Abajas 2016-09-01


cartel se alquila Ante la necesidad de sanear las arcas autonómicas, los gobiernos de varias comunidades han optado por sacar mayor partido de sus propios tributos. Para ello, han decidido “resucitar” el antiguo Impuesto de Transmisiones Patrimoniales, o ITP, aplicado a los casos de alquileres.

Un envío masivo de reclamaciones por parte del Ministerio de Hacienda desde principios de 2015 sorprendió a todos aquellos que habían firmado un contrato de alquiler en los cuatro años previos y no habían abonado el impuesto.

Desconocido para la mayoría de los ciudadanos, este impuesto ha existido desde 1993, cuando se reguló en la ley estatal del Impuesto sobre Transmisiones Patrimoniales y Actos Jurídicos Documentados. Con el paso del tiempo se fue declinando su abono, a medida que se dejó de comprar en los estancos el papel timbrado con el que se formalizaban los contratos de alquiler, y las comunidades autónomas tampoco reclamaron el pago.

¿Qué es el ITP?
El ITP es el impuesto que recae sobre la persona que adquiere una propiedad, ya puede ser una vivienda, un coche, etc.

Normalmente se relaciona el ITP con una compra, y se desconoce que están sujetas al pago de este impuesto todo tipo de transmisiones patrimoniales onerosas, las operaciones societarias y los actos jurídicos documentados.

En un arrendamiento, el inquilino adquiere el derecho a usar la vivienda por un período determinado a cambio de un precio. Por lo tanto, no se trata de una transmisión, a pesar del nombre, pero sí de la adquisición del derecho y dicha transacción estará expuesta al pago del impuesto.

¿Quien debe pagarlo?
Es obligación del arrendatario (quien ocupará el inmueble), aunque el arrendador (propietario del inmueble) es responsable subsidiario si hubiese percibido la primera mensualidad de renta y el arrendatario no hubiese realizado el pago.

¿Cuándo y dónde hay que abonarlo?
El abono del tributo de debe hacer efectivo durante los 30 días hábiles posteriores a la firma del contrato de arrendamiento.

Se debe abonar para la duración total del contrato. En el caso de renovar el contrato de arrendamiento cada año, también se realizaría el pago del impuesto de forma anual.

El importe se abona en las Delegaciones de Hacienda. Se debe presentar cumplimentado el Modelo 600, que es un papel timbrado que puede adquirirse en los estancos o en la misma Delegación de Hacienda donde se realitzará el pago. También puede realizarse el pago de forma telemàtica.

¿Cuál es el importe a pagar?
En la ley que regula el ITP se contempla una escala de precios que se aplica a nivel nacional, aunque al ser un tributo cedido a las comunidades autónomas, cada una de ellas es libre de fijar el tipo que considere.
La cantidad a pagar se obtiene aplicando sobre la base liquidable –renta a pagar durante toda la vida del contrato– la tarifa que fije cada comunidad autónoma. En Cataluña, el tipo es del 0,5%.

Como ejemplo, tomaremos un alquiler mensual de 600€ con un contrato de tres años de duración.

  • Tomaremos como importe el alquiler de todo un año (600€ x 12 meses = 7.200€).
  • El resultado lo multiplicaremos por todos los años que dure el arrendamiento (7.200€ x 3 años = 21.600€ de base liquidable).
  • Aplicaremos un interés del 0,5% (21.600 x 0,5% = 108€).
  • Una vez transcurridos los tres años de contrato, en cada prórroga que se realice por un año de duración, se habrá que abonar 36€. (7.200€ x 0,5% = 36€).


¿Existe alguna excepción en el pago del impuesto?
Si, sucede cuando el inquilino es un profesional o se trata de una empresa, y el inmueble se utilitzará como oficina o local de negocios. En este caso, el impuesto a aplicar será el IVA, que es incompatible con el ITP.

¿Pueden reclamarme el impuesto de años anteriores?
Si. Hacienda está enviando reclamaciones de pago de forma retroactiva para los contratos firmados durante los últimos cuatro años.

¿Se puede reclamar?
La escasa cuantía del impuesto no suele compensar la reclamación. De todas maneras, a pesar de su obligatoriedad, algunas comunidades han optado ha optado por no sancionar, ya que se tienen en cuenta las alegaciones de los sobre el desconocimiento del impuesto.

¿Por qué han decidido las comunidades autónomas ponerse en serio con este impuesto?
En años anteriores, la escasa cuantía de la recaudación del impuesto hacía que no fuera interesante para la Administración destinar medios para la supervisar el pago del impuesto y detectar casos de fraude. Pero en la actualidad, los procesos de detección de fraude se han simplificado, facilitando el cruce de datos administrativos. De esta forma, la actividad de los inspectores es mucho más ágil y simple, y los ingresos compensan los gastos.

Los gobiernos de las Comunidades Autónomas de Cataluña, Madrid, Andalucía, Asturias y Galicia decidieron en 2014, con afán recaudatorio, que si el impuesto existe, se paga. Los resultados no se hicieron esperar. Cataluña recaudó en 2015 casi 6,4 millones, frente a los 482.000 euros del año anterior.

Hasta ahora el Gobierno madrileño, que se encuentra inmerso en el mismo proceso, durante el mandato de Esperanza Aguirre y después de Ignacio González, apenas ingresaba 600.000 euros anuales. Ahora, el Gobierno de Cristina Cifuentes espera recaudar mucho más, aunque no da cifras.

Además de perseguir el pago de este impuesto, la Consejería de Hacienda admite que está aumentando los esfuerzos para detectar cualquier fuente de fraude e incumplimientos fiscales, aunque sea de pequeño importe. Así, han pasado de revisar la mitad de las declaraciones de tributos propios que se liquidan (sucesiones, donaciones, transmisiones patrimoniales y actos jurídicos) a comprobar el 100%.

¿Existe mucha diferencia de cuantía entre comunidades?

Cataluña está algo por encima del grueso de autonomías que siguen el tipo base fijado por el Estado. Sólo se salen también de la pauta Vizcaya –que grava con 130 euros un contrato de alquiler por un año de 600 euros– y, en el otro extremo, Navarra –donde hay que abonar 28,8 euros–.

En el caso de Cataluña, el ITP al arrendatario se modificó con la ley de acompañamiento del 2014. La Generalitat fijó un tipo de transición a aplicar del 0,3% para el 2014 y, desde el 2015, es del 0,5%


Contacto con Certicedula
Solicitar Cédula de habitabilidad
Solicitar Certificado energético
Solicitar Oferta cédula de habitabilidad + certificado energético

    Trabaja con nosotros:

    Envia mail a: info@certicedula.com

  • Agència de l'Habitatge de Catalunya

  • Institut Català de l'Energia

  • Col.legi d'Arquitectes de Catalunya

    CERTICEDULA

  • Avda. Catalunya, 10
  • 43700 El Vendrell. Tarragona

  • C/ Lluch, 2-4-6
  • 08016 Barcelona. Barcelona.

  • info@certicedula.com
  • 644 73 16 94

    Nombre Comercial: CERTICEDULA. info@certicedula.com. 644 73 16 94

Requeriments cèdula Habitabilitat








Cédula Habitabilitat

Llindar màxim ocupació per habitatge segons la Cédula Habitabilitat

Vanessa Abajas 2016-06-28


llindar maxim ocupacio El llindar màxim d’ocupació que s’indica a la Cèdula d’Habitabilitat ens informa del nombre màxim de persones que poden ocupar un habitatge.

Es tracta d’una dada que genera confusió entre els propietaris dels inmobles. Desprès de més de deu anys d’experiència en la redacció de cèdules, les consultes més freqüents que rebem al despatx estan relacionades amb el tema de l’ocupació màxima de l’habitatge. Molts clients ens pregunten si el llindar màxim es refereix a una recomanació o bé es tracta d’una obligació i, en aquest últim cas, quines són les conseqüències del seu incompliment.

Una de les situacions més habituals és la del propietari que demana la cèdula d’habitabilitat per posar el seu pis en lloguer i té en ment fer publicitat del seu habitatge amb una ocupació determinada. Quan rep la cèdula i comprova que el llindar màxim d’ocupació és inferior a la idea que ell tenia de negoci, ens consulta si ha de replantejar la publicitat del seu pis amb una ocupació inferior, fet que comportaria arribar a un públic més reduït i perdre diners.

Una altra situació habitual és la de les famílies que viuen en un habitatge i superen el seu llindar màxim d’ocupació. Aquests propietaris ens consulten preocupats per la possibilitat d’estar fent una il·legalitat.

En aquesta entrada del blog tractaré de forma exhaustiva el tema del llindar màxim, però com a resum, el llindar màxim d’ocupació és una obligació i només es pot superar en cas que els ocupants de l’habitatge siguin familiars.

Com es calcula?
El llindar màxim d’ocupació es calcula en funció del nombre d’habitacions que té un habitatge i de la superfície d’aquestes.

S’apliquen els següents paràmetres:

  • Per habitacions entre 5 i 8m2 es considera 1 persona.
  • Per habitacions entre 8 i 12m2 es consideren 2 persones.
  • Per habitacions majors de 12m2 es consideren 3 persones.
  • Per habitatges sense habitacions, únicament amb un espai comú, es consideren 2 persones.

 

Per exemple, un habitatge amb 1 habitació de 13 m2, 2 habitacions de 10 m2 i 1 habitació de 6 m2, tindrà un màxim de 8 ocupants.
Aquest paràmetres venen definits a l’article 4 del Decret 141/12, que és la llei que regula les condicions mínimes d’habitabilitat dels habitatges i la cèdula d’habitabilitat. L’ article informa de l’estàndard de superfície per persona i el llindar màxim d’ocupació de la cèdula d’habitabilitat .

Es pot sobrepassar aquest llindar?
Si. Se n’exceptuen les unitats de convivència vinculades per llaços de parentiu, si l’excés d’ocupació no comporta incompliments manifestos de les condicions exigibles de salubritat i higiene ni genera problemes greus de convivència amb l’entorn.
Als efectes del Decret 141/2012, s’entén que hi ha parentiu entre els cònjuges, les persones lligades per relació de cosanguinitat i afinitat fins a quart grau o per adopció i les que compleixin les condicions previstes en la regulació de convivència en parella.

Quina és la funció del llindar màxim d’ocupació?
L’ocupació màxima d’un habitatge neix amb la finalitat de determinar l’existència de supòsits de sobreocupació que preveu la Llei del dret a l’habitatge.
El Títol III de la Llei (la qualitat del parc inmobiliari d’habitatges), capítol III, (utilització anòmala dels habitatges), es dota les administracions actuants d’instruments per a aconseguir que els habitatges desocupats injustificadament s’incorporin al mercat inmobiliari per mitjà de tècniques de foment i d’intervenció administrativa. Així mateix, regula la sobreocupació dels habitatges i l’infrahabitatge i posa les bases per lluitar contra l’activitat empresarial i lucrativa de convertir il·legalment els habitatges en allotjaments turístics, precaris, sobreocupats i sotmesos a preus abusius.

Com es controla?
Quan a les noves altes d’empadronament es detecti que es pot produir un excés d’ocupació, les corporacions locals podran demanar a l’Agència de l’Habitatge de Catalunya les dades relatives a la cèdula d’habitabilitat dels habitatges presumptament sobreocupats. L’administració local podrà iniciar, si escau, un expedient sancionador d’acord amb el que estableix el dret a l’Habitatge.

Quines són les conseqüències de no respectar el llindar màxim?
El seu incompliment té els efectes que deriven de la Llei del dret a l’habitatge. Les actuacions per evitar la sobreocupació dels habitatges estan recollides a l’article 43 de la Llei. Són les següents:

 

  1. La Generalitat i els ens locals han d’impulsar polítiques orientades a eradicar les situacions de sobreocupació dels habitatges i han d’actuar sobre els responsables directes i les causes d’aquestes situacions. Amb aquesta finalitat, han d’aprovar programes d’inspecció i han de vetllar per evitar que els habitatges siguin sobreocupats.
  2. En el cas de zones amb una alta concentració d’habitatges sobreocupats, les administracions competents les poden delimitar i declarar àrees de tanteig i retracte, d’acord amb el que estableix l’article 15, i les poden declarar àrees de conservació i rehabilitació, d’acord amb el que estableixen els articles 36 i 37.
  3. La constatació de situacions de sobreocupació pot comportar la imposició als responsables de les sancions que estableix aquesta llei. En tot cas, s’ha de donar audiència prèvia al propietari o propietària si s’acredita que ha consentit expressament la sobreocupació. Sens perjudicu d’això, les administracions poden expropiar temporalment l’usdefruit dels habitatges sobreocupats per a llogar-los posteriorment en les condicions adequades.
  4. Amb els efectes a què fan referència els apartats de l’1 al 3, per a emprendre accions correctores de la situació, els propietaris d’habitatges presumptament sobreocupats poden demanar l’ajut de l’administració competent, la qual, en el procés de comprovació corresponent, d’acord amb el que estableix l’article 41.5, pot obtenir del padró d’habitants la informació pertinent sobre les persones empadronades.
  5. Per a controlar millor les situacions de sobreocupació, es poden establir acords de col·laboració amb les associacions i els col·legis professionals que actuïn en el mercat immobiliari.
  6. En les actuacions per a corregir situacions de sobreocupació, les administracions públiques han de preveure les mesures adequades per a acollir les persones afectades per aquesta circumstància en la mesura que puguin i que ho permetin els recursos disponibles. Amb aquesta finalitat, han d’establir els programes i acords de cooperació i de col·laboració pertinents amb els serveis d’atenció social competents i els serveis de mediació a què fa referència l’article 69.
  7. Si cal restituir l’estat d’habitabilitat exigible dels habitatges sobreocupats, l’Administració local, directament o amb el suport de la Generalitat, pot executar subsidiàriament les obres de reparació necessàries.


Contacto con Certicedula
Solicitar Cédula de habitabilidad
Solicitar Certificado energético
Solicitar Oferta cédula de habitabilidad + certificado energético

    Trabaja con nosotros:

    Envia mail a: info@certicedula.com

  • Agència de l'Habitatge de Catalunya

  • Institut Català de l'Energia

  • Col.legi d'Arquitectes de Catalunya

    CERTICEDULA

  • Avda. Catalunya, 10
  • 43700 El Vendrell. Tarragona

  • C/ Lluch, 2-4-6
  • 08016 Barcelona. Barcelona.

  • info@certicedula.com
  • 644 73 16 94

    Nombre Comercial: CERTICEDULA. info@certicedula.com. 644 73 16 94

Requeriments cèdula Habitabilitat








Certificado Energético

Para que sirve el certificado de eficiencica energética

Vanessa Abajas 2016-01-06


certificado energetico El Certificado de Eficiencia Energética, o también llamado Certificado Energético o CEE de forma abreviada, se hizo oficial el 14 de abril de 2013. A pesar de que han pasado tres años desde su entrada en vigor, el Certificado Energético sigue siendo un gran desconocido para los usuarios.

El propietario suele conocer la existencia del documento cuando decide vender o alquilar su inmueble y prepara la documentación necesaria para realizar la transacción. En principio, el Certificado Energético parece un simple trámite burocrático, pero el CEE aporta mucha información sobre el funcionamiento energético del inmueble, a la vez que busca una concienciación general de la sociedad en temas medioambientales.

El futuro usuario del inmueble también podrá aprovechar la información que vea en la Etiqueta Energética, que será expuesta en publicidad junto con otros datos descriptivos de la vivienda o del local. Para facilitar la lectura de la información de la Etiqueta Energética, la calificación utilizada se basa una escala de valores a la que estamos acostumbrados (letras de la A a la G), igual que hace años ocurre con los electrodomésticos.

La Calificación Energética

El Certificado Energético es un documento que proporciona al futuro usuario de un inmueble información sobre el comportamiento energético del edificio que quiere alquilar o comprar.
El documento, elaborado por un técnico competente, contiene información sobre las características energéticas de la envolvente del inmueble (paredes, techos, suelos, carpintería exterior) y de los sistemas térmicos (eficiencia energética de los sistemas de agua caliente sanitaria, calefacción y climatización). Este documento conduce a la expedición de la Etiqueta de Eficiencia Energética obtenida por el inmueble.

La Etiqueta de Eficiencia energética es el distintivo oficial que informa de la calificación energética obtenida por un edificio o parte de éste. La calificación se obtiene del cálculo de la energía necesaria para satisfacer la demanda energética de un edificio en condiciones normales de uso. Clasifica los inmuebles según una escala de siete letras donde la G corresponde al inmueble menos eficiente y la A, al más eficiente. Un edificio o una parte de un edificio calificado con una letra G será aquel que tendrá un mayor gasto energético para alcanzar unas sensaciones de confort.

La Ley que contempla el Certificado energético es el Real Decreto 232/2013, el cual fija el procedimiento para la certificación energética de edificios (nuevos y existentes). A partir de su entrada en vigor, toda vivienda debe disponer disponer de un CEE en caso de venta o alquiler. La Etiqueta energética debe estar visible en la publicidad del inmueble y debe también estar presente en el momento de la firma del contrato.

Funciones del Certificado Energético

 

 

  1. Concienciación medioambiental
    El CEE nace con el objetivo de concienciar a la sociedad de la necesidad de ahorro energético. Unos edificios más eficientes y una forma más optimizada de usarlos conllevaría una reducción de emisiones de CO2 (responsables del efecto invernadero), del calentamiento global del planeta y de la dependencia externa en materia de energía.
    Antes de la entrada en vigor del Real Decreto 232/2013, disponer de Certificado energético solo era obligatorio para los edificios de nueva construcción. La necesidad de concienciación colectiva en temas medioambientales llevó a la necesidad de ampliar la obligatoriedad del estudio energético a cualquier inmueble que vaya a ser objeto de una transacción. De esta forma, con el tiempo, la totalidad de los inmuebles dispondrán del documento.

  2. Segmentación del precio de los inmuebles
    Mediante la información que aporta el CEE, el comportamiento energético de los edificios pasa a formar parte del valor intrínseco de los inmuebles, proporcionando al futuro usuario una orientación relativa de su consumo energético. En consecuencia, el mercado inmobiliario segmenta el precio de la venta o alquiler en función de su consumo energético.
    Una vivienda o local muy eficiente en sentido energético tendrá un consumo bajo de energía para mantener unas condiciones óptimas de trabajo o descanso. El futuro usuario tendrá en cuenta este factor y verá más atractivo el inmueble con una calificación energética más cercana a la mejor puntuación (A).
    A su vez, la inversión en mejora energética, que potenciará el confort en los espacios para vivir y trabajar, tendrá un retorno en el precio de venta o alquiler al plantear la rehabilitación desde un punto de vista energético y no únicamente funcional.

  3. Medidas de mejora
    El técnico entregará el informe del Certificado Energético al propietario del inmueble. Este informe incluye recomendaciones de mejora que garantizan un mejor comportamiento del edificio y una estimación de los gastos y los terminios de amortización de la inversión. En el informe también aparece la calificación que se obtendría de realizar dichas mejoras, ofreciendo al usuario la oportunidad de comparar ambas situaciones (antes y después). Estas medidas de mejora nunca son obligatorias, unicamente informativas.
    Existen cuatro grupos de posibles medidas de mejora a realizar a un inmueble: instalaciones, huecos, mejora de puentes térmicos y aislamiento.
    • En cuanto a aislamiento térmico, el programa propone varias medidas, como la adición de aislamiento térmico en fachada por el exterior, por el interior (relleno de cámara) o en cubierta.
    • En el apartado huecos, propone la mejora de la carpintería exterior sustituyendo los vidrios por otros más aislantes, sustituyendo la ventana, mejorando la estanqueidad de las ventanas o incorporando doble carpintería.
    • En cuanto a puentes térmicos, se pueden mejorar las condiciones del inmueble realizando un trasdosado interior de pilares integrados en fachada o mediante la adición de aislamiento en la caja de persiana.
    • El apartado instalaciones es el más completo, ofreciendo una gran gama de sistemas, mediante la incorporación o la mejora de los actuales. Incluye sistemas para agua caliente sanitaria, calefacción y refrigeración. Los sistemas son muy variados, desde energía solar térmica, fotovoltaica, biomasa o bomba de calor de alta eficacia energética.

    El técnico estudia que sistema lograría un mejor funcionamiento del inmueble con el menor gasto económico para el propietario. También realiza una valoración económica de las medidas de mejora de eficiencia energética, ofreciendo datos como la vida útil de cada sistema, el coste económico y el incremento del coste de mantenimiento anual. En el resultado del análisis económico quedan reflejados los años que se tardaría en amortizar la inversión de mejora.

 

 


Contacto con Certicedula
Solicitar Cédula de habitabilidad
Solicitar Certificado energético
Solicitar Oferta cédula de habitabilidad + certificado energético

    Trabaja con nosotros:

    Envia mail a: info@certicedula.com

  • Agència de l'Habitatge de Catalunya

  • Institut Català de l'Energia

  • Col.legi d'Arquitectes de Catalunya

    CERTICEDULA

  • Avda. Catalunya, 10
  • 43700 El Vendrell. Tarragona

  • C/ Lluch, 2-4-6
  • 08016 Barcelona. Barcelona.

  • info@certicedula.com
  • 644 73 16 94

    Nombre Comercial: CERTICEDULA. info@certicedula.com. 644 73 16 94

Requeriments cèdula Habitabilitat








Cédula Habitabilidad

Cuándo se necesita la cédula de habitabilidad

Vanessa 2016-06-01


cedula habitabilidad El Decreto 141/12 del 30 de octubre es la ley que regula las condiciones mínimas de habitabilidad de las viviendas y la Cédula de Habitabilidad. En el artículo 9, capítulo II de esta ley se estipula que TODAS las viviendas deben disponer de cédula de habitabilidad. Por tanto, el propietario de una vivienda ha de tener la cédula de habitabilidad de su vivienda vigente desde el momento de su compra.

La mayoría de los propietarios desconocen esta ley. Cuando se les reclama la cédula de la vivienda para un trámite administrativo se informan de la posesión o no de dicho documento. Puede darse el caso de tener la cédula vigente, caducada, no tener cédula o no saber si se tiene:

 

 

  1. La cédula está caducada
    La cédula tiene una vigencia de 25 años para las viviendas de nueva construcción, y de 15 para las de segunda ocupación y de primera ocupación de rehabilitación. Pasado este periodo, la cédula ha caducado y se deberá volver a solicitar. Se tratará de una cédula de segunda ocupación. Ha de solicitarla un arquitecto.

  2. La vivienda nunca ha tenido cédula
    Es caso bastante frecuente en viviendas antiguas, ya que la obligatoriedad de este documento es bastante reciente. En esta situación, igual que en la anterior, se tendrá que solicitar una cédula de segunda ocupación a un arquitecto.

  3. No sabe si tiene cédula
    En caso de desconocimiento, llamando al 012 nos pueden informar si la vivienda dispone o no de cédula de habitabilidad. En caso afirmativo, basta con solicitar un duplicado al Departament d’Habitatge de la Generalitat. Si no existe cédula o está caducada, hay que volver a solicitarla.

 


Cuándo hay que presentar la cédula de habitabilidad

Existen varias situaciones en las que debemos presentar la cédula de nuestra vivienda: antes de ocupar la vivienda, al realizar una transmisión y al dar de alta suministros.

 

 

 

 

 

  1. Antes de ocupar una vivienda
    La cédula de habitabilidad es el documento que acredita que una vivienda cumple las condiciones mínimas de habitabilidad que figuran en la Ley 18/2007 del derecho a la vivienda y, por tanto, es apta para ser destinada a residencia humana. Antes de ocupar una vivienda por primera vez, o una vivienda en la que se han realizado obras que han cambiado sustancialmente las condiciones habitables de la vivienda, es necesario que un profesional acredite que la vivienda en cuestión cumple con la normativa y con los mínimos de habitabilidad.

    El artículo 9 del capítulo II del decreto 141/12 informa de las diferentes situaciones en las que debemos presentar la cédula antes de ocupar una vivienda:
    • Viviendas de nueva construcción.
    • Viviendas cuya superficie haya sido modificada.
    • Viviendas en las que se hayan alterado las condiciones de habitabilidad.
    • Viviendas en las que se hayan realizado procesos de intervención de rehabilitación o gran rehabilitación como consecuencia de haber sufrido daños derivados de riesgos colectivos con afectación catastrófica.
  2. Antes de realizar una transmisión
    Según el artículo 26.2 de la Ley 18/2007 del derecho a la vivienda, las viviendas que van a ser transmitidas, tanto como en compra-venta como en alquiler, deben disponer de cédula de habitabilidad en el momento de la transmisión. La cédula es uno de los documentos que nos requerirá el notario para proceder a la transmisión.

    Es obligación del propietario presentar la cédula el día de la transmisión. Si no dispusiera de ella, existe la posibilidad de exoneración de obligación de librar la cédula. Esta posibilidad solamente se contempla para viviendas que no sean de nueva construcción y que vayan a ser vendidas, de acuerdo con la ley 18/2007 del derecho a la vivienda.

    Las personas que compran la vivienda pueden exonerar de manera expresa a la parte vendedora de la obligación de presentar la cédula de habitabilidad en los siguientes supuestos:
    • Cuando la vivienda vaya a ser objeto de rehabilitación o derribo
      En el supuesto de rehabilitación, un técnico competente debe realizar un informe en el que acredite que la vivienda podrá obtener la cédula una vez se realicen las obras necesarias para cumplir la normativa de habitabilidad.
      El registrador hará constar, en una nota marginal en la inscripción, que la vivienda queda sujeta a la ejecución de las obras de rehabilitación o de derribo. La nota marginal se cancelará con la presentación de la cédula una vez finalizadas las obras de rehabilitación o, en el caso de derribo, con la certificación municipal acreditativa del derribo realizado con un informe emitido por una persona técnica competente que confirme el derribo de la vivienda.
    • Cuando el inmueble no vaya a ser destinado a vivienda
      En este caso, la persona que transmite y la que adquiere, deberán reconocerlo de manera expresa.
    • Cuando ambas partes en una operación de compra-venta acuerden entregar y aceptar la cédula posteriormente a la fecha de compra-venta.
      Este supuesto se podrá realizar cuando se presente en el notario la solicitud de cédula registrada y con el certificado de habitabilidad emitido por una persona técnica competente, que acredite que la vivienda reúne las condiciones necesarias para obtener la cédula de habitabilidad de segunda ocupación.
  3. Para dar de alta suministros
    El artículo 11 del capítulo II del decreto 141/12 informa de la obligatoriedad de presentar la cédula de habitabilidad a las empresas suministradoras. Conforme también con la Ley 18/2007 del Derecho a la Vivienda, las empresas suministradoras de energía eléctrica, agua, gas, comunicaciones y otros servicios deben exigir la cédula de habitabilidad vigente a los usuarios para que éstos puedan contratar los servicios. También deben incorporar una copia en su expediente de contratación.
    En el caso de viviendas de protección oficial destinadas a primera ocupación, también deberán incorporar una copia de la calificación definitiva.


A modo de resumen, un propietario siempre debe disponer de la cédula de habitabilidad de su vivienda vigente.
La cédula se debe presentar en las transmisiones (compra-venta, alquiler, donaciones), cuando se ocupa una vivienda (por primera vez o después de efectuar cambios relativos a la habitabilidad) y para solicitar el alta de suministros.
Únicamente en el supuesto de compra-venta, en algunos casos muy concretos y siempre con el permiso de la parte compradora, el propietario no estará obligado a la presentación de la cédula de habitabilidad.

 

 


Contacto con Certicedula
Solicitar Cédula de habitabilidad
Solicitar Certificado energético
Solicitar Oferta cédula de habitabilidad + certificado energético

    Trabaja con nosotros:

    Envia mail a: info@certicedula.com

  • Agència de l'Habitatge de Catalunya

  • Institut Català de l'Energia

  • Col.legi d'Arquitectes de Catalunya

    CERTICEDULA

  • Avda. Catalunya, 10
  • 43700 El Vendrell. Tarragona

  • C/ Lluch, 2-4-6
  • 08016 Barcelona. Barcelona.

  • info@certicedula.com
  • 644 73 16 94

    Nombre Comercial: CERTICEDULA. info@certicedula.com. 644 73 16 94

Requeriments cèdula Habitabilitat








Certificado Energético

Pasos para la obtencion del certificado energético

Vanessa Abajas 2016-04-01


certificado energetico El Certificado de Eficiencia energética, o Certificado energético, es un documento suscrito por un técnico competente que contiene información sobre las características energéticas de un edificio o parte de éste.

El Real Decreto 232/2013 establece la exigencia de disponer de un certificado energético en la venta o alquiler de todo edificio o parte del mismo (vivienda o local). Esta información debe figurar en la publicidad del inmueble y se debe entregar en la formalización del contrato.La obtención del Certificado Energético es un proceso que consta de varios pasos. En este proceso interviene más de un agente, por lo que su duración es variable, aunque acostumbra a ser de cinco a siete días.

Los pasos para la obtención del certificado energético son los siguientes:

 

 

  1. Encargo del Certificado a un técnico
    El propietario de la vivienda, o una persona autorizada por el mismo, debe ponerse en contacto con un técnico competente (arquitecto, arquitecto técnico, ingeniero o ingeniero técnico) para que realice la inspección de la vivienda o local.
    En el supuesto de compra o alquiler de una vivienda, también se necesitará una cédula de habitabilidad. Si el técnico que realiza la visita es arquitecto o arquitecto técnico, puede realizar ambos informes. De esta manera se evitaría perder tiempo con dos visitas de técnicos y, en la mayoría de ocasiones, el técnico ofrece un precio más ventajoso si realiza ambos informes.
    En Certicedula somos arquitectos colegiados expertos en tramitación de cédulas de habitabilidad y certificados energéticos. Puede ponerse en contacto con nosotros y le aclararemos todas las dudas relacionadas sobre el tema y también puede solicitarnos el informe que necesite.
    Contacto con Certicedula
    Solicitar certificado energético
    Solicitar oferta cédula de habitabilidad + certificado energético

  2. Visita al inmueble
    El técnico realizará una visita al inmueble el día que al propietario mejor le convenga.
    Durante la visita el técnico realizará una toma de datos:
    • Mediadas de superficie
    • Sistema constructivo de la envolvente y tipo de oberturas
    • Estudio de las instalaciones de agua caliente sanitaria, calefacción y refrigeración.
    También aconsejará al cliente sobre cualquier duda que se le presente relativa a la certificación energética.

    Para la tramitación del certificado energético, el técnico necesitará una serie de documentación sobre el inmueble. Dicha documentación puede ser aportada de forma previa a la visita o durante la misma.
    La documentación es la siguiente:
    • Recibo de IBI, en el que aparece la referencia catastral.
    • DNI del propietario.

  3. Redacción del Certificado
    El técnico, una vez haya recopilado todos los datos y la documentación relativa al inmueble, redactará el Certificado de Eficiencia energética. Junto con el certificado, también redactará un Informe de medidas de mejora.

  4. Tramitación del Certificado
    El técnico realizará la tramitación administrativa del Certificado de Eficiencia Energética vía telemática a través del ICAEN (Institut Català d’Energia). El técnico también abonará las tasas de registro.
    Desde el ICAEN emitirán la Etiqueta energética y registrarán el inmueble en el Registro público de edificios con certificado de eficiencia energética.

    En el caso de Certicedula, una vez disponemos de los comprobantes de entrada y de pago, enviamos la documentación por correo electrónico al cliente para que pueda consultar el estado de su expediente. Se puede consultar el estado del trámite llamando al 012 o en la web www.gencat.cat, facilitando el número de expediente que aparece en el comprobante de entrada.

  5. Entrega del Certificado y de la Etiqueta
    El ICAEN, en un plazo de 3 días desde la entrada de la documentación, y si todo está correcto y no necesita documentación adicional, otorga la Etiqueta energética. El técnico la recibe por correo electrónico.
    Desde Certicedula enviamos el Informe de Certificación energética, el Informe de Medidas de mejora y la Etiqueta Energética al cliente de la forma que él nos solicite.

 

 


Contacto con Certicedula
Solicitar Cédula de habitabilidad
Solicitar Certificado energético
Solicitar Oferta cédula de habitabilidad + certificado energético

    Trabaja con nosotros:

    Envia mail a: info@certicedula.com

  • Agència de l'Habitatge de Catalunya

  • Institut Català de l'Energia

  • Col.legi d'Arquitectes de Catalunya

    CERTICEDULA

  • Avda. Catalunya, 10
  • 43700 El Vendrell. Tarragona

  • C/ Lluch, 2-4-6
  • 08016 Barcelona. Barcelona.

  • info@certicedula.com
  • 644 73 16 94

    Nombre Comercial: CERTICEDULA. info@certicedula.com. 644 73 16 94

Requeriments cèdula Habitabilitat








Certificado Energético

Pasos para la obtencion de la Cédula de Habitabilidad

Vanessa Abajas 2016-03-01


cedula habitabilidad La Cédula de Habitabilidad es un documento que nos pueden solicitar en varias situaciones.
En una compra-venta, el notario solicita a los vendedores de una vivienda la cédula de habitabilidad y el certificado energético. Estos documentos deben estar presentes el día de la firma.

Si el propietario de una vivienda quiere ponerla en alquiler, deberá mostrar el certificado energético en la publicidad para que los futuros inquilinos conozcan las características de la vivienda. Para el contrato de alquiler también se necesita el número de cédula.

La obtención de la Cédula de Habitabilidad es un proceso que consta de varios pasos. En este proceso interviene más de un agente, por lo que su duración es variable, aunque acostumbra a ser de treinta a cuarenta días.

Cuando tomamos la decisión de poner una vivienda en venta o en alquiler, es recomendable solicitar a un técnico la realización de la cédula al principio del proceso para tenerla preparada el día de la firma de la escritura en el notario o de la firma del contrato de alquiler.

Cuando ya ha aparecido comprador o inquilino para la vivienda y todavía no se dispone de la cédula de habitabilidad porque se está tramitando, el notario puede, en algunas ocasiones, permitir la compra-venta si se presenta el documento de solicitud de cédula de habitabilidad que ha realizado el técnico.

Antes de iniciar los trámites para la obtención de la cédula de habitabilidad, conviene informarse si nuestra vivienda dispone de cédula y, si en ese caso, si continúa vigente. Llamando al 012 (teléfono de atención ciudadana de la Generalitat de Catalunya) y proporcionando la dirección de su vivienda, le informarán si dispone de cédula y del estado de la misma.

En caso de haberla perdido no hay que volver a tramitarla. Basta con solicitar un duplicado a l’Agència de l’Habitatge. Este proceso puede realizarlo el propietario de la vivienda o una persona autorizada, pero si lo prefiere, desde Certicedula podemos realizar el trámite.
Contacte con nosotros y le informaremos.

Los pasos para la obtención de la cédula son los siguientes:

 

 

  1. Contacto con un técnico
    El propietario de la vivienda o una persona autorizada por el mismo debe ponerse en contacto con un técnico competente (arquitecto o arquitecto técnico) para que realice la inspección de la vivienda.
    Si también necesita un certificado de eficiencia energética, el mismo técnico puede realizar ambos informes. De esta manera se evitaría perder tiempo con dos visitas de técnicos y, en la mayoría de ocasiones, el técnico ofrece un precio más ventajoso si realiza ambos informes.
    En Certicedula somos arquitectos colegiados expertos en tramitación de cédulas de habitabilidad y certificados energéticos. Puede ponerse en contacto con nosotros y le aclararemos todas las dudas relacionadas sobre el tema y también puede solicitarnos el informe que necesite.
    Contacto con Certicedula
    Solicitar cédula de habitabilidad
    Solicitar certificado energético
    Solicitar oferta cédula de habitabilidad + certificado energético
  2. Visita del técnico al inmueble
    El técnico realizará una visita al inmueble el día que al propietario mejor le convenga.
    Durante la visita el técnico tomará medidas de superficie y comprobará que la vivienda cumpla los requisitos de habitabilidad. También aconsejará al cliente sobre cualquier duda que se le presente relativa a la habitabilidad de la vivienda.
    Para la tramitación de la cédula de habitabilidad, el técnico necesitará una serie de documentación sobre la vivienda. Dicha documentación puede ser aportada de forma previa a la visita o durante la misma.
    La documentación es la siguiente:
    • Recibo de IBI, en el que aparece la referencia catastral.
    • Escritura de propiedad de la vivienda.
    • Cédula de habitabilidad caducada, en el caso de que se disponga.
    • DNI del propietario.

    Puede suceder que la vivienda no cumpla los requisitos de habitabilidad y no pueda obtener la cédula. En ese caso, el técnico informará al propietario sobre las modificaciones que debería realizar en la vivienda para poder ser habitable según la normativa. Dichas modificaciones suelen ser obras de mejora.
    También puede suceder que el inmueble esté escriturado como local y no como vivienda. En ese caso, para obtener la cédula de habitabilidad, habría que cambiar el uso del inmueble a vivienda. Este proceso aparece explicado con detalle en otra entrada de este blog Convertir local en vivienda.

  3. Redacción del Certificado de Habitabilidad
    El técnico, una vez haya recopilado todos los datos y la documentación relativa a la vivienda, preparará una serie de documentos:
    • El Certificado de Habitabilidad, que es el documento mediante el cual el técnico certifica que la vivienda reúne las condiciones de habitabilidad de acuerdo con la legislación vigente de la Generalitat de Catalunya y las disposiciones concordantes que le son de aplicación.
      El Certificado de Habitabilidad de Segunda Ocupación se realiza en los siguientes supuestos:
      1. La vivienda fue construida en fecha anterior al 11 de agosto de 1984.
      2. La vivienda fue construida en fecha posterior al 11 de agosto de 1984 y dispone de Cédula de primera Ocupación.
      3. La vivienda fue construida en fecha posterior al 11 de agosto de 1984 y dispone de Cédula de Segunda Ocupación.
    • El Certificado de Idoneidad es muy similar al Certificado de Habitabilidad en cuanto a la función que cumple, la información que en él aparece y el tipo de impreso de presentación.
      El Certificado de Idoneidad se realiza en el supuesto de que la vivienda fue construida con fecha posterior al 11 de agosto de 1984 y no dispone de Cédula de Habitabilidad.
      Este documento acredita las condiciones de habitabilidad vigentes en la fecha de finalización de la obra y las condiciones de solidez y seguridad actuales.
    • La Declaración responsable de la antigüedad de una vivienda, que es el documento mediante el cual el técnico hace constar la antigüedad de la vivienda a efectos de tramitación de la cédula de habitabilidad.
      Ambos documentos deberán estar visados por el colegio profesional del técnico. En el caso de Certicedula, es el COAC, Colegio Oficial de Arquitectos de Cataluña, el organismo encargado de visar los documentos. Las tasas de visado serán pagadas por el técnico.

     
  4. Registro de los documentos
    El Certificado de habitabilidad, o el Certificado de idoneidad, y el Documento de declaración responsable de la antigüedad de una vivienda se deben registrar en l’Agència de l’Habitatge de Catalunya.
    Esta documentación debe ir acompañada de la solicitud de registro de la Cédula de habitabilidad.
    El registro de la documentación y la solicitud de la Cédula en Habitage puede realizarlo el propietario de la vivienda, una persona autorizada por el propietario o el técnico que ha realizado los informes previos.
    Desde Certicedula aconsejamos que sea el técnico quien realice el registro y la solicitud de la cédula, ya que ahorra tiempo al cliente.
    Si necesita el Certificado de habitabilidad y quiere realizar la posterior tramitación usted mismo o una persona autorizada, puede solicitar aquí el precio del certificado de habitabilidad.
    Si quiere que nosotros hagamos todos los trámites, puede solicitar aquí la cédula de habitabilidad.
    Las diferentes delegaciones para el registro de documentación y la solicitud de la cédula de habitabilidad se pueden consultar aquí.
    En el documento de solicitud de la cédula se debe especificar si se quiere recibir la cédula de habitabilidad por correo o si se quiere recoger personalmente en el mismo lugar del registro.
    Si se opta por el envío por correo, se hará a la dirección que aparezca en la solicitud.
  5. Pago de las tasas
  6. Una vez se han registrado los documentos y se ha realizado la solicitud, Habitage entrega un comprobante de entrada de la documentación y una carta de pago para poder realizar el pago de las tasas administrativas.
    En algunas ocasiones, Habitage puede inspeccionar la vivienda para comprobar que los datos aportados son correctos. Para realizar la visita, desde Habitage se pondrán en contacto con la persona que se ha especificado para tal propósito en la hoja de solicitud.
    En el caso de Certicedula, una vez disponemos de los comprobantes de entrada y de pago, enviamos la documentación por correo electrónico al cliente para que pueda consultar su expediente. Se puede consultar el estado del trámite llamando al 012 o en la web www.gencat.cat, facilitando el número de expediente que aparece en el comprobante de entrada.

  7. Usted recibe la Cédula de Habitabilidad
    L’Agència de l’Habitatge, en un plazo de 20 a 30 días desde la entrada de la documentación y el pago de las tasas, y si todo está correcto y no necesita documentación adicional, otorga la cédula de habitabilidad.
    Según se ha especificado en la solicitud, se podrá recibir por correo o de forma presencial. Desde Certicedula enviamos la cédula de habitabilidad al cliente de la forma que él nos solicite.
    Contacto con Certicedula
    Solicitar cédula de habitabilidad

 

 


Contacto con Certicedula
Solicitar Cédula de habitabilidad
Solicitar Certificado energético
Solicitar Oferta cédula de habitabilidad + certificado energético

    Trabaja con nosotros:

    Envia mail a: info@certicedula.com

  • Agència de l'Habitatge de Catalunya

  • Institut Català de l'Energia

  • Col.legi d'Arquitectes de Catalunya

    CERTICEDULA

  • Avda. Catalunya, 10
  • 43700 El Vendrell. Tarragona

  • C/ Lluch, 2-4-6
  • 08016 Barcelona. Barcelona.

  • info@certicedula.com
  • 644 73 16 94

    Nombre Comercial: CERTICEDULA. info@certicedula.com. 644 73 16 94

Requeriments cèdula Habitabilitat








Cédula Habitabilidad

Cèdula d’Habitabilitat a Catalunya: Requisits, Normativa i Condicions Essencials

Vanessa 2016-02-28


cedula habitabilitat

La cèdula d’habitabilitat és el document oficial que acredita que un habitatge compleix les condicions mínimes per ser considerat habitable. A Catalunya, aquest certificat és imprescindible per:

  • Formalitzar un contracte de lloguer

  • Realitzar una compra-venda davant notari

  • Donar d’alta aigua, llum o gas

  • Tramitar processos com el reagrupament familiar

La seva emissió correspon a l’Agència de l’Habitatge de Catalunya, segons el Decret 141/2012, que regula les condicions mínimes d’habitabilitat i el procediment per obtenir la cèdula.


Requisits Generals per Obtenir la Cèdula d’Habitabilitat

Els habitatges que sol·liciten la cèdula han de complir:

  • La Llei 18/2007, del dret a l’habitatge

  • El Decret 141/2012, que defineix les condicions mínimes d’habitabilitat

La normativa distingeix entre diferents tipologies d’habitatges segons la seva antiguitat i el seu estat:

1. Habitatges anteriors a l’11 d’agost de 1984

Poden renovar o obtenir la cèdula si compleixen els requisits de l’Annex 2 del Decret 141/2012.

2. Habitatges construïts o amb cèdula entre 1984 i 2012

Han de complir el Decret que estava vigent en el moment de la llicència d’obres.

3. Habitatges de nova construcció

S’apliquen les condicions de l’Annex 1 del Decret 141/2012.

4. Habitatges sotmesos a rehabilitació o gran rehabilitació

Obtenen una cèdula de primera ocupació de rehabilitació, amb requisits específics (Annex 4).


Principals Requisits d’Habitabilitat (Annex 2 – Habitatges preexistents abans del 1984)

Aquests són els requisits més importants per habitatges antics:

1. Composició mínima

Un habitatge ha de disposar, com a mínim, de:

  • Sala d’estar

  • Cambra higiènica

  • Espai de cuina

L’accés sempre ha de venir d’un espai públic, comú o annex propi.

2. Condicions constructives

L’habitatge ha de ser:

  • Sòlid i sense humitats

  • Estanc a l’aigua de pluja

  • No susceptible d’inundació

  • Amb paviments trepitjables i no polsegosos

  • Amb baranes de protecció en desnivells > 60 cm

3. Superfícies mínimes

  • Superfície útil mínima habitatge: 20 m²

    • Excepció: entre 15 i 20 m² si la llicència d’obra és anterior a 1/08/1984 i ja tenia cèdula anterior.

  • Sala d’estar: mínim 10 m²

  • Sala amb cuina integrada: mínim 14 m²

  • Habitacions: mínim 5 m² i amb un quadrat de 1,80 × 1,80 m

4. Obertures i ventilació

  • Sala: obertura mínima de 0,80 m² a façana, pati d’illa o de parcel·la

  • Habitacions: obertura mínima de 0,40 m²

  • Els patis han de permetre inscripció d'un cercle d’1,80 m

5. Equip mínim de l’habitatge

Instal·lació d’aigua

  • Aigua freda i calenta

  • Subministrament mínim de 50 litres a 40 °C

  • Si hi ha captació pròpia: dipòsit de ≥ 200 litres

Evacuació d’aigües

  • Tots els desguassos amb sifó

  • Connexió a clavegueram o sistema de depuració

Instal·lació elèctrica

  • Punt de llum i interruptor a cada peça

  • Endolls mínims:

    • 2 a la sala

    • 1 a la cuina

    • 1 a cada habitació

  • ICP instal·lat

Equip higiènic

  • Lavabo

  • Vàter

  • Dutxa o banyera

  • Cambra higiènica ventilada directament o amb extracció

Equip de cuina

  • Pica

  • Aparell de cocció (gas o elèctric)

  • Preparada per rentadora: desguàs, aigua freda i presa de corrent

  • Ventilació directa o per conducte


Descàrrega Normativa Oficial

Pots descarregar el Decret 141/2012 des del web oficial de la Generalitat.


Sol·licita aquí la teva cèdula d'habitabilitat.

 

 


Contacto con Certicedula
Solicitar Cédula de habitabilidad
Solicitar Certificado energético
Solicitar Oferta cédula de habitabilidad + certificado energético

    Trabaja con nosotros:

    Envia mail a: info@certicedula.com

  • Agència de l'Habitatge de Catalunya

  • Institut Català de l'Energia

  • Col.legi d'Arquitectes de Catalunya

    CERTICEDULA

  • Avda. Catalunya, 10
  • 43700 El Vendrell. Tarragona

  • C/ Lluch, 2-4-6
  • 08016 Barcelona. Barcelona.

  • info@certicedula.com
  • 644 73 16 94

    Nombre Comercial: CERTICEDULA. info@certicedula.com. 644 73 16 94

Requeriments cèdula Habitabilitat








Cédula Habitabilidad

Cédula de Habitabilidad en Cataluña: qué es, para qué sirve y qué información incluye

Vanessa Abajas 2016-02-16


cedula habitabilidad

La Cédula de Habitabilidad es el documento oficial que certifica que una vivienda cumple las condiciones mínimas necesarias para considerarse habitable. Este documento es imprescindible en diversas situaciones legales y administrativas, como:

  • Firmar una compraventa ante notario

  • Formalizar un contrato de alquiler

  • Dar de alta suministros (luz, agua o gas)

  • Trámites de reagrupación familiar

  • Solicitar un alquiler turístico, según el municipio

En Cataluña, la Cédula de Habitabilidad la concede la Agència de l’Habitatge de Catalunya, organismo responsable de su expedición y registro.


Normativa que regula la Cédula de Habitabilidad

La cédula se rige por el Decreto 141/2012, de 30 de octubre, que regula tanto las condiciones mínimas de habitabilidad como el propio procedimiento de concesión.

En este decreto se definen:

  • Art. 8 → Definición de la Cédula de Habitabilidad

  • Art. 9 → Vigencia y obligatoriedad

  • Art. 10 → Casos en los que una vivienda no necesita cédula

  • Art. 12 → Contenido mínimo obligatorio

  • Arts. 13–20 → Procedimientos administrativos


Cómo es una Cédula de Habitabilidad

La Cédula de Habitabilidad es un documento oficial impreso en:

  • Formato DIN-A4, horizontal

  • A color

  • Con los sellos oficiales de la Generalitat de Catalunya y de la Agència de l’Habitatge

Es un documento estandarizado cuyo diseño ha variado con los años, pero su estructura básica es siempre similar.


Contenido de la Cédula de Habitabilidad: elementos principales

A continuación se detallan todos los apartados obligatorios que incluye una cédula.


1. Tipo de Cédula

Aparece destacado en la parte superior, indicando si se trata de:

✔ Cédula de Primera Ocupación

Se concede cuando finaliza la obra nueva y se presenta:

  • Certificado final de obra

  • Solicitud de licencia de primera ocupación municipal

✔ Cédula de Segunda Ocupación

Corresponde a la renovación de una cédula caducada.
Todas las renovaciones posteriores también se consideran de segunda ocupación.

El título incluye además el número identificativo de la cédula.


2. Datos de localización de la vivienda

Incluye:

  • Municipio y localidad

  • Código postal

  • Dirección completa

  • Referencia catastral

La referencia catastral es un código alfanumérico único de 20 caracteres que identifica el inmueble de forma inequívoca en la cartografía del Catastro.


3. Datos de la vivienda

En este apartado se detalla:

✔ Tipo de vivienda

  • Unifamiliar (casa aislada o entre medianeras)

  • Plurifamiliar (en edificio)

✔ Estancias

El documento indica cada dependencia mediante abreviaturas:

  • E: Estar

  • M: Comedor

  • C: Cocina

  • H: Habitación

  • CH: Baño con ducha

  • AP: Otras piezas (pasillo, recibidor, trastero…)


4. Ocupación máxima permitida

El artículo 4 del Decreto 141/2012 fija el máximo de ocupantes según número y superficie de habitaciones:

  • 1 persona → habitaciones > 5 m²

  • 2 personas → habitaciones > 8 m²

  • 3 personas → habitaciones > 12 m²

  • Viviendas tipo loft (sin habitaciones): hasta 2 personas

El incumplimiento de la ocupación máxima tiene efectos legales según la Ley del Derecho a la Vivienda, salvo cuando se trate de unidades familiares convivientes que no generen problemas de salubridad o convivencia.

Se consideran parentesco:

  • Cónyuges

  • Consanguinidad o afinidad hasta 4.º grado

  • Parejas estables

  • Adopción


5. Superficie útil de la vivienda

La superficie útil comprende todos los espacios interiores medidos desde la cara interna de los cerramientos.
No computan:

  • Cerramientos interiores (sean fijos o móviles)

  • Elementos estructurales

  • Conductos con sección > 0,01 m²

  • Zonas con altura < 1,90 m (techo horizontal)

  • Zonas < 1,50 m (cubiertas inclinadas > 45º)

Sí cuenta como superficie útil:

  • La ocupada por escaleras interiores que conectan plantas dentro de la misma vivienda.


6. Normativa de habitabilidad aplicable

La vivienda debe cumplir el decreto vigente en la fecha de finalización de su construcción.
Los posibles decretos de referencia son:

Decreto 346/1983

  • Anejo único

Decreto 274/1995

  • Anejo 1.1 Definiciones

  • Anejo 1.2 Nueva creación o gran rehabilitación

  • Anejo 2 Viviendas de protección oficial

  • Anejo 3 Vivienda usada

Decreto 314/1996

  • Modificación del 274/1995

Decreto 28/1999

  • Apartados 1 a 4 según tipologías y usos

Decreto 259/2003

  • Anejos 1.1, 1.2 y 1.3

Decreto 55/2009

  • Anejo 1 Nueva construcción

  • Anejo 2 Vivienda usada o preexistente


7. Identificación del técnico certificador

Incluye:

  • Nombre del técnico

  • Titulación (arquitecto, arquitecto técnico…)

  • Número de colegiado


8. Periodo de validez

Indica la duración de la cédula:

  • 15 años para vivienda existente

  • 15 años para primera ocupación (desde la expedición)


9. Firma y registro

La cédula muestra:

  • Oficina de registro

  • Validación

  • Firma y sello del jefe del Servicio Territorial

En caso de ser un duplicado, aparece indicado.

  • Si necesitas una Cédula de Habitabilidad, puedes solicitarla aquí

    • .


Contacto con Certicedula
Solicitar Cédula de habitabilidad
Solicitar Certificado energético
Solicitar Oferta cédula de habitabilidad + certificado energético

    Trabaja con nosotros:

    Envia mail a: info@certicedula.com

  • Agència de l'Habitatge de Catalunya

  • Institut Català de l'Energia

  • Col.legi d'Arquitectes de Catalunya

    CERTICEDULA

  • Avda. Catalunya, 10
  • 43700 El Vendrell. Tarragona

  • C/ Lluch, 2-4-6
  • 08016 Barcelona. Barcelona.

  • info@certicedula.com
  • 644 73 16 94

    Nombre Comercial: CERTICEDULA. info@certicedula.com. 644 73 16 94

Requeriments cèdula Habitabilitat








Cédula Habitabilidad

Convertir local en vivienda en Barcelona

Jordi Rovira 2016-02-12


convertir local en vivienda En nuestra actividad profesional como arquitectos nos encontramos con clientes que quieren comprar un local, o ya son propietarios de uno, y desean convertir ese local en una vivienda para darle un mejor y más provechoso uso.

Muchas personas, desconocedoras del tema, pueden caer en el engaño del comercial de la inmobiliaria, el cual tiene como único objetivo vender un inmueble, en este caso un local, y llevarse su comisión correspondiente.
Pueden llegar a decir al cliente que comprar un local es una oportunidad, ya que sólo realizando unas pequeñas reformas se puede adaptar y obtener una vivienda o un loft moderno y diáfano.

Siempre hay que tener en cuenta que en estos casos los problemas surgen en el momento de las transmisiones patrimoniales o al dar de alta los servicios básicos de luz, agua, además de la comunidad de vecinos.

Recomendamos realizar la consulta a un técnico especializado ( arquitecto o arquitecto técnico), quien le dará una visión objetiva y sin mediar comisiones comerciales por medio. Técnicos colaboradores como los que podrá encontrar en cedulahabitabilidadprecio.com.

Desde este blog podemos aconsejar unos criterios básicos a seguir en el caso que se quiera adquirir un local o una oficina para convertirlo en vivienda.

La cédula de habitabilidad es un documento en el que un técnico habilitado certifica delante de la administración correspondiente que una vivienda cumple con los requisitos de habitabilidad que obliga la normativa vigente.

Los locales como tales no son viviendas, y por tanto, si se quiere convertirlo en vivienda hay que tomar unas consideraciones previas:

1-Si el local está escriturado como vivienda.
Aunque parece paradójico en nuestra experiencia profesional nos hemos encontrado durante las visitas con locales comerciales u oficinas que se encontraban registrados como viviendas porque el propietario no ha inscrito el nuevo uso del inmueble.
En este caso se pueden dar dos opciones:
1a –Si el local tiene la actividad legalizada fiscalmente en el Ayuntamiento pero su uso actual es de vivienda.
Habrá que mirar si esta actividad se continua ejerciendo en ese local u oficina. Un técnico habilitado ( arquitecto o aparejador) puede emitir un certificado después de visitar el inmueble conforme lleva más de 6 años sin realizarse la actividad.
1b – Si el local no tiene la actividad legalizada fiscalmente en el Ayuntamiento.
En este caso no hará falta ningún trámite más ya que jurídicamente y fiscalmente coinciden los usos. Puede solicitar la cédula de habitabilidad y el certificado energético en cedulahabitabilidadprecio.com

2-Si el local no está escriturado como vivienda debe seguirse los siguientes pasos:
2a-Hay que comprobar que la normativa urbanística de la población donde se ubica el local permita aumentar el número de viviendas en esa área. Si no lo permite la normativa no podrá convertirse el local en vivienda.
2b-Si la normativa urbanística permite aumentar el número de viviendas habrá que realizar un proyecto de cambio de uso de local a vivienda. Deberá adecuarse la nueva vivienda a la normativa vigente como si se tratara de una reforma. Deberá cumplir normativas como el Código Técnico y la normativa vigente de habitabilidad para poder obtener la cédula de habitabilidad.


Contacto con Certicedula
Solicitar Cédula de habitabilidad
Solicitar Certificado energético
Solicitar Oferta cédula de habitabilidad + certificado energético

    Trabaja con nosotros:

    Envia mail a: info@certicedula.com

  • Agència de l'Habitatge de Catalunya

  • Institut Català de l'Energia

  • Col.legi d'Arquitectes de Catalunya

    CERTICEDULA

  • Avda. Catalunya, 10
  • 43700 El Vendrell. Tarragona

  • C/ Lluch, 2-4-6
  • 08016 Barcelona. Barcelona.

  • info@certicedula.com
  • 644 73 16 94

    Nombre Comercial: CERTICEDULA. info@certicedula.com. 644 73 16 94

Requeriments cèdula Habitabilitat








Certificado Energético

Nuevas versiones para los programas de certificación energética

Vanessa Abajas 2016-01-29


certificado energetico A partir del 14 de enero los Registros de las Comunidades Autónomas solo aceptarán los informes de Certificación Energética realizados con las nuevas versiones de los programas CE3, CE3X, CERMA y LIDER.

El Ministerio de Industria, Energía y Turismo pone a la disposición de los usuarios los diferentes programas, junto con test comparativos y Manual de usuario de cada uno de ellos.

Los programas oficiales, junto con toda la información, se pueden descargar desde la página oficial del Ministerio:

Descargar CE3 V 2375.1015
Descargar CE3X V 2015.06_2.1
Descargar CERMA V-1.0
Descargar Herramienta unificada LIDER-CALENDER

Estas nuevas versiones de los programas se encuentran adaptadas a las exigencias del Código Técnico e incorporan herramientas que ofrecen unos resultados más acordes con la realidad.

Ce3x, el programa más utilizado para la certificación de edificio existente, introduce una serie de mejoras que facilitan el trabajo del técnico. La más notable de todas es la generación automática del archivo de Medidas de mejora, que puede ser adjuntado directamente a la Solicitud del Certificado Energético, liberando al técnico de la redacción del mismo.

Pese a haber superado el periodo de pruebas, el Ce3x continúa dando varios errores, especialmente a la hora de guardar el archivo si se ha dejado algún campo concreto sin rellenar. Desde Certicedula recomendamos empezar la redacción del certificado en el programa una vez se disponga de toda la información para poder realizarlo de principio a fin y no tener que guardarlo inacabado y arriesgarse a perder el trabajo realizado.
 


Contacto con Certicedula
Solicitar Cédula de habitabilidad
Solicitar Certificado energético
Solicitar Oferta cédula de habitabilidad + certificado energético

    Trabaja con nosotros:

    Envia mail a: info@certicedula.com

  • Agència de l'Habitatge de Catalunya

  • Institut Català de l'Energia

  • Col.legi d'Arquitectes de Catalunya

    CERTICEDULA

  • Avda. Catalunya, 10
  • 43700 El Vendrell. Tarragona

  • C/ Lluch, 2-4-6
  • 08016 Barcelona. Barcelona.

  • info@certicedula.com
  • 644 73 16 94

    Nombre Comercial: CERTICEDULA. info@certicedula.com. 644 73 16 94

Requeriments cèdula Habitabilitat








cédula de habitabilidad

Normativa aplicable a la Cédula de Habitabilidad

Vanessa Abajas 2019-09-17


Esta entrada al blog surge de la necesidad de dar  respuesta a una consulta frecuente que nos realizan futuros clientes: ¿Mi vivienda puede tener Cédula de Habitabilidad?

En Certicedula, al atender la llamada telefónica, realizamos un breve cuestionario con preguntas básicas: si está escriturado como vivienda o si está en buen estado de conservación, por ejemplo. Si las respuestas son afirmativas, concretamos la visita para realizar una inspección in situ. Durante la visita, el técnico comprueba si la vivienda se adecua a la normativa de Habitabilidad.

Para que una vivienda obtenga la Cédula de Habitabilidad, debe cumplir unos requisitos que se contemplan en las siguientes leyes:

  • Llei 18/2007 del 28 de setembre, del derecho a la vivienda
  • Decret 141/12 del 30 de octubre de 2012, por el que se regulan las condiciones mínimas de habitabilidad de las viviendas y la Cédula de Habitabilidad.

Según la fecha de construcción, las viviendas deben cumplir un decreto específico de la ley:

  • Las viviendas construidas o que hayan obtenido la cédula con fecha anterior al 11 de agosto de 1984, deben cumplir el anexo 2 del Decret 141/12.
  • Las viviendas construidas o que hayan obtenido la cédula con fecha comprendida entre el 11 de agosto de 1984 hasta el 30 de octubre del 2012, deben cumplir los requisitos del Decreto que estaba en vigor en la fecha de obtención de la licencia de obras.
  • Todas las viviendas construidas con fecha posterior al 30 de octubre del 2012 tienen Cédula de Habitabilidad vigente.

Las diferentes normativas están redactadas con un lenguaje técnico y legal que, a menudo, confunde al propietario de la vivienda. Mediante varias entradas al blog, tengo la intención de explicar de manera más accesible los requisitos de habitabilidad.

Esta información es muy útil, no solo para saber si una vivienda va a cumplir los requisitos, sino para asegurarse de las normativas antes de realizar una reforma. No en pocas ocasiones nos hemos encontrado que una vivienda no cumple habitabilidad porque el propietario ha realizado reformas sin conocer la normativa que luego se iba a aplicar a su vivienda al solicitar la cédula.

Comenzaré por la normativa más común, aquella aplicable a todas las viviendas anteriores al 11 de agosto de 1984.

Decreto 141/12 Annex 2

Composición mínima de la vivienda

La vivienda debe tener, al menos, una sala, un baño y un equipo de cocina (que puede estar en la sala o en una estancia separada).

Acceso a la vivienda

Se puede acceder a una vivienda desde la calle o desde un espacio comunitario, nunca desde otra vivienda o un local que no sea de uso exclusivo de la vivienda. De la misma forma, una vivienda no puede dar acceso a otra ni a un local que no sea de uso exclusivo de dicha vivienda.

El espacio de acceso a la vivienda debe estar iluminado.

Construcción de la vivienda

La construcción de la vivienda debe ser sólida (no está permitido el barraquismo) y evitar la humedad, la entrada de agua de lluvia y las inundaciones. El suelo debe estar pavimentado. Si existe un salto de más de 60cm, debe haber una barandilla que lo proteja.

Superficie de la vivienda

La superficie mínima es de 20m2 interiores (sin contar las terrazas).

Se permite una superficie entre 15m2 y 20m2 en el caso que la vivienda tenga licencia de obras con fecha anterior al 1 de febrero de 1984  y que en fecha 30 de octubre de 2012 tuviera la Cédula de Habitabilidad vigente.

Características de la sala

Tendrá una superficie mínima de 10m2. Si la sala integra la cocina, la superficie mínima será de 14m2. Se podrá “dibujar” en el suelo un cuadrado de 2,40x2,40m.

La sala tendrá una ventana al exterior o a una galería. Si la ventana da a un patio, éste deberá tener una superficie mínima de 4m2 y podrá “dibujarse” un círculo en el suelo de 1,80m de diámetro. A través de la sala no podrá ventilar ninguna estancia de la vivienda.

La ventana tendrá que tener una superficie mínima de 0,80m2 y estará situada entre 80cm y 2m de altura.

Características de las habitaciones

Tendrán una superficie mínima de 5m2 y se podrá “dibujar” en el suelo un cuadrado de 1,80x1,80m.

Tendrán puerta. A través de ellas no se podrá acceder a otras estancias de la vivienda. No podrán contener piezas del baño, cocina o lavadero.

Las habitaciones tendrán una ventana al exterior o a una galería. A través de las habitaciones no podrá ventilar ninguna estancia de la vivienda. La ventana tendrá que tener una superficie mínima de 0,40m2 y estar situada entre 80cm y 2m de altura.

Características de la galería

La galería tendrá un ventanal que dé directamente al aire libre. La superficie de ventana será mayor del 60% de la superficie de pared en la que se encuentra.

Si otras estancias ventilan  a través de la galería, la suma de la superficie de las ventanas de estas estancias será inferior a la superficie de la ventana de la galería. Por ejemplo, si la sala y la cocina ventilan a través de la galería y la sala tiene una ventana de 4m2 y la cocina, de 2m2, la ventana de la galería debe ser mayor de 6m2.

Instalación de agua

Contará con una instalación de agua fría y caliente en buen estado que sirva, al menos, a la pica de la cocina, un lavabo y la ducha o bañera.

Si el suministro de agua es por captación propia, debe disponer de un depósito de reserva de 200 litros.

Equipo de evacuación de aguas residuales

El equipo de evacuación de aguas residuales estará en buen estado. Evacuará en la red pública de alcantarillas o, en su defecto, las aguas sucias se depurarán antes de evacuarlas al exterior.

Instalación eléctrica

Estará en buen estado y tendrá un interruptor de control de potencia ICP.

Elementos mínimos:

  • Cada estancia tendrá un punto de luz con interruptor.
  • Habrá un enchufe para cada aparato del equipo obligatorio.
  • La sala y la cocina tendrán dos enchufes cada una. Las habitaciones, uno.

Equipo higiénico

Formado, como mínimo, por un wáter, un lavabo y una ducha o bañera, en buen estado.

El wáter estará en una estancia independizable (con puerta).

La ducha o bañera tendrán el suelo impermeable y las paredes hasta una altura de 2,10m.

Ventilarán al exterior por una ventana o por un conducto. Si el conducto no es vertical en todo su recorrido, deberá tener un motor que lo active.

Equipo de cocina

Formado, como mínimo, por una pica y un elemento de cocción.

Ventilarán al exterior por una ventana o por un conducto. Si el conducto no es vertical en todo su recorrido, deberá tener un motor que lo active.

La cocina no podrá contener ninguna pieza higiénica.

Equipo de lavado de ropa

Tener instalada o admitir la instalación de una lavadora (toma de agua fría, desagüe y enchufe).


Contacto con Certicedula
Solicitar Cédula de habitabilidad
Solicitar Certificado energético
Solicitar Oferta cédula de habitabilidad + certificado energético

    Trabaja con nosotros:

    Envia mail a: info@certicedula.com

  • Agència de l'Habitatge de Catalunya

  • Institut Català de l'Energia

  • Col.legi d'Arquitectes de Catalunya

    CERTICEDULA

  • Avda. Catalunya, 10
  • 43700 El Vendrell. Tarragona

  • C/ Lluch, 2-4-6
  • 08016 Barcelona. Barcelona.

  • info@certicedula.com
  • 644 73 16 94

    Nombre Comercial: CERTICEDULA. info@certicedula.com. 644 73 16 94

Requeriments cèdula Habitabilitat








Por qué preferimos que nos contactes por escrito

Vanessa Abajas 2025-01-27


Sabemos que, en ocasiones, puede resultar frustrante no poder contactarnos por teléfono. Entendemos que muchas personas están acostumbradas a este medio y lo consideran el más rápido y directo. Por eso, queremos explicarte por qué hemos decidido priorizar la comunicación escrita y cómo este sistema nos permite ofrecerte un mejor servicio.

Estamos en movimiento, literalmente

La naturaleza de nuestro trabajo nos lleva a pasar mucho tiempo fuera de la oficina, realizando visitas técnicas, inspecciones y redactando informes. Esto significa que no siempre estamos disponibles para atender llamadas. En cambio, los mensajes escritos nos permiten gestionar las consultas de forma eficiente, sin importar dónde estemos.

Un sistema más ágil y organizado

La comunicación escrita tiene muchas ventajas tanto para nosotros como para ti:

  • Claridad y precisión: Nos aseguramos de entender exactamente lo que necesitas, sin perder detalles importantes que a veces se escapan en una llamada.
  • Orden en las consultas: Podemos responder a cada cliente en el orden en que llegan las solicitudes, asegurando un trato justo para todos.
  • Seguimiento y registro: Los mensajes nos permiten llevar un registro claro de cada solicitud, lo que evita malentendidos y facilita el seguimiento de cada caso.

Tu tiempo también es valioso

Responder consultas por escrito no solo optimiza nuestro trabajo, sino que también beneficia a nuestros clientes. Al escribirnos, puedes plantear tus preguntas en cualquier momento, sin tener que esperar a que estemos disponibles. Además, nos comprometemos a responder en el menor tiempo posible para que no tengas que esperar más de lo necesario.

Estamos aquí para ayudarte

Nuestra prioridad es ofrecerte un servicio profesional, eficiente y claro. Si tienes alguna duda o necesitas ayuda, no dudes en escribirnos. Puedes hacerlo a través de nuestro formulario en la web o por correo electrónico, y te responderemos en cuanto podamos.


Gracias por confiar en nosotros y ayudarnos a ser más eficientes en lo que mejor sabemos hacer.


Contacto con Certicedula
Solicitar Cédula de habitabilidad
Solicitar Certificado energético
Solicitar Oferta cédula de habitabilidad + certificado energético

    Trabaja con nosotros:

    Envia mail a: info@certicedula.com

  • Agència de l'Habitatge de Catalunya

  • Institut Català de l'Energia

  • Col.legi d'Arquitectes de Catalunya

    CERTICEDULA

  • Avda. Catalunya, 10
  • 43700 El Vendrell. Tarragona

  • C/ Lluch, 2-4-6
  • 08016 Barcelona. Barcelona.

  • info@certicedula.com
  • 644 73 16 94

    Nombre Comercial: CERTICEDULA. info@certicedula.com. 644 73 16 94

Requeriments cèdula Habitabilitat








Cédula Habitabilidad

Documentación para solicitar la cédula de Habitabilidad

Vanessa 2016-03-16


Certificado de Habitabilidad
Certificado de Idoneidad
Declaración responsable de la antigüedad de una vivienda

Para solicitar la Cédula de Habitabilidad se debe presentar en l’Agència de l’Habitage un Certificado de Habitabilidad, suscrito por un técnico competente, en el que expresa que la vivienda cumple las condiciones de habitabilidad exigidas en el Decreto 141/12.

En el caso de viviendas construidas en fecha posterior a 1984 y que no dispongan de cédula de habitabilidad de primera ocupación, han de solicitar la cédula y aportar un Certificado de Idoneidad acreditativo de las condiciones de habitabilidad vigentes en la fecha de finalización de la obra y de las condiciones de solidez y seguridad actuales.

Certificado de Habitabilidad
certificado habitabilidad
Es el documento mediante el cual el técnico certifica que la vivienda reúne las condiciones de habitabilidad de acuerdo con la legislación vigente de la Generalitat de Catalunya y las disposiciones concordantes que le son de aplicación.
El Certificado de Habitabilidad de Segunda Ocupación se realiza en los siguientes supuestos:
1. La vivienda fue construida en fecha anterior al 11 de agosto de 1984.
2. La vivienda fue construida en fecha posterior al 11 de agosto de 1984 y dispone de Cédula de Primera Ocupación.
3. La vivienda fue construida en fecha posterior al 11 de agosto de 1984 y dispone de Cédula de Segunda Ocupación.

Certificado de Idoneidad
certificado idoneidad
Se trata de un documento muy similar al Certificado de Habitabilidad en cuanto a la función que cumple, la información que en él aparece y el tipo de impreso de presentación.
Se realiza cuando la vivienda fue construida con fecha posterior al 11 de agosto de 1984 y no dispone de Cédula de Habitabilidad.
Este documento acredita las condiciones de habitabilidad vigentes en la fecha de finalización de la obra y las condiciones de solidez y seguridad actuales.

Declaración responsable de la antigüedad de una vivienda
declaracion responsable de antigüedad
Es el documento mediante el cual el técnico hace constar la antigüedad de la vivienda a efectos de tramitación de la cédula de habitabilidad. Debe acompañar al Certificado de Habitabilidad o al Certificado de Idoneidad en el registro en l’Agència de l’Habitage.

En Certicedula somos expertos en la tramitación de cédula de habitabilidad y certificado energético.


Contacto con Certicedula
Solicitar Cédula de habitabilidad
Solicitar Certificado energético
Solicitar Oferta cédula de habitabilidad + certificado energético

    Trabaja con nosotros:

    Envia mail a: info@certicedula.com

  • Agència de l'Habitatge de Catalunya

  • Institut Català de l'Energia

  • Col.legi d'Arquitectes de Catalunya

    CERTICEDULA

  • Avda. Catalunya, 10
  • 43700 El Vendrell. Tarragona

  • C/ Lluch, 2-4-6
  • 08016 Barcelona. Barcelona.

  • info@certicedula.com
  • 644 73 16 94

    Nombre Comercial: CERTICEDULA. info@certicedula.com. 644 73 16 94

Requeriments cèdula Habitabilitat








Cédula Habitabilidad

No recibo la cédula de habitabilidad

Vanessa 2019-03-15


no-recibo-cedula

No recibo la Cédula de Habitabilidad

Cuando se tramita una Cédula de Habitabilidad, en la solicitud de registro, se puede especificar si se desea recibir la cédula por carta o recogerla personalmente en una oficina de l’Agència de l’Habitatge. En la mayoría de los casos, el solicitante opta por recibirla por carta, tratándose de una cuestión de ahorro de tiempo. Pero, en algunas ocasiones, la carta tarda más de lo previsto y surge la sospecha de una posible pérdida de la carta.

¿Quién envía la cédula por carta?

El organismo encargado de gestionar, otorgar y enviar la Cédula de Habitabilidad es l’Agència de l’Habitatge de Catalunya, que depende de la Generalitat.

Una vez la cédula está otorgada, l’Agència la envía por correo a la persona que aparece como solicitante en la solicitud de registro y a la dirección asociada al solicitante. La dirección de envío no tiene por qué ser la misma dirección de la vivienda de la cual se está tramitando la cédula.

¿Cuánto dura el proceso?

Una vez el técnico ha registrado el certificado de habitabilidad, l’Agència gestiona la cédula y, si todo es correcto, la otorga, imprime la original y la envía, en un periodo aproximado de 1 a 3 semanas, dependiendo del volumen de informes de cada oficina de Habitatge. Una vez enviada, el tiempo que tarde en llegar a su destinatario depende del servicio de correos. En total, no suele tardar más de un mes.

¿Puedo saber qué día se envió la carta?

No, pero sí que se puede saber qué día fue otorgada, lo que nos da una idea del día de envío, que puede ser uno o dos días después.

Para saber qué día fue otorgada la cédula, se puede llamar al 012 y solicitar la información. El técnico que realizó el Certificado de Habitabilidad de la vivienda también puede informar al solicitante del estado de la cédula a través de un aplicativo del colegio de Arquitectos.

¿Y si ha pasado un tiempo prudencial y no me llega?

Existe la posibilidad de que la carta se haya extraviado. En ese caso, la única opción es pedir un duplicado de la cédula.

¿Cómo puedo pedir un duplicado de la Cédula de Habitabilidad?

Solicitar un duplicado de cédula de habitabilidad no puede hacerse de forma telemática. Hay que ir personalmente a cualquier oficina de l’Agència de l’Habitatge.

Se puede solicitar en los siguientes sitios:

  • En Barcelona ciudad se puede solicitar en las oficinas del Consorci de l’Habitatge de Barcelona.Aquí
  • Oficinas locales de Habitatge tramitadoras de cédulas.Aquí
  • Oficinas de Atención al ciudadano en:
  • Barcelona.Aquí
  • Girona (en esta oficina hay que pedir cita previa para realizar el trámite).Aquí
  • Lleida.Aquí
  • Tarragona Aquí
  • Terres de l'Ebre. Aquí

¿Quién puede solicitar el duplicado de la Cédula de Habitabilidad?

Debe ir uno de los propietarios de la vivienda. También puede ir cualquier persona autorizada por el propietario. La persona autorizada deberá presentar una autorización firmada por el propietario. Aquí puedes descargarte un ejemplo de autorización.

¿Qué documentación hay que llevar?

  • En la oficina de Habitatge tienen que poder identificar al propietario o a la persona autorizada, por lo que deberían llevar un documento de identidad o un NIE. En caso de que se trate de una sociedad, también se deberá identificar dicha sociedad y la persona representante.
  • Para identificar la vivienda, se podrán llevar las Escrituras o una Nota Registral.
  • En caso de que no vaya el propietario de la vivienda, también deberá llevar la autorización.
  • Se deberá presentar una solicitud de duplicado de cédula. Aquí puedes descargarte un modelo. Si el solicitante no lleva el documento, en la oficina de Habitatge también lo facilitan.

¿Cuánto tardan en darme el duplicado?

Se realiza al momento.

¿Cuánto cuesta el duplicado de la cédula?

Es gratuito.

¿El duplicado de la cédula de habitabilidad tiene el mismo valor que el original?

Sí. Se trata de un documento exactamente igual al original, en el que aparece la palabra “duplicado”. Tiene el mismo valor legal.

¿Puedo recibir la cédula por correo electrónico?

No. Multitud de técnicos y personas implicadas han solicitado a Habitatge que se emplee un sistema similar al del Certificado Energético para la tramitación de la Cédula, pero, por ahora, el sistema no se ha adaptado a las nuevas tecnologías. Si la cédula se enviara a la persona solicitante por correo electrónico, presentándose en formato .pdf, facilitaría enormemente la gestión del trámite y agilizaría los tiempos de entrega, además de reducir los costes de las tasas, ya que no sería necesario pagar el servicio postal. En el caso de pérdidas de cartas, supone además una importante pérdida de tiempo para el propietario de la vivienda o la persona autorizada.

¿Y si no recibo el Certificado de Eficiencia Energética y la Etiqueta Energética?

El Certificado de Eficiencia Energética o Certificado energético es un documento que redacta un técnico donde se evalúa la eficiencia energética de una vivienda o local. El técnico es el responsable de entregar este certificado a la persona que lo ha solicitado.

Una vez el técnico ha registrado en el ICAEN el Certificado Energético y ha abonado las tasas correspondientes, el organismo oficial genera la Etiqueta Energética. En la solicitud de registro, el técnico proporciona una dirección de correo electrónico. Una vez está generada la Etiqueta, se recibe un correo electrónico en la dirección especificada donde se indica un enlace para poder descargarse la Etiqueta. En la mayoría de los casos, el técnico solicita ser informado en su propio correo electrónico y así descargarse la Etiqueta, aunque también puede poner la dirección de correo electrónico del solicitante para que éste reciba el enlace de descarga.

Una vez el técnico tiene el Certificado de Eficiencia Energética y la Etiqueta Energética, se la entrega al solicitante, por correo electrónico o de forma presencial.

Si no recibe alguno de estos informes, debe ponerse en contacto con el técnico que los ha tramitado para que le envíe los archivos por correo electrónico.

¿Puedo recibir la cédula por correo electrónico?

No. Multitud de técnicos y personas implicadas han solicitado a Habitatge que se emplee un sistema similar al del Certificado Energético para la tramitación de la Cédula, pero, por ahora, el sistema no se ha adaptado a las nuevas tecnologías. Si la cédula se enviara a la persona solicitante por correo electrónico, presentándose en formato .pdf, facilitaría enormemente la gestión del trámite y agilizaría los tiempos de entrega, además de reducir los costes de las tasas, ya que no sería necesario pagar el servicio postal. En el caso de pérdidas de cartas, supone además una importante pérdida de tiempo para el propietario de la vivienda o la persona autorizada.


Contacto con Certicedula
Solicitar Cédula de habitabilidad
Solicitar Certificado energético
Solicitar Oferta cédula de habitabilidad + certificado energético

    Trabaja con nosotros:

    Envia mail a: info@certicedula.com

  • Agència de l'Habitatge de Catalunya

  • Institut Català de l'Energia

  • Col.legi d'Arquitectes de Catalunya

    CERTICEDULA

  • Avda. Catalunya, 10
  • 43700 El Vendrell. Tarragona

  • C/ Lluch, 2-4-6
  • 08016 Barcelona. Barcelona.

  • info@certicedula.com
  • 644 73 16 94

    Nombre Comercial: CERTICEDULA. info@certicedula.com. 644 73 16 94

Requeriments cèdula Habitabilitat








cédula habitabilidad

Cédula de Habitabilidad y Certificado Energético sin visita del técnico

Vanessa Abajas 2022-11-04


El proceso de tramitación de una Cédula de Habitabilidad y un Certificado Energético es siempre el mismo: un técnico certificador, normalmente arquitecto, visita el inmueble para inspeccionarlo y tomar una serie de datos necesarios para realizar los informes. Posteriormente, realiza las solicitudes de ambos informes a la administración competente. En un breve periodo de tiempo, el técnico recibe los documentos definitivos y los entrega al propietario.

Existen varias páginas web donde anuncian la realización de la Cédula de Habitabilidad y el Certificado Energético sin necesidad de la visita del técnico al inmueble. En estos casos, el arquitecto realiza los informes de la cédula y el certificado sin inspeccionar la vivienda, certificando la habitabilidad de un inmueble que ni siquiera ha visitado.

Para el propietario de la vivienda este sistema parece tener muchas ventajas. La primera es el precio. El técnico certificador, al ahorrarse el tiempo y el gasto en el desplazamiento al inmueble, puede reducir considerablemente sus honorarios, por lo que al propietario pagará menos por los informes.

Cuando el propietario y/o el técnico tienen agendas apretadas u horarios incompatibles, el hecho de no tener que concretar un día y hora de visita puede simplificar considerablemente el proceso.

Ahora bien, ¿se están cumpliendo las normativas si se realizan los informes de Cédula y Certificado sin que un técnico haya inspeccionado la vivienda? La respuesta es no.

Tanto en la normativa de la Cédula de Habitabilidad como en la del Certificado Energético, la visita presencial del técnico es absolutamente imprescindible.

Una Cédula de Habitabilidad y un Certificado Energético que se hayan realizado sin visita del técnico no son válidos.

¿Y si la visita se ha hecho de forma virtual?

Algunos técnicos ofrecen la posibilidad de realizar una visita virtual, es decir, a través de la cámara del teléfono móvil. El propietario de la vivienda o alguien de confianza se encuentra en el inmueble esperando ser contactado por el técnico. Mediante videollamada se desplaza por el piso de forma que el técnico, desde su despacho, pueda observar la vivienda.

Este sistema parece estar en un punto intermedio entre no efectuar visita y realizarla presencialmente. Para asegurarnos de la legalidad de esta práctica, desde Certicedula contactamos con el departamento de Habitatge, encargado de otorgar las Cédulas de Habitabilidad, y con el Icaen, reaponsable de los Certificados Energéticos. Desde las dos entidades nos confirmaron que la visita del técnico siempre debe realizarse de forma presencial y que las visitas virtuales no son válidas.

¿Qué puede suceder si se han realizado los informes si visita o mediante visita virtual?

De cara al propietario, este tendrá unos informes realizados sin rigor. Las mediciones de la vivienda no serán precisas y el técnico, seguramente, habrá obviado muchos detalles relevantes para los informes.

Los resultados de los informes pueden perjudicar al propietario, por ejemplo, si la superficie adoptada es inferior a la real, o si la calificación energética está por debajo de la que debería haber obtenido si se hubieran tenido en cuenta todos los parámetros.

Para el técnico, si es descubierto, puede sufrir consecuencias legales. Y, a su vez, los informes que éste haya realizado sin visita, serán invalidados, hecho que también perjudicará al propietario de la vivienda.

Otro problema relacionado con estas prácticas es la respuesta de los técnicos a las solicitudes del departamento de Habitatge. De forma habitual, los técnicos de Habitatge envían notificaciones en las que se solicita documentación adicional, planos acotados de la vivienda u otro tipo de documentos. Los técnicos que no realizan visita al inmueble acostumbran a desvincularse en estas situaciones. Al no haber realizado mediciones del inmueble, no pueden aportar planos acotados. Tampoco pueden dibujar los planos de forma aproximada, ya que, en algunos casos, después de recibir los planos del técnico, desde Habitatge van a inspeccionar la vivienda y verían que las medidas reales no coinciden con las que dibujó el técnico. La notificación no sería contestada y, el cliente, nunca recibiría su cédula.

Por lo tanto, recomendamos contratar profesionales serios, que cumplan con las normativas legales referentes a la Cédula de Habitabilidad y el Certificado Energético.

En Certicedula siempre realizamos visita al inmueble, ya que nuestra intención es ofrecer el mejor servicio y realizar un trabajo de calidad.


Contacto con Certicedula
Solicitar Cédula de habitabilidad
Solicitar Certificado energético
Solicitar Oferta cédula de habitabilidad + certificado energético

    Trabaja con nosotros:

    Envia mail a: info@certicedula.com

  • Agència de l'Habitatge de Catalunya

  • Institut Català de l'Energia

  • Col.legi d'Arquitectes de Catalunya

    CERTICEDULA

  • Avda. Catalunya, 10
  • 43700 El Vendrell. Tarragona

  • C/ Lluch, 2-4-6
  • 08016 Barcelona. Barcelona.

  • info@certicedula.com
  • 644 73 16 94

    Nombre Comercial: CERTICEDULA. info@certicedula.com. 644 73 16 94

Requeriments cèdula Habitabilitat








certificado energético

Nuevo RD 390/2021 sobre el procedimiento de certificación energética

Vanessa Abajas 2021-08-13


El 3 de junio ha entrado en vigor el Decreto 390/2021, en el que se modifica el procedimiento para la certificación energética de edificios. El nuevo decreto 390/2021 deroga el RD 235/2013.

En este nuevo decreto se introducen nuevas definiciones y se revisan las existentes. También se modifican las bases de datos para el registro de los certificados de eficiencia energética, que permitirán la recopilación de datos sobre consumo de energía medido o calculado de los edificios, así como la vinculación de incentivos financieros para la mejora de la eficiencia energética al ahorro de energía previsto o logrado.

Entre las novedades introducidas, destacamos las siguientes:

Ampliación del ámbito de aplicación a:

  •  Edificios de nueva construcción
  •  Edificios o partes de edificios existentes que se vendan o alquilen a un nuevo arrendatario.
  •  Edificios o partes de edificios que pertenecen o están ocupados por una administración pública con una superficie útil total superior a 250 m2.
  • Edificios o partes de edificios en los qué se realicen reformas o ampliaciones:
    o Sustitución, instalación o renovación de las instalaciones térmicas.
    o Intervención en más del 25% de la superficie total de la envolvente térmica final del edificio.
    o Ampliación de más de un 10% de la superficie o el volumen construido de la unidad o unidades de uso sobre las qué se intervenga, cuando la superficie útil total ampliada supere los 50m2.
  •  Edificios o partes de edificios con superficie superior a 500m2 (administrativos, sanitarios, comerciales, residencial público, docente, cultural ...)
  •  Edificios que tengan que realizar obligatoriamente la Inspección Técnica del Edificio (ITE) o inspección equivalente.

 

Obligación de realizar una visita:
El técnico competente realizará al menos una visita al inmueble, con una antelación máxima de tres meses antes de la emisión del certificado.


Modificación de la certificación en fase de proyecto y de obra terminada:
Será de aplicación en los edificios de obra nueva y en edificios o partes de edificios en los qué se realicen reformas o ampliaciones.


Validez, renovación y actualización del certificado de eficiencia energética:

El certificado de eficiencia energética tendrá una validez máxima de 10 años, excepto cuando la calificación energética para emisiones o por energía primaria no renovable sea una G, entonces la validez máxima será de 5 años.


Refuerzo de la obligación de informar y enseñar la etiqueta de certificación energética en cualquier publicidad del inmueble que se quiera vender o alquilar:

Toda persona física o jurídica que publique o permita la publicación de información sobre la venta o alquiler de un edificio o de parte del mismo, ya sea en agencias inmobiliarias, ballas publicitarias, páginas web, portales inmobiliarios, catálogos, prensa o similares estarán obligados a incluir la información relativa a su calificación de eficiencia energética.


Obtención del certificado y obligatoriedad de exhibir la etiqueta de eficiencia energética:

Las obligaciones de obtener el certificado de los edificios administrativos, rehabilitaciones, edificios terciarios de más de 500 m2 y edificios que tengan que disponer de la ITE, (ámbito de aplicación c), d), e) y f) y de exhibir la etiqueta energética en edificios administrativos y edificios terciarios de más de 500 m2, deben cumplirse antes de doce meses de la entrada en vigor de este Real decreto.

 

Principales afectados por las modificaciones realizadas en el decreto 390/2021 respecto al decreto 235/2013

La ampliación del ámbito de aplicación obliga a los propietarios de locales con superficie superior a 500m2 a realizar la certificación energética. Hasta la fecha, estos inmuebles estaban exentos de disponer de etiqueta energética. En Certicedula hemos recibido varias llamadas de propietarios de grandes locales y edificios preguntando por la nueva normativa y solicitando el certificado energético. Este ha sido el caso de un camping, en el que hemos certificado los edificios de recepción, restaurante y gimnasio.

La ampliación del tipo de inmueble que debe ser certificado también afecta a los edificios públicos de más de 250m2. En este caso también hemos recibido una solicitud de un CAP para la realización del certificado energético. Nos ha sorprendido bastante que la administración no disponga de sus propios técnicos que realicen los informes.

En cuanto a la obligación de realizar la visita por parte de un técnico, en Certicedula siempre hemos realizado personalmente la visita. Sabemos que muchos técnicos de otras empresas realizan los informes, tanto de certificado energético como la cédula de habitabilidad, sin visitar los inmuebles. En estos casos, la calidad del informe es inferior a la realizada por un técnico que ha visitado la vivienda o el local.

Esta modificación en la normativa era muy necesaria, primero por la competencia desleal entre técnicos que visitan el inmueble y aquellos que se ahorran la visita y tienen honorarios más bajos, y también por el resultado de los certificados realizados en la distancia, habitualmente incorrectos debido a la falta de información del inmueble por parte del técnico.

La validez de solo 5 años para los inmuebles con una calificación G es una modificación conflictiva. En el decreto no viene explicado el motivo. Parece que se trata de una coacción para que los propietarios realicen reformas en sus inmuebles para mejorar la eficiencia energética de los mismos. ¿Será eficiente esta medida? Seguramente no. Cuando el motivo de no realizar reformas en un inmueble es económico, claramente es más barato volver a solicitar el certificado energético cada 5 años que instalar, por ejemplo, una caldera de biomasa.

Esperemos que todas estas medidas contribuyan en la eficiencia energética de los edificios y puedan mejorarse, poco a poco, las condiciones ambientales.


Contacto con Certicedula
Solicitar Cédula de habitabilidad
Solicitar Certificado energético
Solicitar Oferta cédula de habitabilidad + certificado energético

    Trabaja con nosotros:

    Envia mail a: info@certicedula.com

  • Agència de l'Habitatge de Catalunya

  • Institut Català de l'Energia

  • Col.legi d'Arquitectes de Catalunya

    CERTICEDULA

  • Avda. Catalunya, 10
  • 43700 El Vendrell. Tarragona

  • C/ Lluch, 2-4-6
  • 08016 Barcelona. Barcelona.

  • info@certicedula.com
  • 644 73 16 94

    Nombre Comercial: CERTICEDULA. info@certicedula.com. 644 73 16 94

Requeriments cèdula Habitabilitat








arquitectura

El futuro de la arquitectura

Vanessa Abajas 2021-04-23


Los tiempos cambian a un ritmo vertiginoso. Algunas profesiones dejan de existir y aparecen otras, normalmente relacionadas con las nuevas tecnologías. La Arquitectura experimenta grandes avances: nuevos materiales de construcción, nuevas formas de construir, mayores exigencias en cuanto a sostenibilidad. ¿Cómo afectan estos cambios a las personas que trabajan en el sector?

Un poco de historia

Por mis manos han pasado muchos proyectos de casas realizados antes de la década de los 90. La parte gráfica consistía en pocos planos que contienen la información básica: emplazamiento de la casa, planta de distribución y de instalaciones, fachadas, una sección de la vivienda y planos de estructuras. La parte escrita no son más de diez páginas, en las que se describe la vivienda y su construcción.

El Word y los programas de dibujo por ordenador llegaron a los despachos de arquitectura a principios de los años 90. Parecía que serían una gran ayuda y que ahorrarían largas horas de dibujo y fotocopias. Y, en un principio, fue así. Modificar un proyecto nunca había sido tan fácil. Cualquier cambio en el dibujo ya no implicaba empezar de nuevo o, en el mejor de los casos, borrar la tinta con la cuchilla.

La parte escrita también podía ser fácilmente editada. De la fotocopiadora se pasó al botón de imprimir, mucho más ágil.

Poco tiempo duró esta bonanza. El ordenador resultó ser un arma de doble filo que, a la vez que ahorraba trabajo, justificaba un trabajo más exhaustivo. Me explico: como la información es más fácil de gestionar desde un ordenador que desde la máquina de escribir y el dibujo a mano, desde los organismos oficiales se exigió a los arquitectos que realizaran unos proyectos más elaborados, pensando que no supondría un exceso de trabajo.

Los planos empezaron a contener muchísima más información y a ser más numerosos. La documentación escrita pasó de aquellas 10 páginas a cerca de 500 en un proyecto actual. Parece que a nadie le importaba la ecología, ya que lo normal era realizar varias copias en la entrega de un proyecto (ayuntamiento, propietarios, constructor, etc.). Afortunadamente, a día de hoy, es bastante habitual entregar los proyectos en CD, al menos, la parte escrita.

Todas estas normativas inacabables que hay que justificar en los proyectos arquitectónicos se van sucediendo a lo largo de los años. De la Norma Básica de la Edificación (NBE) del 87 pasamos al Código Técnico de la Edificación (CTE) del 2006.

El CTE supuso toda una innovación en el mundo de la arquitectura y en la manera de construir. Todos los despachos de arquitectura tuvieron que actualizarse, ya que las normativas cambiaron completamente. Los arquitectos tuvieron que asistir a cursos del CTE para conocer todos los cambios producidos respecto a la anterior normativa. También tuvieron que leer los libros que explicaban los diferentes Documentos Básicos o DB (Ahorro de energía, Salubridad, Utilización, etc.). Estamos hablando de miles de páginas.

El cumplimiento del CTE se debía reflejar en planos, documentación escrita y en fichas justificativas. El trabajo se multiplicó y, con ello, la documentación a presentar. También aparecieron nuevos programas para justificar resultados, que los arquitectos tuvieron que aprender a utilizar. Fue un trabajo duro que coincidió con los tiempos del auge de la construcción, cuando los despachos de arquitectura no daban abasto debido a la gran demanda de vivienda.

 Todo ello supuso un gran esfuerzo en los despachos con tal de adaptarse a los cambios. En los despachos grandes, algunos de sus miembros podían dedicarse a tiempo completo a estudiar el CTE y a adaptar su cumplimiento en los proyectos realizados en el despacho. Si se trataba de un despacho pequeño esta tarea era más complicada. El mismo arquitecto debía continuar con su trabajo y, a la vez, adaptarse al CTE.

Aprovecho para explicar que los arquitectos se formaron y adaptaron a las nuevas normativas, pero los constructores y paletas, en general, no lo hicieron. Ningún organismo había exigido nunca a los obreros de la construcción tener una mínima formación y, con el CTE, la situación no cambió.

Una vez el CTE entró en vigor y los proyectos llegaron a la obra, los arquitectos empezaron a realizar un trabajo que no les tocaba: el de enseñar a los obreros a realizar la construcción de la nueva manera exigida. La situación fue difícil y confusa.

Una vez todos nos habíamos adaptado a los cambios, empezaron a aparecer las modificaciones en las normativas. Nuevas fichas para justificar los resultados, nuevos programas, nuevos cambios en la presentación de los planos y en los documentos escritos.

Estas modificaciones se producen cada vez periodos de tiempo más breves, lo que te obliga a estar siempre atento a los medios de información. En nuestro caso, el Colegio de arquitectos publica en su web las noticias relacionadas con las nuevas normativas y te da herramientas de ayuda para adaptarlas a los proyectos.

La actualidad

Se ha llegado a un punto en que las exigencias a cumplir son tan complicadas de justificar que hay que ser prácticamente un experto en cada materia de un proyecto. Necesitas un gran conocimiento en instalaciones, en habitabilidad, en construcción, en cálculo estructural, dibujo en 3D, etc. Es casi imposible que una persona tenga todos los conocimientos exigidos en la redacción de un proyecto. Se trata de ser cada vez más específico y centrarse en una sola área, de dominar un solo campo.

Los grandes despachos no tienen problemas, cuentan con ingenieros, calculistas o diseñadores gráficos entre su plantilla. Los proyectos pasan por varias manos, se realizan en equipo. El arquitecto proyectista realiza un esquema de un nuevo proyecto y, acto seguido, consulta al estructurista cómo se podría construir, a la vez que el ingeniero le asesora en el tema de instalaciones.

La idea que tenemos del arquitecto autónomo que se encarga de un proyecto desde el primer esbozo hasta entregar la obra ha pasado a la historia. Estar al día de las nuevas modificaciones en las normativas, estudiar cómo aplicarlas a los proyectos, aprender nuevos programas informáticos cada vez más especializados, y, a la vez, continuar con el trabajo diario, es una tarea casi imposible.

La idea de arquitecto como hombre del Renacimiento que sabe hacer de todo es el pasado de los despachos de arquitectura, es una especie en vías de extinción.

Y, ¿cuál es el futuro? Los equipos interdisciplinarios. No es imprescindible que compartan el mismo espacio, como en los grandes despachos de arquitectura. Puede tratarse también de un pequeño despacho que colabore de forma habitual con un despacho de ingeniería, con un geólogo, con un experto en renders (dibujos en 3D), con otro arquitecto calculista o con cualquier otro experto que se pueda necesitar hoy en día o en un futuro cercano.

No desaparecerá la figura del arquitecto “jefe”, el responsable del proyecto. Siempre tendrá que haber un coordinador, que será también quien tome las decisiones. Pero, a diferencia del arquitecto jefe del pasado, el nuevo responsable no podrá dominar todos los aspectos de su proyecto, deberá delegar los aspectos más detallados y técnicos.


Contacto con Certicedula
Solicitar Cédula de habitabilidad
Solicitar Certificado energético
Solicitar Oferta cédula de habitabilidad + certificado energético

    Trabaja con nosotros:

    Envia mail a: info@certicedula.com

  • Agència de l'Habitatge de Catalunya

  • Institut Català de l'Energia

  • Col.legi d'Arquitectes de Catalunya

    CERTICEDULA

  • Avda. Catalunya, 10
  • 43700 El Vendrell. Tarragona

  • C/ Lluch, 2-4-6
  • 08016 Barcelona. Barcelona.

  • info@certicedula.com
  • 644 73 16 94

    Nombre Comercial: CERTICEDULA. info@certicedula.com. 644 73 16 94

Requeriments cèdula Habitabilitat








arquitectura

El futuro de la arquitectura (Segunda parte)

Vanessa Abajas 2021-05-16


En la anterior entrada del blog comentaba hacia dónde se dirige la arquitectura desde el punto de vista de la disciplina y la profesión. También realizaba un rápido recorrido por los últimos cuarenta años, comentando cómo la tecnología, las exigencias oficiales y las normativas han obligado a cambiar la organización de los despachos y la figura del arquitecto. En la actualidad, parece ser que estamos en una etapa en la que se “obliga” al arquitecto a ser especialista en un tema y a cooperar con sus compañeros para realizar cualquier proyecto.

En esta entrada del blog continuaré con la idea de la especialización, pero desde otro enfoque, y también comentaré un tema que se está imponiendo a una velocidad de vértigo: el de las casas prefabricadas.

La especialización en la arquitectura

Un arquitecto puede especializarse en cálculo de estructuras, instalaciones, eficiencia energética, dibujo en 3D, y en otros muchos campos. Todos estos conocimientos son necesarios para realizar proyectos de obras. Pero existen una serie de informes que puede realizar un arquitecto que no necesitan el grado de conocimiento de todos los campos que se puede exigir en las obras. Me refiero a las tasaciones, informes periciales, declaraciones de obra nueva, cédulas de habitabilidad, certificados energéticos y a otros informes técnicos de índole similar.

Muchos son los arquitectos que optan por dedicarse prácticamente en exclusiva a la realización de un tipo de informe técnico. La figura más común es la del tasador, que acostumbra a trabajar para una empresa tasadora. Como arquitecto tendrá conocimientos generales de construcción o instalaciones, pero no necesitará ser un “especialista” como otro profesional que se dedique a realizar proyectos arquitectónicos.

En Certicedula somos expertos en Cédulas de Habitabilidad y Certificados energéticos. Nos dedicamos casi en exclusiva a la realización de estos informes. Nuestra experiencia en el tema es muy útil a la hora de realizar los informes con agilidad. También disponemos de un conocimiento profundo de las normativas relacionadas con el tema. La especialización nos permite abaratar costes, como si de una fábrica se tratara, ya que, gracias a la práctica, podemos reducir el tiempo dedicado a realizar el informe y no cometer errores.

Los arquitectos que trabajamos en Certicedula también nos dedicamos a realizar Proyectos de Obra Nueva, ya que no queremos desvincularnos de la parte más artística de la Arquitectura ni de los adelantos en el tema de la sostenibilidad, que tanto nos preocupa. Cuando realizamos un proyecto, colaboramos con otros compañeros de profesión que dominan campos que nosotros no estamos tan habituados a tratar.

¿Y qué ocurre cuando un arquitecto “de los que solo hacen casas” recibe un encargo para realizar un informe técnico? Normalmente no sabe los pasos a seguir. Las normativas y la forma de presentar los documentos varían a tanta velocidad que, si no estás acostumbrado a realizar estos informes, debes aprender a realizarlos prácticamente desde cero. Por este motivo no les suelen salir a cuenta los informes técnicos y, en el caso de realizarlos, el precio es muy elevado ya que cuentan las horas que perderán reciclándose.

BIM (Building Information Modelling)

Para acabar el tema de la especialización y volviendo al tema de los proyectos de obra, comentaré el nuevo sistema que se ha implantado para favorecer la cooperación de los distintos especialistas.

Los diferentes actores de una obra deben hablar el mismo idioma. Me refiero al tema informático.

De la necesidad de plasmar la información de la obra de forma que todos los agentes pudieran interpretarla y compartirla, surgió el sistema llamado BIM (Modelado de Información de la Construcción). Arquitectos, ingenieros, especialistas en instalaciones y demás profesionales, utilizan la misma metodología para representar el proyecto. Este hecho facilita enormemente la comunicación entre los profesionales que cooperan.

Puede parecer que un plano es un plano y que todos los arquitectos y constructores deben saber leerlo e interpretarlo. Y no siempre es así, ya que cada arquitecto tiene sus manías a la hora de dibujar y de ordenar la información. El BIM sirve para que todos los agentes de la obra dibujen y ordenen la información de la misma forma y el intercambio de datos pueda ser más fluido.

Por ahora el BIM solo es obligatorio para la obra pública. Que se implante a nivel mundial es cuestión de tiempo, de poco tiempo.

Las casas prefabricadas

Se anuncia el fin de lo artesanal. La industrialización está ganando la partida en uno de los últimos campos que se resistía: la Arquitectura.

La fabricación en serie es la consecuencia lógica de la especialización en el campo de la Arquitectura. La casa prefabricada es el fruto de la evolución de nuestro sistema de construir. Primero se especializan y cooperan los técnicos y, luego, los agentes de la obra.

Paletas, lampistas, carpinteros y otros profesionales interactúan en la obra de una forma bastante básica. Todo aquel que haya hecho una obra sabe de qué hablo. Cada industrial tiene su propio negocio y cuida sus intereses. Siempre pierde el promotor. Un industrial no puede continuar si otro no ha acabado su trabajo, por lo que la obra se eterniza. La falta de comunicación entre industriales provoca rehacer varios puntos de la obra. Materiales que no llegan porque no se han pedido con suficiente antelación y tienen a los trabajadores parados esperándolos. Y una larga lista.

No es de extrañar que triunfe el sistema prefabricado, donde la misma empresa se encarga de todos los elementos de la obra y todos sus agentes están organizados.

Existen varias ventajas en la construcción de casas prefabricadas, como el mejor control de los procesos de fabricación o las mejoras en temas de sostenibilidad. Pero, lo que más gusta a los futuros propietarios, es el precio cerrado y un plazo de entrega marcado.

Todos sabemos que, en una obra tradicional, el precio final siempre es superior al del presupuesto. Siempre, siempre, siempre aparecen imprevistos, que suelen elevar el presupuesto aproximadamente un 20%. En cuanto a los plazos de entrega, nunca se cumplen. Como he comentado antes, siempre tiene la culpa “otro” industrial.

Todo no son ventajas en la fabricación de casas. Aunque la oferta de diseños, calidades y precios es muy amplia, no todo el mundo encontrará su casa ideal en un catálogo. Aquel que quiera un “traje a medida”, tendrá que ir a su sastre-arquitecto a que se lo haga.


Contacto con Certicedula
Solicitar Cédula de habitabilidad
Solicitar Certificado energético
Solicitar Oferta cédula de habitabilidad + certificado energético

    Trabaja con nosotros:

    Envia mail a: info@certicedula.com

  • Agència de l'Habitatge de Catalunya

  • Institut Català de l'Energia

  • Col.legi d'Arquitectes de Catalunya

    CERTICEDULA

  • Avda. Catalunya, 10
  • 43700 El Vendrell. Tarragona

  • C/ Lluch, 2-4-6
  • 08016 Barcelona. Barcelona.

  • info@certicedula.com
  • 644 73 16 94

    Nombre Comercial: CERTICEDULA. info@certicedula.com. 644 73 16 94

Requeriments cèdula Habitabilitat








cédula habitabilidad

Novedades en la Cédula de Habitabilidad

Vanessa Abajas 2022-04-29


La solicitud de Cédula de Habitabilidad se puede registrar de dos maneras: presencial o telemática. De forma presencial solamente podrán hacerlo los particulares. Los profesionales y las entidades deberán hacerlo de forma telemática.

Desde el mes pasado, la presentación por internet ha sufrido variaciones importantes. 

Información de la solicitud de Cédula de Habitabilidad

En la nueva presentación de cédula se mantienen las tres modalidades: Vivienda construida antes del 11 de agosto de 1984 sin cédula anterior, Vivienda construida entre el 11 de agosto de 1984 hasta el 3 de noviembre de 2012 sin cédula anterior y Vivienda que ha tenido cédula de habitabilidad previa.

La información de la solicitud tampoco se modifica: datos del solicitante, datos del propietario, datos del técnico, descripción de la vivienda, certificado colegial, declaración responsable de antigüedad, certificado conforme la vivienda cumple la normativa y demás términos legales.

Una vez realizado el registro, el técnico también recibe el acuse, en el que aparece el código de trámite y el número de registro.

Nuevo sistema de registro

La principal novedad está relacionada con el sistema de registro. Hasta la fecha, el técnico se descargaba los formularios de la web, uno por cada una de las tres modalidades de solicitud. Cada formulario podía descargarse cada vez antes de su uso o bien podía conservarse una copia de cada uno de ellos en el ordenador para ser utilizada cuando fuese necesario.

A partir de ahora, la solicitud se realizará a través de un formulario web. En la página web de Cédula de Habitabilidad de Segunda ocupación, el profesional podrá acceder a los tres formularios web, uno por cada modalidad de solicitud.

Una vez se ha accedido al formulario y se han rellenado todos los campos, el técnico podrá guardar un borrador del formulario. Dicho borrador se enviará a la dirección de e-mail que se haya informado y podrá ser ampliado, modificado o simplemente guardado, para ser enviado a Habitatge en otro momento. Firmado el formulario de solicitud, el borrador dejará de ser accesible.

Desde el formulario, se firma y se envía la solicitud a Habitatge. Posteriormente, el técnico puede descargarse el acuse de recibo y pagar las correspondientes tasas, que no se han visto alteradas.

Ventajas e inconvenientes del nuevo modelo

La mayor ventaja de este nuevo sistema es que, al tratarse de un formulario web, las actualizaciones son instantáneas.

Anteriormente, cada vez que Habitatge realizaba una modificación de los formularios, el técnico tenía que volver a descargarse los tres formularios. Si, por algún motivo, el técnico tenía formularios completados con los datos de la vivienda y no los enviaba al instante, corría el riesgo de que modificaran los formularios desde Habitatge y el trabajo que había realizado no sirviera, ya que el sistema no permitía enviar formularios obsoletos.

Una novedad importante es que el formulario web incorpora una casilla en la que se adjunta el certificado colegial del técnico. Desde hace un año, desde Habitatge, se está solicitando dicho certificado. Como en los anteriores formularios de solicitud no existía una casilla para el certificado colegial, el técnico recibía una notificación de Habitatge en la que se pedía el certificado. Este proceso retrasaba la entrega de la cédula.

Los inconvenientes son los propios de cualquier formulario web. El principal es que, sin conexión a internet, no se puede avanzar trabajo. En el sistema anterior, el técnico podía completar los formularios y enviarlos posteriormente. Aunque, como he explicado antes, hacer esto también era un riesgo, ya que podían no servir en el momento del envío y el trabajo se habría adelantado en vano.

Los formularios piden datos repetitivos, como los propios del técnico. En el sistema anterior, los tres formularios podían estar “pre-rellenados” con algunos de estos datos, lo que adelantaba trabajo al técnico.

También puede darse el caso de viviendas similares (mismo propietario, misma distribución) que, en el sistema anterior, bastaba con completar una vez y realizar copias del formulario base, modificando los pocos datos que diferían de una vivienda a otra (referencia catastral o piso y puerta).

Existe un inconveniente que tendrán que resolver en un futuro desde Habitatge, y es el relacionado con las modificaciones en la solicitud.

Cuando se registra un informe, puede ser que se haya cometido un error y desde Habitatge se lo hagan saber al técnico mediante una notificación. Como el borrador deja de estar operativo una vez se ha firmado y enviado el informe, el técnico no guarda ninguna copia de dicho informe, a diferencia de lo que sucedía en el anterior sistema. El técnico debe acceder a la web de Habitatge, descargarse un formulario tipo, volver a rellenarlo y enviarlo como respuesta a la notificación. El trabajo de completar el formulario se realiza dos veces con este sistema.


Contacto con Certicedula
Solicitar Cédula de habitabilidad
Solicitar Certificado energético
Solicitar Oferta cédula de habitabilidad + certificado energético

    Trabaja con nosotros:

    Envia mail a: info@certicedula.com

  • Agència de l'Habitatge de Catalunya

  • Institut Català de l'Energia

  • Col.legi d'Arquitectes de Catalunya

    CERTICEDULA

  • Avda. Catalunya, 10
  • 43700 El Vendrell. Tarragona

  • C/ Lluch, 2-4-6
  • 08016 Barcelona. Barcelona.

  • info@certicedula.com
  • 644 73 16 94

    Nombre Comercial: CERTICEDULA. info@certicedula.com. 644 73 16 94

La ineficiencia del sistema burocrático





Cédula Habitabilidad

La ineficiencia del sistema burocrático

Vanessa 2018-04-02


....

burocracia Los técnicos que pertenecemos al mundo de la construcción nos vemos obligados a interactuar con una serie de organismos inflexibles, anacrónicos y cuadriculados. Se trata de los colegios profesionales, los ayuntamientos y varios departamentos de la Generalitat. Como la temática de página web son las Cédulas de Habitabilidad y la idea del blog es ofrecer información relacionada con este documento, mi análisis se centrará en l’ Agència de l’Habitatge de la Generalitat, que es el encargado de otorgar las Cédulas de Habitabilidad. Dicho departamento utiliza procedimientos que ralentizan la expedición y la llegada al solicitante del documento, y dificultan o impiden la comunicación con el técnico.

Me gustaría remarcar que no pretendo criticar a los trabajadores del Departamento. En casi todas las situaciones he encontrado un personal muy amable y empático, dispuesto a resolver las complicaciones incluso más allá de sus obligaciones. Mi crítica se centra en un sistema basado en el papeleo y su consecuente pérdida de tiempo para la persona que necesita la cédula para vender o alquilar su casa o dar de alta algún suministro.

Cómo son las cosas y cómo podrían ser

Expondré una situación, desgraciadamente bastante habitual, como ejemplo del lento y tedioso procedimiento administrativo. Se trata de un error interno del Departamento relacionado con la documentación aportada, pero que es ajeno al solicitante y al técnico aunque son ellos quienes sufren las consecuencias. En algunas ocasiones, los trabajadores de l’Agència de l’habitatge no pueden la documentación que el técnico aporta a través del Colegio de Arquitectos. El desarrollo es el siguiente:

Paso 1

El cliente solicita la cédula a un arquitecto. El técnico visita la vivienda, redacta el Certificado de Habitabilidad y visa el documento en el Colegio de Arquitectos. El Colegio genera un archivo formato pdf, que el técnico se descarga. El técnico registra telemáticamente el Certificado de Habitabilidad en Habitatge y les informa del código del Certificado de habitabilidad para que ellos también puedan descargarse el archivo. pdf con toda la información para realizar la Cédula.

Tiempo transcurrido: Entre 1 y 3 días.

Paso 2

La persona encargada de gestionar la cédula en Habitatge se descarga el archivo del Colegio de Arquitectos.

Tiempo transcurrido desde el inicio: 2 semanas.

Tiempo transcurrido en este paso: Casi 2 semanas.

Paso 3

En una situación normal, tardarían otra semana en otorgar la cédula y la enviarían al solicitante por correo postal, que suele tardar entre una y dos semanas. Por lo que el tiempo estimado entre que el técnico registra el Certificado y la cédula llega al cliente es de un mes. Pero sucede en muchas ocasiones que, cuando el personal de Habitatge entra en la web del Colegio de Arquitectos e introduce el Código, éste le da error y les es imposible descargarse la información necesaria para realizar la Cédula.

El paso a seguir más lógico sería que desde Habitatge reclamaran al Colegio de Arquitectos que no pueden tener acceso al archivo, que lo vuelvan a generar o se lo envíen directamente. Pero el procedimiento que siguen se aparta mucho de la lógica: “reclaman” a la persona solicitante de la cédula, completamente ajena al procedimiento, que no han podido descargarse el archivo.

El solicitante, después de tres semanas de haber solicitado la cédula, encuentra un aviso en su buzón para que vaya a Correos a buscar un certificado de Habitatge. El solicitante se imagina que, por el tiempo transcurrido, será la cédula. Pero en su lugar se encuentra un documento muy serio lleno de leyes que le informa que tiene 10 días hábiles para presentar la documentación ya que el código generado es erróneo. Este hecho deja en mal lugar al técnico, ya que parece que ha realizado mal su trabajo. Rápidamente, el solicitante se pone en contacto con el técnico para informarse de cómo hay que solucionar la situación.

Tiempo transcurrido desde el inicio: 1 mes.

Tiempo transcurrido en este paso: 2 semanas.

Paso 4

El técnico debe hacer llegar el certificado de Habitabilidad al Departament d’Habitatge. No puede hacerlo vía e-mail, porque en Habitatge quieren que toda la documentaci´´on que les llega quede registrada de forma oficial. Tengo que puntualizar que, desde algunos ayuntamientos y distritos de Barcelona, sí que me han ofrecido la posibilidad de enviarlo directamente a la persona responsable de gestionar las cédulas. Pero cuando la cédula va directamente a la oficina central de Habitatge, las vías de comunicación están blindadas, tanto por mail como por teléfono. Entonces hay dos opciones de entregar los documentos. La primera es personalmente en la Oficina de Habitatge desde la que se está tramitando la cédula.

La otra opción es vía telemática, adjuntando el Certificado de Habitabilidad a una instancia. Es una opción mucho más lenta, ya que desde que se registra la instancia hasta que la recibe el personal de Habitatge puede pasar más de una semana. Normalmente el técnico es quien envía la instancia.

El personal de Habitatge recibe el Certificado de Habitabilidad y, si todo es correcto, en una semana otorgará la cédula, la enviarán por correo postal y, si no se pierde en el camino, le llegará al solicitante en una o dos semanas.

Tiempo transcurrido desde el inicio hasta que el solicitante recibe la cédula: Casi 2 meses.

Tiempo transcurrido en este paso: 3 semanas.

Cómo podrían ser las cosas

Cuando en el Departament d’Habitatge no pueden descargarse en archivo con toda la documentación sobre la vivienda, en vez de involucrar al solicitante y al técnico, que no tienen ninguna culpa de que los sistemas informáticos institucionales no funcionen bien, podrían ponerse en contacto directamente con el Colegio profesional para que le envíen directamente el archivo. O, cuando un técnico registra la cédula, podrían darle la opción de adjuntar el archivo y no solamente el código de descarga. De esta forma se adelantaría un mes en el proceso.

Analizando los dos sistemas de resolución de este problema concreto podemos hacer algunas apreciaciones.

  1. Tanto el Colegio profesional como la Generalitat han cobrado cerca de 30€ en tasas administrativas de registro. El obsoleto sistema informático de una o ambas partes ha fallado. Al final es el técnico o el solicitante quien acaba haciendo el trabajo de entregar la documentación, pero ni la administración ni el Colegio devuelven parte de las tasas.
  2. Mejorando las vías de comunicación se podrían agilizar los trámites. Una llamada de teléfono o un e-mail acortaría semanas el engorroso proceso de las instancias y las cartas certificadas.
  3. Una comunicación abierta entre el Colegio de Arquitectos y la Administración dejaría al cliente ajeno a los problemas internos de los dos organismos y no daría trabajo extra al técnico.
  4. El sistema actual deja en mala posición al técnico, ya que el cliente tiende a culparle de los errores del proceso.

Este ha sido un ejemplo de un requerimiento común. En próximas entradas del blog me gustaría tratar otros requerimientos habituales.

 


En Certicedula somos arquitectos colegiados expertos en tramitación de cédulas de habitabilidad y certificados energéticos. Puede ponerse en contacto con nosotros y le aclararemos todas las dudas relacionadas sobre el tema y también puede solicitarnos el informe que necesite.


Contacto con Certicedula
Solicitar cédula de habitabilidad
Solicitar certificado energético
Solicitar oferta cédula de habitabilidad + certificado energético

    Trabaja con nosotros:

    Envia mail a: info@certicedula.com

  • Agència de l'Habitatge de Catalunya

  • Institut Català de l'Energia

  • Col.legi d'Arquitectes de Catalunya

    CERTICEDULA

  • Avda. Catalunya, 10
  • 43700 El Vendrell. Tarragona

  • C/ Lluch, 2-4-6
  • 08016 Barcelona. Barcelona.

  • info@certicedula.com
  • 644 73 16 94

    Nombre Comercial: CERTICEDULA. info@certicedula.com. 644 73 16 94

La cédula habitabilitat a Catalunya





Cédula Habitabilidad

La cédula habitabilitat a Catalunya

Vanessa 2017-01-11


....

estadistica-cedula

Cèdula d’Habitabilitat a Catalunya

L’equip de Certicedula ha realitzat més de mil dues-centes cèdules d’habitabilitat durant l’any 2017. En aquesta entrada al blog volem fer una estadística dels informes realitzats segons les poblacions i les característiques dels habitatges..

Cèdula d’Habitabilitat a Barcelona

Barcelona és la província més poblada de Catalunya i és d’on es reben la majoria dels encàrrecs, concretament de l’àrea metropolitana. La comarca del Barcelonès és on més cèdules es realitzen, seguida del Vallès Occidental, el Baix Llobregat, el Garraf, el Maresme, el Vallès Oriental, l’Alt Penedès, l’Anoia, el Bages i Osona. Dels 1200 informes analitzats, 106 pertanyen a la ciutat de Barcelona, que és u de cada deu.

Altres poblacions de la província de Barcelona amb gran demanda de realització de cèdula d’habitabilitat i certificat energètic són les següents:

  • Cèdula d’Habitabilitat a Badalona
  • Cèdula d’Habitabilitat a Hospitalet de Llobregat
  • Cèdula d’Habitabilitat a Santa Coloma de Gramenet
  • Cèdula d’Habitabilitat a Sant Adrià del Besòs
  • Cèdula d’Habitabilitat a Sant Cugat del Vallès
  • Cèdula d’Habitabilitat a Cerdanyola del Vallès
  • Cèdula d’Habitabilitat a Sabadell
  • Cèdula d’Habitabilitat a Terrassa
  • Cèdula d’Habitabilitat a Granollers
  • Cèdula d’Habitabilitat a Montgat
  • Cèdula d’Habitabilitat al Masnou
  • Cèdula d’Habitabilitat a Mataró
  • Cèdula d’Habitabilitat a Ripollet
  • Cèdula d’Habitabilitat a Rubí
  • Cèdula d’Habitabilitat a Martorell
  • Cèdula d’Habitabilitat a Barberà del Vallès
  • Cèdula d’Habitabilitat a Igualada
  • Cèdula d’Habitabilitat a Manresa
  • Cèdula d’Habitabilitat a Castelldefels
  • Cèdula d’Habitabilitat a Sitges
  • Cèdula d’Habitabilitat a Vilanova i la Geltrú
  • Cèdula d’Habitabilitat a Vilafranca del Penedès
  • Cèdula d’Habitabilitat a Sant Boi de Llobregat
  • Cèdula d’Habitabilitat a Sant Joan Despí
  • Cèdula d’Habitabilitat a Sant Quirze del Vallès
  • Cèdula d’Habitabilitat a Cubelles
  • Cèdula d’Habitabilitat a Cornellà de Llobregat
  • Cèdula d’Habitabilitat a Esplugues de Llobregat
  • Cèdula d’Habitabilitat a Molins de Rei

Cèdula d’Habitabilitat a Tarragona

La realització de cèdula d’habitabilitat a la província de Tarragona es concentra en dos tipus de poblacions. Per una banda estan les ciutats més poblades i, per altra, els nuclis turístics. La gran oferta d’apartaments de lloguer turístic a la Costa Daurada es reflexa amb un gran nombre d’encàrrecs de cèdules d’habitabilitat. També s’han realitzat gran nombre d’informes en altres nuclis de població d’interior.

Les poblacions on més cèdules d’habitabilitat i certificats energètics s´han realitzat són:

  • Cèdula d’Habitabilitat a Tarragona
  • Cèdula d’Habitabilitat a Reus
  • Cèdula d’Habitabilitat a El Vendrell
  • Cèdula d’Habitabilitat a Calafell
  • Cèdula d’Habitabilitat a Cambrils
  • Cèdula d’Habitabilitat a Salou
  • Cèdula d’Habitabilitat a Torredembarra
  • Cèdula d’Habitabilitat a Roda de Berà
  • Cèdula d’Habitabilitat a Vila-Seca
  • Cèdula d’Habitabilitat a l’Arboç

Cèdula d’Habitabilitat a Girona

El mes d’octubre vam començar a realitzar informes de cèdula d’habitabilitat i certificat energètic a la província de Girona. Amb un 5% del total dels informes realitzats a Certicedula, podem dir que la demanda és molt elevada. Igual que a Tarragona, la demanda es concentra en dos grups. Per una banda tenim la ciutat de Girona on, pel fet de ser una ciutat universitària on es realitzen molts contractes de lloguer, té molta demanda d’informes de cèdula i certificat. Les zones turístiques de la Costa Brava també tenen molta demanda.

Les poblacions on més cèdules d’habitabilitat i certificats energètics s´han realitzat a la província de Girona són:

  • Cèdula d’Habitabilitat a Girona
  • Cèdula d’Habitabilitat a Figueres
  • Cèdula d’Habitabilitat a Roses
  • Cèdula d’Habitabilitat a Palamós
  • Cèdula d’Habitabilitat a Platja d’Aro
  • Cèdula d’Habitabilitat a Lloret de Mar

Cèdula d’Habitabilitat a Lleida

Igual que a la província de Girona, vam començar a realitzar informes durant el mes d’octubre. Al ser la província menys poblada de Catalunya i no abastar la totalitat del territori, la demanda d’informes ha estat molt baixa. La totalitat dels informes es concentra en els nuclis més poblats.

Les poblacions on més cèdules d’habitabilitat i certificats energètics s´han realitzat a la província de Lleida són:

  • Cèdula d’Habitabilitat a Lleida
  • Cèdula d’Habitabilitat a Tàrrega
  • Cèdula d’Habitabilitat a Balaguer
  • Cèdula d’Habitabilitat a Mollerussa

Altres conclusions

Compra o lloguer

No podem donar dades exactes de quin percentatge d’informes s’han sol•licitat per a realitzar la compra d’un habitatge i quin percentatge d’informes es corresponen a lloguer, perquè no hem preguntat en tots els casos quin era el motiu de l’informe. De forma aproximada, podem afirmar que tots dos orígens estan molt igualats. Aquest fet ens serveix com a indicador d’un progressiu augment de les transaccions de compra-venda a Catalunya, confirmant un lent però ascendent revifament econòmic en el mercat immobiliari.

Primera o segona residència

Tampoc tenim dades exactes sobre si l’habitatge en qüestió es tracta d’una primera o segona residència. Per la nostra experiència, l’observació el dia de la visita i la ubicació de l’immoble, podem aproximar les segones residències a un 10% del total de les cèdules que realitzem a Certicedula. La gran majoria d’aquests habitatges són apartaments situats en poblacions a peu de platja, situats a la Costa Daurada i la Costa Brava. També hem realitzat cèdules d’habitabilitat i certificats energètics a la ciutat de Barcelona amb la finalitat d’apartament turístic.

Temps necessari per rebre la cèdula

El temps que triga l’administració en revisar i atorgar la cèdula d’habitabilitat varia d’unes poblacions a unes altres. El nombre d’habitants és un factor important a l’hora d’accelerar el procés, de forma que a les províncies de Girona i Lleida és on menys dies es necessiten d’espera per rebre la cèdula. La província de Barcelona està dividida en varies delegacions d’Habitatge. Dins de la ciutat de Barcelona, també es reparteixen la feina per districtes. Normalment triguen de 20 a 30 dies, depenent del volum de feina i del personal disponible en aquell moment.

A la província de Tarragona el temps és molt dispar. A Tarragona ciutat, el tècnic de l’Habitatge revisa personalment tots els habitatges pels quals es sol•licita la cèdula. Tot i això, el temps d’espera és molt més curt, comparat amb Barcelona (on no es revisen), sent aproximadament de 15 dies.

La província de Tarragona està dividida en vàries delegacions d’Habitatge. Les delegacions encarregades de revisar les cèdules de les poblacions costeres més massificades (Baix Camp, Baix Penedès, Tarragonès excepte Tarragona ciutat) tenen un temps d’espera similar a la província de Barcelona. En el cas del Baix Camp, un tècnic d’Habitatge torna a l’immoble a fer una inspecció.

A les comarques menys poblades de Tarragona, el temps d’espera és inferior. Lleida i Girona són les províncies on els tràmits de cèdula es realitzen en el menor temps, sent, a vegades, inferior als deu dies.


Contacto con Certicedula
Solicitar cédula de habitabilidad
Solicitar certificado energético
Solicitar oferta cédula de habitabilidad + certificado energético